Das angebotene Gewerbeobjekt befindet sich in ruhiger und zugleich gut erreichbarer Lage von Helmstedt-Büddenstedt. Das Gebäude wurde 1988 in massiver Bauweise errichtet, ist eingeschossig und teilweise unterkellert. Im Jahr 2004 erfolgte eine umfassende Modernisierung.
Insgesamt bietet die Immobilie eine Nutzfläche von rund 130 m² auf einem Eckgrundstück, auf dem zudem drei Außenstellplätze zur Verfügung stehen.
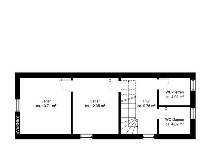
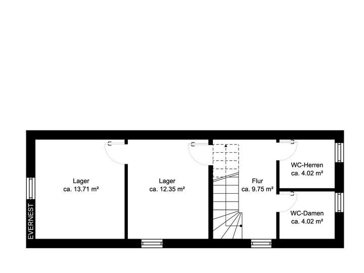
Im Erdgeschoss befinden sich der ehemalige Kundenbereich, ein Büro und ein Sozialraum sowie das SB-Foyer. Das Untergeschoss verfügt über zwei Lagerräume sowie zwei separate Mitarbeiter-WCs.
Die Immobilie präsentiert sich in einem gepflegten Zustand, im Innenbereich sorgen Aluminiumfenster mit Dreifachverglasung und eine Aluminiumeingangstür mit Glaselementen für helle Räume. Der Innenausbau besteht aus massiven und teils verglasten Trennwänden und abgehängten Rasterdecken mit integrierter Beleuchtung. Die Bodenbeläge sind überwiegend mit Laminat, Teppich und Fliesen ausgestattet.
Die Beheizung erfolgt über Nachtspeicheröfen, die Warmwasserversorgung dezentral über Durchlauferhitzer. Eine Nachrüstung einer Photovoltaikanlage kann zukünftig zur Reduzierung der Energiekosten beitragen. Für zusätzlichen Komfort sorgen ein dezentrales Klimagerät.
Das Objekt wird leerstehend übergeben und bietet dadurch vielfältige Nutzungsmöglichkeiten. Es eignet sich ideal für Büro-, Praxis- oder Dienstleistungszwecke und kann je nach Bedarf individuell umgestaltet werden. Durch die ruhige, aber verkehrsgünstige Lage und die frühere Nutzung durch eine öffentliche Institution ist der Standort in der Umgebung bekannt und bietet somit ein attraktives Umfeld für eine gewerbliche Nutzung.
Etabliertes Gewerbeobjekt in Helmstedt - flexibel nutzbar!
38372 Büddenstedt
Die vollständige Adresse der Immobilie erhalten Sie vom Anbieter.
Auf Karte anzeigen
Die vollständige Adresse der Immobilie erhalten Sie vom Anbieter.
Finanzierungszertifikat
In nur zwei Minuten zu Ihrem persönlichen Finanzierungszertifkat.
Infos
| Haustyp | Sonstige |
|---|---|
| Wohnfläche ca. | 189 m2 |
| Grundstücksfläche | 439 m2 |
| Zimmer | 6 |
| Badezimmer | 2 |
| Garage/Stellplatz | Außenstellplatz |
| Anzahl Garage/Stellplatz | 3 |
Kosten
| Kaufpreis |
145.000 € |
|---|---|
| Provision |
2.38 % inkl. MwSt. Bei Abschluss eines notariellen Kaufvertrages ist eine Käuferprovision vom Käufer in Höhe von 2.38 % inkl. MwSt. aus dem Kaufpreis fällig. |
Finanzierungsrechner:
Kaufpreis:
600.000 €
Eigenkapital:
600.000 €
Monatliche Rate
0 €
Effektiver Jahreszins
0 %
Sollzinsbindung
10 Jahre
Bausubstanz & Energieausweis
| Baujahr | 1988 |
|---|---|
| Letzte Sanierung | 2004 |
| Objektzustand | Modernisiert |
| Qualität der Austattung | Einfach |
| Energieausweis | liegt vor |
| Energieausweistyp | Bedarfsausweis |
| Energieverbrauchskennwert | 388,6 kWh/(m²*a) |
| Energieeffizienzklasse | E |
388,6
kWh/(m²*a)
Energieeffizienzklasse E
- A+
- A
- B
- C
- D
- E
- F
- G
- H
- 0
- 25
- 50
- 75
- 100
- 125
- 150
- 175
- 200
- 225
- >250
Beschreibung des Objekts
Ausstattung
* umfassende Modernisierung in 2004
* Eckgrundstück
* 3 Außenstellplätze
* Leerstehend
* Klimaanlage
* zwei Mitarbeiter-WCs
Lage
Das Gewerbeobjekt befindet sich im Ortsteil Büddenstedt der Stadt Helmstedt. Die Lage bietet eine gute Anbindung an den Ortskern sowie an die umliegenden Bundesstraßen und ist auch mit dem ÖPNV bequem erreichbar – eine Bushaltestelle liegt nur wenige Gehminuten entfernt.
Das Objekt genießt durch seine ehemalige Vermietung einen hohen Bekanntheitsgrad als etablierter Standort für gewerbliche Nutzung. Die Umgebung ist geprägt von einer Mischung aus Wohn- und Geschäftsnutzung, was den Standort sowohl für Dienstleistungsbetriebe als auch für Büros oder Praxen interessant macht.
Dank der ruhigen, aber gut erreichbaren Lage bietet das Objekt optimale Voraussetzungen für eine repräsentative Gewerbenutzung mit regionaler Sichtbarkeit.
Grundriss
Erdgeschoss
>
>
Untergeschoss
>
>
Adresse
38372 Büddenstedt
Interessante Orte
Preis- und Lageinformationen
Preistrend für Bestandsimmobilien in Büddenstedt