Dieses gepflegte Reihenendhaus aus dem Jahr 1991 überzeugt mit einer Wohnfläche von rund 135 m², verteilt auf fünf lichtdurchflutete und optimal geschnittene Räume. Das Haus präsentiert sich in einem modernen, einladenden Wohnambiente und ist damit sofort bezugsbereit. Zum Angebot gehören außerdem ein Carport sowie ein praktisches Gartenhaus, das zusätzlichen Stauraum für Gartengeräte und Fahrräder bietet.
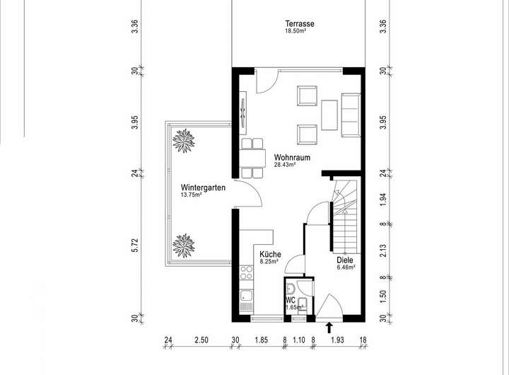
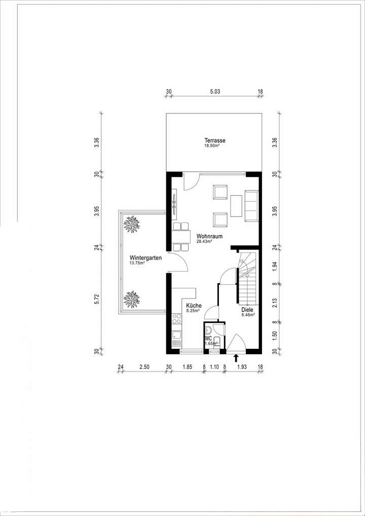
Im Erdgeschoss erwarten Sie ein Gäste-WC mit Fenster sowie eine offene, moderne Einbauküche mit Elektrogeräten. Vom Wohnzimmer aus gelangt man direkt auf die großzügige Terrasse mit elektrisch ausfahrbarer Markise – ideal für gemütliche Stunden im Freien oder gesellige Grillabende. Ergänzt wird der Wohnbereich durch einen beheizbaren Wintergarten, der zu jeder Jahreszeit zum Verweilen einlädt.
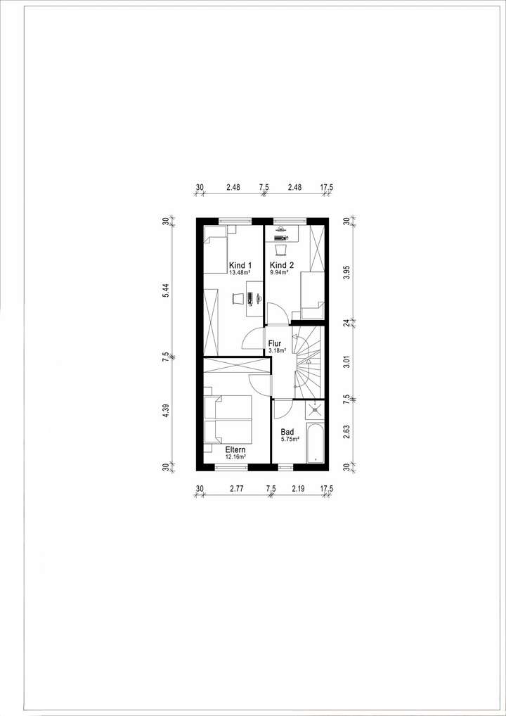
Im ersten Obergeschoss befindet sich ein großzügiges Vollbad mit Dusche sowie drei gut geschnittene Schlafzimmer, die sich ideal als Eltern-, Kinder- oder Gästezimmer eignen.
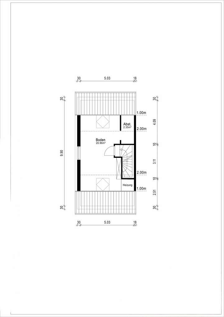
Das Dachgeschoss beherbergt ein vielseitig nutzbares Büro oder Hobbyzimmer sowie in einem separaten Abstellraum die moderne Heizungsanlage.
Im Kellergeschoss stehen Ihnen rund 44 m² zusätzliche Nutzfläche zur Verfügung. Hier finden sich ein Waschraum, ein beheizter Partyraum sowie ein praktischer Vorratsraum unter der Treppe.
Das Haus ist mit isolierverglasten Kunststofffenstern ausgestattet. Die Heizungsanlage wurde 2021 erneuert, und das Dach erhielt 2020 eine gründliche Reinigung, Grundierung und Versiegelung. Der sonnige Garten bietet viel Platz zum Spielen, Entspannen und Genießen. Mehrere Wasseranschlüsse im Außenbereich sorgen zudem für Komfort bei der Gartenpflege.
Die jährlichen Gemeinschaftskosten betragen derzeit 300,00 €.
Ein liebevoll gepflegtes Zuhause, das mit seiner Ausstattung, Raumaufteilung und ruhigen Lage besonders für Familien attraktiv ist.
Stilvolles, energieeffizientes Reihenendhaus mit sonnigem Grundstück & Carport in begehrter Lage!
22457 Hamburg
Die vollständige Adresse der Immobilie erhalten Sie vom Anbieter.
Auf Karte anzeigen
Die vollständige Adresse der Immobilie erhalten Sie vom Anbieter.
Finanzierungszertifikat
In nur zwei Minuten zu Ihrem persönlichen Finanzierungszertifkat.
Infos
| Haustyp | Reiheneckhaus |
|---|---|
| Wohnfläche ca. | 135 m2 |
| Nutzfläche | 44,75 m2 |
| Grundstücksfläche | 320 m2 |
| Bezugsfrei ab | nach Absprache |
| Zimmer | 5 |
| Schlafzimmer | 3 |
| Badezimmer | 1 |
| Garage/Stellplatz | Carport |
| Anzahl Garage/Stellplatz | 1 |
Kosten
| Kaufpreis |
650.000 € |
|---|---|
| Provision |
3,57 % |
Finanzierungsrechner:
Kaufpreis:
600.000 €
Eigenkapital:
600.000 €
Monatliche Rate
0 €
Effektiver Jahreszins
0 %
Sollzinsbindung
10 Jahre
Bausubstanz & Energieausweis
| Baujahr | 1991 |
|---|---|
| Objektzustand | Gepflegt |
| Heizungsart | Zentralheizung |
| Wesentliche Energieträger | Gas |
| Energieausweis | liegt vor |
| Energieausweistyp | Verbrauchsausweis |
| Energieverbrauchskennwert | 101,7 kWh/(m²*a) |
| Energieeffizienzklasse | D |
101,7
kWh/(m²*a)
Energieeffizienzklasse D
- A+
- A
- B
- C
- D
- E
- F
- G
- H
- 0
- 25
- 50
- 75
- 100
- 125
- 150
- 175
- 200
- 225
- >250
Beschreibung des Objekts
Lage
Die Immobilie befindet sich in einer ruhigen und familienfreundlichen Wohnlage im beliebten Hamburger Stadtteil Schnelsen. Das Umfeld ist geprägt von gepflegten Häusern, grünen Vorgärten und einer angenehmen Nachbarschaft, in der sich Familien sofort wohlfühlen.
Schulen, Kindergärten und Spielplätze befinden sich in unmittelbarer Nähe, ebenso wie Einkaufsmöglichkeiten für den täglichen Bedarf. Auch Ärzte, Apotheken und kleine Cafés sind schnell erreichbar, sodass sich das Leben hier bequem und entspannt gestaltet.
Die Verkehrsanbindung ist hervorragend: Mit dem Auto gelangt man in wenigen Minuten auf die A7, und auch Bus- und Bahnverbindungen sorgen für eine gute Anbindung an die Hamburger Innenstadt und das Umland.
Besonders reizvoll sind die vielen Grünflächen und Naherholungsgebiete in der Umgebung – ideal für Spaziergänge, Fahrradtouren oder entspannte Stunden mit der Familie im Freien.
Diese Lage bietet alles, was Familien sich wünschen: Ruhe, Sicherheit und zugleich die Nähe zu städtischen Angeboten. Ein Ort, an dem man ankommt und gerne bleibt.
Sonstige Angaben
Besichtigungstermine vereinbaren wir ausschließlich telefonisch.
Nachdem Sie Ihre Anfrage über das Immobilienportal gestellt haben, rufen Sie uns diesbezüglich oder für weitere Informationen gerne zu den üblichen Bürozeiten an.
Alle Angaben nach bestem Wissen. Irrtum und Zwischenverkauf vorbehalten. Dieses Exposé ist eine Vorinformation, als Rechtsgrundlage gilt allein der notariell abgeschlossene Kaufvertrag.
Grundriss
Erdgeschoss
>
>
Obergeschoss
>
>
Dachgeschoss
>
>
Kellergeschoss
>
>
Adresse
22457 Hamburg
Interessante Orte
Preis- und Lageinformationen
Preistrend für Bestandsimmobilien in Schnelsen