Willkommen in Hünfelden / Kirberg... Das von uns angebotene großzügige und gepflegte Anwesen wurde ursprünglich 1956 errichtet. In den Jahren 1968 und 1997/98 erfolgte noch ein schöner Anbau an die Doppelhaushälfte, als moderne Erweiterung des Hauses. Insgesamt besteht das Objekt aus zwei Doppelhaushälften und einem modernen Wohnhausanbau mit Kamin. Es bietet Ihnen nicht nur eine ansprechende Gartenaussicht in die Ferne, sondern auch ein beeindruckendes Raumangebot auf einem großzügig angelegten Grundstück mit insgesamt ca. 1.088 m² Gartenfläche.
W O H N F L Ä C H E :
Mit einer Wohnfläche von insgesamt ca. 300 m² und einer zusätzlichen Nutzfläche von ca. 45 m² erstreckt sich dieses harmonisch gestaltete Anwesen über zwei Etagen und bietet insgesamt sieben Zimmer, darunter fünf geräumige Schlafzimmer und vier moderne Bäder.
A U S S T A T T U N G :
Die Innenausstattung besticht durch eine gelungene Kombination aus Fliesen,- und Dielenböden, die dem Haus eine warme und zugleich elegante Atmosphäre verleihen. Die vorhandene Einbauküche bietet Ihnen alles, was das Herz eines Hobbykochs begehrt, während der Kamin im Wohnbereich für gemütliche Stunden sorgt.
Für zusätzlichen Komfort stehen Ihnen ein Gäste-WC und der Zugang zu einer weitläufigen Terrasse zur Verfügung, welche ideal für gesellige Zusammenkünfte oder entspannte Abende in Ihrem eigenen grünen Paradies ist. Die Gartennutzung bietet Ihnen die Möglichkeit, Ihre Gartenträume auf diesem bezaubernden Grundstück zu verwirklichen.
K E L L E R F L Ä C H E :
Abgerundet wird das Angebot dieses gepflegten Objekts von einem geräumigen Keller, der Ihnen vielseitige Nutzungsmöglichkeiten bietet.
Lassen Sie sich von diesem charmanten Mehrfamilienhaus und seiner hervorragenden Wohnqualität überzeugen und erleben Sie ein Zuhause, das Ihnen und Ihrer Familie Raum zur Entfaltung bietet. Wir freuen uns darauf, Ihnen dieses außergewöhnliche Objekt bei einer Besichtigung näher vorzustellen.
Großzügiges Mehrfamilienhaus Anwesen mit schönem Garten in zentraler Lage von Hünfelden-Kirberg...
65597 Hünfelden
Die vollständige Adresse der Immobilie erhalten Sie vom Anbieter.
Auf Karte anzeigen
Die vollständige Adresse der Immobilie erhalten Sie vom Anbieter.
Finanzierungszertifikat
In nur zwei Minuten zu Ihrem persönlichen Finanzierungszertifkat.
Infos
| Haustyp | Mehrfamilienhaus |
|---|---|
| Etagenzahl | 2 |
| Wohnfläche ca. | 300 m2 |
| Nutzfläche | 44,83 m2 |
| Grundstücksfläche | 1.088 m2 |
| Zimmer | 7 |
| Schlafzimmer | 5 |
| Badezimmer | 4 |
| Garage/Stellplatz | Garage |
| Anzahl Garage/Stellplatz | 1 |
Kosten
| Kaufpreis |
488.000 € |
|---|---|
| Provision |
5,95 % vom notariellen Kaufpreis inkl. 19 % MwSt. |
Finanzierungsrechner:
Kaufpreis:
600.000 €
Eigenkapital:
600.000 €
Monatliche Rate
0 €
Effektiver Jahreszins
0 %
Sollzinsbindung
10 Jahre
Bausubstanz & Energieausweis
| Baujahr | 1956 |
|---|---|
| Objektzustand | Gepflegt |
| Qualität der Austattung | Normal |
| Heizungsart | Etagenheizung |
| Wesentliche Energieträger | Gas |
| Energieausweis | liegt vor |
| Energieausweistyp | Verbrauchsausweis |
| Energieverbrauchskennwert | 224,5 kWh/(m²*a) |
| Energieeffizienzklasse | G |
224,5
kWh/(m²*a)
Energieeffizienzklasse G
- A+
- A
- B
- C
- D
- E
- F
- G
- H
- 0
- 25
- 50
- 75
- 100
- 125
- 150
- 175
- 200
- 225
- >250
Beschreibung des Objekts
Ausstattung
- Glasfaserkabel liegt direkt am Haus
- Moderne Bäder mit Fenster, Dusche, Wanne und WC
- die Bäder sind raumhoch gefliest
- Gäste-WC
- Einbauküchen vorhanden
- Abstellräume
- Dielen- und Fliesenböden
- Kabel-Sat-TV Anschluss
- Kaminofen
- Terrasse
- traumhaftes Gartengrundstück
- Gartenhaus und Schuppen
- das Haus ist unterkellert
- großer Dachboden (ausbaufähig)
- Gas-Etagenheizung
- Gastherme
- Einzelgarage
- 5 PKW Stellplätze am Haus
Lage
Das angebotene Mehrfamilienhaus befindet sich in der charmanten Ortschaft Kirberg, einem Teil der Gemeinde Hünfelden in Deutschland. Diese Lage vereint ruhiges Wohnen mit guter Erreichbarkeit wichtiger Bildungseinrichtungen und der näheren Infrastruktur.
Das Zentrum von Kirberg ist nur wenige Gehminuten entfernt, sodass die Bewohner von der Nähe zu lokalen Geschäften und Einrichtungen profitieren können. Für größere Einkaufsziele können Sie in etwa 11 KM die Innenstadt vom Limburg erreichen. Zudem befindet sich eine Autobahnanbindung an die A3 innerhalb weniger Minuten Fahrzeit, was den Standort auch für Pendler attraktiv macht.
Besonders hervorzuheben ist die hervorragende Verkehrsanbindung:
- Expressbus X72 Limburg - Wiesbaden - die Bushaltestelle ist direkt vor der Haustür
Bildungseinrichtungen wie Kindergarten und Grundschule sind in relativ kurzer Distanz bequem erreichbar. Weiterführende Schulen, darunter Hauptschule, Realschule und Gymnasium, liegen etwa 7 Kilometer entfernt und sind somit gut anfahrbar. Der Nahverkehr ist ebenfalls durch eine Busverbindung in der Nähe gegeben, die eine Erreichbarkeit benachbarter Ortschaften sicherstellt.
Insgesamt bietet diese Immobilie eine ideale Balance zwischen naturnahem Wohnen und der Nähe zu städtischen Annehmlichkeiten. Perfekt für Familien und Kapitalanleger, die in eine lebendige und dennoch entspannte Gemeinschaft investieren möchten.
Sonstige Angaben
ÜBER UNS:
Martin Brandt Immobilien, gegründet 1993, ist mit mehr als 32 Jahren Erfahrung einer der führenden Immobilien-Dienstleister in der Rhein-Main-Region. Wir unterstützen Sie als unabhängiger Immobilienmakler mit detaillierter Markt- und Objektkenntnis bei der schnellen und kundenorientierten Immobiliensuche und Vermittlung.
HABEN WIR IHR INTERESSE GEWECKT ?
Diese Immobilie gefällt Ihnen? Sie wünschen eine Besichtigung? Bitte nutzen Sie die elektronische Kontaktmöglichkeit auf dieser Seite und senden Sie uns Ihre Mail mit Angabe Ihres vollständigen Namens, Ihrer Telefon Nummer(n), E-Mail-Adresse und Ihres Terminwunsches. Bitte denken Sie auch an einen möglichen alternativen Termin.
V E R H A N D L U N G E N :
Sind ausschließlich über uns zu führen.
B E S I C H T I G U N G S T E R M I N E :
Für weitere Informationen sowie die Vereinbarung eines Besichtigungstermins stehen wir Ihnen gerne zur Verfügung. Wir freuen uns auf Ihre e-Mail Anfrage unter: immobilien@bpi24.de
A N S P R E C H P A R T N E R :
Martin Brandt und Kerstin Brandt
M A K L E R P R O V I S I O N :
Im Falle des Zustandekommens eines Kaufvertrages, ist eine Courtage in Höhe von 5,95 % inkl. 19 % MwSt. vom vereinbarten und notariellen Kaufpreis vom Käufer an den Makler zu zahlen.
FREUNDLICHER HINWEIS :
Alle Angaben in diesem Exposé wurden sorgfältig und so vollständig wie möglich gemacht. Dennoch kann das Vorhandensein von Fehlern nicht ausgeschlossen werden. Die Angaben in diesem Exposé erfolgen daher ohne Gewähr und basieren ausschließlich auf Informationen, die uns vom Verkäufer/Vermieter bzw. von Dritten zur Verfügung gestellt wurden, so dass wir keine Gewähr für die Vollständigkeit, Richtigkeit und Aktualität dieser Angaben übernehmen können.
Bitte beachten Sie, dass die Grundrisse, Möblierungen und Illustrationen unverbindliche und maßstablose Darstellungen sind und lediglich der Veranschaulichung dienen.
Irrtum und Zwischenverkauf/Zwischenvermietung bleibt vorbehalten.
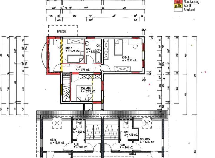
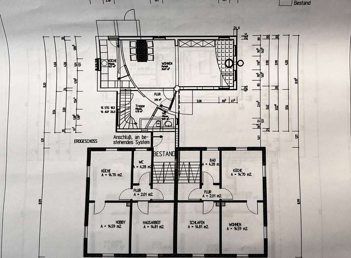
Grundriss
Erdgeschoss
>
>
Obergeschoss
>
>
Grundriss Obergeschoss
>
>
Ansichten + Schnitt
>
>
Ansichten
>
>
Adresse
65597 Hünfelden
Interessante Orte
Preis- und Lageinformationen
Preistrend für Bestandsimmobilien in Hünfelden