Dieses vielseitige Wohnensemble mit 16 Wohneinheiten vereint solide Bausubstanz, laufend durchgeführte Modernisierungen und ein stabiles Mietverhältnis in einem attraktiven Gesamtpaket. Das Grundstück mit 1.191m² ist aufgeteilt in ein Vorderhaus (Mehrfamilienhaus), ein Hinterhaus (Mehrfamilienhaus) sowie ein charmantes Einfamilienhaus und bietet somit sowohl Bestandssicherheit als auch attraktives Entwicklungspotenzial – ideal für langfristig orientierte Investoren.
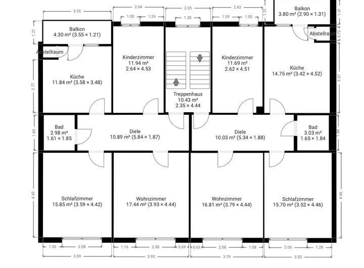
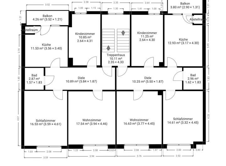
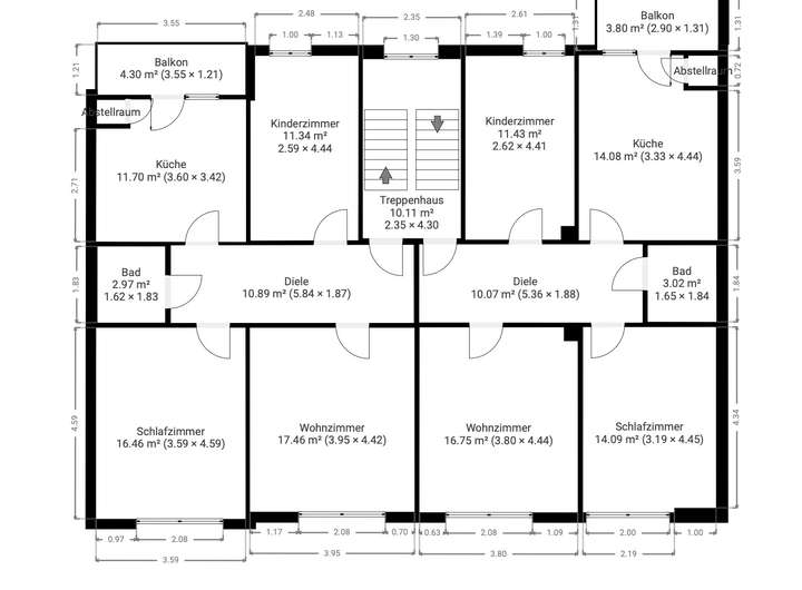
Das im Jahr 1953 errichtete Vorderhaus präsentiert sich mit insgesamt neun Wohneinheiten, verteilt auf vier Etagen sowie einem ausgebauten Dachgeschoss mit großzügiger, offener Raumgestaltung und einer Loggia zum Innenhof. Die Gesamtwohnfläche beträgt ca. 638 m². Die durchdacht geschnittenen Grundrisse bieten den Bewohnern funktionalen und zeitgemäßen Wohnkomfort. Sieben der neun Einheiten verfügen über Balkone mit Nordost-Ausrichtung – ideal für entspannte Abendstunden.
Das Gebäude befindet sich in einem gepflegten Allgemeinzustand und wurde regelmäßig instand gehalten. Die Wohnungseingangstüren wurden im Jahr 2023 durch hochwertige Feuer- und Schallschutztüren ersetzt. Die Durchschnittskaltmiete liegt bei attraktiven 13,22 €/m² und unterstreicht die wirtschaftliche Stabilität des Objekts.
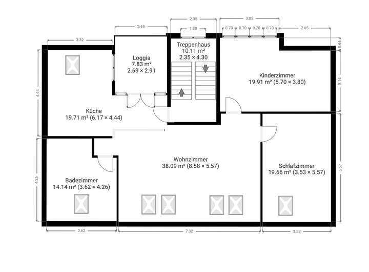
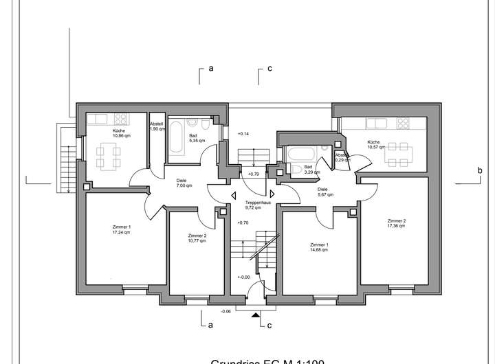
Das ruhig gelegene Hinterhaus, erbaut im Jahr 1953, ist Teil eines gepflegten Wohnensembles und umfasst insgesamt sechs Wohneinheiten, verteilt auf drei Geschosse. Zwischen 2007 und 2013 wurde das Gebäude wand- und dachseitig mit einem Wärmedämmverbundsystem ausgestattet. Die Außenfassade wurde dabei ebenfalls saniert. Im Kellergeschoss stehen den Mietern sechs separate Kellerabteile zur Verfügung, die zusätzlichen Stauraum bieten. Die Durchschnittskaltmiete liegt hier ebenfalls bei 14,26 €/m². Das Gebäude überzeugt durch ein solides Mieterklientel sowie durch kontinuierliche energetische Verbesserungen, die zur Werterhaltung und Energieeffizienz beitragen. Die Heizungsanlagen im Vorder- und Hinterhaus wurden im Jahr 2024 mit moderner Gas-Brennwerttechnik der Marke Viessmann erneuert.
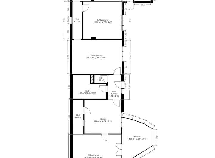
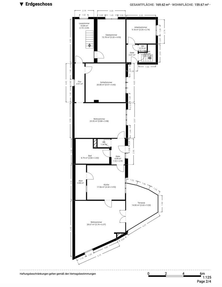
Das freistehende Einfamilienhaus aus dem Jahr 1951 ergänzt das Gesamtobjekt auf wertvolle Weise und bietet vielfältige Nutzungsmöglichkeiten.
Mit einer großzügigen Wohnfläche von ca. 176 m², verteilt auf zwei Etagen und insgesamt sechs Zimmer, bietet das Haus ausreichend Raum für individuelle Wohnkonzepte für die gesamte Familie.
Die Immobilie verfügt über ein Badezimmer sowie zwei separate Gäste-WCs. Eine rund 14 m² große Terrasse lädt zu erholsamen Sonnenstunden im Freien ein. Der große angrenzende Gartenbereich zeigt sich über das Jahr hinweg in bunter Vielfalt und angenehmem Grün. Die Küche ist mit einer praktischen Abstellkammer ausgestattet, die zusätzlichen Stauraum bietet. Das Haus ist teilunterkellert und bietet somit weitere Nutzflächen.
Im Jahr 2000 wurde das Einfamilienhaus im Innenbereich umfassend saniert.
Darüber hinaus besitzt das Gebäude einen separaten Eingang, über den ein zusätzliches Zimmer mit Flur, WC und Zugang zum Keller erreichbar ist – ideal für ein Büro, ein Gästezimmer oder eine kleine Einliegerwohnung. Das Haus verfügt im eingeschossigen Bereich über eine gedämmte obere Geschossdecke und im zweigeschossigen Bereich über eine Dachdämmung. Zusätzlich sind die Süd- und Ostseiten mit einem Wärmedämmverbundsystem versehen, was zu einer guten Energieeffizienz beiträgt. Eine Aufteilung des Hauses in zwei Wohneinheiten – eine größere und eine kleinere – wäre grundsätzlich möglich.
Auf dem Hof befinden sich derzeit zwei Außenstellplätze und ein Carport. Zusätzlich steht eine leerstehende, nicht vermietete Halle auf dem Grundstück. Diese kann bei Bedarf zurückgebaut werden, um zusätzliche Nutzungsmöglichkeiten zu schaffen – etwa für weitere Stellplätze, Garagen oder als Fläche für eine ergänzende bauliche Entwicklung.
Laut geltendem Bebauungsplan ist eine Bebauun
Attraktives Wohnensemble: Zwei Mehrfamilienhäuser & ein Einfamilienhaus in begehrter Lage im Mart...
64289 Darmstadt
Die vollständige Adresse der Immobilie erhalten Sie vom Anbieter.
Auf Karte anzeigen
Die vollständige Adresse der Immobilie erhalten Sie vom Anbieter.
Finanzierungszertifikat
In nur zwei Minuten zu Ihrem persönlichen Finanzierungszertifkat.
Infos
| Haustyp | Mehrfamilienhaus |
|---|---|
| Wohnfläche ca. | 1.135 m2 |
| Grundstücksfläche | 1.191 m2 |
| Zimmer | 31 |
| Badezimmer | 16 |
| Anzahl Garage/Stellplatz | 2 |
Kosten
| Kaufpreis |
0 € |
|---|---|
| Provision |
5.95 % inkl. gesetzl. MwSt. |
Finanzierungsrechner:
Kaufpreis:
600.000 €
Eigenkapital:
600.000 €
Monatliche Rate
0 €
Effektiver Jahreszins
0 %
Sollzinsbindung
10 Jahre
Bausubstanz & Energieausweis
| Baujahr | 1953 |
|---|---|
| Letzte Sanierung | 2024 |
| Objektzustand | Neuwertig |
| Heizungsart | Zentralheizung |
| Wesentliche Energieträger | Gas |
| Energieausweis | liegt vor |
| Energieausweistyp | Verbrauchsausweis |
| Energieeffizienzklasse | C |
Energieeffizienzklasse C
- A+
- A
- B
- C
- D
- E
- F
- G
- H
- 0
- 25
- 50
- 75
- 100
- 125
- 150
- 175
- 200
- 225
- >250
Beschreibung des Objekts
Ausstattung
Blick ins Grüne
Vollunterkellert
Lage
Die besondere Lage im Herzen des Martinsviertels zählt zu den begehrtesten Wohnlagen Darmstadts. Der lebendige, zentrumsnahe Stadtteil überzeugt durch seinen besonderen Charme, geprägt von historischer Gründerzeitarchitektur und einer gewachsenen, lebendigen Quartiers Struktur. Hier verbinden sich urbanes Lebensgefühl, kulturelle Vielfalt und eine hervorragende Infrastruktur. Einkaufsmöglichkeiten, Cafés, Schulen sowie der öffentliche Nahverkehr sind fußläufig erreichbar – eine ideale Umgebung für Mieter und Eigennutzer gleichermaßen.
Die charmante Umgebung des Martinsviertels zeichnet sich durch ihre historische Architektur, eine vielfältige Gastronomie und eine hohe Aufenthaltsqualität aus. Die Nähe zur Evangelischen Michaelskirche, einem Werk des Frankfurter Kirchenbaumeisters Werner W. Neumann, verleiht dem Viertel zusätzlichen Flair.
In der direkten Umgebung finden sich zahlreiche Cafés, Restaurants, kleine Läden, Wochenmärkte und Galerien – insbesondere rund um den beliebten Riegerplatz, der das Herz des Viertels bildet. Supermärkte, Apotheken, Ärzte und Schulen sind bequem fußläufig erreichbar. Auch die Darmstädter Innenstadt mit ihrem umfangreichen Angebot an Einkaufsmöglichkeiten, Gastronomie und Freizeitmöglichkeiten ist schnell zu Fuß zu erreichen.
Für Pendler bietet die Lage zudem eine hervorragende Anbindung an die Autobahnen A5 und A67, sodass umliegende Großstädte wie Frankfurt, Mainz, Wiesbaden, Mannheim und Heidelberg bequem erreichbar sind.
Durch die Nähe zur Technischen Universität Darmstadt, deren Campus fußläufig erreichbar ist, erfreut sich das Wohnviertel großer Beliebtheit bei Studierenden, Dozenten und Kreativen. Zudem überzeugt die Lage durch kurze Wege zu öffentlichen Einrichtungen, Parks und Grünflächen wie dem Herrngarten – einem der größten innerstädtischen Parks Darmstadts – sodass Sie die Natur in vollen Zügen genießen können.
Sonstige Angaben
Der Maklervertrag mit uns und/oder unserem Beauftragten kommt durch die Beauftragung der Maklertätigkeit in Textform (z. B. durch E-Mail mit Bestätigung der gewünschten Inanspruchnahme) zustande.
Die Höhe der Courtage richtet sich nach den gesetzlichen Regelungen zur Maklercourtage. Diese beträgt für den Käufer 5% des Kaufpreises zuzüglich der gesetzlichen Umsatzsteuer (derzeit insgesamt 5,95%). Die Courtage ist bei notariellem Vertragsabschluss verdient und fällig.
Die Höhe der Bruttocourtage unterliegt einer Anpassung bei Änderungen des Umsatzsteuersatzes. Die Grunderwerbsteuer sowie Notar- und Gerichtskosten trägt der Käufer.
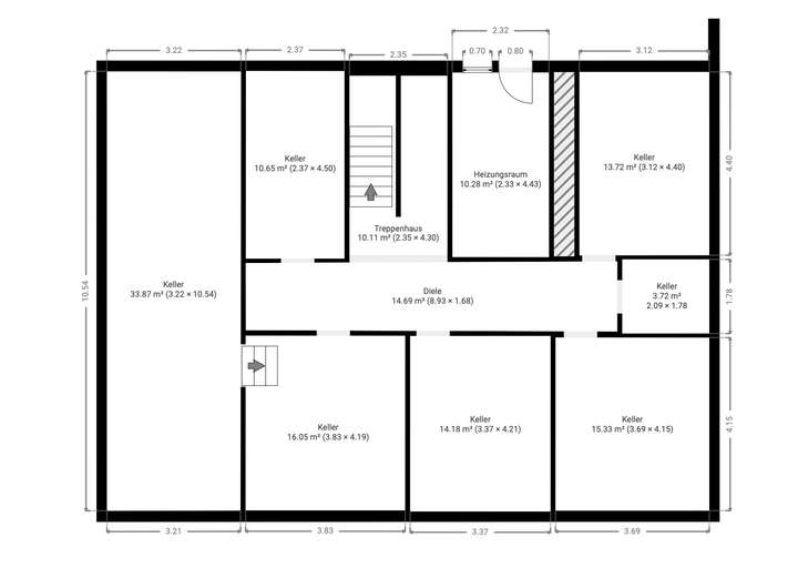
Grundriss
EG Vorderhaus
>
>
1.OG Vorderhaus
>
>
2.OG Vorderhaus
>
>
3.OG Vorderhaus
>
>
DG Vorderhaus
>
>
Keller Vorderhaus
>
>
EG Hinterhaus
>
>
1.OG Hinterhaus
>
>
2.OG Hinterhaus
>
>
Keller Hinterhaus
>
>
EG EFH
>
>
Dach EFH
>
>
Keller EFH
>
>
Adresse
64289 Darmstadt
Interessante Orte
Preis- und Lageinformationen
Preistrend für Bestandsimmobilien in Darmstadt-Nord