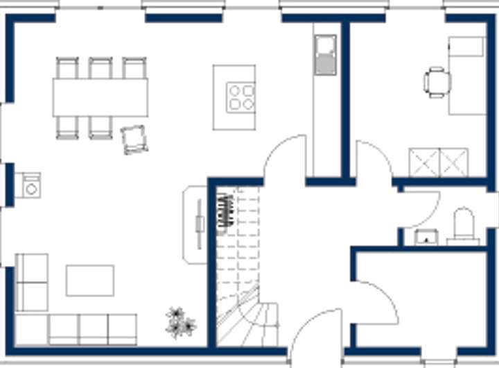
Als echter Klassiker kann unser Einfamilienhaus Elm vor allem durch seinen großen Wohn-, Essbereich überzeugen.
Der Kamin schafft eine zusätzliche Wohlfühlatmophäre.
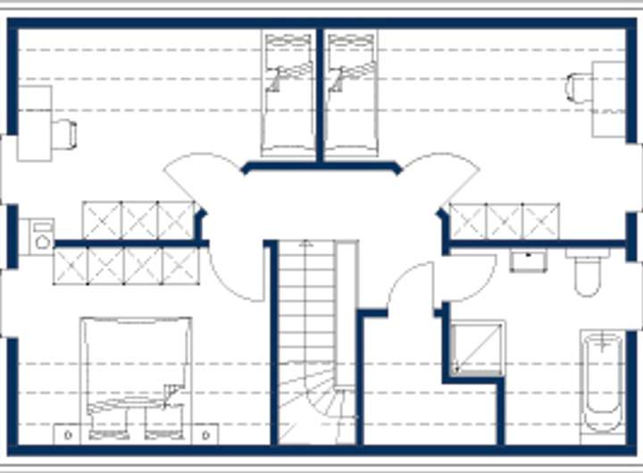
Durch die zwei Kinderzimmer im Obergeschoss und einen zusätzlichen Abstellraum, entspricht der Platz dem optimalen Nutzen.
Der Grundriss kann selbstverständlich nach den Wünschen und Vorstellungen des Bauherrn angepasst werden.
Es kann natürlich auch ein FIBAV- oder ELMBAU Haus Ihrer Wahl auf dem Grundstück gebaut werden.
Ein Zuhause, das begeistert - Stadthaus mit Verblendung & Kaminofen für echte Wohlfühlmomente
38448 Wolfsburg
Die vollständige Adresse der Immobilie erhalten Sie vom Anbieter.
Auf Karte anzeigen
Die vollständige Adresse der Immobilie erhalten Sie vom Anbieter.
Finanzierungszertifikat
In nur zwei Minuten zu Ihrem persönlichen Finanzierungszertifkat.
Infos
| Haustyp | Einfamilienhaus |
|---|---|
| Etagenzahl | 1 |
| Wohnfläche ca. | 104 m2 |
| Nutzfläche | 0 m2 |
| Grundstücksfläche | 453 m2 |
| Bezugsfrei ab | nach Fertigstellung |
| Zimmer | 4 |
| Schlafzimmer | 3 |
| Badezimmer | 1 |
Kosten
| Kaufpreis |
473.540 € |
|---|---|
| Provision | Nein |
Finanzierungsrechner:
Kaufpreis:
600.000 €
Eigenkapital:
600.000 €
Monatliche Rate
0 €
Effektiver Jahreszins
0 %
Sollzinsbindung
10 Jahre
Bausubstanz & Energieausweis
| Baujahr | 2025 |
|---|---|
| Bauphase | Haus in Planung (projektiert) |
| Objektzustand | Erstbezug |
| Qualität der Austattung | Gehoben |
| Heizungsart | Wärmepumpe |
| Wesentliche Energieträger | Umweltwärme |
| Energieausweis | liegt zur Besichtigung vor |
Beschreibung des Objekts
Ausstattung
- Wärmepumpe
- Fußbodenheizung
- E55
- Innentüren CPL-beschichtet weiß
- Fliesen 55,- €/m²
- Sanitär VigourDerby (Ausstattung nach
Grundriss)
- elektr. Rollläden EG und OG
- Brömse Fenster 3-fach verglast, aussen
farbig
- Verblendfassade
- Schornstein und Kaminofen u.v.m.
zzgl. Malerarbeiten und Bodenbelege
Lage
Das Grundstück befindet sich in Wolfsburg, im Ortsteil Brackstedt, welcher zum Stadtteil Vorsfelde gehört. Brackstedt bietet eine ruhige und familienfreundliche Wohnlage mit guter Anbindung an die umliegenden Gebiete. Die Infrastruktur in Vorsfelde und Umgebung umfasst Einkaufsmöglichkeiten für den täglichen Bedarf, Schulen und Kindergärten. Freizeitmöglichkeiten wie Grünflächen und Naherholungsgebiete sind gut erreichbar und laden zu Aktivitäten im Freien ein. Die Verkehrsanbindung ermöglicht eine gute Erreichbarkeit von Wolfsburg und darüber hinaus.
Sonstige Angaben
Die Preise verstehen zzgl. Hausanschluss-, Erwerbsnebenkosten (Notar/ Grunderwerbssteuer).
Kosten für eine eventl. auf dem jeweiligen Grundstück notwendige Geländemodellierung.
Auch eine Individualisierung Ihres Hauses ist möglich. Ein individuelles Angebot nach Ihren Wünschen erstellt Ihnen:
Ihr FIBAV Team Braunschweig
Petra Füger & Gerd Feddersen
Immobilienverkäufer
Kontaktdaten:
E-Mail: team_braunschweig@gs.fibav.de
Petra Füger 0176 / 728 742 55
Gerd Feddersen 0177 / 373 72 32
FIBAV Immobilien GmbH
Baumschulenweg 2a
38104 Braunschweig
Hinweise
Die im Exposé enthaltenen Angaben beruhen auf Informationen des Eigentümers. Für die Richtigkeit und Vollständigkeit übernehmen wir keine Gewähr. Zwischenverkauf und Irrtümer bleiben vorbehalten.
Haben Sie eine Immobilie zu verkaufen?
Grundriss
Elm_EG_FrEd-2023
>
>
Elm_OG_Fred-2023
>
>
Adresse
38448 Wolfsburg
Interessante Orte
Preis- und Lageinformationen
Preistrend für Bestandsimmobilien in Vorsfelde