Freistehendes Einfamilienhaus auf einem herrlich gelegenen 927 m² großen Grundstück am Fuße des Auerbacher Schlosses, dem sogenannten "Goldstaubviertel". Ein Bauantrag zur Erweiterung der Wohnfläche durch einen Anbau im Garten und Ausbau des Dachgeschosses wurde gestellt.
Die Highlights sind:
- exponierte Höhenlage in Bensheim-Auerbach
- Ausbaupotenzial im Dachgeschoss und über einen Anbau im Garten
- modernes, offenes Wohnkonzept im Erdgeschoss mit Blick und Zugang in den Garten
- ausreichend Platz für Fahrzeuge und Gartenzubehör vor dem Haus
- begehrte und friedvolle Wohngegend
EXTERIEUR:
Das freistehende Einfamilienhaus befindet sich auf einem 927 m² großen Grundstück in ruhiger und gewachsener Wohnlage.
Die klassische, weiße Putzfassade wird durch rustikale, dunkelbraune Holzelemente, wie traditionelle Holzklappläden, sowie stilvolle Sprosseneinsätze an einigen Fenstern ergänzt und verleiht dem Gebäude einen zeitlos-ländlichen Charakter.
Ein besonderes Highlight ist der Garten. Hier eröffnen sich vielfältige Möglichkeiten zur individuellen Nutzung - sei es für gärtnerische Aktivitäten, für eine Außensauna, als Rückzugsort im Grünen oder als Spielbereich für Kinder.
Die großzügige, überdachte Terrasse im Gartenbereich bringt ein Ort zum Grillen und Verweilen im eigenen, geschützten Grün. Auf den im 1. Obergeschoss befindlichen Balkonen und der Terrasse eröffnet sich ein herrlicher Weitblick auf die umliegende Landschaft.
Diese Immobilie überzeugt durch ihre gelungene Kombination aus gewachsener Natur, Privatsphäre und individuellem Gestaltungspotenzial.
Einfamilienhaus mit Ausbaupotenzial
64625 Bensheim
Die vollständige Adresse der Immobilie erhalten Sie vom Anbieter.
Auf Karte anzeigen
Die vollständige Adresse der Immobilie erhalten Sie vom Anbieter.
Finanzierungszertifikat
In nur zwei Minuten zu Ihrem persönlichen Finanzierungszertifkat.
Infos
| Haustyp | Einfamilienhaus |
|---|---|
| Wohnfläche ca. | 160 m2 |
| Nutzfläche | 65 m2 |
| Grundstücksfläche | 927 m2 |
| Bezugsfrei ab | nach Vereinbarung |
| Zimmer | 6 |
| Schlafzimmer | 4 |
| Badezimmer | 1 |
| Anzahl Garage/Stellplatz | 2 |
Kosten
| Kaufpreis |
1.390.000 € |
|---|---|
| Provision | Nein |
Finanzierungsrechner:
Kaufpreis:
600.000 €
Eigenkapital:
600.000 €
Monatliche Rate
0 €
Effektiver Jahreszins
0 %
Sollzinsbindung
10 Jahre
Bausubstanz & Energieausweis
| Baujahr | unbekannt |
|---|---|
| Objektzustand | Renovierungsbedürftig |
| Qualität der Austattung | Einfach |
| Heizungsart | Zentralheizung |
| Wesentliche Energieträger | Gas |
| Energieausweis | liegt zur Besichtigung vor |
Beschreibung des Objekts
Ausstattung
INTERIEUR:
Dieses liebevoll gestaltete Einfamilienhaus mit ca. 160 m² Wohnfläche bietet viel Raum für neue Wohnideen - der ideale Ort für Familien, die sich ihr Zuhause mit Charakter und individuellen Gestaltungsmöglichkeiten schaffen wollen.
Auf aktuell zwei Wohnebenen entfaltet sich eine klassische, durchdachte Raumaufteilung mit hellen Zimmern, wohnlichem Holzfußboden und charmanten Details, wie alten Holzklappläden und teilweise verbauten Sprossenfenstern.
Ein gepflegter Eingangsbereich mit angrenzendem Gäste-WC ermöglicht ein entspanntes Ankommen. Optimal auch als Windfang geeignet, um anschließend in das tatsächliche Entree mit ausreichend Platz für eine Garderobe und Sitzbank zu gelangen.
Das Herzstück bilden im Erdgeschoss die Wohn- und Essbereiche, die Dank großer Fenster lichtdurchflutet, hell und freundlich wirken. Durch Neugestaltung des Grundrisses auf dieser Gartenetage, kann ein modernes, offenes Wohnkonzept entstehen. Kochen, Essen, Wohnen auf ca. 56 m² Fläche mit direktem Zugang auf die Terrasse und in den angrenzenden Garten. Ein Ort für familiäres Zusammentreffen. Wer auf noch mehr Raum nicht verzichten möchte, kann durch einen Anbau im Gartenbereich das Wohnerlebnis erweitern (für diese Erweiterung wurde der Bauantrag bereits eingereicht).
Die heute ca. 14 m² große Küche bietet nicht nur viel Platz zum Kochen, sondern auch praktischen Stauraum und einen direkten Zugang zur Terrasse. Ideal um Mahlzeiten im Freien zu genießen oder gesellige Grillabende mit der Familie und Freunden zu verbringen.
Über eine charmante Holztreppe führt der Weg ins 1. Obergeschoss, das mit vier Zimmern vielseitige Nutzungsmöglichkeiten bietet. Zwei nahezu gleich große Kinderzimmer (ca. 14 m² und 12 m²), ein großzügiges Schlafzimmer mit ca. 21 m², sowie ein angrenzender Raum mit ca. 9 m² - ideal als Ankleidezimmer oder Homeoffice - sorgen für maximalen Wohnkomfort. Zwei Balkone und eine große Terrasse bieten auch auf dieser Ebene zahlreiche Außenplätze in verschiedene Himmelsrichtungen und einen Blick auf die idyllische Umgebung mit historischen Gebäuden und grün gewachsenen Gärten.
Ein ca. 6 m² großes Tageslichtbad, heute mit Badewanne ausgestattet, rundet diese Etage praktisch ab. Ein Ort zum Wohlfühlen und der Ruhe.
Im Dachgeschoss schlummert noch ungenutztes Potenzial, was eine komplett neue dritte Wohnebene mit Wellnessbereich eröffnen lassen könnte.
Zuletzt sei noch das ca. 65 m² große Kellergeschoss erwähnt, welches ausreichend Platz für Haustechnik, zum Waschen, Stauraum bietet oder als Werkstatt dienen kann.
Diese Immobilie überzeugt durch ihre ruhige Lage, das schön gelegene Grundstück mit viel Grün und durch das angenehme Wohnumfeld. Ein Zuhause mit Potenzial - perfekt für Menschen, die Raum für kreative Gestaltungsideen und persönliche Wohnvorstellungen suchen.
Lage
Das Grundstück liegt in einem der beliebtesten und stilvollsten Wohnviertel der hessischen Bergstraße, umgeben von Kulturdenkmalen, im Luftkurort Bensheim-Auerbach.
Ein Ort, bekannt für Weinanbau, ein kulturell ausgewogenes Angebot und eine attraktive aktive Umgebung. Ob Spaziergänge im Staatspark Fürstenlager, Wander- und Fahrradwege zum Auerbacher Schloss, in den Weinbergen oder im Ruhe spendenden Wald - all das bietet die direkte Umgebung und macht das Wohnerlebnis zu einem ganz besonderen. Der Kern geprägt von Gässchen mit Fachwerkhäusern, hervorragender Gastronomie und urigen Plätzen.
Ein Steinwurf entfernt bietet die Umgebung über die Grenzen hinaus bekannte Schulen (Altes Kurfürstliches Gymnasium, Schillerschule), eine zum Verweilen und Kauf anregende Innenstadt, als auch ein vielfältig kulturelles Angebot vom städtischen Theater bis hin zum weitbekannten Winzerfest.
Richtung Norden liegt Darmstadt nur 20 Fahrminuten entfernt und unwesentlich weiter der Frankfurter Flughafen, östlich der Odenwald und Richtung Süden führt der Weg über Weinheim nach Heidelberg oder Mannheim.
Top angebunden durch das Autobahnnetz, die Bahnstrecke Frankfurt Main - Heidelberg oder auch Shuttleangebote an den Frankfurter Flughafen.
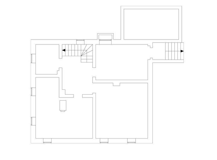
Grundriss
Erdgeschoss
>
>
Obergeschoss
>
>
Kellergeschoss
>
>
Adresse
64625 Bensheim
Interessante Orte
Preis- und Lageinformationen
Preistrend für Bestandsimmobilien in Bensheim