Dieses charmante Ein- bis Zweifamilienhaus aus dem Jahr 1951 befindet sich auf einem idyllischen Grundstück in schöner, ruhiger Ortslage – ideal für alle, die ein Zuhause mit Charakter und viel Gestaltungsspielraum suchen.
Das Haus bietet auf insgesamt vier Ebenen – Keller, Erdgeschoss, Obergeschoss und Dachgeschoss – großzügige Räume mit einer klassischen, funktionalen Aufteilung. Ob als großes Einfamilienhaus für die ganze Familie oder als Zweifamilienhaus mit separater Wohneinheit – hier sind vielfältige Nutzungsmöglichkeiten gegeben.
Im Erdgeschoss erwarten Sie ein helles Wohnzimmer mit Zugang zur Terrasse und in den Garten, eine Küche, ein Arbeitszimmer sowie ein Bad.
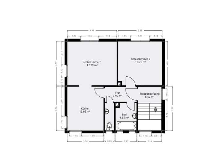
Das Obergeschoss bietet zwei gemütliche Schlafzimmer, eine weitere Küche und ein Bad – ideal als eigene Etage für Kinder, Gäste oder als zweite Wohneinheit.
Im Dachgeschoss stehen zusätzliche Wohnräume zur Verfügung, die sich wunderbar als Gästezimmer, Büro oder Rückzugsort eignen.
Der Keller bietet viel Stauraum, eine Waschküche und den Heizungsraum – perfekt für Ordnungsliebhaber und Hobbys.
Das Haus befindet sich in einem in die Jahre gekommenen Zustand und bedarf einer Renovierung, bietet aber eine solide Bausubstanz und jede Menge Potenzial, um Ihr persönliches Wohnkonzept zu verwirklichen.
Das Grundstück überzeugt mit seinem schönen Garten – ein Ort zum Entspannen, Spielen oder Gärtnern. Eine Garage sowie ein Carport runden das Angebot ab.
Charmantes Ein- bis Zweifamilienhaus mit Potenzial in idyllischer Lage
63165 Mühlheim am Main
Die vollständige Adresse der Immobilie erhalten Sie vom Anbieter.
Auf Karte anzeigen
Die vollständige Adresse der Immobilie erhalten Sie vom Anbieter.
Finanzierungszertifikat
In nur zwei Minuten zu Ihrem persönlichen Finanzierungszertifkat.
Infos
| Haustyp | Einfamilienhaus |
|---|---|
| Etagenzahl | 3 |
| Wohnfläche ca. | 175 m2 |
| Nutzfläche | 60 m2 |
| Grundstücksfläche | 436 m2 |
| Zimmer | 7 |
| Badezimmer | 2 |
| Garage/Stellplatz | Garage |
| Anzahl Garage/Stellplatz | 1 |
Kosten
| Kaufpreis |
485.000 € |
|---|---|
| Provision |
3,57% inkl. MwSt. Wir haben einen provisionspflichtigen Maklervertrag mit dem Verkäufer in gleicher Höhe abgeschlossen. |
Finanzierungsrechner:
Kaufpreis:
600.000 €
Eigenkapital:
600.000 €
Monatliche Rate
0 €
Effektiver Jahreszins
0 %
Sollzinsbindung
10 Jahre
Bausubstanz & Energieausweis
| Baujahr | 1951 |
|---|---|
| Objektzustand | Renovierungsbedürftig |
| Heizungsart | Zentralheizung |
| Wesentliche Energieträger | Öl |
| Energieausweis | liegt vor |
| Energieausweistyp | Bedarfsausweis |
| Energieverbrauchskennwert | 256,1 kWh/(m²*a) |
| Energieeffizienzklasse | H |
256,1
kWh/(m²*a)
Energieeffizienzklasse H
- A+
- A
- B
- C
- D
- E
- F
- G
- H
- 0
- 25
- 50
- 75
- 100
- 125
- 150
- 175
- 200
- 225
- >250
Beschreibung des Objekts
Lage
Mühlheim – Charmante Kleinstadt mit Geschichte und Lebensqualität
Mühlheim ist schon durch seinen Namen eng mit der Geschichte seiner Mühlen verbunden, die bis heute als traditionelles Wahrzeichen der Stadt gelten. Trotz der unmittelbaren Nähe zu den Metropolen des Rhein-Main-Gebiets hat Mühlheim seinen unverwechselbaren, kleinstädtischen Charme bewahrt. Der idyllische Altstadtkern mit seinen liebevoll erhaltenen Fachwerkhäusern und der herzlichen, authentischen Lebensart seiner Bürgerinnen und Bürger verleiht der Stadt eine ganz besondere Atmosphäre.
Zentrale Lage und optimale Verkehrsanbindung
Mühlheim überzeugt durch seine hervorragende Verkehrsanbindung. Mehrere Buslinien verbinden die Stadt direkt mit Offenbach, Seligenstadt und Frankfurt. Dank des S-Bahn-Anschlusses ist auch die Frankfurter Innenstadt bequem und schnell erreichbar. Über die nahegelegenen Autobahnen A661 und A3 gelangen Sie mit dem Auto in kürzester Zeit in die umliegenden Städte des Rhein-Main-Gebiets.
Freizeit, Kultur und Lebensqualität
Die Stadt bietet einen hohen Freizeitwert und ein aktives Vereinsleben. Ob Sport, Musik, Theater, Motorsport oder Natur – in Mühlheim ist für jeden Geschmack etwas dabei. Zahlreiche Vereine und Initiativen sorgen für ein lebendiges Gemeinschaftsgefühl. Auch kulturell hat Mühlheim viel zu bieten: Theater- und Konzertabende, Komödien, Kabarett, Kleinkunst sowie abwechslungsreiche Veranstaltungen für Kinder bereichern das Stadtleben.
Fazit
Mühlheim verbindet Geschichte und Moderne auf harmonische Weise – ein Ort, der sowohl Lebensqualität als auch hervorragende Erreichbarkeit bietet und damit ideale Voraussetzungen für Wohnen, Arbeiten und Freizeit schafft.
Sonstige Angaben
Gerne stehen wir Ihnen für ein Beratungs- und Besichtigungstermin zur Verfügung.
Sie möchten selbst eine Immobilie verkaufen?
Wir ermitteln einen seriösen und marktgerechten Wert Ihrer Immobilie. Mit einem individuell für Sie abgestimmten Vermarktungsplan optimieren wir die Verkaufschancen. Als Tochtergesellschaft der Frankfurter Volksbank Rhein/Main unterstützt uns hierbei unser umfangreiches Netzwerk. Gerne begleiten wir Sie auf dem Weg zum erfolgreichen Verkauf Ihrer Immobilie und stehen Ihnen auch noch nach dem Beurkundungstermin zur Verfügung.
Für alle Fragen zur Finanzierung stehen Ihnen die Spezialisten der Frankfurter Volksbank Rhein/Main zur Verfügung. Hier stellen wir gerne einen Kontakt her.
Sprechen Sie uns an – wir freuen uns auf Sie!
Grundriss
Erdgeschoss
>
>
Obergeschoss
>
>
Dachgeschoss
>
>
Kellergeschoss
>
>
Adresse
63165 Mühlheim am Main
Interessante Orte
Preis- und Lageinformationen
Preistrend für Bestandsimmobilien in Mühlheim am Main