Ideal für Familien und alle, die viel Platz brauchen: Auf fünf Zimmern bietet das Haus Signum viel Freiraum zur Entfaltung und maximale Geborgenheit.
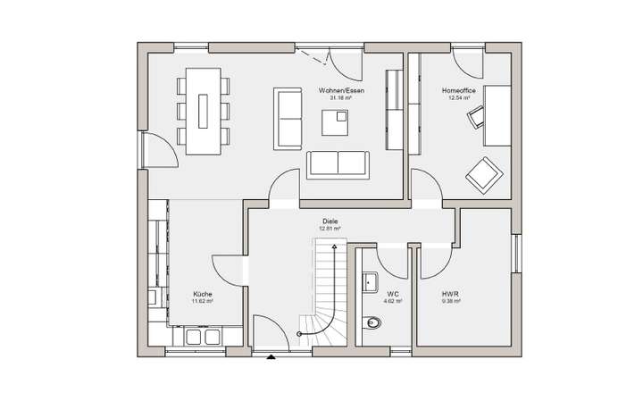
Im Erdgeschoss befindet sich die große Küche mit Blick zur Straße und das Wohn- und Esszimmer. Große Fensterelemente laden zum Gang in den Garten ein. Zudem bietet die Wohnebene ein Homeoffice, ebenfalls mit Zugang zum eigenen Garten, ein WC und einen geräumigen Hauswirtschaftsraum für die Technik.
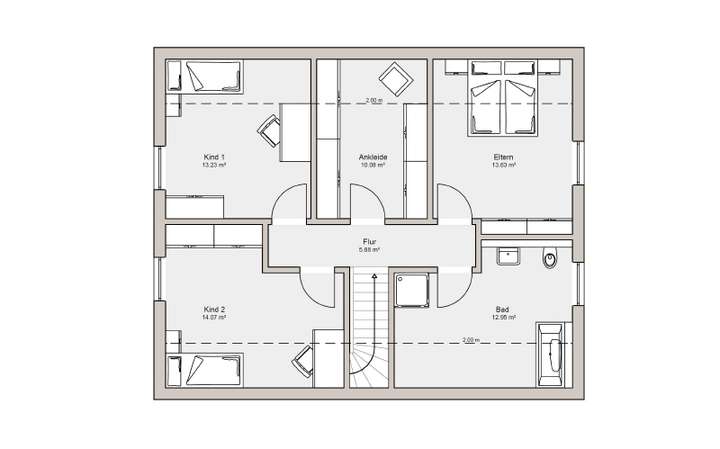
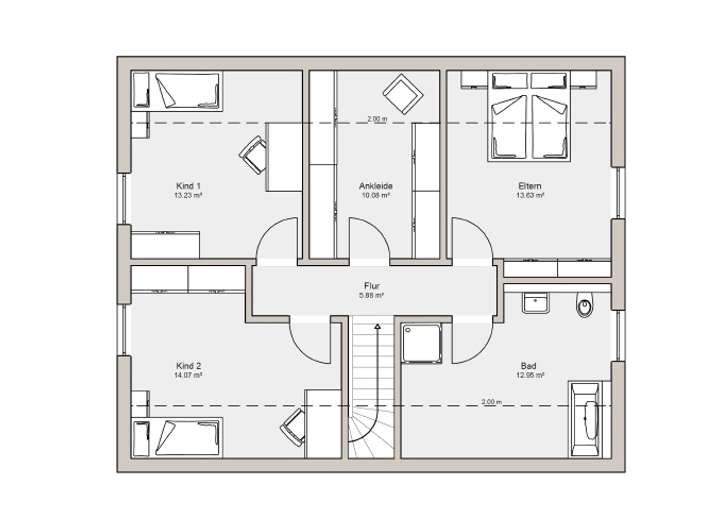
Das Dachgeschoss beherbergt zwei Kinderzimmer, ein Elternschlafzimmer und - zentral gelegen - eine Ankleide. Die persönliche Wohlfühloase: das herrlich große Familienbadezimmer, in dem sich die ganze Familie entspannen kann!
Dieses Haus wird nach Ihren individuellen Wünschen geplant und ausgestattet!
Genießen Sie den Komfort Ihres eigenen Hauses!
56357 Niederwallmenach
Die vollständige Adresse der Immobilie erhalten Sie vom Anbieter.
Auf Karte anzeigen
Die vollständige Adresse der Immobilie erhalten Sie vom Anbieter.
Finanzierungszertifikat
In nur zwei Minuten zu Ihrem persönlichen Finanzierungszertifkat.
Infos
| Haustyp | Einfamilienhaus |
|---|---|
| Wohnfläche ca. | 152 m2 |
| Grundstücksfläche | 490 m2 |
| Zimmer | 5 |
| Schlafzimmer | 5 |
| Badezimmer | 1 |
| Anzahl Garage/Stellplatz | 2 |
Kosten
| Kaufpreis |
416.200 € |
|---|---|
| Provision | Nein |
Finanzierungsrechner:
Kaufpreis:
600.000 €
Eigenkapital:
600.000 €
Monatliche Rate
0 €
Effektiver Jahreszins
0 %
Sollzinsbindung
10 Jahre
Bausubstanz & Energieausweis
| Baujahr | 2026 |
|---|---|
| Bauphase | Haus in Planung (projektiert) |
| Objektzustand | Erstbezug |
| Qualität der Austattung | Gehoben |
| Heizungsart | Wärmepumpe |
| Wesentliche Energieträger | Strom |
| Energieausweis | liegt vor |
| Energieausweistyp | Bedarfsausweis |
| Energieverbrauchskennwert | 18,8 kWh/(m²*a) |
| Energieeffizienzklasse | A+ |
18,8
kWh/(m²*a)
Energieeffizienzklasse A+
- A+
- A
- B
- C
- D
- E
- F
- G
- H
- 0
- 25
- 50
- 75
- 100
- 125
- 150
- 175
- 200
- 225
- >250
Beschreibung des Objekts
Ausstattung
5 Zimmer, Küche, Diele, Flur, Bad, WC, Ankleide, Hauswirtschaftsraum
Das gezeigte Traumhaus im Überblick:
+ Schlüsselfertiges Massivhaus im Sinne der Ausstattungsbeschreibung "Edition 25"
+ Zukunftsorientierte Energieausstattung in Form einer Luft-Wasser-Wärmepumpe und Fußbodenheizung sowie einer kontrollierten Wohnraumlüftung mit Wärmerückgewinnung
+ Inklusive Bodenplatte
Beste Markenausstattung in jedem Kern-Haus:
+ Zimmermannsmäßiger Dachstuhl aus Konstruktionsvollholz
+ Dacheindeckung mit Betondachsteinen von Braas
+ Hochwertiger Kunstharz-Außenputz für eine langlebige Fassade
+ Vollständige Badausstattung von Villeroy & Boch mit Badewanne und flacher Duschwanne sowie einer Echtglasduschkabine
+ Fliesen von Villeroy & Boch in Bad und WC
+ Haustür mit 5-fach-Sicherheitsverriegelung
+ Erstklassige Innentüren der Marke Herholz
+ Fenster mit 3-Scheiben-Wärmeschutzverglasung und Rollläden
+ Stahl-Holz-Treppe mit individueller Farbgestaltungsmöglichkeit
+ Vollständige und überdurchschnittliche Elektroausstattung inklusive Klingelanlage und Netzwerkdosen
+ Rauchmelder für Ihre Sicherheit
+ Alle Leistungen aus einer Hand
+ Alle Planungs- und Architektenleistungen
+ Einsatz regionaler Handwerksbetriebe
+ Baubegleitende 5-Phasen-TÜV-Prüfung und Blower-Door-Test
+ Individuelle Anpassung auf Ihre Bedürfnisse
+ Auf Wunsch mit Keller erhältlich
+ Auf Wunsch mit weiteren Energietechniken erhältlich
Lage
Das Baugrundstück befindet sich im Neubaugebiet, welches Sie über ein Bewerberverfahren bei der Gemeinde erwerben können, in Niederwallmenach, einer Ortsgemeinde im Rhein-Lahn-Kreis in der Nähe des Forstbachtales. Sie liegt im Taunus, nur wenige Kilometer von der Loreley entfernt und gehört der Verbandsgemeinde Nastätten an.
Von Niederwallmenach aus fährt man in gut einer halben Stunde jeweils nach Koblenz oder nach Wiesbaden. Die Gemeinde ist eingebettet in eine intakte Landschaft, die zum Erholen einlädt. Der Ort selbst besticht durch schöne Fachwerkhäuser sowie die alte Kirche im Ortskern.
Niederwallmenach zeichnet sich neben einer sehr hohen Gewerbedichte durch ein reges Vereinsleben aus. Die angebotenen Aktivitäten sind für alle Altersstufen vielfältig vorhanden. Abgerundet wird das ganze durch eine Vielzahl von Veranstaltungen über das ganze Jahr.
Die Kindertagesstätte mit Kleinkindergruppe bietet Eltern eine attraktive Vor-Ort-Alternative der Betreuung, bei der sogar das Mittagessen nicht fehlt. Spielplätze und ein umfangreiches Vereins- sowie Sportangebot sorgen für eine aktive Freizeitgestaltung.
Niederwallmenach gehört zum Blauen Ländchen, welches eine Vielzahl an Wander- und Radwegen bietet.
Sonstige Angaben
Kern-Haus baut individuelle und massive Architektenhäuser zu einem attraktiven Preis-Leistungs-Verhältnis – und das bereits mit einer Erfahrung seit 1980. Bei Kern-Haus erhalten Sie unter anderem 10 Jahre Gewährleistung auf die wesentlichen Bauleistungen, bis zu 24 Monate Preissicherheit sowie eine dokumentierte 5-Phasen-TÜV-Prüfung während der Bauphase. Jedes Kern-Haus als Effizienzhaus 40 ist bereits QNG-zertifiziert durch die Deutsche Gesellschaft für nachhaltiges Bauen (DGNB).
40 Jahre Expertise für das massive, energieeffiziente Bauen: Kern-Haus realisiert Massivhäuser in Ziegel, Bims, Porenbeton oder Stahlbeton (DuoTherm).
Kern-Haus setzt auf eine hohe Bauqualität der Handwerker und auf eine große Auswahl starker Marken. So verwendet Kern-Haus beim Bau Ihres Hauses nur hochwertige Markenprodukte renommierter Hersteller – wie etwa Produkte von Villeroy & Boch.
Preise und Auszeichnungen von Kern-Haus:
- German Brand Award in den Jahren 2018 und 2021
- Hausbau Design Award: Sieger in den Jahren 2017, 2018, 2019, 2020, 2021, 2022 und 2023
- Deutscher Traumhauspreis: Sieger in den Jahren 2014, 2015, 2016 und 2018 und Silber 2017, 2020 und 2021
- Mittelstandspreis "Top 100" in den Jahren 2014, 2016, 2018, 2020 und 2022
- German Design Award im Jahr 2018
Weitere Informationen
Der gezeigte Preis versteht sich inklusive Grundstück und exklusive der Baunebenkosten.
Grundriss
Grundriss Erdgeschoss
>
>
Grundriss Dachgeschoss
>
>
Adresse
56357 Niederwallmenach
Interessante Orte
Preis- und Lageinformationen
Preistrend für Bestandsimmobilien in Niederwallmenach