Modernes Einfamilienhaus mit Wohlfühlcharakter in Bürstadt-Bobstadt
Dieses gepflegte Einfamilienhaus aus dem Jahr 2016 bietet modernen Wohnkomfort auf ca. 118 m² Wohnfläche und steht auf einem 274 m² großen Grundstück in ruhiger Wohnlage von Bürstadt-Bobstadt. Das Haus überzeugt durch seine durchdachte Raumaufteilung, helle Räume und eine zeitgemäße Ausstattung – ideal für Familien, die ein gemütliches Zuhause mit Platz zum Entfalten suchen.
Aufteilung im Detail
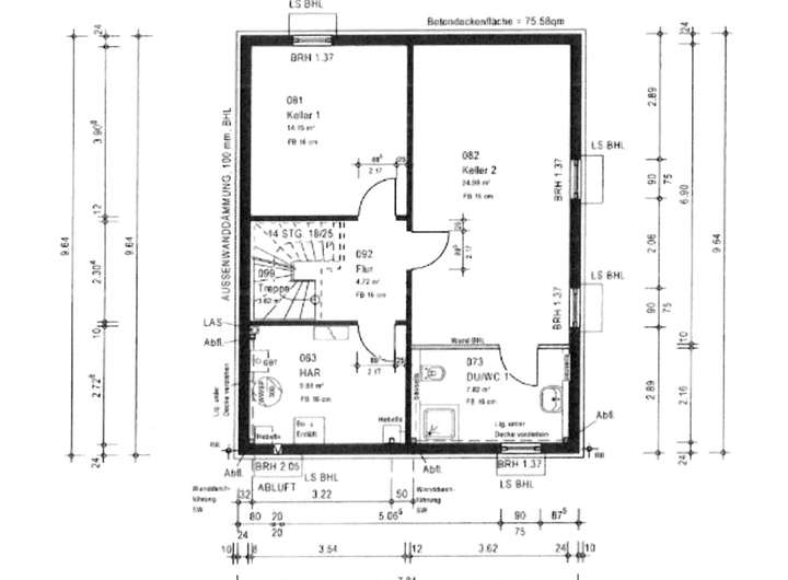
Kellergeschoss:
Neben dem Hausanschlussraum stehen Ihnen zwei Kellerräume sowie ein Duschbad mit WC zur Verfügung. Die Räume eignen sich ideal als Homeoffice, Gästezimmer oder Hobbybereich und bieten vielseitige Nutzungsmöglichkeiten.
Erdgeschoss:
Einladend empfängt Sie die Diele mit Flur, von der aus Sie in den großzügigen Wohn- und Essbereich gelangen. Große Fenster sorgen für viel Tageslicht und schaffen eine freundliche Atmosphäre. Die angrenzende Küche ist modern geschnitten und bietet Platz für gemeinsame Kochmomente. Ein Hauswirtschaftsraum sowie ein Gäste-WC runden das Raumangebot auf dieser Ebene ab. Vom Wohnzimmer aus gelangen Sie direkt auf die Terrasse mit Zugang zum pflegeleicht angelegten Garten – perfekt für entspannte Stunden im Freien.
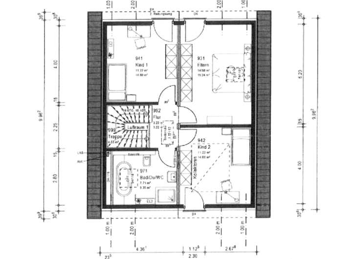
Dachgeschoss:
Im Obergeschoss befinden sich ein großzügiges Schlafzimmer, zwei Kinderzimmer sowie ein Tageslichtbad mit Badewanne und WC. Die durchdachte Aufteilung schafft Rückzugsorte für die ganze Familie.
Außenbereich:
Zum Haus gehören zwei Stellplätze, die Ihnen komfortables Parken direkt vor der Haustür ermöglichen.
Fakten im Überblick:
Baujahr: 2016
Wohnfläche: ca. 118 m²
Grundstück: 274 m²
Zimmer: 5
Bäder: 2 + Gäste-WC
Nutzfläche im Keller: vielseitig verwendbar
2 Stellplätze
Terrasse & Garten
Lage:
Das Haus befindet sich im beliebten Bürstädter Ortsteil Bobstadt, einer ruhigen und familienfreundlichen Wohngegend. Einkaufsmöglichkeiten, Schulen, Kindergärten und öffentliche Verkehrsanbindungen sind schnell erreichbar. Die Nähe zu Bürstadt und Lampertheim bietet eine hervorragende Infrastruktur, während Sie dennoch von einem idyllischen Wohnumfeld profitieren.
Hinweis:
Aus Diskretionsgründen können derzeit keine Innenaufnahmen veröffentlicht werden. Diese werden jedoch im Laufe der Vermarktung aktualisiert und ergänzt, sobald es die Situation erlaubt.
Familienhaus in ruhiger Lage
68642 Bürstadt
Die vollständige Adresse der Immobilie erhalten Sie vom Anbieter.
Auf Karte anzeigen
Die vollständige Adresse der Immobilie erhalten Sie vom Anbieter.
Finanzierungszertifikat
In nur zwei Minuten zu Ihrem persönlichen Finanzierungszertifkat.
Infos
| Haustyp | Einfamilienhaus |
|---|---|
| Wohnfläche ca. | 118 m2 |
| Grundstücksfläche | 274 m2 |
| Zimmer | 4 |
Kosten
| Kaufpreis |
509.000 € |
|---|---|
| Provision |
3,57 |
Finanzierungsrechner:
Kaufpreis:
600.000 €
Eigenkapital:
600.000 €
Monatliche Rate
0 €
Effektiver Jahreszins
0 %
Sollzinsbindung
10 Jahre
Bausubstanz & Energieausweis
| Baujahr | 2016 |
|---|---|
| Objektzustand | Gepflegt |
| Heizungsart | Zentralheizung |
| Wesentliche Energieträger | Gas |
| Energieausweis | liegt vor |
| Energieausweistyp | Bedarfsausweis |
| Energieverbrauchskennwert | 98,0 kWh/(m²*a) |
| Energieeffizienzklasse | C |
98,0
kWh/(m²*a)
Energieeffizienzklasse C
- A+
- A
- B
- C
- D
- E
- F
- G
- H
- 0
- 25
- 50
- 75
- 100
- 125
- 150
- 175
- 200
- 225
- >250
Beschreibung des Objekts
Adresse
68642 Bürstadt
Interessante Orte
Preis- und Lageinformationen
Preistrend für Bestandsimmobilien in Bürstadt