Wenn Sie die Diele des Architektenhauses Allea betreten, haben Sie Blick in den großen Wohn- und Essbereich. Durch bodentiefe Schiebeelemente ist dieser Bereich lichtdurchflutet und Sie können sowohl vom Sofa als auch vom Esstisch in den Garten schauen. Architektonisches Highlight des Familienhauses ist der Erker mit drei Fensterelementen, in dem das Esszimmer untergebracht ist. Die offene Küche grenzt direkt an das Esszimmer, ist aber auch von der Diele aus betretbar. Insgesamt umfassen Küche und Wohn-Essbereich mehr als 46 Quadratmeter. Im Erdgeschoss befinden sich zudem ein Home-Office, eine Garderobe sowie ein WC.
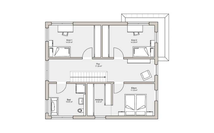
Über eine geradläufige Treppe erreichen Sie das Dachgeschoss. Gemütlich ist die Leseecke, in der Sie mit einem schönen Buch sitzen und durch das bodentiefe Glaselement nach draußen in den Garten schauen können. Der Flur wird durch zwei bodentiefe Fensterelemente auf beiden Seiten des Hauses lichtdurchflutet. Vom Flur aus haben Sie Zugang in die Zimmer des Dachgeschosses. Die beiden Kinderzimmer sind mit rund 14 Quadratmetern gleich groß. Das Elternschlafzimmer verfügt über eine eigene Ankleide. Das Familienbadezimmer besitzt neben einer Dusche auch eine Badewanne und ist rund zehn Quadratmeter groß. Hingucker auf der Eingangsseite ist das große Fensterelement über der Tür, das den Flur im Dachgeschoss lichtdurchflutet.
Dieses Haus wird nach Ihren individuellen Wünschen geplant und ausgestattet!
Herzmomente im neuen Eigenheim!
56355 Oberbachheim
Die vollständige Adresse der Immobilie erhalten Sie vom Anbieter.
Auf Karte anzeigen
Die vollständige Adresse der Immobilie erhalten Sie vom Anbieter.
Finanzierungszertifikat
In nur zwei Minuten zu Ihrem persönlichen Finanzierungszertifkat.
Infos
| Haustyp | Einfamilienhaus |
|---|---|
| Wohnfläche ca. | 154 m2 |
| Grundstücksfläche | 675 m2 |
| Zimmer | 5 |
| Schlafzimmer | 4 |
| Badezimmer | 1 |
| Anzahl Garage/Stellplatz | 2 |
Kosten
| Kaufpreis |
453.200 € |
|---|---|
| Provision | Nein |
Finanzierungsrechner:
Kaufpreis:
600.000 €
Eigenkapital:
600.000 €
Monatliche Rate
0 €
Effektiver Jahreszins
0 %
Sollzinsbindung
10 Jahre
Bausubstanz & Energieausweis
| Baujahr | 2026 |
|---|---|
| Bauphase | Haus in Planung (projektiert) |
| Objektzustand | Erstbezug |
| Qualität der Austattung | Gehoben |
| Heizungsart | Wärmepumpe |
| Wesentliche Energieträger | Strom |
| Energieausweis | liegt vor |
| Energieausweistyp | Bedarfsausweis |
| Energieverbrauchskennwert | 20,1 kWh/(m²*a) |
| Energieeffizienzklasse | A+ |
20,1
kWh/(m²*a)
Energieeffizienzklasse A+
- A+
- A
- B
- C
- D
- E
- F
- G
- H
- 0
- 25
- 50
- 75
- 100
- 125
- 150
- 175
- 200
- 225
- >250
Beschreibung des Objekts
Ausstattung
5 Zimmer, offene Küche, Diele, WC, Garderobe, Bad, Flur, Leseecke, Ankleide, Hauswirtschaftsraum
Das gezeigte Traumhaus im Überblick:
+ Schlüsselfertiges Massivhaus im Sinne der Ausstattungsbeschreibung "Edition 25"
+ Zukunftsorientierte Energieausstattung in Form einer Luft-Wasser-Wärmepumpe und Fußbodenheizung sowie einer kontrollierten Wohnraumlüftung mit Wärmerückgewinnung
+ Inklusive Bodenplatte
Beste Markenausstattung in jedem Kern-Haus:
+ Zimmermannsmäßiger Dachstuhl aus Konstruktionsvollholz
+ Dacheindeckung mit Betondachsteinen von Braas
+ Hochwertiger Kunstharz-Außenputz für eine langlebige Fassade
+ Vollständige Badausstattung von Villeroy & Boch mit Badewanne und flacher Duschwanne sowie einer Echtglasduschkabine
+ Fliesen von Villeroy & Boch in Bad und WC
+ Haustür mit 5-fach-Sicherheitsverriegelung
+ Erstklassige Innentüren der Marke Herholz
+ Fenster mit 3-Scheiben-Wärmeschutzverglasung und Rollläden
+ Stahl-Holz-Treppe mit individueller Farbgestaltungsmöglichkeit
+ Vollständige und überdurchschnittliche Elektroausstattung inklusive Klingelanlage und Netzwerkdosen
+ Rauchmelder für Ihre Sicherheit
+ Alle Leistungen aus einer Hand
+ Alle Planungs- und Architektenleistungen
+ Einsatz regionaler Handwerksbetriebe
+ Baubegleitende 5-Phasen-TÜV-Prüfung und Blower-Door-Test
+ Individuelle Anpassung auf Ihre Bedürfnisse
+ Auf Wunsch mit Keller erhältlich
+ Auf Wunsch mit weiteren Energietechniken erhältlich
Lage
Das Baugrundstück befindet sich im Neubaugebiet von Oberbachheim, einer Ortsgemeinde im Rhein-Lahn-Kreis und liegt sehr zentral zu den Ballungsgebieten Koblenz, Limburg, Wiesbaden und Frankfurt.
Der idyllische Ort ist über die Landesstraße 333 gut zu erreichen.
Alle Bildungseinrichtungen, vom Kindergartenzweckverband in Gemmerich, über die Grundschule in Miehlen, bis hin zur Realschule Plus, integrierten Gesamtschule und mehrere Gymnasien, stehen den Kindern und Jugendlichen im Umkreis zur Verfügung.
Das Vereinsleben wird von Ortsvereinen, einem gemischten Chor, der Gymnastikgruppe und von Freizeitfreunden gestaltet.
Das Mittelrheintal mit seiner sagenumwobenen Loreley, dem Rheinsteig als Wanderziel, mehreren landschaftlich reizvollen Rad- und Wanderwegen, sind in unmittelbarer Nähe und bieten ein abwechslungsreiches Freizeitangebot.
Oberbachheim ist der ideale Ort, um dem Stadttrubel zu entfliehen und die Vorzüge des Landlebens zu genießen!
Sonstige Angaben
Kern-Haus baut individuelle und massive Architektenhäuser zu einem attraktiven Preis-Leistungs-Verhältnis – und das bereits mit einer Erfahrung seit 1980. Bei Kern-Haus erhalten Sie unter anderem 10 Jahre Gewährleistung auf die wesentlichen Bauleistungen, bis zu 24 Monate Preissicherheit sowie eine dokumentierte 5-Phasen-TÜV-Prüfung während der Bauphase. Jedes Kern-Haus als Effizienzhaus 40 ist bereits QNG-zertifiziert durch die Deutsche Gesellschaft für nachhaltiges Bauen (DGNB).
40 Jahre Expertise für das massive, energieeffiziente Bauen: Kern-Haus realisiert Massivhäuser in Ziegel, Bims, Porenbeton oder Stahlbeton (DuoTherm).
Kern-Haus setzt auf eine hohe Bauqualität der Handwerker und auf eine große Auswahl starker Marken. So verwendet Kern-Haus beim Bau Ihres Hauses nur hochwertige Markenprodukte renommierter Hersteller – wie etwa Produkte von Villeroy & Boch.
Preise und Auszeichnungen von Kern-Haus:
- German Brand Award in den Jahren 2018 und 2021
- Hausbau Design Award: Sieger in den Jahren 2017, 2018, 2019, 2020, 2021, 2022 und 2023
- Deutscher Traumhauspreis: Sieger in den Jahren 2014, 2015, 2016 und 2018 und Silber 2017, 2020 und 2021
- Mittelstandspreis "Top 100" in den Jahren 2014, 2016, 2018, 2020 und 2022
- German Design Award im Jahr 2018
Weitere Informationen
Der gezeigte Preis versteht sich inklusive Grundstück und exklusive der Baunebenkosten.
Grundriss
Grundriss Erdgeschoss
>
>
Grundriss Dachgeschoss
>
>
Adresse
56355 Oberbachheim
Interessante Orte
Preis- und Lageinformationen
Preistrend für Bestandsimmobilien in Oberbachheim