Dieses gepflegte Mehrfamilienhaus, das wir seit 2019 im Rahmen unserer Hausverwaltung betreuen und gemeinsam mit Mettner Immobilien erfolgreich neu vermieten, überzeugt durch seinen guten Gesamtzustand sowie durch seine solide Bauweise.
Das Gebäude setzt sich aus einem in den 1970er-Jahren umfassend sanierten Altbaus (Vorderhaus) mit 3 Wohneinheiten sowie einem großzügigen Anbau (Hinterhaus) mit weiteren 5 Wohneinheiten zusammen. Das Objekt umfasst insgesamt 8 Wohneinheiten mit einer Wohnfläche von insgesamt 602,85 m². Aktuell sind alle Wohnung, zuverlässig und zum Teil bereits langjährig, vermietet.
Zusätzlich befindet sich im Kellergeschoss eine Souterrain-Wohnung mit ca. 66 m², die mangels Genehmigung als Wohnraum nicht in der angegebenen Wohnfläche enthalten ist. Laut Auskunft der mit der Prüfung beauftragten Architektin wäre eine Genehmigung eventuell möglich.
Im südlichen Teil des Grundstücks steht den Bewohnern ein gemeinschaftlich nutzbarer Gartenbereich zur Verfügung.
Unterhalb des Balkons der Erdgeschosswohnung im Neubau befindet sich ein überdachter Fahrradabstellplatz. Von hier aus gelangt man auch direkt in den Kellerbereich sowie in die Waschküche.
Der zur Straßenseite gelegene Zugangsbereich ist vollständig gepflastert Hier befinden sich auch 2 Garagen mit Anbau, der von der Gartenseite her als Abstellraum bzw. von der Straßenseite als Fahrradraum genutzt wird. Der Stellplatz ist von der Rheinstraße aus zugänglich.
Die Liegenschaft präsentiert sich insgesamt in einem ansprechenden und gepflegten Erscheinungsbild.
Vermietete Wohneinheiten im Überblick
--------------------------------------
WE 1 – EG rechts – Neubau – ca. 165,44 m²
-------
Großzügige 5-Zimmer-Wohnung mit separater Küche, zwei Tageslichtbädern und zwei Eingängen – potenziell teilbar in zwei Einheiten.
Mietverhältnis seit 2014.
WE 2 – EG links – Altbau – ca. 55,58 m²
-------
Helle 2,5-Zimmer-Wohnung mit separater Küche und Bad. 2019 umfassend saniert, inkl. Fenstertausch.
Mietverhältnis seit 2021.
WE 3 – 1. OG rechts – Altbau – ca. 40 m²
--------
Perfekte Singlewohnung. Leider erhielt die beauftragte Architektin keinen Zugang zum Apartment.
Mietverhältnis seit 2016.
WE 4 – 1. OG rechts – Neubau – ca. 122,31 m²
--------
Perfekt geschnittene 3-Zimmer-Wohnung mit separater Küche, Tageslichtbad, Gäste-WC und Balkon. Der Balkonbelag wurde 2020 erneuert.
Mietverhältnis seit 2008.
WE 5 – 1. OG links – Altbau – ca. 64,12 m²
-------
Charmante 2,5-Zimmer-Wohnung mit separater Küche, Tageslichtbad und Balkon. Balkonbelag und Geländer wurden 2020 erneuert. Eine Sanierung des Bades wäre auch aufgrund der zugesetzten Wasserleitung empfehlenswert. Mietverhältnis seit 1996.
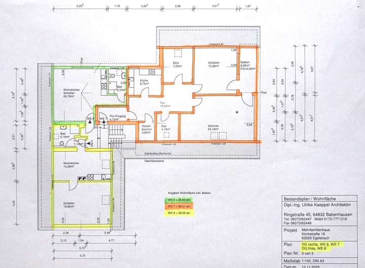
WE 6 – DG rechts – Neubau – ca. 28,95 m²
-------
1-Zimmer-Wohnung mit integrierter Küche und separatem Bad. Die Fenster wurden 2019 erneuert.
Mietverhältnis seit 2000.
WE 7 – DG rechts – Neubau – ca. 86,51 m²
-------
Gut geschnittene 3-Zimmer-Dachgeschosswohnung mit separater Küche, Tageslichtbad und Balkon.
2024 wurde die Wohnung (bis auf das Bad) für über 42.000 € komplett saniert. Mietverhältnis seit 2024.
WE 8 – DG links – Altbau – ca. 39,56 m²
--------
Gepflegte Single-Dachgeschosswohnung mit 1 Wohnraum, separater Wohnküche und modernem Duschbad.
Mietverhältnis seit 2021.
Im Kellergeschoss befindet sich eine 1-Zimmer-Souterrainwohnung mit separater Küche und Duschbad mit ca. 66 qm. Da für diese Einheit bislang keine Genehmigung beantragt wurde, ist sie nicht in der offiziellen Wohnflächenberechnung enthalten. Eine Umnutzung zu regulärem Wohnraum könnte aufgrund der geänderten Hessischen Bauordnung künftig möglich sein. Ggfls. sind hierfür weitere Umbaumaßnahmen erforderlich.
Gepflegtes Mehrfamilienhaus mit 8 vermieteten Wohnungen in zentraler Lage von Egelsbach - Festpreis!
Kirchstraße 18,
63329 Egelsbach
Auf Karte anzeigen
Finanzierungszertifikat
In nur zwei Minuten zu Ihrem persönlichen Finanzierungszertifkat.
Infos
| Etagenzahl | 3 |
|---|---|
| Wohnfläche ca. | 602 m2 |
| Nutzfläche | 150 m2 |
| Grundstücksfläche | 751 m2 |
| Zimmer | 21 |
| Badezimmer | 9 |
| Anzahl Garage/Stellplatz | 3 |
Kosten
| Kaufpreis |
1.300.000 € |
|---|---|
| Provision |
5,95 % Die Vermittlungsprovision beträgt für den Käufer 5,95 % des Kaufpreises inkl. MwSt. und ist fällig mit der Beurkundung des notariellen Kaufvertrages. Mit Ihrer Anfrage stimmen Sie der genannten Provisionsvereinbarung zu. |
| Mieteinnahmen | 4.650 € |
Finanzierungsrechner:
Kaufpreis:
600.000 €
Eigenkapital:
600.000 €
Monatliche Rate
0 €
Effektiver Jahreszins
0 %
Sollzinsbindung
10 Jahre
Bausubstanz & Energieausweis
| Baujahr | 1974 |
|---|---|
| Bauphase | Haus fertig gestellt |
| Objektzustand | Gepflegt |
| Qualität der Austattung | Normal |
| Heizungsart | Zentralheizung |
| Wesentliche Energieträger | Öl |
| Energieausweis | liegt vor |
| Energieausweistyp | Verbrauchsausweis |
| Energieverbrauchskennwert | 124,0 kWh/(m²*a) |
| Energieeffizienzklasse | D |
124,0
kWh/(m²*a)
Energieeffizienzklasse D
- A+
- A
- B
- C
- D
- E
- F
- G
- H
- 0
- 25
- 50
- 75
- 100
- 125
- 150
- 175
- 200
- 225
- >250
Beschreibung des Objekts
Ausstattung
Ausstattung & Modernisierungen
---------------------------------------------
Die Heizungen wurden beide in den letzten Jahren erneuert:
• Öl-Brennwertheizung Vorderhaus (Altbau): Erneuert im Jahr 2015
• Öl-Brennwertheizung Hinterhaus (Neubau): Erneuert im Jahr 2020
Die vorliegenden Energieausweise weisen folgende Verbrauchswerte aus:
• Vorderhaus (Altbau): 124 kWh/(m²·a)
• Hinterhaus (Neubau): 152 kWh/(m²·a)
Weitere Modernisierungen umfassen:
--------------------------------------------------
• 2019: Austausch der Haustür samt Beleuchtung
• 2020: Erneuerung der Briefkasten- und Sprechanlage
Im Keller wurde aufgrund festgestellter Feuchtigkeit eine betroffene Außenwand fachgerecht trockengelegt und instandgesetzt (Kosten: 4.762 €, siehe pinkfarbene Markierung im Grundriss).
Kürzlich entstand ein Wasserschaden im Keller durch eine undichte Leitung. Die Ursache wurde lokalisiert und behoben. Die erforderliche Trocknung wurde beauftragt.
Lage
Das gepflegte Mehrfamilienhaus befindet sich in ruhiger Wohnlage im Ortskern von Egelsbach. Das Zentrum mit zahlreichen Einkaufsmöglichkeiten, Dienstleistungen und gastronomischen Angeboten ist in wenigen Gehminuten bequem erreichbar. Schulen, Kindertagesstätten sowie verschiedene Freizeit- und Sporteinrichtungen befinden sich ebenfalls in unmittelbarer Nähe bzw. im direkten Umfeld.
Die Anbindung an den öffentlichen Nahverkehr ist hervorragend: Die S-Bahn-Station Egelsbach liegt nur rund 1 km entfernt und ist in etwa 10–15 Minuten fußläufig erreichbar. Auch die regionalen und überregionalen Verkehrsachsen sind schnell zugänglich – die A3 sowie die A661 erreicht man in wenigen Fahrminuten, das Frankfurter Kreuz in etwa 20 Minuten.
Egelsbach, unter anderem bekannt durch seinen regionalen Flugplatz, ist eine lebendige und stetig wachsende Gemeinde im Herzen des Rhein-Main-Gebiets. In den vergangenen Jahren hat sich der Standort zu einem attraktiven Wohn- und Gewerbegebiet entwickelt, das eine hohe Lebensqualität mit hervorragender Infrastruktur verbindet.
Sonstige Angaben
Haben wir Ihr Interesse geweckt?
-------------------------------------------
Dann senden Sie uns bitte eine Kontaktanfrage über Immoscout, um einen Besichtigungstermin zu vereinbaren. Für Rückfragen stehen wir Ihnen selbstverständlich auch telefonisch zur Verfügung.
Wir bearbeiten alle Anfragen in der Reihenfolge ihres Eingangs und bieten Ihnen gerne kurzfristig einen Besichtigungstermin an. Auf Wunsch senden wir Ihnen weitere Objektunterlagen, wie z. B. den Energieausweis, zu.
Wichtige Hinweise
-------------------------
Unsere Exposés sind streng vertraulich. Eine Weitergabe an Dritte ist ohne unsere ausdrückliche Zustimmung nicht gestattet. Jede unbefugte Weitergabe unserer Verkaufsangebote verpflichtet zum Schadenersatz in Höhe der vollen Maklerprovision.
Vermittlungsprovision
------------------------------
Der Maklervertrag mit uns kommt durch die Inanspruchnahme unserer Maklertätigkeit zustande – z.B. durch Ihre Kontaktaufnahme über Immoscout oder den Erhalt unseres Exposés. Mit Ihrer Anfrage erkennen Sie die nachstehende Provisionsvereinbarung an. Die Maklercourtage beträgt für den Käufer 5,00 % des Kaufpreises zuzüglich gesetzlicher Umsatzsteuer (derzeit insgesamt 5,95 % inkl. MwSt.). Die Provision ist mit Abschluss des notariellen Kaufvertrages fällig.
Haftungsausschluss
---------------------------
Alle Angaben zum Verkaufsobjekt – sowohl in der Anzeige als auch im Exposé – beruhen auf den Informationen unseres Auftraggebers. Für deren Vollständigkeit, Richtigkeit und Aktualität übernehmen wir keine Gewähr.
Hinweis zum Datenschutz
-----------------------------------
Mit Absendung Ihrer Anfrage stimmen Sie der kurzfristigen Speicherung Ihrer Daten zum Zwecke der Vermarktung zu. Nach Abschluss des Verkaufs werden Ihre Daten umgehend gelöscht und nicht an unbeteiligte Dritte weitergegeben.
Adresse
Kirchstraße 18, 63329 Egelsbach
Interessante Orte
Preis- und Lageinformationen
Preistrend für Bestandsimmobilien in Egelsbach