Ihr neues Zuhause im Römerquartier inklusive Studio im Dachgeschoss.
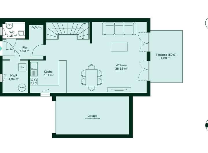
Beim Betreten des Erdgeschosses Ihres neuen Zuhauses empfängt Sie ein einladender Wohnbereich, der mit einer offenen Küche verbunden ist. Die Terrasse bietet zusätzlichen Raum für gemütliche Stunden im Freien. Praktische Räume wie ein Hauswirtschaftsraum und ein Gäste-WC sind ebenfalls vorhanden. Im Obergeschoss finden Sie das geräumige Schlafzimmer mit Ankleide und zwei Kinderzimmer. Das Badezimmer bietet sowohl Dusche als auch Badewanne. Die Dachterrasse ist ein Highlight für entspannte Stunden und bietet viel Platz zum Entspannen.
Doppelhaushälfte mit großer Dachterrasse
Helene-Lange-Straße 4,
63225 Langen (Hessen)
Auf Karte anzeigen
Finanzierungszertifikat
In nur zwei Minuten zu Ihrem persönlichen Finanzierungszertifkat.
Infos
| Haustyp | Doppelhaushaelfte |
|---|---|
| Wohnfläche ca. | 149 m2 |
| Nutzfläche | 21,18 m2 |
| Grundstücksfläche | 288,2 m2 |
| Bezugsfrei ab | Dezember 2026 |
| Zimmer | 5 |
| Schlafzimmer | 4 |
| Badezimmer | 1 |
| Garage/Stellplatz | Außenstellplatz |
| Anzahl Garage/Stellplatz | 2 |
Kosten
| Kaufpreis |
809.900 € |
|---|---|
| Provision | Nein |
Finanzierungsrechner:
Kaufpreis:
600.000 €
Eigenkapital:
600.000 €
Monatliche Rate
0 €
Effektiver Jahreszins
0 %
Sollzinsbindung
10 Jahre
Bausubstanz & Energieausweis
| Baujahr | 2025 |
|---|---|
| Objektzustand | Erstbezug |
| Qualität der Austattung | Gehoben |
| Heizungsart | Fußbodenheizung |
| Wesentliche Energieträger | Fernwärme |
Beschreibung des Objekts
Ausstattung
- große Dachterrasse
- Gartenanteil
- viel Platz im Studio
- Ankleide am Schlafzimmer
- zwei Kinderzimmer
- Bad mit Dusche und Badewanne
- Fußbodenheizung
- bodentiefe Fenster
- Handtuchheizkörper
- Schallschutzfenster
- elektrische Rollläden
Lage
Die Nähe zu Frankfurt mit direkter S-Bahn-Verbindung ist ein echtes Plus. Zum S-/RE-Bahnhof radeln Sie nur wenige Minuten. Langen selbst ist die Stadt der kurzen Wege: Supermärkte, Kitas und Schulen befinden sich in direkter Nachbarschaft. In die schöne Altstadt sind es 1,7 km.
Adresse
Helene-Lange-Straße 4, 63225 Langen (Hessen)
Interessante Orte
Preis- und Lageinformationen
Preistrend für Bestandsimmobilien in Langen (Hessen)