Die im Jahr 2013 erbaute Doppelhaushälfte befindet sich in einem sehr gepflegten und modernen Zustand – perfekt für Familien, die viel Platz und ein gemütliches Zuhause suchen. Auf rund 133 m² Wohnfläche verteilen sich insgesamt fünf helle und großzügige Zimmer. Ein Carportstellplatz ist bereits im Kaufpreis enthalten.
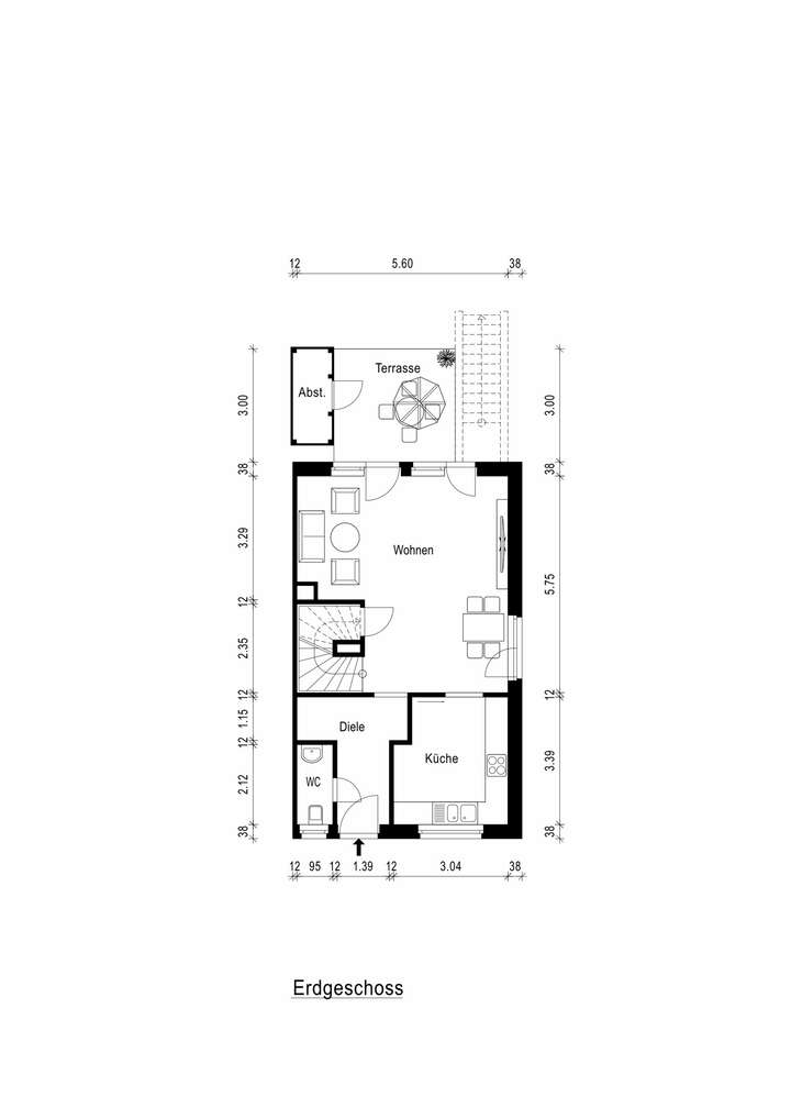
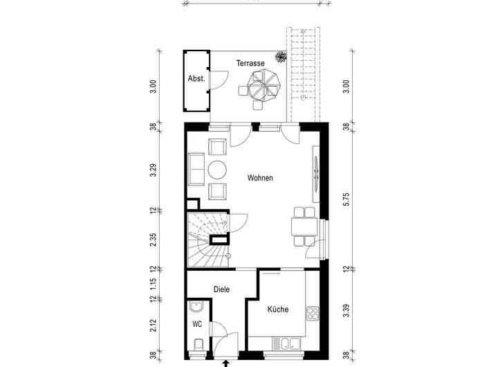
Beim Betreten des Hauses gelangen Sie in eine freundliche und geräumige Diele. Auf der linken Seite befinden sich ein stilvolles Gäste-WC sowie eine praktische Garderobe. Gehen Sie weiter geradeaus, öffnet sich das helle Wohn- und Esszimmer mit direktem Zugang zur Terrasse – ideal für gemeinsame Familienmomente. Vom Essbereich aus erreichen Sie die Küche. Die Einbauküche ist hochwertig ausgestattet und bietet alles, was man im Alltag braucht. Im Erdgeschoss sorgt eine angenehme Fußbodenheizung für Komfort, und hochwertige Fliesen runden den modernen Eindruck ab.
Über die Treppe geht es ins Obergeschoss. Dort befinden sich zwei weitere Zimmer, die flexibel als Kinderzimmer, Schlafzimmer oder Homeoffice genutzt werden können. Das Familienbad ist mit Badewanne und Dusche ausgestattet. Im Obergeschoss wurde pflegeleichtes Laminat verlegt – ideal für den Familienalltag.
Weiter oben im Dachgeschoss finden Sie zwei zusätzliche Schlafzimmer sowie einen großzügigen Galerie. Von hier aus gelangen Sie auch auf die große Dachterrasse, von der man einen wunderbaren Blick genießen kann – ein schöner Rückzugsort für Groß und Klein.
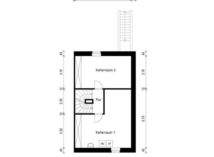
Das Kellergeschoss bietet mit rund 44 m² viel zusätzlichen Stauraum. Hier befinden sich neben dem Anschlussraum und Platz für die Waschmaschine weitere Abstellmöglichkeiten – perfekt für Hobbys, Vorräte oder Saisonartikel.
Ein besonderes Highlight ist der gepflegte Garten mit Geräteschuppen, der Kindern reichlich Platz zum Spielen bietet. Der Zugang erfolgt bequem über das Wohn- und Esszimmer. Das monatliche Wohngeld beträgt 350,00 €.
Moderne und energieeffiziente Doppelhaushälfte in beliebter Wohnlage – perfekt für Familien!
22419 Hamburg
Die vollständige Adresse der Immobilie erhalten Sie vom Anbieter.
Auf Karte anzeigen
Die vollständige Adresse der Immobilie erhalten Sie vom Anbieter.
Finanzierungszertifikat
In nur zwei Minuten zu Ihrem persönlichen Finanzierungszertifkat.
Infos
| Haustyp | Doppelhaushaelfte |
|---|---|
| Wohnfläche ca. | 133 m2 |
| Nutzfläche | 47,02 m2 |
| Grundstücksfläche | 222 m2 |
| Bezugsfrei ab | nach Absprache |
| Zimmer | 5 |
| Schlafzimmer | 4 |
| Badezimmer | 1 |
| Garage/Stellplatz | Carport |
| Anzahl Garage/Stellplatz | 1 |
Kosten
| Kaufpreis |
779.000 € |
|---|---|
| Provision |
3,00 % |
Finanzierungsrechner:
Kaufpreis:
600.000 €
Eigenkapital:
600.000 €
Monatliche Rate
0 €
Effektiver Jahreszins
0 %
Sollzinsbindung
10 Jahre
Bausubstanz & Energieausweis
| Baujahr | 2013 |
|---|---|
| Objektzustand | Neuwertig |
| Heizungsart | Fernwärme |
| Wesentliche Energieträger | Fernwärme |
| Energieausweis | liegt vor |
| Energieausweistyp | Verbrauchsausweis |
| Energieverbrauchskennwert | 65,9 kWh/(m²*a) |
| Energieeffizienzklasse | B |
65,9
kWh/(m²*a)
Energieeffizienzklasse B
- A+
- A
- B
- C
- D
- E
- F
- G
- H
- 0
- 25
- 50
- 75
- 100
- 125
- 150
- 175
- 200
- 225
- >250
Beschreibung des Objekts
Ausstattung
- KFW- Effizienzhaus 70
- kontrollierte Wohnraumbelüftung und Wärmerückgewinnung
- Wohn- und Nutzfläche ca. 180,28 m²
- vollunterkellert
- Carport
- Einbauküche
- Außenrolläden
- Fußbodenheizung
Lage
Die Immobilie befindet sich im beliebten Hamburger Stadtteil Langenhorn, einer ruhigen und grünen Wohngegend im Norden der Hansestadt. Das Umfeld zeichnet sich durch eine angenehme Mischung aus gepflegten Einfamilienhäusern und großzügigen Gärten aus. Die Straße liegt in einem gewachsenen Wohngebiet mit einer sehr angenehmen, familienfreundlichen Nachbarschaft. Zahlreiche Bäume und Grünflächen prägen das Straßenbild und sorgen für eine hohe Wohn- und Lebensqualität.
Die Infrastruktur ist hervorragend: Einkaufsmöglichkeiten für den täglichen Bedarf, Supermärkte, Bäckereien, Apotheken und verschiedene Dienstleister befinden sich in unmittelbarer Nähe. Auch Schulen, Kindergärten und Spielplätze sind schnell zu erreichen, was den Standort besonders für Familien attraktiv macht. Für die Freizeitgestaltung bieten sich die umliegenden Parks und Grünanlagen, wie der Raakmoor-Naturschutzpark, an. Hier kann man wunderbar spazieren gehen, joggen oder einfach die Natur genießen.
Die Verkehrsanbindung ist sowohl mit dem Auto als auch mit öffentlichen Verkehrsmitteln sehr gut. Eine U-Bahn-Station sowie mehrere Buslinien sind fußläufig erreichbar und ermöglichen eine bequeme und schnelle Anbindung in die Hamburger Innenstadt. Über die nahegelegene Autobahn A7 sowie die Bundesstraße B433 besteht zudem eine sehr gute Verbindung in alle Richtungen. Der Hamburger Flughafen liegt nur wenige Fahrminuten entfernt und ist dennoch nicht störend wahrnehmbar.
Insgesamt bietet die Lage eine ideale Kombination aus urbaner Nähe, ruhiger Wohnatmosphäre und hervorragender Infrastruktur – ein idealer Standort für Menschen, die das Stadtleben schätzen, ohne auf Ruhe und Natur verzichten zu wollen.
Sonstige Angaben
Besichtigungstermine vereinbaren wir ausschließlich telefonisch.
Nachdem Sie Ihre Anfrage über das Immobilienportal gestellt haben, rufen Sie uns diesbezüglich oder für weitere Informationen gerne zu den üblichen Bürozeiten an.
Alle Angaben nach bestem Wissen. Irrtum und Zwischenverkauf vorbehalten. Dieses Exposé ist eine Vorinformation, als Rechtsgrundlage gilt allein der notariell abgeschlossene Kaufvertrag.
Grundriss
Erdgeschoss
>
>
Obergeschoss
>
>
Dachgeschoss
>
>
Kellergeschoss
>
>
Adresse
22419 Hamburg
Interessante Orte
Preis- und Lageinformationen
Preistrend für Bestandsimmobilien in Langenhorn