Dieses moderne Reihenendhaus aus dem Jahr 2014 überzeugt durch seine durchdachte Architektur, energieeffiziente Bauweise und ein familienfreundliches Wohnkonzept mit viel Platz zum Wohlfühlen.
Auf einer Wohnfläche von ca. 141 m² verteilt sich ein harmonisches Raumkonzept mit insgesamt 5 Zimmern, zwei vollwertigen Bädern sowie einem Gäste-WC.
Das Haus wurde als KfW-Energieeffizienzhaus errichtet und wird umweltfreundlich über eine Pelletheizung beheizt – effizient, nachhaltig und zukunftssicher.
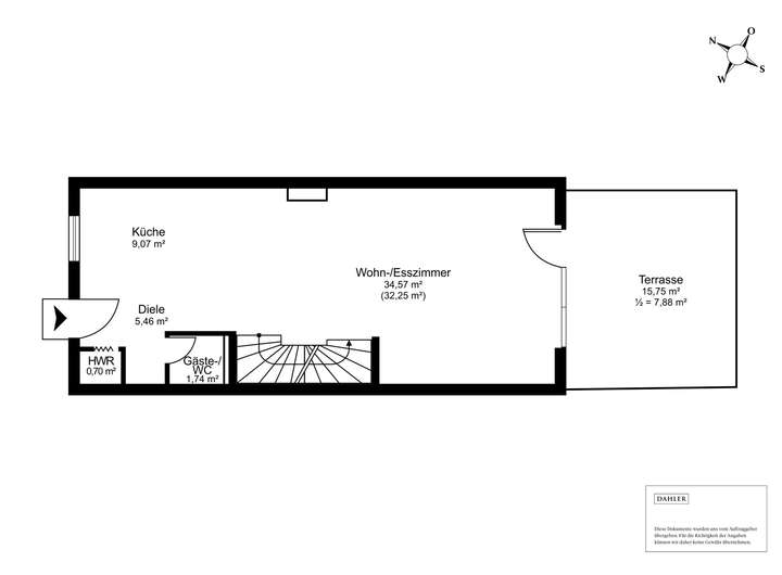
Im Erdgeschoss erwartet Sie ein großzügiger, offen gestalteter Wohn- und Essbereich mit angrenzender Wohnküche.
Die große Fensterfront sorgt für lichtdurchflutete Räume und schafft eine angenehme Verbindung zwischen Innen- und Außenbereich.
Von hier aus gelangen Sie direkt auf die sonnige Südterrasse mit elektrischer Markise und in den liebevoll angelegten Garten, der Platz zum Spielen, Entspannen und gemeinsamen Beisammensein bietet.
Ein Aufstellpool sorgt im Sommer für Abkühlung und zusätzlichen Freizeitwert. Zudem befinden sich im Erdgeschoss ein praktischer Hauswirtschaftsraum sowie ein Gäste-WC.
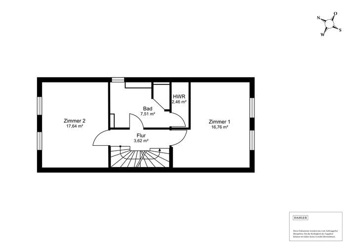
Das 1. Obergeschoss bietet zwei helle, großzügige Schlafzimmer mit großen Fenstern sowie ein komfortables Tageslichtbad mit Badewanne und Dusche.
Im 2. Obergeschoss stehen zwei weitere große Zimmer zur Verfügung, die sich flexibel als Kinderzimmer, Büro oder Gästezimmer nutzen lassen.
Ergänzt wird die Etage durch ein weiteres Badezimmer mit Dusche, wodurch jedes Familienmitglied seinen eigenen Rückzugsbereich findet.
Der Dachboden bietet zusätzliche Stau- und Lagerfläche und kann bequem als Abstellmöglichkeit genutzt werden.
Auch im Außenbereich überzeugt das Haus mit einem gepflegten Vorgarten, einem Stellplatz direkt vor der Garage sowie einem direkten Zugang vom Garten zur Garage – praktisch und komfortabel zugleich.
Ein ideales Zuhause für Familien, die modernes Wohnen, energieeffiziente Technik und ein ruhiges, grünes Wohnumfeld schätzen – mit perfekter Verbindung von Komfort, Nachhaltigkeit und Lebensqualität.
Familienfreundliches Effizienzhaus mit Südgarten – modern, nachhaltig, gemütlich!
63073 Offenbach am Main
Die vollständige Adresse der Immobilie erhalten Sie vom Anbieter.
Auf Karte anzeigen
Die vollständige Adresse der Immobilie erhalten Sie vom Anbieter.
Finanzierungszertifikat
In nur zwei Minuten zu Ihrem persönlichen Finanzierungszertifkat.
Infos
| Haustyp | Reiheneckhaus |
|---|---|
| Wohnfläche ca. | 141 m2 |
| Grundstücksfläche | 281 m2 |
| Bezugsfrei ab | nach Vereinbarung |
| Zimmer | 5 |
| Schlafzimmer | 4 |
| Badezimmer | 2 |
| Garage/Stellplatz | Garage |
| Anzahl Garage/Stellplatz | 1 |
Kosten
| Kaufpreis |
749.000 € |
|---|---|
| Provision |
3,57 % inkl. der gesetzl. MwSt., bezogen auf den beurkundeten Kaufpreis |
Finanzierungsrechner:
Kaufpreis:
600.000 €
Eigenkapital:
600.000 €
Monatliche Rate
0 €
Effektiver Jahreszins
0 %
Sollzinsbindung
10 Jahre
Bausubstanz & Energieausweis
| Baujahr | 2014 |
|---|---|
| Objektzustand | Neuwertig |
| Heizungsart | Blockheizkraftwerk |
| Wesentliche Energieträger | Pelletheizung |
| Energieausweis | liegt vor |
| Energieausweistyp | Bedarfsausweis |
| Energieverbrauchskennwert | 65,4 kWh/(m²*a) |
| Energieeffizienzklasse | B |
65,4
kWh/(m²*a)
Energieeffizienzklasse B
- A+
- A
- B
- C
- D
- E
- F
- G
- H
- 0
- 25
- 50
- 75
- 100
- 125
- 150
- 175
- 200
- 225
- >250
Beschreibung des Objekts
Ausstattung
* Reihenendhaus mit Vorgarten und direktem Zugang zur Garage
* Baujahr 2014
* KFW Effizienzhaus
* ca. 141m² Wohnfläche
* 5 Zimmer
* Moderne Pelletheizung
* Photovoltaikmodule auf dem Dach der Garage
* Zentrale Belüftungsanlage
* 2 vollwertige Bäder + Gäste WC
* Terrasse mit Südausrichtung
* Garage + Stellplatz
* Großzügige Fenster
* hochwertiger Laminat in allen Wohnräumen
Lage
Das Reihenendhaus befindet sich in einer der beliebtesten Wohnlagen im Offenbacher Stadtteil Bieber – einem grünen, familienfreundlichen Stadtteil mit idealer Anbindung an das Rhein-Main-Gebiet.
Die ruhige Wohngegend überzeugt durch ein harmonisches Umfeld aus modernen Einfamilienhäusern, gepflegten Gärten und kurzen Wegen zu sämtlichen Einrichtungen des täglichen Lebens.
Mehrere Kindergärten und Grundschulen befinden sich in fußläufiger Entfernung, weiterführende Schulen sind im nahegelegenen Offenbacher Stadtzentrum oder im benachbarten Heusenstamm schnell erreichbar.
Supermärkte, Bäckereien, Apotheken und Banken sind im Ortskern von Bieber in wenigen Minuten zu erreichen.
Die Anbindung an den öffentlichen Nahverkehr ist hervorragend: Der S-Bahnhof Offenbach-Bieber ist bequem erreichbar und bietet mit der S1 und S2 eine direkte Verbindung nach Frankfurt oder auch Wiesbaden.
In rund 20 Minuten erreicht man die Frankfurter Innenstadt oder den Hauptbahnhof – ideal für Pendler.
Auch mit dem Auto ist man durch die nahegelegene B448 und die A3 sowie A661 bestens vernetzt.
Natur- und Sportbegeisterte kommen hier voll auf ihre Kosten.
Der nahegelegene Bieberer Wald sowie das Mainufer laden zu Spaziergängen, Fahrradtouren und Picknicks ein.
Familien genießen die gute Mischung aus Stadt- und Naturleben – ruhig und grün, aber dennoch zentral gelegen.
Gemütliche Cafés, familienfreundliche Restaurants und traditionelle Apfelweinlokale sorgen für kulinarische Abwechslung.
Die Lage vereint auf ideale Weise urbanes Leben mit naturnahem Wohnen. Familien finden hier ein sicheres, lebenswertes Umfeld mit kurzen Wegen, vielseitigen Freizeitmöglichkeiten und exzellenter Anbindung an Frankfurt und die gesamte Metropolregion Rhein-Main.
Grundriss
Erdgeschoss
>
>
Obergeschoss
>
>
Dachgeschoss
>
>
Adresse
63073 Offenbach am Main
Interessante Orte
Preis- und Lageinformationen
Preistrend für Bestandsimmobilien in Bieber