Willkommen in einem Zuhause, das mehr ist als nur ein Ort zum Leben – diese außergewöhnliche Villa verbindet Großzügigkeit, Stil und ein ganz besonderes Lebensgefühl. Eingebettet in ein ca. 656 m² großes, gepflegtes Grundstück entfaltet sich hier ein Refugium, das Raum für persönliche Entfaltung, familiäres Zusammensein und inspirierendes Arbeiten gleichermaßen bietet.
Mit einer beeindruckenden Wohnfläche von rund 300 m² verteilt auf neun Zimmer und drei Bäder eröffnet sich ein Wohnkonzept, das sowohl funktional als auch emotional begeistert. Helle, weitläufige Räume, durchdachte Grundrisse und die harmonische Verbindung von Wohn- und Lebensbereichen schaffen eine Atmosphäre, die von Anfang an zum Ankommen und Wohlfühlen einlädt.
Ob als großzügiges Familienheim, als Rückzugsort für mehrere Generationen oder als stilvolle Kombination von Wohnen und Arbeiten – dieses Haus passt sich ganz individuell den Bedürfnissen seiner Bewohner an. Zwei separate Wohneinheiten ermöglichen flexible Nutzungskonzepte und machen das Anwesen besonders attraktiv für große Familien oder Menschen, die Wert auf Privatsphäre und Unabhängigkeit legen.
Ursprünglich erbaut und 1986 mit viel Sorgfalt kernsaniert, wurde die Immobilie im Jahr 1992 durch eine architektonisch gelungene Aufstockung mit Dachausbau erweitert. Dabei wurde besonderer Wert auf eine harmonische Einbindung in das bestehende Gebäude und die Schaffung von zusätzlichem, hochwertigem Wohnraum gelegt.
Was diese Villa besonders macht, ist ihr Charakter – eine stimmige Mischung aus klassischer Eleganz, zeitloser Architektur und liebevollen Details, die sich durch das gesamte Haus ziehen. Hier lebt man nicht nur – man genießt das Leben in all seinen Facetten.
Villa der besonderen Momente – Zweifamilienidylle bei Frankfurt
63150 Heusenstamm
Die vollständige Adresse der Immobilie erhalten Sie vom Anbieter.
Auf Karte anzeigen
Die vollständige Adresse der Immobilie erhalten Sie vom Anbieter.
Finanzierungszertifikat
In nur zwei Minuten zu Ihrem persönlichen Finanzierungszertifkat.
Infos
| Haustyp | Villa |
|---|---|
| Etagenzahl | 2 |
| Wohnfläche ca. | 302 m2 |
| Nutzfläche | 138 m2 |
| Grundstücksfläche | 656 m2 |
| Bezugsfrei ab | nach Vereinbarung |
| Zimmer | 9 |
| Schlafzimmer | 4 |
| Badezimmer | 3 |
| Garage/Stellplatz | Außenstellplatz |
| Anzahl Garage/Stellplatz | 2 |
Kosten
| Kaufpreis |
1.399.000 € |
|---|---|
| Provision |
3,57 % inkl. der gesetzl. MwSt., bezogen auf den beurkundeten Kaufpreis |
Finanzierungsrechner:
Kaufpreis:
600.000 €
Eigenkapital:
600.000 €
Monatliche Rate
0 €
Effektiver Jahreszins
0 %
Sollzinsbindung
10 Jahre
Bausubstanz & Energieausweis
| Baujahr | 1972 |
|---|---|
| Objektzustand | Modernisiert |
| Heizungsart | Fußbodenheizung |
| Wesentliche Energieträger | Gas |
Beschreibung des Objekts
Ausstattung
* Villa mit 2 Wohneinheiten
* Kernsanierung 1986
* Dachausbau (Aufstockung) 1992
* Weitere Modernisierungen
* Heizungsanlage 2000
* Photovoltaikanlage mit Speicher 2020
* Edle Bodenbeläge
* Hochwertige Materialien im Innen- und Außenbereich
* Exklusive Einbauküche im Erdgeschoss
* Einbauküche im Dachgeschoss
* Hochwertiger Kamin
* Fußbodenheizung
* 3 Tageslichtbäder
* 1 Gäste-WC
* Klimatisiert Wohnbereich im Erdgeschoss
* Große überdachte Terrasse mit Verschattungsanlage
* Übergroßer Wintergarten 2005 mit Verschattungsanlage
* Wallbox für den Stellplatz
Lage
Im Herzen des wirtschaftsstarken Rhein-Main-Gebiets, eingebettet in die malerische Landschaft Südhessens und unmittelbar vor den Toren der pulsierenden Metropole Frankfurt, liegt die idyllische Stadt Heusenstamm – ein Ort, der Tradition und Moderne harmonisch vereint. Die Stadt mit rund 19.000 Einwohnern bietet auf rund 19 m² eine wohltuende Balance zwischen urbanem Leben und naturnahem Rückzugsort – etwa die Hälfte des Stadtgebiets ist von weitläufigen Wäldern und gepflegten Grünflächen geprägt. Wahrzeichen wie das barocke Schloss Schönborn verleihen Heusenstamm seinen unverwechselbaren Charakter und erzählen von einer reichen Geschichte.
Die hier angebotene Luxusvilla befindet sich in exklusiver Wohnlage im begehrten Stadtteil Rembrücken, einem gewachsenen Villenviertel mit ruhiger, familiärer Atmosphäre. Die Umgebung ist geprägt von hochwertigen Einfamilienhäusern, gepflegten Gärten und altem Baumbestand – ein echtes Refugium für Menschen mit gehobenem Anspruch. Trotz der naturnahen Lage sind die Stadtzentren von Heusenstamm und Obertshausen in nur wenigen Fahrminuten erreichbar und bieten sämtliche Annehmlichkeiten des täglichen Lebens.
Heusenstamm selbst verfügt über eine hervorragend ausgebaute Infrastruktur: Eine Vielzahl von Einkaufsmöglichkeiten – vom modernen Supermarkt bis zum charmanten Fachgeschäft – deckt den täglichen Bedarf. Ein breit aufgestelltes Gesundheitswesen mit Arztpraxen, Apotheken und weiteren medizinischen Einrichtungen garantiert eine erstklassige Versorgung. Familien profitieren von einem vielfältigen Bildungsangebot: Kindergärten, Grundschulen und weiterführende Schulen, darunter auch ein Gymnasium, befinden sich in der direkten Umgebung – eine Grundschule sowie ein Kindergarten sind bequem fußläufig erreichbar.
Freizeitliebende kommen ebenfalls auf ihre Kosten: Zahlreiche Vereine, Sportstätten und kulturelle Angebote prägen das aktive Stadtleben. Spaziergänge durch die umliegenden Felder, ausgedehnte Fahrradtouren durch kleine Waldstücke oder entspannte Stunden in einem der Naherholungsgebiete lassen den Alltag schnell vergessen und schenken Lebensqualität auf höchstem Niveau.
Auch die Verkehrsanbindung ist ideal: Die nahegelegene Buslinie X19 sowie weitere regionale Linien sorgen für eine schnelle Anbindung an die Stadtzentren. Die S-Bahn-Linie S1 ermöglicht eine direkte Verbindung nach Frankfurt – in nur ca. 15 Minuten ist der Hauptbahnhof erreicht. Autofahrer gelangen über die nahegelegene A3 ebenfalls in kürzester Zeit in die Mainmetropole oder zum internationalen Flughafen Frankfurt.
Rembrücken – ein Ort, an dem man ankommt. Und bleibt.
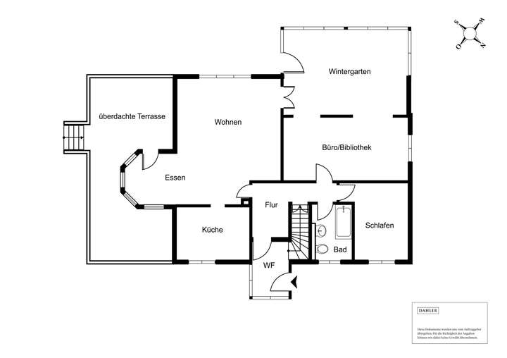
Grundriss
Erdgeschoss
>
>
Dachgeschoss
>
>
Galerie
>
>
Untergeschoss
>
>
Adresse
63150 Heusenstamm
Interessante Orte
Preis- und Lageinformationen
Preistrend für Bestandsimmobilien in Heusenstamm