Zum Verkauf steht ein großzügiges Zweifamilienhaus auf einem ca. 646 m² großen, eingewachsenen Grundstück in grüner Lage von Mainz-Finthen.
Die Immobilie umfasst ein Wohnhaus mit zwei Ebenen (Erdgeschoss und Dachgeschoss) sowie zusätzlichen Nutzflächen im Untergeschoss.
Hinzu kommt eine separate 3-Zimmer-Wohnung im Gartengeschoss.
Beide Einheiten sind ebenerdig zugänglich und verfügen über eigene Zugänge und separate Außenbereiche.
Zusätzlich stehen ein Carport unmittelbar am Grundstück und eine Garage in ca. 50 m fußläufiger Entfernung zur Verfügung.
*Wohnhaus*
Der Zugang erfolgt über einen verglasten Eingangsbereich, der in eine großzügige Diele führt. Von hier erreicht man das Gäste-WC, die Küche sowie den Essbereich.
Der Essbereich hat zudem Zugang zum Wintergarten.
Von Diele und Essbereich führen zwei Stufen hinunter in den leicht tieferliegenden Wohnbereich. Der raumhohe Kamin mit vorgelagerter Sitzecke prägt die gesamte Wohnebene, trennt Ess- und Wohnbereich und wirkt als skulpturales Unikat, das dem Raum seinen besonderen Charakter verleiht.
Der Wohnbereich verfügt über breite Fenster- und Türflächen mit direktem Zugang zur Terrasse und in den eingewachsenen Garten.
Ein weiterer Flur erschließt zwei Zimmer sowie ein Tageslichtbad mit Dusche.
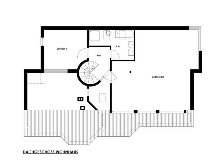
Im Dachgeschoss befinden sich ein weiteres Zimmer sowie ein großzügig ausgebautes Dachstudio mit breiter Schleppgaube und weitläufiger Fensterfront.
Von hier aus eröffnet sich ein weiter Blick über Finthen und ins Grüne. Ergänzt wird das Dachgeschoss durch ein Tageslichtbad mit Doppelwaschbecken, Badewanne und einer großen Dusche mit Dampffunktion.
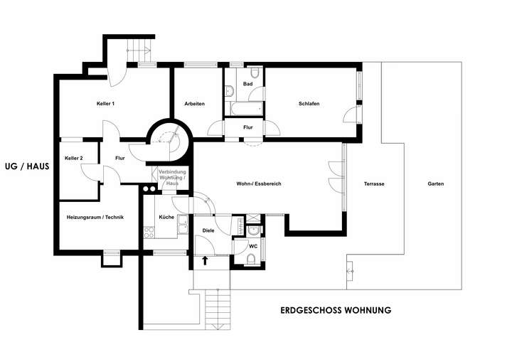
Im Untergeschoss stehen insgesamt ca. 42,86 m² Nutzfläche zur Verfügung, aufgeteilt in zwei Abstellräume, den Heizungsraum sowie einen Flur.
*Separate Wohnung*
Die Wohnung umfasst drei Zimmer, eine Küche und ein Tageslichtbad mit Badewanne sowie ein Gäste-WC.
Schlaf- und Wohnzimmer verfügen über einen direkten Zugang zur Terrasse mit angrenzendem Garten. Ein Arbeits-zimmer rundet den Grundriss ab.
Im Untergeschoss besteht eine interne Verbindung zwischen Haupthaus und Einliegerwohnung, wodurch sich die Immobilie flexibel auch als einheitliches Wohnkonzept nutzen lässt.
Dank dieser Verbindung ist eine Nutzung möglich:
• als durchgehende Wohneinheit
• mit vermieteter Wohnung zur Unterstützung der Finanzierung
• als komfortable Lösung für Wohnen und Arbeiten unter einem Dach
- Startseite
- ...
- Immobilienportal
- *Provisionsfrei*Ein echtes 2-Familienhaus mit unverwechselbarem Kamin-Unikat &idyllischem Grundstück
*Provisionsfrei*Ein echtes 2-Familienhaus mit unverwechselbarem Kamin-Unikat &idyllischem Grundstück
Rosmerthastraße xx,
55126 Mainz
Auf Karte anzeigen
Finanzierungszertifikat
In nur zwei Minuten zu Ihrem persönlichen Finanzierungszertifkat.
- Zur Vorlage beim Makler oder Verkäufer
- Vorteile gegenüber anderen Kaufinteressenten
- Kostenlos und unverbindlich
Infos
| Etagenzahl | 3 |
|---|---|
| Wohnfläche ca. | 244 m2 |
| Nutzfläche | 42,86 m2 |
| Grundstücksfläche | 646 m2 |
| Bezugsfrei ab | freigestellt |
| Zimmer | 8 |
| Schlafzimmer | 6 |
| Badezimmer | 3 |
| Garage/Stellplatz | Garage |
| Anzahl Garage/Stellplatz | 1 |
Kosten
| Kaufpreis |
978.000 € |
|---|---|
| Provision | Nein |
Finanzierungsrechner:
Kaufpreis:
600.000 €
Eigenkapital:
600.000 €
Monatliche Rate
0 €
Effektiver Jahreszins
0 %
Sollzinsbindung
10 Jahre
Bausubstanz & Energieausweis
| Baujahr | 1977 |
|---|---|
| Heizungsart | Fußbodenheizung |
| Wesentliche Energieträger | Gas |
| Energieausweis | liegt vor |
| Energieausweistyp | Bedarfsausweis |
| Energieverbrauchskennwert | 143,5 kWh/(m²*a) |
| Energieeffizienzklasse | E |
143,5
kWh/(m²*a)
Energieeffizienzklasse E
- A+
- A
- B
- C
- D
- E
- F
- G
- H
- 0
- 25
- 50
- 75
- 100
- 125
- 150
- 175
- 200
- 225
- >250
Beschreibung des Objekts
Ausstattung
• Bodenbeläge: Fliesen, Laminat, Parkett, Vinyl sowie ursprünglicher Stein-/Spaltklinkerboden
• Wände überwiegend mit grobem Kellenwurfputz, teils Holzverkleidung
• Fenster, Haustür und Wintergarten überwiegend in hochwertiger Aluminium-Ausführung
• Vorwiegend elektrische Außenrollläden
• Elektrischer Sonnenschutz im Wintergarten
• Außenmarkisen
• Kamin
• Solaranlage zur Warmwasserunterstützung
• Gas-Brennwertheizung (Wärmeerzeuger 2019)
• Fußbodenheizung (im DG ergänzt durch Stein-Elektroheizkörper)
• Regenwassernutzung für WC-Spülung
• Schuppen und zwei Gartenhäuser
Lage
Das Haus liegt in einer ruhigen Wohnlage am Ende einer Sackgasse mit Wendehammer.
Von dort führt ein kurzer Weg zum Grundstück – Durchgangsverkehr gibt es praktisch nicht.
Aldi und dm sind in ca. 10 Gehminuten erreichbar.
Die Straßenbahnhaltestelle „Römerquelle“ sowie mehrere Bushaltestellen liegen nur etwa 5–6 Minuten zu Fuß entfernt.
Waldorfschule und Kindergarten befinden sich ebenfalls in fußläufiger Nähe.
Weitere Einkaufsmöglichkeiten, Ärzte, Kitas, Schulen und Apotheken sind im Ortskern von Finthen vorhanden und schnell erreichbar.
Die Anbindung an die Autobahnen A60 und A643 ist mit dem Auto in etwa 10–12 Minuten gegeben.
Sonstige Angaben
Wohn- und Nutzflächenübersicht
Die Wohn- / Nutzfläche des Gesamthauses bemisst sich auf ca.
287,27 m² und teilt sich wie folgt auf:
• Haupthaus (EG + DG gesamt): 166,83 m²
• 3-Zimmer-Wohnung: 77,58 m²
• Nutzfläche Untergeschoss: 42,86 m²
(Abstellräume, Flur, Heizungsraum)
Alle Angaben stammen vom Eigentümer bzw. aus vorliegenden Unterlagen.
Für deren Richtigkeit und Vollständigkeit kann keine Haftung übernommen werden.
Grundriss
Erdgeschoss Wohnhaus
>
>
Wohnhaus 1. OG / Dachgeschoss
>
>
Wohnungsgrundriss - UG Haus
>
>
Adresse
Rosmerthastraße xx, 55126 Mainz
Interessante Orte
Bäckereien
Schulen
Ärzte
Preis- und Lageinformationen
Preistrend für Bestandsimmobilien in Finthen
Dieser Zeitraum ist nur für eingeloggte User sichtbar.
Jetzt einloggen