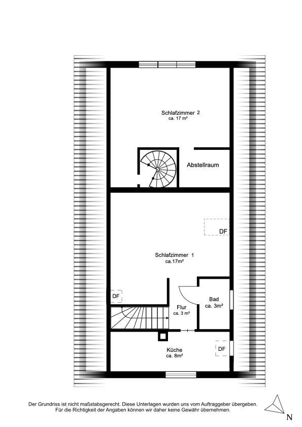
Dieses charmante Einfamilienhaus in Hamburg-Niendorf vereint klassische Architektur mit moderner Wohnqualität. Das im Jahr 1959 erbaute Haus erhielt 1978 einen Anbau und wurde in den Jahren 2000 und 2004 aufwendig saniert, sodass es heute mit einer durchdachten Raumaufteilung und gepflegtem Ambiente überzeugt. Auf einer Wohnfläche von ca. 124 m² stehen insgesamt fünf Zimmer zur Verfügung. Das großzügige Wohnzimmer bildet den Mittelpunkt des Hauses und lädt durch seine Helligkeit und Weitläufigkeit zum Verweilen ein. Der angrenzende Ess- und Küchenbereich bietet viel Platz für gemeinsame Stunden mit Familie und Freunden. Eine neue Einbauküche sowie moderne Fußböden aus dem Jahr 2017 ergänzen das wohnliche Gesamtbild. Drei moderne Bäder unterstreichen den hohen Wohnkomfort und machen die Immobilie besonders familienfreundlich. Zwei dieser Bäder – im Erdgeschoss und im Dachgeschoss – wurden erst 2025 vollständig erneuert. Ein besonderes Highlight ist der Vollkeller, der nicht nur zusätzliche Aufenthaltsräume bietet, sondern auch über ein eigenes Bad sowie eine eigene Küche verfügt. Damit eröffnet er vielfältige Nutzungsmöglichkeiten – sei es als Einliegerwohnung, Hobbybereich oder Büro. Das Haus lässt sich ideal in bis zu drei Wohneinheiten aufteilen, da jede Etage mit Küche, Bad und Schlafraum ausgestattet ist. Somit eignet sich die Immobilie gleichermaßen für Familien, Mehrgenerationenwohnen oder zur teilweisen Vermietung.Auch technisch wurde kontinuierlich modernisiert: Zwischen 2000 und 2017 wurden alle Fenster im Haus erneuert. Im Jahr 2024 erfolgte zudem die Erneuerung der Sielleitungen und der Wasserzuleitungen. Der gepflegte Garten mit Süd-West-Ausrichtung sorgt für sonnige Stunden und wird durch eine überdachte Terrasse perfekt ergänzt. Ein Carport mit Platz für bis zu zwei Fahrzeuge rundet das attraktive Gesamtangebot ab. Die ruhige Lage im grünen Niendorf macht dieses Haus zu einem begehrten Wohnobjekt.
Modernisiertes Haus mit großzügigem Anbau in ruhiger Lage von Niendorf
22455 Hamburg
Die vollständige Adresse der Immobilie erhalten Sie vom Anbieter.
Auf Karte anzeigen
Die vollständige Adresse der Immobilie erhalten Sie vom Anbieter.
Finanzierungszertifikat
In nur zwei Minuten zu Ihrem persönlichen Finanzierungszertifkat.
Infos
| Haustyp | Einfamilienhaus |
|---|---|
| Wohnfläche ca. | 124 m2 |
| Nutzfläche | 67 m2 |
| Grundstücksfläche | 559 m2 |
| Bezugsfrei ab | nach Vereinbarung |
| Zimmer | 5 |
| Schlafzimmer | 2 |
| Badezimmer | 3 |
| Anzahl Garage/Stellplatz | 2 |
Kosten
| Kaufpreis |
795.000 € |
|---|---|
| Provision |
3.57 % inkl. gesetzl. MwSt. |
Finanzierungsrechner:
Kaufpreis:
600.000 €
Eigenkapital:
600.000 €
Monatliche Rate
0 €
Effektiver Jahreszins
0 %
Sollzinsbindung
10 Jahre
Bausubstanz & Energieausweis
| Baujahr | 1959 |
|---|---|
| Letzte Sanierung | 2004 |
| Objektzustand | Neuwertig |
| Heizungsart | Fußbodenheizung |
| Wesentliche Energieträger | Gas |
| Energieausweis | liegt vor |
| Energieausweistyp | Bedarfsausweis |
| Energieverbrauchskennwert | 169,4 kWh/(m²*a) |
| Energieeffizienzklasse | F |
169,4
kWh/(m²*a)
Energieeffizienzklasse F
- A+
- A
- B
- C
- D
- E
- F
- G
- H
- 0
- 25
- 50
- 75
- 100
- 125
- 150
- 175
- 200
- 225
- >250
Beschreibung des Objekts
Ausstattung
Einbauküche
Parkett
Fliesen
Vollunterkellert
Lage
Die Immobilie liegt in zentraler Lage von Hamburg-Niendorf, in einer verkehrsberuhigten und familienfreundlichen Straße. Niendorf zählt zu den begehrten Wohnlagen Hamburgs, da es urbanes Leben mit hohem Freizeitwert und naturnaher Umgebung vereint. Besonders das Niendorfer Gehege und der Kollauwanderweg laden zu Spaziergängen, Joggingrunden oder Ausflügen mit der Familie ein. Einkaufsmöglichkeiten für den täglichen Bedarf, Kindergärten, Schulen sowie diverse Sport- und Freizeitangebote befinden sich in unmittelbarer Nähe. Der nahegelegene Tibarg und der Krähenweg bieten zudem eine vielfältige Auswahl an Restaurants, Cafés, Ärzten und zahlreichen weiteren Dienstleistern, die eine umfassende und bequeme Versorgung im Alltag gewährleisten. Dank der sehr guten Verkehrsanbindung erreichen Sie die Hamburger Innenstadt mit U-Bahn, Bus oder dem Auto in etwa 25-30 Minuten. Der Hamburger Flughafen ist ebenfalls nur ca. 15 Minuten entfernt und bequem erreichbar.
Sonstige Angaben
Der Makler-Vertrag mit uns kommt durch die Bestätigung der Inanspruchnahme unserer Maklertätigkeit in Textform zustande, wie z.B. insbesondere die Unterschrift des Suchkundenvertrages und/oder des Objekt-Exposés. Die Höhe der Courtage richtet sich nach den seit dem 23.12.2020 in Kraft getretenen gesetzlichen Regelungen zur Teilung der Maklercourtage. Hiernach wird die Courtage regelmäßig für beide Parteien (Eigentümer und Käufer) in Höhe von 3 % zuzüglich Umsatzsteuer in jeweils geltender Höhe, derzeit also insgesamt 7,14 % des Kaufpreises einschließlich ges. Umsatzsteuer bei notariellem Vertragsabschluss verdient und fällig. Die Höhe der Bruttocourtage unterliegt einer Anpassung bei Steuersatzänderung. Grunderwerbsteuer, Notar- und Gerichtskosten trägt der Käufer. Alle Angaben sind ohne Gewähr und basieren ausschließlich auf Informationen, die uns von unserem Auftraggeber übermittelt wurden. Wir übernehmen keine Gewähr für die Vollständigkeit, Richtigkeit und Aktualität dieser Angaben. Zwischenverkauf bleibt vorbehalten. Sollte das von uns nachgewiesene Objekt bereits bekannt sein, teilen Sie uns dieses bitte unverzüglich mit. Die Weitergabe dieses Exposees an Dritte ohne unsere Zustimmung löst gegebenenfalls Courtage- bzw. Schadensersatzansprüche aus. Im Übrigen gelten die Allgemeinen Geschäftsbedingungen für die Rechtsbeziehung zwischen Ihnen und der Engel & Völkers Immobilien Deutschland GmbH (Lizenznehmer der Engel & Völkers Residential GmbH).
Grundriss
Erdgeschoss
>
>
Dachgeschoss
>
>
Kellergeschoss
>
>
Adresse
22455 Hamburg
Interessante Orte
Preis- und Lageinformationen
Preistrend für Bestandsimmobilien in Niendorf