Diese charmante Doppelhaushälfte aus dem Jahr 1978 bietet mit ca. 135 m² Wohnfläche und insgesamt fünf Zimmern eine hervorragende Grundlage für vielfältige Wohnkonzepte. Das Haus befindet sich auf einem sonnigen Grundstück von ca. 456 m² und liegt ruhig in einer gewachsenen Wohnstraße von Hamburg-Hummelsbüttel.
Besonders hervorzuheben ist das Potenzial für zwei getrennt nutzbare Wohneinheiten:
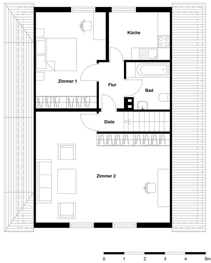
Dank der vorhandenen Küche und des Badezimmers im Dachgeschoss (siehe Grundriss) sowie der vollwertigen EG-Wohnung lässt sich mit überschaubarem Aufwand sowohl Mehrgenerationenwohnen als auch eine Einliegerwohnung realisieren – ideal für Familien, zur Vermietung oder zur eigenen Nutzung in zwei separaten Bereichen.
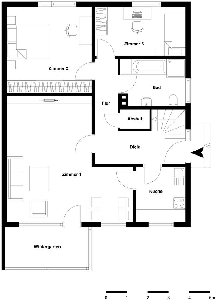
Das Erdgeschoss, mit seiner Deckenhöhe von 2,57 m, überzeugt mit einem großzügigen Wohnbereich, direktem Zugang zum Wintergarten und dem weitläufigen, pflegeleichten Garten. Das Dachgeschoss, mit seiner Deckenhöhe von 2,47 m bietet zwei weitere Zimmer, eine Küche sowie ein eigenes Bad (siehe Grundriss). Der Vollkeller mit Außentreppe erweitert die Nutzungsmöglichkeiten zusätzlich. Hier befindet sich auch ein weiteres Duschbad.
Die Innenbereiche des Hauses sind dekorativ nicht mehr zeitgemäß und bietet Ihnen damit die Chance, Ihre eigenen Ideen zu verwirklichen. Ein Carport mit angrenzendem Schuppen rundet das Angebot ab.
Doppelhaushälfte mit großem Potenzial – ideal für 2 Wohneinheiten oder Mehrgenerationenwohnen
Langenjären 21,
22339 Hamburg
Auf Karte anzeigen
Finanzierungszertifikat
In nur zwei Minuten zu Ihrem persönlichen Finanzierungszertifkat.
Infos
| Haustyp | Doppelhaushaelfte |
|---|---|
| Etagenzahl | 2 |
| Wohnfläche ca. | 135 m2 |
| Grundstücksfläche | 456 m2 |
| Bezugsfrei ab | nach Absprache |
| Zimmer | 5 |
| Schlafzimmer | 4 |
| Badezimmer | 3 |
| Garage/Stellplatz | Carport |
| Anzahl Garage/Stellplatz | 1 |
Kosten
| Kaufpreis |
620.000 € |
|---|---|
| Provision |
3,50 % inkl. MwSt. vom Kaufpreis Nicole Ringel Immobilien hat einen Maklerauftrag mit dem Verkäufer geschlossen, in dem eine Provisionszahlung von ebenfalls 3,50 % vom Kaufpreis mit diesem vereinbart ist. |
Finanzierungsrechner:
Kaufpreis:
600.000 €
Eigenkapital:
600.000 €
Monatliche Rate
0 €
Effektiver Jahreszins
0 %
Sollzinsbindung
10 Jahre
Bausubstanz & Energieausweis
| Baujahr | 1978 |
|---|---|
| Bauphase | Haus fertig gestellt |
| Objektzustand | Renovierungsbedürftig |
| Qualität der Austattung | Einfach |
| Heizungsart | Zentralheizung |
| Wesentliche Energieträger | Öl |
| Energieausweis | liegt vor |
| Energieausweistyp | Bedarfsausweis |
| Energieverbrauchskennwert | 148,1 kWh/(m²*a) |
| Energieeffizienzklasse | E |
148,1
kWh/(m²*a)
Energieeffizienzklasse E
- A+
- A
- B
- C
- D
- E
- F
- G
- H
- 0
- 25
- 50
- 75
- 100
- 125
- 150
- 175
- 200
- 225
- >250
Beschreibung des Objekts
Lage
Die Immobilie befindet sich in ruhiger und familienfreundlicher Wohnlage vom schönen Hamburg-Hummelsbüttel. Das Umfeld ist geprägt von Einfamilien- und Reihenhäusern und bietet eine angenehme, gewachsene Nachbarschaft. Einkaufsmöglichkeiten, Schulen, Kitas und Ärzte sind schnell erreichbar. Die Anbindung an den öffentlichen Nahverkehr ist sehr gut – die Buslinien 174 und 276 sowie die nahe gelegene S-Bahn-Linie S1 ermöglichen kurze Wege in die Hamburger Innenstadt.
Ein idealer Standort für Familien, Pendler und Menschen, die Ruhe in Kombination mit guter Anbindung suchen.
Sonstige Angaben
Stärken / Highlights:
- Zwei Wohneinheiten mit wenig Aufwand realisierbar
- Ideal für Mehrgenerationenwohnen, Einliegerwohnung oder die große Familie
- Erdgeschoss und Dachgeschoss jeweils mit eigener Küche und Bad
- Ruhige, gewachsene Wohnlage in Hamburg-Hummelsbüttel
- Sonniges Grundstück mit schönem Garten
- Wintergarten und Carport vorhanden
- Vollkeller mit Duschbad und zusätzlichem Außenzugang
- Freie Lieferung zeitnah möglich
Grundriss
Erdgeschoss
>
>
Dachgeschoss
>
>
Keller
>
>
Adresse
Langenjären 21, 22339 Hamburg
Interessante Orte
Preis- und Lageinformationen
Preistrend für Bestandsimmobilien in Hummelsbüttel