Ihr neues Familienzuhause in Niddatal-Assenheim – modern, hell und energieeffizient
Diese Doppelhaushälfte aus dem Jahr 2020 bietet auf rund 140 m² Wohnfläche, verteilt auf drei Etagen, viel Platz für die ganze Familie. Das Haus erfüllt den KfW 55-Standard und vereint energieeffizientes Wohnen mit einem offenen, familienfreundlichen Raumkonzept. Ruhig am Feldrand gelegen, genießen Sie hier Natur, Erholung und ungestörte Momente im eigenen Garten.
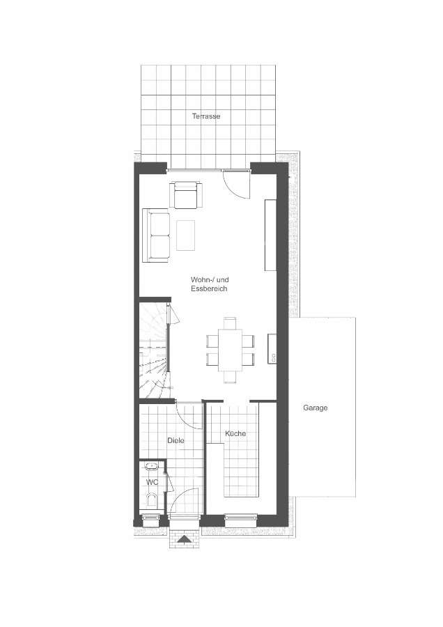
Im Erdgeschoss empfängt Sie eine helle Diele mit Gäste-WC. Der offene Wohn- und Essbereich ist das Herzstück des Hauses: Große Fenster sorgen für viel Tageslicht und den direkten Blick auf die Terrasse und den Garten – perfekt für gemeinsame Stunden oder unbeschwertes Spielen der Kinder. Die angrenzende voll ausgestattete Küche rundet das Wohnkonzept ab.
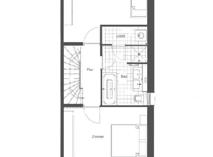
Im Obergeschoss befinden sich zwei Schlafzimmer und ein modernes Badezimmer mit Badewanne und Dusche. Ein angrenzender Hauswirtschaftsraum sorgt für kurze Wege im Alltag.
Das Dachgeschoss bietet zwei weitere Zimmer, die sich flexibel als Kinder-, Gäste- oder Arbeitszimmer nutzen lassen. Eine Abstellkammer und vorbereitete Anschlüsse für ein weiteres Bad bieten zusätzlichen Komfort.
Dieses Haus ist mehr als ein Zuhause – es ist ein Ort, an dem Familien ihren Alltag genießen, gemeinsame Momente schaffen und energieeffizient in die Zukunft blicken können.
Modernes Familienglück mit energieeffizientem KfW-55-Standard!
61194 Niddatal
Die vollständige Adresse der Immobilie erhalten Sie vom Anbieter.
Auf Karte anzeigen
Die vollständige Adresse der Immobilie erhalten Sie vom Anbieter.
Finanzierungszertifikat
In nur zwei Minuten zu Ihrem persönlichen Finanzierungszertifkat.
Infos
| Haustyp | Doppelhaushaelfte |
|---|---|
| Wohnfläche ca. | 140 m2 |
| Grundstücksfläche | 299 m2 |
| Zimmer | 5 |
| Garage/Stellplatz | Garage |
| Anzahl Garage/Stellplatz | 1 |
Kosten
| Kaufpreis |
489.000 € |
|---|---|
| Provision |
3,57 %inkl. MwSt Der Makler-Vertrag mit uns kommt durch schriftl. Vereinbarung und durch die Inanspruchnahme unserer Maklertätigkeit auf der Basis des Objekt-Exposés und seiner Bedingungen zustande. Die Käufercourtage in Höhe von 3,57 % auf den Kaufpreis einschl. 19% Mehrwertsteuer ist bei notariellem Vertragsabschluss verdient und fällig. Wir haben einen entgeltpflichtigen Maklervertrag über den gleichen Provisionssatz mit dem Verkäufer geschlossen (Maklervertrag mit beiden Seiten gem. § 656 c BGB). |
Finanzierungsrechner:
Kaufpreis:
600.000 €
Eigenkapital:
600.000 €
Monatliche Rate
0 €
Effektiver Jahreszins
0 %
Sollzinsbindung
10 Jahre
Bausubstanz & Energieausweis
| Baujahr | 2020 |
|---|---|
| Objektzustand | Neuwertig |
| Heizungsart | Fernwärme |
| Wesentliche Energieträger | expose.parameter.energySourcesEnev2014.HEAT_SUPPLY |
| Energieausweis | liegt vor |
| Energieausweistyp | Bedarfsausweis |
| Energieverbrauchskennwert | 55,4 kWh/(m²*a) |
| Energieeffizienzklasse | B |
55,4
kWh/(m²*a)
Energieeffizienzklasse B
- A+
- A
- B
- C
- D
- E
- F
- G
- H
- 0
- 25
- 50
- 75
- 100
- 125
- 150
- 175
- 200
- 225
- >250
Beschreibung des Objekts
Ausstattung
* Teil einer Wohnungseigentümergemeinschaft (WEG)
* Grundstücksanteil ca. 241 m² (§8 WEG geteilt) zzgl. ca. 58 m² gemeinschaftlicher Fläche
* Grundstücksausrichtung nach Osten
* Wohnfläche ca. 140 m² auf drei Etagen
* Hausbaujahr 2020
* Fenster 3-fach verglast
* Garage direkt neben dem Haus
* elektrische Rollladenantriebe mit Jalousienschalter (größtenteils, einzelne Fenster mit manueller Bedienung)
* Fußbodenheizung im Erdgeschoss und elektrische Badheizung im Obergeschoss
* Heizkörper in den oberen Etagen
* Fernwärme, Blockheizkraftwerk
* Niedrigenergiehäuser nach der Energieeinsparverordnung (EnEV 2016) * Effizienzhaus KfW 55
* isolierter Dachboden als zusätzliche Abstellfläche
* Zisterne 3.000 L
* Wallbox in der Garage
* Böden: Schlafzimmer und Flur: Eiche Parkett, geölt, Erdgeschoss und Bäder: Feinsteinzeug
Lage
Die Immobilie befindet sich in Assenheim, einem charmanten Stadtteil von Niddatal, der ländliche Idylle mit der Nähe zum Rhein-Main-Gebiet verbindet.
Hier genießen Sie die Ruhe eines gewachsenen Ortskerns mit historischem Flair, umgeben von viel Grün und den Flussläufen von Nidda und Wetter – und erreichen Frankfurt dennoch in kurzer Zeit. Familien finden in Assenheim ideale Bedingungen: Kindergärten, Schulen und Spielplätze sind direkt vor Ort, ergänzt durch Sportvereine, Rad- und Wanderwege sowie ein reges Vereinsleben. Einkaufsmöglichkeiten, Ärzte und alle Einrichtungen des täglichen Bedarfs sind bequem erreichbar, während der Bahnhof und die schnelle Anbindung an die Autobahnen das Pendeln erleichtern. Mit dem laufenden Glasfaserausbau ist die Infrastruktur auch digital bestens gerüstet. Assenheim bietet damit eine perfekte Mischung aus Tradition und Zukunft – ein Ort zum Wohlfühlen, Ankommen und Bleiben.
Sonstige Angaben
Unsere Fotoaufnahmen wurden mit einem Weitwinkelobjektiv erstellt, um die Räume möglichst groß und übersichtlich darzustellen. Bitte beachten Sie, dass es dadurch zu leichten Bildverzerrungen kommen kann.
Grundriss
Erdgeschoss
>
>
Obergeschoss
>
>
Dachgeschoss
>
>
Adresse
61194 Niddatal
Interessante Orte
Preis- und Lageinformationen
Preistrend für Bestandsimmobilien in Niddatal