Willkommen in deinem zukünftigen Traumhaus in Schellerten! Dieses beeindruckende Fertighaus wird ganz nach deinen persönlichen Wünschen und Vorstellungen projektiert und überzeugt mit einer großzügigen Wohnfläche von 201,37 m² auf einem weitläufigen Grundstück von 1000 m². Mit einer stilvollen Satteldacharchitektur und einer Neigung von 25 Grad strahlt das Haus zeitlose Eleganz aus. Die Übereck-Erker im Erdgeschoss sorgen für einen lichtdurchfluteten Wohn- und Essbereich, in dem du unvergessliche Momente mit Familie und Freunden verbringen kannst. Mit insgesamt 7 Zimmern, darunter 5 Schlafzimmer, und einem Badezimmer, bietet dir dein neues Zuhause ausreichend Raum für alle Lebenssituationen.
Die zahlreichen zusätzlichen Leistungen von LivingHaus machen den Bauprozess nicht nur unkompliziert, sondern auch besonders individuell. Die hochwertige Traumküche von LivingHaus wird perfekt auf deinen Grundriss abgestimmt und überzeugt durch modernste Technik und clevere Stauraumlösungen. So kannst du direkt nach dem Einzug mit dem Kochen beginnen. Mit der LivingHaus Bau-App behältst du den Überblick über deinen gesamten Bauprozess. Du kannst jederzeit auf wichtige Dokumente zugreifen und den Zeitplan einsehen, um stressfrei zu bauen.
Das I-KON Konzept sorgt dafür, dass dein Zuhause energieeffizient und umweltfreundlich ist. Als I-KON Effizienzhaus 55 benötigt es nur 55 % der Energie eines Standardhauses, was nicht nur gut für die Umwelt ist, sondern auch für deinen Geldbeutel. Die Finanzierung wird durch das exklusive Zuhause-Darlehen unterstützt, das dir bis zu 250.000 EUR zu besonders günstigen Konditionen bietet.
Im Zuhause-Paket erhältst du eine hochwertige Grundausstattung, die moderne Böden, edle Türen und stilvolle Sanitäranlagen umfasst - alles perfekt aufeinander abgestimmt. Wenn du handwerklich begabt bist, kannst du beim DIY-Ausbau-Coaching lernen, wie du den Innenausbau selbst meisterst und so deine ganz persönliche Note in dein neues Zuhause bringst.
Dein individuelles Traumhaus von LivingHaus in Schellerten
31175 Schellerten
Die vollständige Adresse der Immobilie erhalten Sie vom Anbieter.
Auf Karte anzeigen
Die vollständige Adresse der Immobilie erhalten Sie vom Anbieter.
Finanzierungszertifikat
In nur zwei Minuten zu Ihrem persönlichen Finanzierungszertifkat.
Infos
| Haustyp | Einfamilienhaus |
|---|---|
| Etagenzahl | 2 |
| Wohnfläche ca. | 201 m2 |
| Nutzfläche | 201,37 m2 |
| Grundstücksfläche | 700 m2 |
| Zimmer | 7 |
| Schlafzimmer | 5 |
| Badezimmer | 1 |
Kosten
| Kaufpreis |
549.794 € |
|---|
Finanzierungsrechner:
Kaufpreis:
600.000 €
Eigenkapital:
600.000 €
Monatliche Rate
0 €
Effektiver Jahreszins
0 %
Sollzinsbindung
10 Jahre
Bausubstanz & Energieausweis
| Baujahr | 2026 |
|---|---|
| Bauphase | Haus in Planung (projektiert) |
| Qualität der Austattung | Gehoben |
| Energieausweis | liegt vor |
| Energieausweistyp | Bedarfsausweis |
| Energieverbrauchskennwert | 18,0 kWh/(m²*a) |
| Energieeffizienzklasse | A+ |
18,0
kWh/(m²*a)
Energieeffizienzklasse A+
- A+
- A
- B
- C
- D
- E
- F
- G
- H
- 0
- 25
- 50
- 75
- 100
- 125
- 150
- 175
- 200
- 225
- >250
Beschreibung des Objekts
Ausstattung
Dein neues Zuhause bietet eine Vielzahl von hochwertigen Ausstattungsmerkmalen, die deinen Wohnkomfort maximieren. Die energieeffiziente Bauweise sorgt nicht nur für ein angenehmes Raumklima, sondern auch für niedrige Energiekosten. Du erhältst eine moderne und individuelle Traumküche, die weit über den Standard hinausgeht. Die Innenausstattung umfasst stilvolle Böden, edle Türen und hochwertige Sanitäranlagen. Alles wird optimal aufeinander abgestimmt und fix und fertig geliefert. Zudem profitierst du von einer 30-jährigen Garantie auf die Grundkonstruktion und fünf Jahren Gewährleistung auf alle anderen Bauleistungen. Das DIY-Ausbau-Coaching ermöglicht es dir, unter fachlicher Anleitung den Innenausbau selbst zu gestalten. Dein neues Zuhause wird somit nicht nur ein Haus, sondern ein Ort, der ganz nach deinen Vorstellungen gestaltet ist. Dein »Wie ich es will Fertighaus«.
Lage
Schellerten bietet eine hervorragende Lebensqualität und zahlreiche Vorteile für Familien, Naturliebhaber und Pendler. In direkter Umgebung findest du mehrere Schulen, wie die Grundschule Schellerten, die für ihre engagierten Lehrer und gute Betreuung bekannt ist. Auch Kindergärten sind in der Nähe und bieten eine liebevolle Betreuung für die Kleinsten. Die Anbindung an den ÖPNV ist optimal, sodass du schnell in die nahegelegene Stadt Hildesheim gelangst. Dort findest du ein breites Angebot an Einkaufsmöglichkeiten, darunter Supermärkte wie Edeka und Lidl, die nur wenige Minuten von deinem neuen Zuhause entfernt sind.
Für die Gesundheitsversorgung stehen dir mehrere Ärzte und Apotheken in der Umgebung zur Verfügung, sodass du stets gut versorgt bist. In Schellerten selbst und der näheren Umgebung gibt es zudem zahlreiche Freizeitangebote, darunter Sportvereine, Wanderwege und Radwege für aktive Erholung. Die Natur rund um Schellerten lädt zu ausgedehnten Spaziergängen und Erkundungstouren ein. Für Pendler ist die Lage ideal, da die Autobahn A7 in kurzer Zeit erreichbar ist und dir somit eine schnelle Anbindung an die umliegenden Städte bietet. Dein neues Zuhause in Schellerten ist nicht nur ein Wohnort, sondern ein Ort, an dem du und deine Familie sich rundum wohlfühlen können.
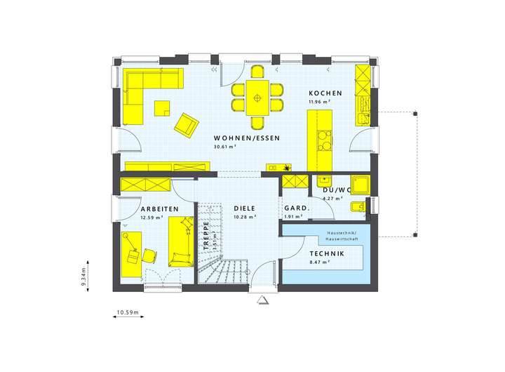
Grundriss
Grundriss EG
>
>
Grundriss OG
>
>
Adresse
31175 Schellerten
Interessante Orte
Preis- und Lageinformationen
Preistrend für Bestandsimmobilien in Schellerten