Auf einem großzügigen Erbpachtgrundstück knapp über 1.000 m² erwartet Sie dieses außergewöhnliche Einfamilienhaus mit Einliegerwohnung und ausgebautem Dachstudio. Die 2018 fertiggestellte Immobilie besticht durch hochwertige Materialien, klare Architektur und ein durchdachtes Raumkonzept – ein Zuhause, das Stil, Komfort und höchste Lebensqualität verbindet.
Mit ca. 494 m² Wohnfläche, insgesamt 10 Zimmern, mehreren Terrassen und einem idyllischen Schwimmteich bietet das Anwesen ideale Voraussetzungen für Familien, Mehrgenerationenwohnen oder die Kombination aus Leben und Arbeiten. Jede Ebene präsentiert sich elegant, großzügig und funktional.
Die ruhige Lage südlich von Frankfurt am Main bietet maximale Diskretion, während der Flughafen in nur 11 Kilometern Entfernung eine optimale Anbindung gewährleistet. Die jährliche Erbpacht beträgt € 4.033,91.
Dieses Anwesen ist mehr als ein Wohnort – es ist ein Rückzugsort für Menschen, die das Außergewöhnliche suchen. Vereinbaren Sie noch heute einen Besichtigungstermin und erleben Sie Ihr zukünftiges Zuhause hautnah.
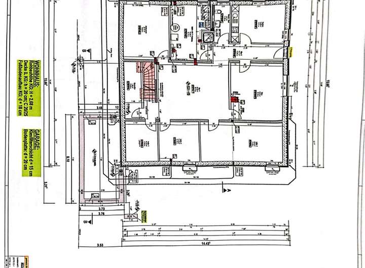
Aufteilung
Kellergeschoss (mit separatem Eingang)
•Großzügiger Flur, Gäste-WC
•Saunaraum mit Dusche – privater Spa-Bereich
•Raum für Gastroküche – ideal für Feste oder Catering
•Gefliester Raum für Au-pair
•Drei große Kellerräume
•Technik- und Heizungsraum
•Weinkeller
Erdgeschoss
•Heller Eingangsbereich mit moderner Stahltreppe
•Großzügiger Flur, Gäste-WC
•Lichtdurchfluteter Wohn-/Essbereich mit Kaminofen
•Hochwertige Miele-Einbauküche mit Kochinsel
•Separates Lese- oder Rückzugszimmer
•Hauswirtschaftsraum
•Zwei Terrassen: Südterrasse & Westterrasse
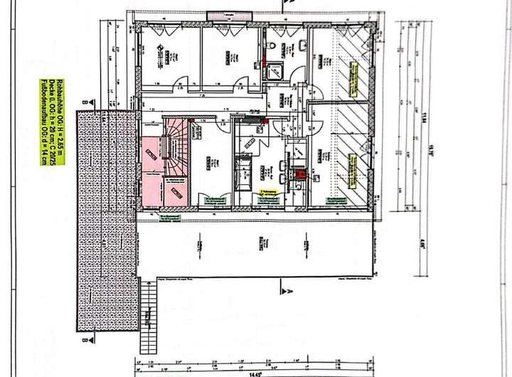
Erstes Obergeschoss
•Fünf großzügige Zimmer
•Zwei hochwertige Tageslichtbäder
Dachstudio
•Großer, vielseitiger Raum (Homeoffice, Atelier, Gäste- oder Jugendbereich)
•Anschlüsse für Bad und Küche
•Zugang zur Dachterrasse
Einliegerwohnung mit 2 Zimmer
Stilvolles Familiendomizil mit Schwimmteich und Einliegerwohnung für gehobene Ansprüche
63263 Neu-Isenburg
Die vollständige Adresse der Immobilie erhalten Sie vom Anbieter.
Auf Karte anzeigen
Die vollständige Adresse der Immobilie erhalten Sie vom Anbieter.
Finanzierungszertifikat
In nur zwei Minuten zu Ihrem persönlichen Finanzierungszertifkat.
Infos
| Haustyp | Einfamilienhaus |
|---|---|
| Etagenzahl | 2 |
| Wohnfläche ca. | 494 m2 |
| Nutzfläche | 100 m2 |
| Grundstücksfläche | 1.031 m2 |
| Zimmer | 10 |
| Schlafzimmer | 8 |
| Badezimmer | 4 |
| Garage/Stellplatz | Carport |
| Anzahl Garage/Stellplatz | 1 |
Kosten
| Kaufpreis |
1.649.000 € |
|---|---|
| Provision |
3 |
Finanzierungsrechner:
Kaufpreis:
600.000 €
Eigenkapital:
600.000 €
Monatliche Rate
0 €
Effektiver Jahreszins
0 %
Sollzinsbindung
10 Jahre
Bausubstanz & Energieausweis
| Baujahr | 2017 |
|---|---|
| Objektzustand | Neuwertig |
| Heizungsart | Wärmepumpe |
| Wesentliche Energieträger | Strom |
| Energieausweis | liegt vor |
| Energieausweistyp | Verbrauchsausweis |
| Energieverbrauchskennwert | 15,0 kWh/(m²*a) |
| Energieeffizienzklasse | A+ |
15,0
kWh/(m²*a)
Energieeffizienzklasse A+
- A+
- A
- B
- C
- D
- E
- F
- G
- H
- 0
- 25
- 50
- 75
- 100
- 125
- 150
- 175
- 200
- 225
- >250
Beschreibung des Objekts
Ausstattung
Aus Rücksicht auf die Eigentümer werden nicht alle Räumlichkeiten gezeigt. Bei Interesse senden wir Ihnen gern zusätzliche Bilder zu. Bitte beachten Sie, dass die Räumlichkeiten mit Home-Staging eingerichtet wurden, um potenziellen Käufern eine Vorstellung davon zu geben, wie sie aussehen könnten.
- Großzügige Fensterflächen, dreifach verglaste Elemente, - hochwertige Parkettböden und Fußbodenheizung.
- XBX-Smart-Home-System mit zentraler Steuerung im Keller (Steuerung über Smartphone) - Elektrischen Rollläden sowie einer automatischen Gartenbewässerung.
- Dreifachverglaste Fenster
- Tageslichtbäder
- Kaminhofen
- Liebevoll angelegte Garten mit großem Schwimmteich – Viessmann Brennstoffzelle
- Saunabereich mit Dusche
- Schwimmteich für natürliche Erholung
- Umfangreich vorbereitete Beleuchtungsvorrichtungen innen & außen
- Satellitenschüssel mit Anschlüssen in fast allen Räumen
- Garage, Carport sowie drei weitere Außenstellplätze
Lage
Eine der begehrtesten Wohnlagen im Rhein-Main-Gebiet – perfekt für Familien, Pendler und Naturliebhaber.
Infrastruktur
•Schnelle Anbindung an Frankfurt, Neu-Isenburg, Darmstadt und den Flughafen
•S-Bahn (S7) fußläufig erreichbar
•Direkte Nähe zur A5 und A3
Einkauf & Versorgung
•Supermärkte, Fachgeschäfte, Apotheken, Ärzte in Neu-Isenburg und Gateway Gardens
•Regionale Märkte sorgen für hohe Lebensqualität
Bildung
•Kitas und Grundschule im Ort
•Weiterführende Schulen in Neu-Isenburg und Umgebung
•Internationale Schulen in Frankfurt schnell erreichbar
Freizeit
•Umgeben von weitläufigen Waldflächen – ideal zum Joggen, Radfahren, Spazieren
•Nahe Sportvereine, Reitmöglichkeiten und Parks
Sonstige Angaben
Die I@D Deutschland GmbH hat diese Angaben nicht geprüft. Vielmehr obliegt die Prüfung der Richtigkeit und / oder Vollständigkeit der Angaben allein dem Kunden. Unsere Angebote sind freibleibend. Mit Ihrer Anfrage bei uns und der folgenden Inanspruchnahme unserer Dienstleistungen kommt ein Maklervertrag mit der I@D Deutschland GmbH und Ihnen zustande. Sofern Sie aufgrund unserer Tätigkeit im Folgenden mit der Eigentümerseite einen Kaufvertrag über das Objekt wirksam abschließen, haben Sie an die I@D Deutschland GmbH die ortsübliche Maklercourtage zu zahlen. Im Falle des Abschlusses eines Mietvertrags haben Sie gem. § 2 Abs. 1a WoVermG keine Provision an die I@D Deutschland GmbH zu
Bitte beachten Sie, dass nur Anfragen mit vollständigem Namen, Anschrift, Telefonnummer und E-Mail-Adresse bearbeitet werden.
Adresse
63263 Neu-Isenburg
Interessante Orte
Preis- und Lageinformationen
Preistrend für Bestandsimmobilien in Neu-Isenburg