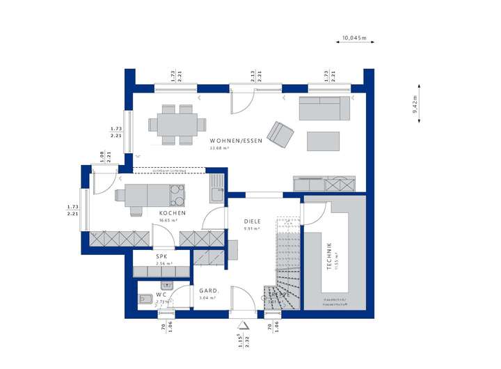
Das projektierte Bien-Zenker Haus vereint Vielfalt und Individualität in seiner Architektur und seinem Design. Der großzügige Eingangsbereich heißt Sie herzlich willkommen und führt Sie direkt in das lichtdurchflutete Wohn- und Esszimmer, das sich über die gesamte Hauslänge erstreckt. Hier schaffen große Fensterfronten eine einladende Atmosphäre und ermöglichen den Ausblick in den eigenen Garten. Die große, angrenzende Küche mit einer separaten Speisekammer bietet Ihnen ausreichend Platz für kulinarische Kreationen und ist optimal für gesellige Abende mit Familie und Freunden. Im Obergeschoss finden Sie drei Schlafzimmer, die Ihnen Rückzugsorte für Ruhe und Entspannung bieten, während das großzügige Wellness-Bad die perfekte Ergänzung für Ihr persönliches Wohlfühlambiente darstellt. Der durchdachte Grundriss sorgt dafür, dass alle Räume harmonisch miteinander verknüpft sind und gleichzeitig genügend Privatsphäre für jeden Bewohner gewährt wird.
Um Ihnen das Leben so angenehm wie möglich zu gestalten, bietet Bien-Zenker die Ausbaustufe "Schlüsselfertig" an. Hierbei übernehmen wir den kompletten Hausbau für Sie - vom Fundament bis zur letzten Schraube. Sie können entspannt zusehen, wie Ihr Traumhaus entsteht, während wir uns um alle Details kümmern. Wenn alles fertig ist, ziehen Sie einfach ein und genießen die Vorfreude auf Ihr neues Zuhause. So sparen Sie nicht nur Zeit und Nerven, sondern können sich ganz auf die schönen Dinge im Leben konzentrieren und Ihren neuen Lebensabschnitt in vollen Zügen auskosten.
Die Marke Bien-Zenker steht für mehr als nur Häuser. Bei uns finden Sie Ihr Zuhause, Ihren Rückzugsort und den Ort, an dem Familie und Freunde zusammenkommen. Mit über 80.000 gebauten Häusern und mehr als 115 Jahren Erfahrung ist Bien-Zenker einer der größten und erfahrensten Fertighausanbieter Deutschlands. Wir legen großen Wert auf individuelle Beratung und Unterstützung für jede Baufamilie, damit der Schlüssel zu Ihrem neuen Heim ein echtes Zeichen des Ankommens wird. Unsere wohngesunden Materialien und zukunftsweisenden Standards machen jedes Bien-Zenker Haus nicht nur zu einem Ort des Wohlfühlens, sondern auch zu einem Zuhause für die Zukunft.
Grundrisse und Abbildungen zeigen Extras. Flächenangaben nach DIN 277.
Wo Kinderlachen willkommen ist - Wohnen im Neubaugebiet
61352 Bad Homburg vor der Höhe
Die vollständige Adresse der Immobilie erhalten Sie vom Anbieter.
Auf Karte anzeigen
Die vollständige Adresse der Immobilie erhalten Sie vom Anbieter.
Finanzierungszertifikat
In nur zwei Minuten zu Ihrem persönlichen Finanzierungszertifkat.
Infos
| Wohnfläche ca. | 157 m2 |
|---|---|
| Grundstücksfläche | 488 m2 |
| Zimmer | 5 |
Kosten
| Kaufpreis |
1.274.120 € |
|---|
Finanzierungsrechner:
Kaufpreis:
600.000 €
Eigenkapital:
600.000 €
Monatliche Rate
0 €
Effektiver Jahreszins
0 %
Sollzinsbindung
10 Jahre
Bausubstanz & Energieausweis
| Baujahr | unbekannt |
|---|
Beschreibung des Objekts
Ausstattung
In der Ausstattungsvielfalt des Bien-Zenker EVOLUTION 154 erleben Sie Komfort und Stil in jedem Detail.
Der durchdachte Grundriss umfasst fünf Zimmer, die optimale Nutzungsmöglichkeiten bieten - ideal für Familien oder Paare, die viel Platz benötigen. Die Kombination aus Wohn- und Essbereich schafft eine offene Atmosphäre, die zum Verweilen einlädt. Mit einem großzügigen Obergeschoss, das private Rückzugsmöglichkeiten in Form von drei Schlafzimmern bietet, ist für jeden Bewohner ein persönlicher Raum vorhanden, in dem er sich entspannen kann. Das große Wellness-Bad im Obergeschoss bringt ein Stück Spa-Feeling in Ihr Zuhause und sorgt für Momente der Erholung.
Praktische Details, wie die separate Speisekammer in der Küche, bieten zusätzlichen Stauraum und erleichtern den Alltag. Der einladende Eingangsbereich und der direkte Zugang zu Terrasse und Garten sorgen für eine harmonische Verbindung zwischen Innen- und Außenbereich. Genießen Sie sonnige Tage im Freien, während Sie den großzügigen Garten als Erweiterung Ihres Wohnraums nutzen.
Mit der Ausbaustufe "Schlüsselfertig" müssen Sie sich um nichts kümmern. Wir übernehmen den kompletten Bauprozess, sodass Sie sich entspannt zurücklehnen können. All die kleinen und großen Details, die Ihr Zuhause ausmachen, werden von uns sorgfältig umgesetzt. Wenn die letzten Arbeiten abgeschlossen sind, ziehen Sie einfach in Ihr neues Heim ein. So wird der Bau zu einem stressfreien Erlebnis, bei dem Sie sich auf die Vorfreude auf Ihr neues Leben konzentrieren können.
Lage
Ober-Erlenbach, ein charmanter Stadtteil von Bad Homburg v. d. Höhe, vereint ländlichen Charakter mit der Nähe zur Metropole Frankfurt am Main. Eingebettet in Felder und Wiesen am Fuße des Taunus bietet Ober-Erlenbach ein ruhiges, naturnahes Wohnumfeld - und ist gleichzeitig hervorragend angebunden. Die Frankfurter Innenstadt ist über die A5 oder die B455 in rund 25 Minuten erreichbar, ebenso der Frankfurter Flughafen.
Für Familien mit Kindern ist Ober-Erlenbach ein besonders attraktiver Wohnort. Mehrere Kindertagesstätten, wie die Kita Ober-Erlenbach, die Evangelische Kita Arche Noah und die Kita Erlenbachstraße, sorgen für eine liebevolle und flexible Betreuung. Die Erich-Kästner-Schule bietet Grundschulbildung direkt im Ort, während weiterführende Schulen wie die Maria-Ward-Schule, die Humboldtschule oder das Kaiserin-Friedrich-Gymnasium in Bad Homburg schnell erreichbar sind.
Die Nahversorgung ist hervorragend: Supermärkte, Bäckereien, Apotheken, Ärzte und kleine Fachgeschäfte befinden sich direkt im Stadtteil oder im nur wenige Minuten entfernten Bad Homburg. Das Nahversorgungszentrum Ober-Erlenbach bietet eine moderne Auswahl an Einkaufsmöglichkeiten für den täglichen Bedarf.
Auch die medizinische Versorgung ist bestens gewährleistet - mit Hausärzten, Zahnarztpraxen und Fachärzten vor Ort sowie dem Hochtaunus-Klinikum in Bad Homburg.
Für Freizeit und Erholung bietet Ober-Erlenbach zahlreiche Möglichkeiten: Familien genießen Spaziergänge durch die Felder, Radtouren entlang des Erlenbachs oder Ausflüge in den nahegelegenen Taunus. Sportvereine, Spielplätze, das lebendige Vereinsleben und kulturelle Veranstaltungen stärken das Gemeinschaftsgefühl. Zudem sind beliebte Ziele wie der Kurpark Bad Homburg, der Freizeitpark Lochmühle oder der Opel-Zoo schnell erreichbar.
Die Verkehrsanbindung ist hervorragend: Neben der Nähe zur A5 und A661 bestehen gute Busverbindungen nach Bad Homburg, Friedrichsdorf und Frankfurt. Die S-Bahn-Anschlüsse in Bad Homburg oder Friedrichsdorf gewährleisten eine schnelle Verbindung in die gesamte Rhein-Main-Region.
Ober-Erlenbach vereint das Beste aus zwei Welten - ruhiges, familienfreundliches Wohnen im Grünen und schnelle Erreichbarkeit urbaner Zentren. Ein idealer Ort für Familien, die Wert auf Lebensqualität, Natur und kurze Wege legen.
Sonstige Angaben
Ein Haus zu bauen bedeutet, einen Lebenstraum zu verwirklichen - und genau dabei begleite ich Sie persönlich. Als Ihre Ansprechpartnerin bei Bien-Zenker stehe ich Ihnen mit Erfahrung, Ehrlichkeit und Engagement zur Seite - von der ersten Idee bis zur Schlüsselübergabe.
Gemeinsam entwickeln wir Ihr individuelles Traumhaus, abgestimmt auf Ihre Wünsche und Lebenssituation. Ich nehme mir Zeit für Ihre Fragen, berate Sie transparent und begleite Sie zuverlässig auf dem Weg zu Ihrem neuen Zuhause.
Grundriss
Grundrissbeispiel Erdgeschoss
>
>
Grundrissbeispiel Obergeschoss
>
>
Adresse
61352 Bad Homburg vor der Höhe
Interessante Orte
Preis- und Lageinformationen
Preistrend für Bestandsimmobilien in Bad Homburg vor der Höhe