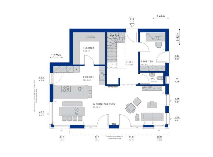
Wie kein anderer Stil steht die Bauhaus-Architektur für modernes, komfortables und vor allem lichtdurchflutetes Wohnen. Als Musterbeispiel könnte diese kubische Villa gelten. Auf der rechten Seite wurde ein asymmetrischer Rechteck-Erker mit großzügiger Übereck-Verglasung hinzugeplant. Der Grundriss ist perfekt auf die Bedürfnisse einer vierköpfigen Familie abgestimmt. Im Inneren des Hauses werden die Bewohner und Besucher von einer repräsentativen Diele empfangen, in die sich eine viertelgewendelte Treppe integriert. Links schließen sich ein Gäste-WC und ein flexibel nutzbarer Raum an. Mit knapp 9 m² ist er nicht nur ein Traum für alle Selbstständigen und Angestellten, die regelmäßig von zu Hause arbeiten, sondern auch für Menschen mit platzintensiven Hobbys. Über einen breiten Durchgang schließt sich der weitläufige Wohn-, Ess- und Kochbereich an, der sich über die gesamte Hausbreite bis in den Erker hinein erstreckt. Raumhohe Verglasungen unterstreichen das luftige Ambiente und schaffen einen Bezug zur umliegenden Natur. Ob beim Kochen an der langen Kochinsel, beim Essen oder beim Entspannen auf der gemütlichen Couch: Von jedem Winkel aus kann man einen Blick in den Garten werfen. Ebenso großzügig und hell wie das Erdgeschoss präsentiert sich die obere Etage. Der Nachwuchs kann sich über zwei große Kinderzimmer freuen, den Eltern steht ein Schlafzimmer mit integrierter Ankleide zur Verfügung. Abgerundet wird das Raumprogramm von einem Familienbad mit Wellnesscharakter. Hier ist nicht nur Platz für eine bodengleiche Dusche, sondern auch für eine luxuriöse Whirlwanne. Wer möchte, kann sein Home-Spa zudem mit einer Sauna ausstatten.
Energieeffizientes Wohnen in Bad Homburg - Obererlenbach
61352 Bad Homburg vor der Höhe
Die vollständige Adresse der Immobilie erhalten Sie vom Anbieter.
Auf Karte anzeigen
Die vollständige Adresse der Immobilie erhalten Sie vom Anbieter.
Finanzierungszertifikat
In nur zwei Minuten zu Ihrem persönlichen Finanzierungszertifkat.
Infos
| Wohnfläche ca. | 160 m2 |
|---|---|
| Grundstücksfläche | 488 m2 |
| Zimmer | 5 |
Kosten
| Kaufpreis |
1.329.890 € |
|---|
Finanzierungsrechner:
Kaufpreis:
600.000 €
Eigenkapital:
600.000 €
Monatliche Rate
0 €
Effektiver Jahreszins
0 %
Sollzinsbindung
10 Jahre
Bausubstanz & Energieausweis
| Baujahr | unbekannt |
|---|
Beschreibung des Objekts
Ausstattung
* Flachdach 1°
* Energieeffizienzklasse 55
* Photovoltaik-Anlage 8,91kWp + Batteriespeicher
* Bodenplatte
* Fenster mit 3-fach-Isolierverglasung
* ökologische und nachhaltige Fertig-Bauweise
* hochwertige Marken-Ausstattung für den Innenausbau
* Schlüsselfertige Ausführung (Eigenleistungen nach Absprache möglich)
* individuelle Anpassungen des Grundrisses durch Architektenleistung
Hinweis Heizsystem:
Das Baugebiet wird flächendeckend über ein zentrales Blockheizkraftwerk mit Wärme versorgt. Es besteht die Vorgabe die zentral eingerichtete Fernwärmeversorgung zu nutzen.
Lage
Bad Homburg vor der Höhe besteht aus den fünf Stadtteilen Dornholzhausen, Gonzenheim, Kirdorf, Ober-Erlenbach und Obereschbachund ist eine der beliebtesten Wohnorte im Rhein-Main-Gebiet. Die Stadt ist hervorragend an das Frankfurter Nahverkehrsnetz mit der S-Bahnlinie S5, als auch mit der U-Bahnlinie U2, oder mit Regionalbussen angebunden. Außerdem besteht ein direkter Autobahnanschluss, über den Sie Frankfurt am Main in 20 Minuten erreichen.
Wenn Sie einen waldreichen und ruhigen Ort mit den Vorzügen einer Stadt suchen, sind Sie in Bad Homburg richtig. Gezeichnet von entzückenden Fachwerkhäusern, tollen Einkaufserlebnissen und guten Restaurants, finden Sie auch Kindergärten in direkter Umgebung. Auch das großzügige Bildungsangebot in Bad Homburg lässt keine Wünsche offen.
In den finden Sie ausgedehnte Parks und Waldflächen sowie ein umfangreiches Kultur- und Freizeitangebot, welche die Stadt zu einem der beliebtesten Wohnorte im Rhein-Main-Gebiet macht.
Grundriss
Grundriss Erdgeschoss
>
>
Grundriss Obergeschoss
>
>
Adresse
61352 Bad Homburg vor der Höhe
Interessante Orte
Preis- und Lageinformationen
Preistrend für Bestandsimmobilien in Bad Homburg vor der Höhe