Der projektierte Vorschlag ist mehr als nur ein Haus - es ist Ihre persönliche Architekturvision, maßgeschneidert für moderne Wohnbedürfnisse. Dieses intelligente Raumwunder vereint auf nur 158 Quadratmetern eine beeindruckende Funktionalität mit zeitgemäßem Design. Mit seiner kompakten Grundfläche von nur 7,80 × 8,9 m beweist es, dass großzügiges Wohnen nicht viel Platz benötigt.
Die durchdachte Architektur ermöglicht einen offenen, lichtdurchfluteten Wohnbereich im Erdgeschoss, der Gemeinschaft und Kommunikation fördert. Im Obergeschoss laden gemütliche Rückzugszonen ein, die Privatsphäre und Ruhe garantieren. Optional lässt sich sogar ein drittes Geschoss integrieren, was die Flexibilität dieses Hauskonzepts unterstreicht.
Bien-Zenker steht für mehr als Hausbau - wir schaffen Lebensräume. Mit über 115 Jahren Erfahrung und 80.000 gebauten Häusern verbinden wir traditionelles Handwerk mit modernster Fertigungstechnologie. Jedes Haus ist eine individuelle Lösung, die genau Ihren Vorstellungen entspricht - vom ersten Entwurf bis zum Einzugstag.
Grundrisse und Abbildungen können Extras zeigen. Flächenangaben nach DIN 277.
* Individuelle Anpassungen des Grundrisses sind möglich
* Die üblichen Baunebenkosten und Nebenerwerbskosten sind hinzuzurechnen.
Viel Platz zum Leben & Lachen - Ihr neues Zuhause wartet!
65817 Eppstein
Die vollständige Adresse der Immobilie erhalten Sie vom Anbieter.
Auf Karte anzeigen
Die vollständige Adresse der Immobilie erhalten Sie vom Anbieter.
Finanzierungszertifikat
In nur zwei Minuten zu Ihrem persönlichen Finanzierungszertifkat.
Infos
| Wohnfläche ca. | 158 m2 |
|---|---|
| Grundstücksfläche | 280 m2 |
| Zimmer | 7 |
Kosten
| Kaufpreis |
682.691 € |
|---|
Finanzierungsrechner:
Kaufpreis:
600.000 €
Eigenkapital:
600.000 €
Monatliche Rate
0 €
Effektiver Jahreszins
0 %
Sollzinsbindung
10 Jahre
Bausubstanz & Energieausweis
| Baujahr | unbekannt |
|---|
Beschreibung des Objekts
Ausstattung
Dieses Fertighaus bietet Ihnen eine durchdachte Raumaufteilung, die Komfort und Funktionalität perfekt vereint. Mit sieben Zimmern auf 158 Quadratmetern entsteht ein Zuhause, das allen Familienmitgliedern Raum für Entfaltung gibt. Die intelligente Grundrissgestaltung ermöglicht flexible Nutzungszonen, die sich mühelos an Ihre Lebenssituation anpassen.
Besondere Komfortdetails wie großzügige Fensterelemente sorgen für eine lichtdurchflutete Atmosphäre und verbinden Innen- und Außenraum harmonisch. Die optional möglichen Balkone oder Terrassen erweitern Ihren Wohnbereich und schaffen zusätzliche Freiräume für Entspannung und Genuss. Durchdachte Abstellräume und Stauraummöglichkeiten sorgen für Ordnung und Übersichtlichkeit.
Die Schlüsselfertige Ausbaustufe ist die komfortabelste Lösung für alle, die Wert auf Zeitersparnis und Stressreduktion legen. Bien-Zenker übernimmt den kompletten Hausbau - von Fundament bis zur letzten Detailplanung. Sie müssen sich um nichts kümmern und können sich vollständig auf Ihre Vorfreude konzentrieren. Mit dieser Ausbaustufe erhalten Sie ein bezugsfertig saniertes Zuhause, bei dem buchstäblich alles bis ins kleinste Detail durchdacht und perfekt vorbereitet ist.
Lage
Eppstein-Bremthal liegt eingebettet in den grünen Taunusausläufern und bietet Familien ein ruhiges, naturnahes Wohnumfeld - kombiniert mit einer sehr guten Anbindung an die Metropolregion Frankfurt Rhein-Main. Die Frankfurter Innenstadt ist über die A3 oder die S-Bahn-Linie S2 in etwa 25-30 Minuten erreichbar, der Frankfurter Flughafen in rund 20-25 Minuten.
Für Familien mit Kindern bietet Bremthal eine hervorragende Infrastruktur: Mehrere Kindertagesstätten, darunter die Kita Bremthal und kirchliche Einrichtungen, sorgen für liebevolle und moderne Betreuung. Grundschüler besuchen die Comeniusschule Bremthal, während weiterführende Schulen in Eppstein, Kelkheim, Hofheim oder Eppstein-Vockenhausen sehr gut erreichbar sind.
Die Nahversorgung ist bequem: Supermärkte, Bäckereien, Apotheken und kleinere Fachgeschäfte finden sich in Bremthal selbst oder im nahegelegenen Eppsteiner Zentrum. Zusätzlich bieten die umliegenden Städte Kelkheim, Hofheim und Idstein vielfältige Einkaufs- und Freizeitmöglichkeiten. Die medizinische Versorgung ist durch Hausärzte vor Ort sowie Fachärzte und Kliniken in der Region gesichert.
Auch in puncto Freizeit und Natur hat Bremthal viel zu bieten: Direkt vor der Haustür beginnen Wanderwege, Radstrecken und Naturpfade in den Taunuswäldern. Familien nutzen die zahlreichen Spielplätze, Sportangebote, Vereine und das vielfältige kulturelle Leben in Eppstein. Beliebte Ausflugsziele wie die Burg Eppstein, der Opel-Zoo, die Taunushöhen, der Freizeitpark Lochmühle oder der Regionalpark Rhein-Main sind in kurzer Zeit erreichbar.
Die Verkehrsanbindung ist ausgezeichnet: Mit der S-Bahn S2 gelangen Pendler bequem nach Frankfurt, Niedernhausen oder Hofheim. Zudem sorgen die nahegelegenen Autobahnen A3, A66 und die gute Busanbindung für schnelle Wege in die gesamte Region.
Eppstein-Bremthal bietet Familien somit die ideale Kombination aus naturnahem Wohnen, moderner Infrastruktur, hoher Lebensqualität und schneller Anbindung an Frankfurt - ein Wohnort, der Ruhe und Stadtnähe perfekt verbindet.
Sonstige Angaben
Ein Haus zu bauen bedeutet, einen Lebenstraum zu verwirklichen - und genau dabei begleite ich Sie persönlich. Als Ihre Ansprechpartnerin bei Bien-Zenker stehe ich Ihnen mit Erfahrung, Ehrlichkeit und Engagement zur Seite - von der ersten Idee bis zur Schlüsselübergabe.
Gemeinsam entwickeln wir Ihr individuelles Traumhaus, abgestimmt auf Ihre Wünsche und Lebenssituation. Ich nehme mir Zeit für Ihre Fragen, berate Sie transparent und begleite Sie zuverlässig auf dem Weg zu Ihrem neuen Zuhause.
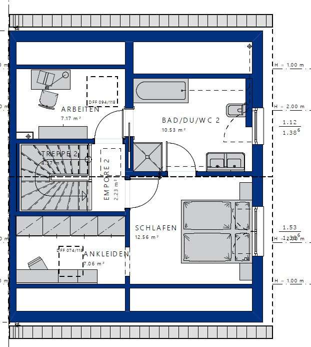
Grundriss
Grundriss EG
>
>
Grundriss OG
>
>
Grundriss DG
>
>
Adresse
65817 Eppstein
Interessante Orte
Preis- und Lageinformationen
Preistrend für Bestandsimmobilien in Eppstein