Dieses gepflegte Einfamilienhaus in Cremlingen OT Destedt bietet auf rund 132 m² Wohnfläche ein modernes und komfortables Wohnumfeld.
Wir freuen uns, Ihnen diese freistehendes Einfamilienhaus präsentieren zu dürfen! Um Ihnen einen ersten Eindruck zu vermitteln, haben wir folgende Medien für Sie vorbereitet:
• Detailliertes Exposé: Fordern Sie die vollständige Objektbeschreibung mit allen relevanten Informationen und weiteren Bildern an.
• 360°-Rundgang: Erkunden Sie die Immobilie bequem von Zuhause aus und erhalten Sie einen Raum-für-Raum-Eindruck.
• Objektunterlagen: Auf Anfrage stellen wir Ihnen alle bankrelevanten Dokumente wie Baubeschreibung, Grundrisse, Ansichten, Energieausweis und mehr zur Verfügung.
Das zweigeschossige Haus steht auf einem 632 m² großen, pflegeleichten Grundstück. Die letzte Modernisierung erfolgte 2019, wodurch das Objekt technisch wie optisch einen hochwertigen Gesamteindruck vermittelt.
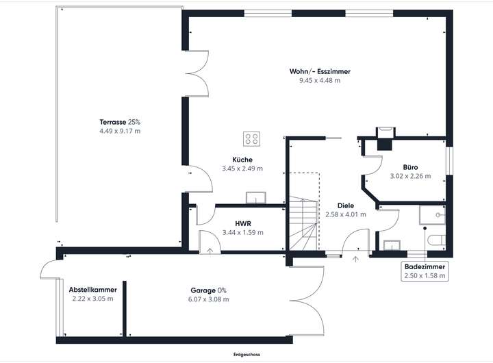
Im Erdgeschoss befindet sich der offene und großzügige Wohn- und Essbereich mit Kaminofen und hochwertigen Fliesen in Holzoptik.
Elektrische Rollläden sowie bodentiefe Fenster sorgen für ein angenehmes Wohngefühl.
Eine große Schiebetür im Eingangsbereich unterstützt bei laufendem Kamin eine effiziente Wärmeverteilung im Haus. Die vorhandene Einbauküche mit praktischem Hauswirtschaftsraum ist Bestandteil des Angebots.
Das Erdgeschoss verfügt zudem über ein modernes Bad mit bodentiefer Dusche und einem großzügigen Abstellraum oder Büro.
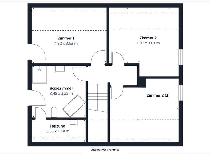
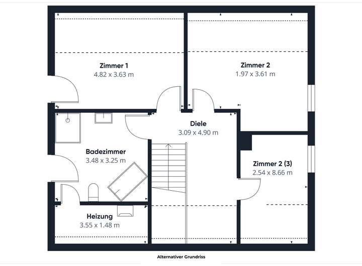
Im Obergeschoss steht ein weiteres, großzügig geschnittenes Badezimmer zur Verfügung – ausgestattet mit einer bodentiefen Dusche sowie einer Badewanne. Ergänzt wird das Raumangebot durch einen Abstellraum, in dem sich auch die Gasheizung befindet.
Sowohl dieses Bad als auch ein Schlafzimmer zur Gartenseite besitzen bodentiefe Fenster mit Insektenschutz, wodurch viel Tageslicht in die Räume gelangt.
Das Obergeschoss bietet aktuell zwei Schlafzimmer und ermöglicht durch die flexible Grundrissgestaltung mehrere Optionen: ein sehr großes Zimmer mit offenem Bürobereich, zwei separate Zimmer und ein offenes Büro oder die Wiederherstellung von drei gleichwertigen Schlafzimmern. Durch die moderne Bauweise profitieren die zukünftigen Eigentümer von niedrigen Nebenkosten.
Ein Glasfaseranschluss ist vorhanden.
Im Außenbereich stehen eine Garage mit Zugang zum Haus und bis zu drei Außenstellplätze zur Verfügung. Das Grundstück ist pflegeleicht angelegt und verfügt über eine Zisterne mit Pumpe für die unabhängige Gartenbewässerung.
Die hochwertige, modular steuerbare Terrassenbeschattung sowie eine Garten- und Terrassenbeleuchtung mit Zeitschaltuhr sorgen für zusätzlichen Komfort. Ein Mähroboter erleichtert die Pflege der Rasenflächen.
Dieses Haus verbindet moderne Ausstattung, flexible Raumgestaltung und ein durchdachtes Energiekonzept. Eine attraktive Option für Familien, die Wert auf Komfort, Effizienz und Planungsspielraum legen.
Nach Ihrer schriftlichen Kontaktanfrage erhalten Sie automatisch das ausführliche Exposé, den Link zum 360°-Rundgang, die vollständige Adresse, zusätzliche Bilder sowie einen praktischen Finanzierungsrechner.
Wir sind in den nächsten Tagen regelmäßig vor Ort und laden Sie herzlich ein, sich bei einer Besichtigung ein eigenes Bild zu machen.
Um Ihnen die Realisierung Ihres Eigenheim-Traums zu erleichtern, vermitteln wir Ihnen gerne den Kontakt zu unserem Finanzierungspartner, damit Sie dieses attraktive Angebot zu besten Konditionen sichern können.
Modernisiertes Einfamilienhaus in Destedt mit Kamin, Gartenkomfort und hochwertiger Ausstattung
Im Landgraben 42,
38162 Cremlingen
Auf Karte anzeigen
Finanzierungszertifikat
In nur zwei Minuten zu Ihrem persönlichen Finanzierungszertifkat.
Infos
| Haustyp | Einfamilienhaus |
|---|---|
| Etagenzahl | 2 |
| Wohnfläche ca. | 132 m2 |
| Nutzfläche | 25 m2 |
| Grundstücksfläche | 632 m2 |
| Bezugsfrei ab | Sofort |
| Zimmer | 5 |
| Schlafzimmer | 3 |
| Badezimmer | 2 |
| Garage/Stellplatz | Garage |
| Anzahl Garage/Stellplatz | 3 |
Kosten
| Kaufpreis |
449.000 € |
|---|---|
| Provision |
2,99% Käuferprovision inkl. MwSt. 2,99% Käuferprovision inkl. MwSt., verdient und fällig mit Beurkundung des notariellen Kaufvertrages. Der Immobilienmakler hat einen provisionspflichtigen Maklervertrag mit dem Verkäufer in gleicher Höhe abgeschlossen. |
Finanzierungsrechner:
Kaufpreis:
600.000 €
Eigenkapital:
600.000 €
Monatliche Rate
0 €
Effektiver Jahreszins
0 %
Sollzinsbindung
10 Jahre
Bausubstanz & Energieausweis
| Baujahr | 2004 |
|---|---|
| Letzte Sanierung | 2019 |
| Bauphase | Haus fertig gestellt |
| Objektzustand | Gepflegt |
| Qualität der Austattung | Gehoben |
| Heizungsart | Gas-Heizung |
| Wesentliche Energieträger | Gas |
| Energieausweis | liegt vor |
| Energieausweistyp | Verbrauchsausweis |
| Energieverbrauchskennwert | 93,5 kWh/(m²*a) |
| Energieeffizienzklasse | C |
93,5
kWh/(m²*a)
Energieeffizienzklasse C
- A+
- A
- B
- C
- D
- E
- F
- G
- H
- 0
- 25
- 50
- 75
- 100
- 125
- 150
- 175
- 200
- 225
- >250
Beschreibung des Objekts
Ausstattung
• Einfamilienhaus mit zwei Etagen
• Wohnfläche ca. 132 m²
• Grundstücksgröße 632 m²
• Gepflegter Gesamtzustand
• Letzte Modernisierung 2019
• Moderne Bauweise mit niedrigen Nebenkosten
Innenausstattung
• Hochwertige Fliesen in Holzoptik im Erdgeschoss
• Laminat im Obergeschoss
• Bodentiefe Fenster zur Gartenseite
• Elektrische Rollläden im Wohn- und Essbereich
• Rollläden im gesamten Haus
• Terrassentüren mit integriertem Insektenschutz
• Kaminofen im Wohnbereich
• Große Schiebetür im Eingangsbereich zur optimalen Wärmeverteilung
• Einbauküche inklusive
• Hauswirtschaftsraum / Abstellraum zur Garage
Bäder
• Zwei vollwertige Badezimmer
• Erdgeschoss: Bad mit bodentiefer Dusche
• Obergeschoss: Großes Bad mit bodentiefer Dusche und Badewanne
• Bodentiefe Fenster im Bad des Obergeschosses
Grundriss und Raumgestaltung
• Aktuell zwei Schlafzimmer im Obergeschoss
• Flexible Grundrissgestaltung möglich
• Optionen:
– ein großes Schlafzimmer mit offenem Bürobereich (aktuell)
– zwei Zimmer und ein offener Bürobereich
– drei gleichwertige Schlafzimmer durch Rückbau
Haustechnik
• Gasheizung
• Glasfaseranschluss
• Steuerbare Terrassenbeschattung (hochwertig und modular)
• Garten- und Terrassenbeleuchtung mit Zeitschaltuhr
Außenbereich
• Garage mit Zugang zum Haus und Abstellraum
• Bis zu drei zusätzliche Außenstellplätze
• Pflegeleichtes Grundstück
• Bodentiefe Fenster zur Gartenseite
• Zisterne mit Pumpe und Schlauchbox für die Gartenbewässerung
• Mähroboter für automatische Rasenpflege
• Garten in gepflegtem Zustand
Lage
Die Immobilie befindet sich im Cremlinger Ortsteil Destedt, einer ruhigen und naturnah gelegenen Wohnlage am Rand des Naturparks Elm. Die Umgebung ist geprägt von gewachsener Dorfstruktur, gepflegten Wohnhäusern und einem ausgeprägt gemeinschaftlichen Miteinander. Destedt gilt seit Jahren als beliebter Wohnstandort, da Lebensqualität, Naturbezug und eine solide Infrastruktur hier in engem Zusammenhang stehen.
Für Familien bietet der Ort gute Voraussetzungen: Die örtliche Grundschule ist als Ganztagsschule organisiert und bindet Projekte rund um Natur und Regionalität in den Alltag ein. Weiterführende Schulen befinden sich im nahen Umfeld und sind bequem mit dem Bus oder dem PKW erreichbar.
Einkaufsmöglichkeiten für den täglichen Bedarf sind direkt im Ort vorhanden. Der Dorfladen bietet ein Sortiment mit regionalen Produkten, während in Cremlingen weitere Supermärkte und Geschäfte des täglichen Bedarfs zur Verfügung stehen. Ergänzt wird dies durch Apotheken, ärztliche Versorgungsangebote und Dienstleister im näheren Umfeld.
Die Freizeitmöglichkeiten sind vielseitig. Die unmittelbare Nähe zum Elm ermöglicht Spaziergänge, Wanderungen und sportliche Aktivitäten in einem weitläufigen Naturgebiet. Der örtliche Sportverein sowie weitere Vereine in der Gemeinde bieten zusätzliche Angebote für alle Altersgruppen. Die landschaftlich reizvolle Lage trägt wesentlich zum hohen Wohn- und Erholungswert des Ortes bei.
Destedt liegt verkehrsgünstig im Einzugsbereich der Städte Braunschweig und Wolfsburg. Beide Standorte sind aufgrund der guten Anbindung schnell erreichbar und machen den Ort attraktiv für Berufspendler. Die wirtschaftlich starke Region bietet eine stabile Infrastruktur, kurze Wege und ein Umfeld, in dem sich viele Menschen bewusst niederlassen.
Insgesamt verbindet die Lage eine ruhige, familienfreundliche Wohnatmosphäre mit einer guten Versorgung und einer naturnahen Umgebung – ein Standort, der dauerhaft als angenehm und lebenswert gilt.
Sonstige Angaben
Auch Sie möchten eine Immobilie verkaufen? Wir bieten unseren Kunden folgende Wege zur Vermarktung an:
Szenario 1: Wir besichtigen zusammen Ihre Immobilie um eine individuelle Strategie für den Vertrieb und den realisierbaren Preis zu besprechen. Dabei nehmen wir Ihnen für gewöhnlich alle anfallenden Arbeiten aus der Hand und organisieren alle objektbezogenen Dokumente inkl. Behördengänge selbst. Während wir Ihre Immobilie anschließend zielorientiert, zum bestmöglichen Preis vermarkten, können Sie sich entspannt zurücklegen und sich auf die Zeit nach dem erfolgreichen Verkauf Ihrer Immobilie vorbereiten.
Szenario 2: Sie haben bereits versucht Ihre Immobilie zu verkaufen oder möchten nicht warten bzw. die Immobilie sofort und wie sie ist verkaufen. In diesem Fall treten wir als Käufer auf und vereinbaren innerhalb 3 Tagen einen Notartermin. Das Objekt wird ggf. möbliert, mit Schäden, lückenhaften Dokumenten, diskret und ohne Umwege angekauft. Sie erhalten dabei umgehend Ihr Geld.
Besichtigungen führen wir täglich durch. Zögern Sie also nicht, mit uns in Kontakt zu treten und uns Ihren Wunschtermin per E-Mail unter Angabe Ihrer Rufnummer mitzuteilen.
Das Kleingedruckte: Wir weisen freundlich darauf hin, dass die von uns genannten Informationen und Angaben zum Objekt ausdrücklich unverbindlich und nur zur Vorabinformation bestimmt sind. Für die in unserem Exposé genannten Objekt-Angaben/Informationen ist Firma Kittelmann und Fischer Immobilien auf die Auskünfte von Verkäufern, Vermietern, Verpächtern, Bauherren, Bauträgern, Behörden, Institutionen, Unternehmen, etc. angewiesen. Diese mündlich oder schriftlich an Firma Kittelmann & Fischer Immobilien übermittelten Objektangaben/Informationen sind nicht zwangsläufig durch uns auf ihre Richtigkeit hin überprüft worden. Eine Haftung für die Richtigkeit oder Vollständigkeit dieser Objektangaben/Informationen übernehmen wir nicht. Es obliegt daher unseren Kunden, vor Kauf, die Objektangaben/Informationen auf ihre Richtigkeit hin zu überprüfen.
Grundriss
Alternativer Grundriss 1
>
>
Alternativer Grundriss 2
>
>
Adresse
Im Landgraben 42, 38162 Cremlingen
Interessante Orte
Preis- und Lageinformationen
Preistrend für Bestandsimmobilien in Cremlingen