- Grunddaten: 140 m² Wohnfläche, 267 m² Grundstück, 4,5 Zimmer
- Energie & Technik: KfW-70-Standard, Effizienzklasse A (44,9 kWh/m2a)
- Heizung & Lüftung:
Gas-Fußbodenheizung (JUNGHANS) inkl. Raum-Thermostate, kontrollierte Be- und
Entlüftungsanlage mit Wärmerückgewinnung (Zehnder)
- Ausstattung Highlights:
LEICHT-Einbauküche mit Kochinsel, Markengeräte, Eiswürfelmaschine, Einbau-
Kaffeemaschine, Master-Schlafzimmer mit begehbarem Kleiderschrank
- Bäder: Vollbad mit Villeroy & Boch Fliesen, Badewanne & Dusche + Gäste-WC
- Sicherheit: WERU-Fenster (Sicherheitsklasse RC2N), Sicherheits-Haustür (Wilka),
Rauchwarnmelder in allen Räumen
- Komfort: Elektrische Außenjalousien, erhöhte Deckenhöhen, bodentiefe Fenster mit
3-fach-Verglasung, Insektenschutz, Spülmaschine hochgesetzt
- Bodenbeläge: Parkett (OG), Fliesen (EG), moderne, offene Massivholz-Treppe
- Infrastruktur: Glasfaser- & LAN-Anschlüsse, Stellfläche im Dachboden
- Besonderheiten: Hauswirtschaftsraum mit Wasseranschluss (warm/kalt)
- u.v.m.
.
Wohnen auf hohem Niveau - Ihr neues Zuhause in Hamburg-Niendorf
22459 Hamburg
Die vollständige Adresse der Immobilie erhalten Sie vom Anbieter.
Auf Karte anzeigen
Die vollständige Adresse der Immobilie erhalten Sie vom Anbieter.
Finanzierungszertifikat
In nur zwei Minuten zu Ihrem persönlichen Finanzierungszertifkat.
Infos
| Haustyp | Doppelhaushaelfte |
|---|---|
| Wohnfläche ca. | 140 m2 |
| Grundstücksfläche | 265 m2 |
| Zimmer | 4,5 |
| Schlafzimmer | 3 |
| Badezimmer | 1 |
| Garage/Stellplatz | Carport |
| Anzahl Garage/Stellplatz | 1 |
Kosten
| Kaufpreis |
985.000 € |
|---|---|
| Provision |
Käuferprovision 3,57 % (inkl. MwSt) des beurkundeten Kaufpreises. |
Finanzierungsrechner:
Kaufpreis:
600.000 €
Eigenkapital:
600.000 €
Monatliche Rate
0 €
Effektiver Jahreszins
0 %
Sollzinsbindung
10 Jahre
Bausubstanz & Energieausweis
| Baujahr | 2016 |
|---|---|
| Objektzustand | Neuwertig |
| Heizungsart | Fußbodenheizung |
| Wesentliche Energieträger | Gas |
| Energieausweis | liegt vor |
| Energieausweistyp | Bedarfsausweis |
| Energieverbrauchskennwert | 44,9 kWh/(m²*a) |
| Energieeffizienzklasse | A |
44,9
kWh/(m²*a)
Energieeffizienzklasse A
- A+
- A
- B
- C
- D
- E
- F
- G
- H
- 0
- 25
- 50
- 75
- 100
- 125
- 150
- 175
- 200
- 225
- >250
Beschreibung des Objekts
Ausstattung
Entdecken Sie dieses rundum gelungene, modern und hochwertig ausgestattete KfW-70-Effizienzhaus, das mit durchdachter Architektur und exklusiven Details überzeugt. Die gradlinige, lichtdurchflutete Gestaltung wird durch großzügige Deckenhöhen wirkungsvoll unterstrichen und schafft ein erstklassiges Wohngefühl. Hochwertige Parkett- und Fliesenböden sowie eine exklusive LEICHT-Designküche mit Kochinsel und Premiumgeräten setzen stilvolle Akzente und bilden das Herzstück des offen gestalteten Wohnbereichs.
Für ein stets angenehmes Raumklima sorgen Fußbodenheizung, kontrollierte Wohnraumbe- und -entlüftung sowie 3-fach-Verglasung – ein Zusammenspiel, das Energieeffizienz auf höchstem Niveau (Klasse A) garantiert und den Wohnkomfort maximiert.
Das Smart-Home-System ermöglicht die komfortable Bedienung der Außenjalousien, Markisen und der automatisierten Gartenbewässerung. Glasfaseranschluss, LAN-Dosen in allen Räumen, LED-Deckenspots, SAT-Anlage und hochwertige Sicherheitskomponenten für Türen und Fenster unterstreichen den gehobenen Anspruch.
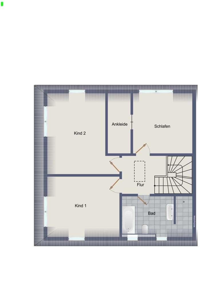
Ein elegantes Vollbad mit Badewanne und großzügiger Dusche, ein modernes Gäste-WC sowie der Masterbereich mit begehbarem Kleiderschrank komplettieren das Wohnkonzept.
Die Außenanlage präsentiert sich als stilvoller Erholungsbereich: Ein beheizbarer Wintergarten ermöglicht ganzjähriges Entspannen, die weitläufige Terrasse beste Voraussetzungen für repräsentative Momente im Freien. Ein modernes Gartenhaus mit Strom- und Lichtanschluss, automatischer Bewässerung der gesamten Gartenanlage sowie ein Rasenmähroboter sorgen für Komfort und Pflegeleichtigkeit. Das Carport mit Platz für zwei Fahrzeuge rundet den hochwertigen Gesamteindruck ab.
Ein perfekt konzipiertes Zuhause, das modernen Wohnkomfort, smarte Technik und energieeffiziente Architektur auf eindrucksvolle Weise vereint.
Lage
Diese Immobilie im beliebten Hamburg-Niendorf verbindet eine ruhige, familienfreundliche Wohnatmosphäre mit den Vorteilen einer hervorragend ausgebauten Infrastruktur. Die verkehrsberuhigte Einbahnstraße vermittelt Sicherheit und Wohnqualität – ideal für Familien und alle, die ein entspanntes Umfeld schätzen.
Die Verkehrsanbindung ist erstklassig: Der U-Bahnhof der Linie U2 sowie die Buslinien 5, 24 und 191 sind fußläufig erreichbar und bieten eine schnelle Verbindung in die Innenstadt und umliegende Stadtteile. Für Autofahrende sorgt die nahe Anschlussstelle Niendorf/Schnelsen für eine optimale Anbindung an die A7; der Flughafen ist in etwa 15 Minuten erreichbar.
Das Wohnumfeld bietet eine hervorragende Familieninfrastruktur: Mehrere Kitas, zwei Grundschulen, eine Stadtteilschule und zwei Gymnasien befinden sich in unmittelbarer Nähe. Einkäufe des täglichen Bedarfs lassen sich bequem in der Umgebung erledigen – ob in der Einkaufsstraße oder im Tibarg Center. Die beliebten Wochenmärkte in Niendorf und Schnelsen ergänzen das Angebot mit regionalen Produkten.
Gastronomisch überzeugt die Lage mit einer abwechslungsreichen Auswahl: Cafés, internationale Restaurants und Bars – insbesondere in der Frohmestraße und im Niendorfer Zentrum – bieten für jeden Geschmack etwas. Die medizinische Versorgung ist durch zahlreiche Haus- und Facharztpraxen im direkten Umfeld gesichert.
Auch Freizeit und Erholung kommen nicht zu kurz: Das Bäderland Bondenwald mit Hallen- und Freibad sowie das weitläufige Naherholungsgebiet Niendorfer Gehege laden zu sportlichen Aktivitäten und entspannten Stunden in der Natur ein.
Die hervorragende Verkehrsanbindung, die umfassende Nahversorgung, vielfältige Bildungsangebote und die naturnahe Lage machen diese Adresse zu einem besonders attraktiven und wertbeständigen Zuhause.
Sonstige Angaben
Allgemeine Geschäftsbedingungen
1. Maklervertrag: Ein Maklervertrag kommt durch Inanspruchnahme unserer Dienstleistung zustande.
2. Weitergabe: Die von uns ausgehändigten Unterlagen, Objektinformationen, Pläne etc. dürfen nicht an Dritte weitergegeben werden. Ausnahme besteht nur durch eine schriftliche Genehmigung von der Firma Hansen & Hansen Immobilien Kontor.
3. Objektinformationen: Alle Objektinformationen erhalten wir durch Dritte. Wir übernehmen daher keine Haftung für die Richtigkeit und Vollständigkeit der Angaben. Dem Kunden obliegt eine Prüfung auf Richtigkeit und Vollständigkeit der Objektinformationen selbstständig. Alle Immobilienangebote sind freibleibend und vorbehaltlich Irrtümern, Zwischenverkauf und -vermietung oder sonstiger Zwischenverwertung.
4. Interessenten: Interessenten, die von der Firma Hansen & Hansen Immobilien Kontor Daten über ein von uns betreutes Objekt erhalten haben und sich direkt mit unserem Kunden in Verbindung setzen und es dadurch zu einem wirksamen Hauptvertrag (Miet-/Kaufvertrag) kommt, haften für unsere Courtage in voller Höhe.
5. Provision: Die Provision ist verdient und fällig, sobald ein rechtswirksamer Hauptvertrag (Miet/Kaufvertrag) zustande gekommen ist. Die Provision ist jeweils vom Verkäufer und Käufer zu zahlen. Sie beträgt für beide Parteien jeweils 3,57 % (inkl. MwSt.) des beurkundeten Kaufpreises.
6. Vollmacht: Die Firma Hansen & Hansen Immobilien Kontor erhält von dem Auftraggeber die Vollmacht, alle relevanten Daten für eine erfolgreiche Vermarktung nach Maßnahmen der gesetzlichen Regelung zu verarbeiten.
7. Datenschutz: Der Verkäufer, Käufer oder Interessent erklärt sich ausdrücklich damit einverstanden, dass die Firma Hansen&Hansen Immobilien Kontor GbR, Alsterdorfer Markt 10, 22297 Hamburg, zur Erfüllung Ihrer Verpflichtungen befugt ist, die notwendigen personenbezogenen Daten des Verkäufers, Käufers oder Interessenten nach Maßgabe der gesetzlichen Regelungen zu verarbeiten.
Grundriss
Erdgeschoss
>
>
Dachgeschoss
>
>
Adresse
22459 Hamburg
Interessante Orte
Preis- und Lageinformationen
Preistrend für Bestandsimmobilien in Niendorf