Das projektiert Fertighaus Bien-Zenker EVOLUTION 136 vereint in einer beeindruckenden Architektur Funktionalität und Stil. Mit einer großzügigen Wohnfläche von 136 m² und einem durchdachten Grundriss, der vier Zimmer umfasst, bietet dieses Haus ideale Voraussetzungen für Familien und Berufstätige. Die beiden Satteldach-Varianten verleihen dem Haus einen charmanten Charakter, während das intelligente Raumkonzept für maximalen Wohnkomfort sorgt. Im Erdgeschoss sind die Wohn- und Arbeitsbereiche harmonisch miteinander verbunden, während das Obergeschoss großzügige Schlafräume bietet, die für Rückzug und Privatsphäre sorgen. Ein besonderes Highlight ist die geradläufige Treppe, die nicht nur funktional ist, sondern auch als architektonisches Element die Diele aufwertet und einen einladenden Zugang zu den oberen Räumen schafft.
Das Bien-Zenker EVOLUTION 136 begeistert nicht nur durch seine durchdachte Aufteilung, sondern auch durch seine Lichtdurchflutung und die Verwendung von hochwertigen Materialien, die ein angenehmes Wohnklima schaffen. Die beiden Badezimmer sind optimal platziert und ermöglichen eine stressfreie Morgenroutine für die ganze Familie. Die Gestaltungsmöglichkeiten sind nahezu unbegrenzt, sodass Sie Ihr Zuhause ganz nach Ihren Wünschen und Vorstellungen gestalten können.
Mit der Ausbaustufe "Schlüsselfertig" entscheiden Sie sich für einen stressfreien Bauprozess. Bien-Zenker übernimmt den kompletten Hausbau für Sie - vom Fundament bis zur letzten Schraube. Sie können sich entspannt zurücklehnen und die Vorfreude auf Ihr neues Zuhause genießen, während wir alles für Sie vorbereiten. So sparen Sie Zeit und Nerven und können direkt nach Fertigstellung einziehen.
Bien-Zenker steht für mehr als nur ein Haus - es ist Ihr Zuhause, Ihr Ankommen und Ihre Familie. Mit über 80.000 gebauten Häusern und mehr als 115 Jahren Erfahrung ist Bien-Zenker ein Pionier im Fertighausbau. Unsere individuelle und kompetente Beratung stellt sicher, dass jede Baufamilie den Schlüssel zu ihrem Traumhaus in Händen hält. Wir verwenden wohngesunde Materialien und setzen zukunftsweisende Standards, damit Ihr neues Zuhause nicht nur heute, sondern auch in der Zukunft ein Ort des Wohlfühlens ist.
Grundrisse und Abbildungen können Extras zeigen. Flächenangaben nach DIN 277.
Bien-Zenker EVOLUTION 136 - Ihr individuell gestaltetes Traumhaus in Seelbach
56377 Seelbach
Die vollständige Adresse der Immobilie erhalten Sie vom Anbieter.
Auf Karte anzeigen
Die vollständige Adresse der Immobilie erhalten Sie vom Anbieter.
Finanzierungszertifikat
In nur zwei Minuten zu Ihrem persönlichen Finanzierungszertifkat.
Infos
| Etagenzahl | 2 |
|---|---|
| Wohnfläche ca. | 136 m2 |
| Grundstücksfläche | 1.522 m2 |
| Zimmer | 4 |
| Schlafzimmer | 3 |
| Badezimmer | 2 |
Kosten
| Kaufpreis |
508.655 € |
|---|---|
| Provision | Nein |
Finanzierungsrechner:
Kaufpreis:
600.000 €
Eigenkapital:
600.000 €
Monatliche Rate
0 €
Effektiver Jahreszins
0 %
Sollzinsbindung
10 Jahre
Bausubstanz & Energieausweis
| Baujahr | unbekannt |
|---|---|
| Qualität der Austattung | Gehoben |
Beschreibung des Objekts
Ausstattung
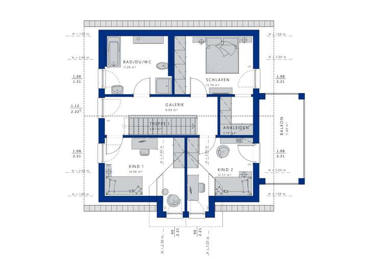
Der Grundriss des Bien-Zenker EVOLUTION 136 bietet Ihnen eine durchdachte Aufteilung mit insgesamt vier Zimmern, die sich harmonisch über zwei Etagen verteilen. Im Erdgeschoss erwartet Sie ein lichtdurchfluteter Wohn- und Essbereich, der direkt an die moderne Küche anschließt, was für eine optimale Kommunikation während des Kochens sorgt. Zudem finden Sie hier ein Gäste-WC, das sowohl für Familien als auch für Besucher äußerst praktisch ist. Im Obergeschoss befinden sich drei großzügige Schlafzimmer, die idealen Rückzugsort für die ganze Familie bieten. Mit zwei Badezimmern im Haus sind Sie bestens ausgestattet, um den Bedürfnissen aller gerecht zu werden.
Besonders hervorzuheben sind die Komfortdetails, die das Bien-Zenker EVOLUTION 136 zu einem echten Wohlfühlort machen. Eine großzügige Terrasse lädt zum Entspannen im Freien ein und wird der perfekte Ort für gesellige Abende mit Familie und Freunden. Der Abstellraum sorgt dafür, dass Sie stets Ordnung halten können, während lichtdurchflutete Räume für ein angenehmes Wohnklima und eine einladende Atmosphäre sorgen. Mit großen Fenstern genießen Sie nicht nur die Helligkeit, sondern auch den Ausblick auf Ihr großzügiges Grundstück von 1522 m², das Ihnen viel Raum für Ihre individuellen Gartenideen bietet.
Die Ausbaustufe "Schlüsselfertig" macht den Bauprozess für Sie so unkompliziert wie möglich. Sie müssen sich um nichts kümmern, denn Bien-Zenker übernimmt alle Bauarbeiten für Sie - vom Fundament bis zur letzten Schraube. Im Preis sind sämtliche Innenausbauarbeiten enthalten, sodass Sie nach Abschluss aller Arbeiten nur noch einziehen müssen. Genießen Sie den Komfort, sich um nichts kümmern zu müssen, während wir Ihr individuelles Traumhaus für Sie schaffen.
Lage
Seelbach ist nicht nur ein malerischer Ort, sondern besticht auch durch seine hervorragende Infrastruktur und die ideale Lage für Familien und Berufstätige. In unmittelbarer Nähe finden Sie eine Vielzahl von Bildungseinrichtungen, darunter Kindergärten und Schulen, die eine hohe Lebensqualität für Ihre Kinder gewährleisten. Für die tägliche Versorgung stehen Ihnen diverse Einkaufsmöglichkeiten zur Verfügung, die Sie bequem erreichen können.
Der Ort bietet zudem ein breites Spektrum an Freizeitmöglichkeiten, sei es im Bereich Sport, Kultur oder Natur. Die idyllische Umgebung lädt zu ausgedehnten Spaziergängen und Radtouren ein, während zahlreiche Sportvereine und kulturelle Veranstaltungen das Freizeitangebot abrunden. Auch die Anbindung an den öffentlichen Nahverkehr ist vorbildlich - Sie erreichen schnell und unkompliziert die umliegenden Städte und Gemeinden. Die Autobahnauffahrt ist ebenfalls nur wenige Minuten entfernt, sodass Sie auch beruflich flexibel bleiben.
In Seelbach profitieren Sie von der Ruhe und der Natur, ohne auf die Vorzüge einer gut angebundenen Infrastruktur verzichten zu müssen. Hier finden Sie den idealen Ort, um Ihr neues Zuhause zu schaffen und gleichzeitig die Annehmlichkeiten des Lebens zu genießen.
Grundriss
33598-1720-4-g
>
>
33589-1720-3-g
>
>
Adresse
56377 Seelbach
Interessante Orte
Preis- und Lageinformationen
Preistrend für Bestandsimmobilien in Seelbach