Dieses charmante Wohnhaus wurde im Jahr 2021 kernsaniert.
Dementsprechend wurden alle Leitungen (Elektrik, Wasser, Gas) erneuert, die Grundrissgestaltung modernisiert, alle Fenster und Türen ausgetauscht, das Haus gedämmt und die Fassade erneuert, das Dachgeschoss ausgebaut, das Dach selbst erneuert, die Bäder vollumfänglich saniert und die Heizungsanlage ausgetauscht, sowie weitestgehend die Außenanlage erneuert.
Das Haus bietet Ihnen auf einer Wohnfläche von ca. 130 qm einen großzügigen Wohnraum. Das Grundstück von ca. 208 qm bietet einen pflegeleichten Garten, sowie eine schöne große Terrasse hinter dem Haus. Vor dem Haus befindet sich außerdem eine weitere Terrasse, die durch modernen Sichtschutz gut nutzbar ist.
Die Raumaufteilung und die zahlreichen Highlights, lassen diese Immobilie zu einem perfekten Zuhause für Ihre Familie werden.
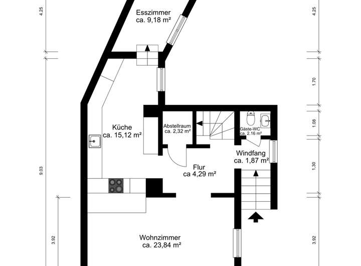
Das Haus empfängt Sie im Erdgeschoss mit einem kleinem Windfang, von welchem Sie sowohl zum Gäste-WC als auch in den Flur gelangen.
Vom Flur aus gelangen Sie in den großzügigen Wohnbereich. Im Wohnbereich gibt es zusätzlich zu den Heizkörpern noch eine elektrische Fußbodenheizung für ein ideales Wohlfühlklima.
Die angrenzende Küche ist modern an den Wohnbereich angegliedert und über einen Tresen mit dem Wohnbereich verbunden.
Die Küche wurde ebenfalls 2021 neu eingebaut. Sie bietet viel Platz für Ihre Kochideen und gemeinsames Kochen. Hinter der Küche befindet sich in einem Anbau (ehemaliges Nebengebäude) noch das schöne Esszimmer mit Blick in den Garten. Ein praktischer Abstellraum komplettiert das Erdgeschoss.
Über die Treppe gelangen Sie in das Obergeschoss. Hier befinden sich zwei freundliche Zimmer. Der kleinere der beiden Räume kann ideal als Gäste- oder Arbeitszimmer oder auch Ankleidezimmer genutzt werden. Das großzügige Kinderzimmer bietet viel Platz für kindliche Entfaltung und ist darüber hinaus mit einem eleganten Bad en Suite ausgestattet. Dieses Tageslicht-Badezimmer verfügt über eine große ebenerdige Dusche, ein Waschbecken mit Waschtisch, ein WC und eine praktische Sprossenheizung.
Das Dachgeschoss erreichen Sie über eine offene in Szene gesetzte Treppe.
Das Dachgeschoss ist voll ausgebaut. Im Zuge der Kernsanierung 2021 wurde hier auch eine großzügige Gaube errichtet. Hier befindet sich das Elternschlafzimmer, sowie ein weiteres großzügiges Badezimmer. Dieses Bad ist sowohl mit übergroßer, ebenerdiger Dusche, als auch einer Badewanne, sowie Doppelwaschbecken samt Unterschrank, WC und Sprossenheizung ausgestattet.
Das Schlafzimmer im Dachgeschoss verfügt überdies über eine Klimaanlage, so dass auch heiße Sommertemperaturen die Bewohner hier nicht ins Schwitzen bringen.
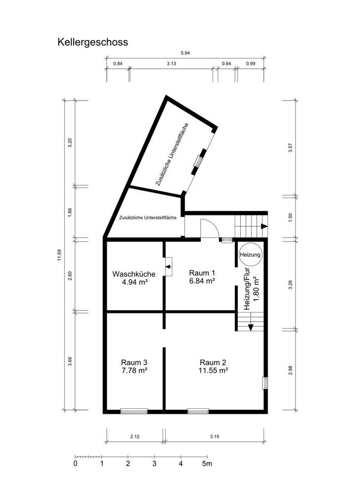
Das Haus ist voll unterkellert. Hier befinden sich Abstellräume und auch die Waschküche. Das Haus wurde ursprünglich ca. 1913 ohne Bodenplatte erbaut. Im Rahmen der Sanierung war es nicht möglich nachträglich ein Fundament zu erstellen.
Das Angebot wird durch einen einen praktischen PKW-Stellplatz auf dem Grundstück neben dem Haus ergänzt. Das Tor der Einfahrt öffnet und schließt elektrisch.
Einen Feinschliff der Außenanlagen können die neuen Eigentümer nach eigenem Geschmack noch vornehmen.
Profi Concept: Familien aufgepasst: kernsaniertes freistehendes EFH in der Langener Stadtmitte
63225 Langen (Hessen)
Die vollständige Adresse der Immobilie erhalten Sie vom Anbieter.
Auf Karte anzeigen
Die vollständige Adresse der Immobilie erhalten Sie vom Anbieter.
Finanzierungszertifikat
In nur zwei Minuten zu Ihrem persönlichen Finanzierungszertifkat.
Infos
| Haustyp | Einfamilienhaus |
|---|---|
| Etagenzahl | 3 |
| Wohnfläche ca. | 130 m2 |
| Nutzfläche | 32,9 m2 |
| Grundstücksfläche | 208 m2 |
| Bezugsfrei ab | nach Vereinbarung |
| Zimmer | 4,5 |
| Schlafzimmer | 3 |
| Badezimmer | 2 |
| Garage/Stellplatz | Außenstellplatz |
| Anzahl Garage/Stellplatz | 1 |
Kosten
| Kaufpreis |
689.000 € |
|---|---|
| Provision |
2,975% incl. MwSt. In unserer Courtage ist die gesetzliche MwSt. enthalten. Für die Besichtigung und Beratung entstehen Ihnen keinerlei Kosten und Gebühren. Gem. § 656 c BGB zahlt der Verkäufer die gleiche Courtage wie der Käufer. Unsere Courtage ist erst bei Abschluss des Kaufvertrages fällig. |
Finanzierungsrechner:
Kaufpreis:
600.000 €
Eigenkapital:
600.000 €
Monatliche Rate
0 €
Effektiver Jahreszins
0 %
Sollzinsbindung
10 Jahre
Bausubstanz & Energieausweis
| Baujahr | 2021 |
|---|---|
| Bauphase | Haus fertig gestellt |
| Objektzustand | Gepflegt |
| Qualität der Austattung | Normal |
| Heizungsart | Zentralheizung |
| Wesentliche Energieträger | Gas |
| Energieausweis | liegt vor |
| Energieausweistyp | Verbrauchsausweis |
| Energieverbrauchskennwert | 103,6 kWh/(m²*a) |
| Energieeffizienzklasse | D |
103,6
kWh/(m²*a)
Energieeffizienzklasse D
- A+
- A
- B
- C
- D
- E
- F
- G
- H
- 0
- 25
- 50
- 75
- 100
- 125
- 150
- 175
- 200
- 225
- >250
Beschreibung des Objekts
Ausstattung
Raumaufteilung im EG ca. 58 qm
- Wohnzimmer mit ca. 23,84 qm
- Küche mit ca. 15,12 qm
- Esszimmer mit ca. 9,18 qm
- Flur mit ca. 4,29 qm
- Abstellraum ca. 2,32 qm
- Gäste-WC mit ca. 12,16 qm
- Windfang mit ca. 1,87 qm
Raumaufteilung im OG ca. 40 qm
- Gäste- / Arbeitszimmer ca. 7,09 qm
- Kinderzimmer mit ca. 20,07 qm
- Tageslicht-Badezimmer mit ca. 3,51 qm
- Flur mit ca. 9,44 qm
Raumaufteilung im DG ca. 32 qm
- Schlafzimmer mit ca. 25,30 qm
- Badezimmer mit ca. 6,92 qm
Raumaufteilung im Keller ca. 32,9 qm Nutzfläche
- Raum 1 ca. 6,84 qm
- Waschküche ca. 4,94 qm
- Heizung / Flur ca. 1,80 qm
- Raum 2 ca. 11,55 qm
- Raum 3 ca. 7,78 qm
Weitere Nutzfläche ist unterhalb des Anbaus (ehemaliges Nebengebäude) in Form eines Unterstands vorhanden.
Weitere Ausstattungsmerkmale:
- Einbauküche mit:
- Inductionskochfeld (Marke Siemens)
- mit modernem Kochfeldabzug
- Backofen (Marke Siemens)
- Spülmaschine (Marke Siemens)
- Kühl- Gefrierkombination (Marke LG)
- Bodenbeläge
- im EG moderne hellgraue Fliesen
- im OG und DG Parkett
- in den Bädern Fliesen
- Klimaanlage im DG
Allgemein:
- Haus in 2021 kernsaniert
- 3-fach verglaste Kunststofffenster
- elektrische Außenrollläden an fast allen Fenstern
- neue Hauseingangstür 2021
- neue Einfriedung 2021
- im Wohnzimmer: zusätzliche Elektro-Fußbodenheizung
- im Wohnzimmer: moderne Deckenspots
- Ein Hingucker: Esszimmer als Splitlevel
- praktische Sprossenheizungen in den Bädern
- Eyecatcher: offene Treppe vom OG ins DG
- Klimaanlage im DG
- moderne Bäder
- pflegeleichter Garten mit großer Terrassen- und kleiner Grünfläche
Die Einbauküche kann gegen einen Aufpreis i.H.v. EUR 10.000,- übernommen werden.
Lage
Top - Lage im belebten Ortskern von Langen.
Langen bietet kurze Wege zu großen Nachbarn wie Frankfurt am Main (Autobahnanschlüsse A 5, A 661, Rhein-Main-Airport Nähe), sie ist eine bürgernahe und freundliche Stadt. Zahlreiche namhafte Unternehmen haben hier ihren Sitz. Hoher Wohn- und Freizeitwert sowie Gastlichkeit, Kunst und Kultur werden hier großgeschrieben.
Die Tatsache, dass es sich hier um eine infrastrukturstarke Lage handelt, macht das Wohnen an diesem Platz so attraktiv – vor allem für Familien mit Kindern. Spielplätze, Kindergärten und Schulen sind schnell und sicher zu erreichen.
Langen liegt im Kreis Offenbach, ca. 12 km südlich von Frankfurt und Offenbach und somit im Ballungsraum des Rhein-Main-Gebietes. Die Stadt liegt zentral zwischen Frankfurt und Darmstadt und nur wenige Kilometer vom Flughafen Frankfurt entfernt. Langen bietet eine perfekte Kombination aus ländlichem Flair und modernem Großstadtleben.
Mit zwei Autobahnen (A5 und A661) sowie zahlreichen Bahn-, S-Bahn-, und Busverbindungen ist Langen hervorragend in das öffentliche Verkehrsnetz eingebunden. Die Städte Frankfurt, Darmstadt und den Flughafen erreichen Sie bequem innerhalb von 20 Minuten.
Sonstige Angaben
Alle Informationen beruhen auf den Angaben des Eigentümers. Für die Richtigkeit und Vollständigkeit wird keine Haftung übernommen.
Änderungen bleiben vorbehalten.
Internetgeschwindigkeit: Verfügbarkeit laut Telekom.de bis zu 175 Mbit/s. Es handelt sich um eine unverbindliche Prüfung des Anschlusses.
Hinweis zum Geldwäschegesetz, nach § 2 Abs. 1 Nr. 10 GwG sind wir verpflichtet, Kaufinteressenten zu identifizieren. Hierzu müssen wir von jedem Interessenten die pers. Daten (BPA) aufnehmen.
Mit Ihrer Kontaktaufnahme willigen Sie bis auf Widerruf ein, dass wir Ihre Daten speichern dürfen und uns sowohl telefonisch als auch via SSL / TLS verschlüsseltem E-Mailverkehr mit Ihnen in Verbindung setzen dürfen.
Unser Service für Sie:
- Wir unterstützen Sie bei der Organisation Ihres
Umzuges.
- Wir übernehmen gerne den Verkauf oder die
Vermietung Ihrer Altimmobilie und sorgen so für
einen reibungslosen Übergang
- Wertermittlung Ihrer Immobilie über
einen Gutachter
- Finanzierungsservice mit Top-Konditionen -
Aktuell ca. 300 Finanzierungspartner
- Weitere Objekte finden Sie unter
www.proficoncept-gmbh.de
Übrigens:
Sie wissen wer eine Immobilie oder ein Grundstück verkaufen oder vermieten möchte?
Wir honorieren jede erfolgreiche Vermittlung!!!
Weitere Dokumente
GeldwäschegesetzGrundriss
Grundriss EG
>
>
Grundriss OG
>
>
Grundriss DG
>
>
Grundriss KG
>
>
Adresse
63225 Langen (Hessen)
Interessante Orte
Preis- und Lageinformationen
Preistrend für Bestandsimmobilien in Langen (Hessen)