Objektbeschreibung
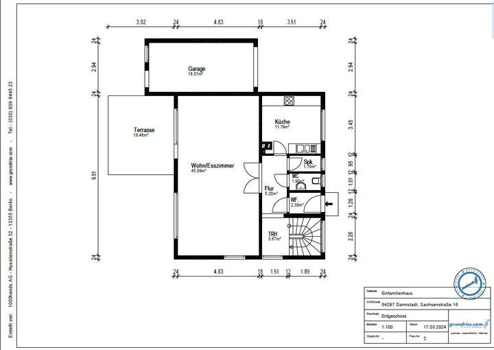
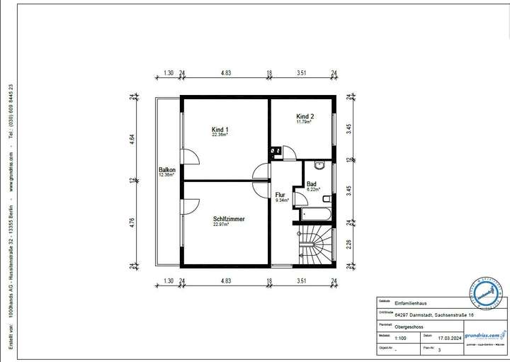
Zentral gelegen und doch ruhig mit hervorragender Infrastruktur in Darmstadt-Eberstadt befindet sich dieses 1968 erbaute Haus auf einem 560 m² großen Grundstück. Dieses allein stehende Wohnhaus verfügt über 189 m² reine Wohnfläche verteilt auf zwei Geschosse plus eine Einliegerwohnung im Souterrain. Das 560 m² große Grundstück ist in Südausrichtung angelegt und bietet einen großen sonnigen Gartenbereich. Straßenseitig vor der Immobilie befindet sich eine kleine Grünanlage.
Das Haus selbst verfügt neben offenen Grundrissen auch über hervorragende Nutzflächen dank Vollunterkellerung. Sowohl die an das Erdgeschoss angegliederte Terrasse, als auch der Südbalkon im ersten Obergeschoss, verbinden optimal die Wohnbereiche mit dem wirklich schönen äußeren Umfeld dieses feinen Wohnviertels. Baujahrbedingt verdient das Haus einige Renovierungsmaßnahmen. Gleichwohl wurden bereits einige Modernisierungen durchgeführt. Erwähnenswert sind in diesem Zusammenhang die Dacherneuerung aus dem Jahr 2007 und der Austausch des Großteils der Fenster und der Eingangstür zwischen 1994 und 2015. Aufgrund der Lage und der grundsoliden Gebäudestruktur in Verbindung mit dem wunderschönen Grundstück, stellt dieses Wohnhaus ein interessantes Immobilienangebot am hiesigen Markt dar.
Sonstiges
- 1968 massiv errichtetes Einfamilienhaus
- 560 m² großes, nach Süden ausgerichtetes Grundstück (Bodenrichtwert: 1.000 EUR / m2)
- Großer sonniger Gartenbereich mit Terrasse
- 189 m² Wohnfläche verteilt auf zwei Vollgeschosse plus große Einliegerwohnung im Souterrain
- Ca. 37 m² Nutzfläche im Keller
- Außentreppe mit Zugang zum Keller und Einliegerwohnung
- Massiv errichtete Garage auf dem Grundstück vorhanden
- Fernwärme
- Dacherneuerung aus dem Jahre 2007
- Erneuerung des Großteils der Fenster und der Eingangstür zwischen 1994 und 2015
- Es bestehen keine Mietverhältnisse
- Übergabe der Immobilie kurzfristig nach Vereinbarung möglich
- Verkauf direkt vom Eigentümer – ohne Makler!
Großzügig geschnittenes Haus – sehr gute Infrastruktur, PLZ 64297 Darmstadt Eberstadt
Sachsenstraße 16,
64297 Darmstadt
Auf Karte anzeigen
Finanzierungszertifikat
In nur zwei Minuten zu Ihrem persönlichen Finanzierungszertifkat.
Infos
| Haustyp | Einfamilienhaus |
|---|---|
| Etagenzahl | 2 |
| Wohnfläche ca. | 189 m2 |
| Nutzfläche | 37 m2 |
| Grundstücksfläche | 560 m2 |
| Bezugsfrei ab | 24.11.2025 |
| Zimmer | 5 |
| Schlafzimmer | 4 |
| Badezimmer | 2 |
| Garage/Stellplatz | Garage |
| Anzahl Garage/Stellplatz | 1 |
Kosten
| Kaufpreis |
0 € |
|---|---|
| Provision | Nein |
Finanzierungsrechner:
Kaufpreis:
600.000 €
Eigenkapital:
600.000 €
Monatliche Rate
0 €
Effektiver Jahreszins
0 %
Sollzinsbindung
10 Jahre
Bausubstanz & Energieausweis
| Baujahr | 1968 |
|---|---|
| Letzte Sanierung | 2015 |
| Bauphase | Haus fertig gestellt |
| Objektzustand | Gepflegt |
| Qualität der Austattung | Normal |
| Heizungsart | Fernwärme |
| Wesentliche Energieträger | Fernwärme |
| Energieausweis | liegt vor |
| Energieausweistyp | Bedarfsausweis |
| Energieverbrauchskennwert | 215,0 kWh/(m²*a) |
| Energieeffizienzklasse | G |
215,0
kWh/(m²*a)
Energieeffizienzklasse G
- A+
- A
- B
- C
- D
- E
- F
- G
- H
- 0
- 25
- 50
- 75
- 100
- 125
- 150
- 175
- 200
- 225
- >250
Beschreibung des Objekts
Lage
Darmstadt als die viertgrößte Stadt Hessens genießt den überregionalen Ruf als Wissenschaftsstadt und liegt inmitten der Technologieregion Rhein-Main-Neckar. Zusätzlich zu der idealen Verkehrsanbindung sowie den infrastrukturellen und kulturlandschaftlichen Qualitäten ist die Stadt insbesondere auch durch das junge, familienfreundliche Umfeld und dem hohen Freizeitwert mit viel Grün für die Kaufinteressenten besonders attraktiv. Eberstadt als südlichster Stadtteil punktet darüber hinaus insbesondere mit der landschaftlichen Qualität der hier beginnenden Hessischen Bergstraße und den unmittelbaren Anschluss an die Autobahnen A5 und A67. Die Immobilie selbst befindet sich im Westen Eberstadts in sehr familienfreundlichem Umfeld und bester Anbindung auch an öffentliche Verkehrsmittel (Bahn und Bus). Mehrere Kindergärten bzw. Kindertagesstätten, die Andersenschule als Grundschule und die Gutenbergschule als weiterführende Stadtteilschule (inkl. Gymnasialzweig) sind fußläufig im Viertel schnell und sicher erreichbar. Mehrere Ärzte befinden sich in unmittelbarer Nähe und verschiedene Einkaufsmöglichkeiten, Apotheken etc. runden das Gesamtpaket ab.
Weitere Dokumente
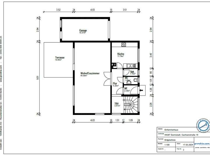
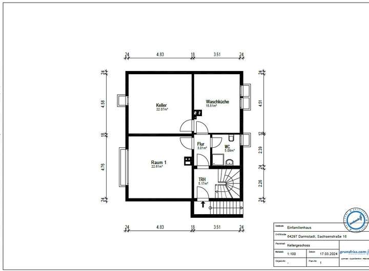
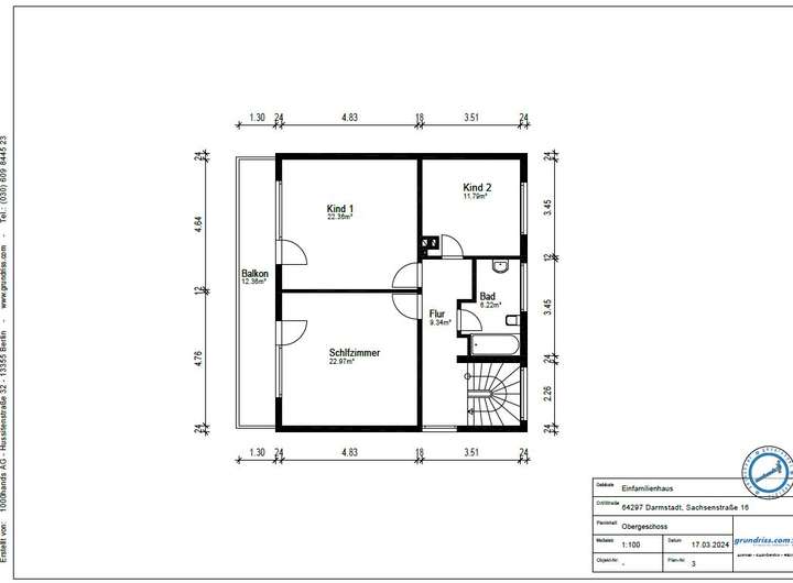
EnergieausweisGrundriss
Grundriss Sachsenstr 16 EG
>
>
Grundriss Sachsenstr 16 UG
>
>
Grundriss Sachsenstr 16 OG
>
>
Adresse
Sachsenstraße 16, 64297 Darmstadt
Interessante Orte
Preis- und Lageinformationen
Preistrend für Bestandsimmobilien in Eberstadt