Objektnr: 1067328
In der ruhigen und sicheren Lage von Nettlingen, in einer Sackgasse gelegen, befindet sich dieses charmante Haus, das sowohl zur Eigennutzung als auch zur Vermietung ideal ist. Das im Jahr 1908 erbaute Gebäude befindet sich in einem renovierungsbedürftigen Zustand und bietet somit die perfekte Gelegenheit, eigene Ideen und Vorstellungen umzusetzen.
Das Haus erstreckt sich über zwei Etagen und bietet eine Wohnfläche von ca. 220 m². Insgesamt stehen 5 Zimmer, darunter 3 Schlafzimmer, zur Verfügung. Zwei Badezimmer mit Dusche und Badewanne sorgen für Komfort im Alltag. Die vorhandenen Einbauküchen erleichtert die Gestaltung des Küchenbereichs, und ein moderner Glasfaseranschluss ist ebenfalls vorhanden, was die Immobilie zukunftssicher macht.
Das großzügige Grundstück von ca. 2.490 m² lädt zur Erholung und vielfältigen Nutzung ein. Der große Garten mit Gartenhaus und zwei Terrassen bietet Raum für private Entspannung und gesellige Zusammenkünfte. Besonders hervorzuheben ist die Eignung des Grundstücks als Mehrgenerationenhaus, da es sowohl als Zwei-Familien-Haus genutzt werden kann, als auch für Tierhaltung – beispielsweise als Weide für Pferde. Die Weitläufigkeit und die natürliche Umgebung machen das Anwesen zu einem Paradies für Natur- und Tierliebhaber.
Zur weiteren Ausstattung gehören zwei Freistellplätze, die den Komfort abrunden. Zusätzlich steht ein Nebengebäude zur Verfügung, das vielfältige Nutzungsmöglichkeiten bietet, etwa als Werkstatt, Lagerraum oder für andere kreative Projekte.
Dieses Haus bietet ein enormes Potenzial für individuelle Gestaltung, Mehrgenerationenwohnen, Tierhaltung oder auch als Anlageobjekt zur Vermietung. Gerne stehe ich für weitere Informationen oder eine Besichtigung zur Verfügung!
1 bis 2 Familienhaus inkl. Nebengebäude zur Tiernutzung mit Garten
31185 Söhlde
Die vollständige Adresse der Immobilie erhalten Sie vom Anbieter.
Auf Karte anzeigen
Die vollständige Adresse der Immobilie erhalten Sie vom Anbieter.
Finanzierungszertifikat
In nur zwei Minuten zu Ihrem persönlichen Finanzierungszertifkat.
Infos
| Haustyp | Bauernhaus |
|---|---|
| Etagenzahl | 2 |
| Wohnfläche ca. | 220 m2 |
| Grundstücksfläche | 2.490,13 m2 |
| Bezugsfrei ab | nach Absprache |
| Zimmer | 5 |
| Schlafzimmer | 3 |
| Badezimmer | 2 |
| Garage/Stellplatz | Außenstellplatz |
| Anzahl Garage/Stellplatz | 2 |
Kosten
| Kaufpreis |
149.000 € |
|---|---|
| Provision |
3,57 % Die Provision i.H.v. 3,57 % inkl. MwSt. ist mit Kaufvertragsbeurkundung fällig, sofern der Verkaufspreis über 83.000,00 € liegt. Liegt der Verkaufspreis dagegen bei/unter 83.000,00 €, ist die fest vereinbarte Mindestprovision i.H.v. mind. 5.950,00 € inkl. MwSt. mit Kaufvertragsbeurkundung fällig. Die Mindestprovision fällt insg. nur einmal an, wodurch Verkäufer und Käufer die Mindestprovision dann jeweils mit 2.975,00 € inkl. MwSt. tragen. |
Finanzierungsrechner:
Kaufpreis:
600.000 €
Eigenkapital:
600.000 €
Monatliche Rate
0 €
Effektiver Jahreszins
0 %
Sollzinsbindung
10 Jahre
Bausubstanz & Energieausweis
| Baujahr | 1908 |
|---|---|
| Bauphase | Haus fertig gestellt |
| Objektzustand | Renovierungsbedürftig |
| Heizungsart | Zentralheizung |
| Wesentliche Energieträger | Strom |
| Energieausweis | liegt vor |
| Energieausweistyp | Bedarfsausweis |
| Energieverbrauchskennwert | 322,9 kWh/(m²*a) |
| Energieeffizienzklasse | H |
322,9
kWh/(m²*a)
Energieeffizienzklasse H
- A+
- A
- B
- C
- D
- E
- F
- G
- H
- 0
- 25
- 50
- 75
- 100
- 125
- 150
- 175
- 200
- 225
- >250
Beschreibung des Objekts
Ausstattung
+ In ruhiger Umgebung von Nettlingen, sicher und beschaulich in einer Sackgasse, als Anlegerobjekt und zur Selbstnutzung
+ Entspannung im Freien: Der Garten auf ca. 2.490 m² Grund lädt zum Verweilen ein - 2 Terrassen und ein Balkon bereichern das Erlebnis
+ Das Objekt präsentiert sich in einem renovierungsbedürftigen Zustand
+ Vielseitige Ausstattung des Hauses inkl. einer Einbauküche sowie einem Glasfaseranschluss
+ Das Objekt inkl. Nebengebäude bietet Platz für Pkw dank 2 Freistellplätze
Lage
Lage: Attraktive Lage in Nettlingen mit besten Voraussetzungen für Selbstnutzer oder Anleger
Bildung und Betreuung: Familien profitieren von Kindergarten und Schule in max. 800 m Entfernung
Nahversorgung: Verschiedene Anlaufstellen wie Supermarkt, Apotheke, Postfiliale und Bankfiliale in max. 6 km
Anbindung: Nächste Bushaltestelle sowie nächste Autobahn gut erreichbar
Sonstige Angaben
Vereinbaren Sie noch heute einen Besichtigungstermin!
_____________________________________________________
Alle Angaben sind ohne Gewähr und basieren ausschließlich auf Informationen, die uns von unserem Auftraggeber zur Verfügung gestellt wurden. Wir übernehmen keine Gewähr für die Vollständigkeit, Richtigkeit und Aktualität der Angaben.
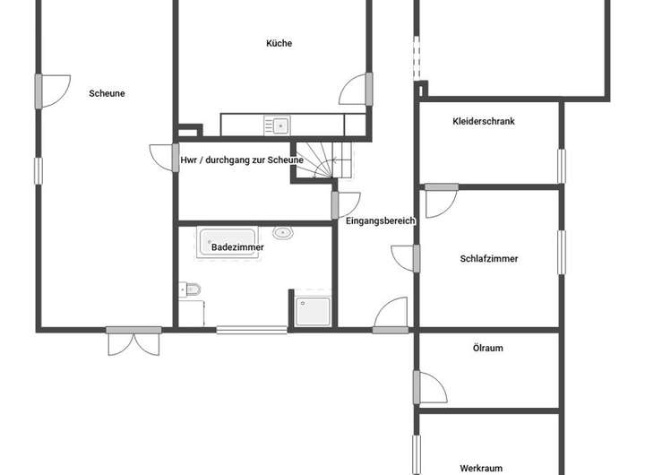
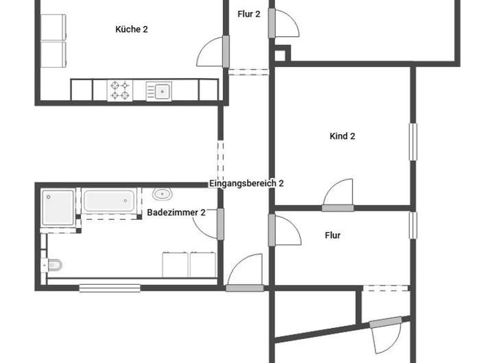
Grundriss
Grundriss Skizze EG
>
>
Grundriss Skizze1. OG
>
>
Adresse
31185 Söhlde
Interessante Orte
Preis- und Lageinformationen
Preistrend für Bestandsimmobilien in Söhlde