In Messel erwartet Sie in naturnaher Umgebung dieses wunderschöne, freistehende Haus mit 230 m² Wohnfläche auf einem 400 m² großen Grundstück, in Feldrandlage mit Süd-Ausrichtung. Das Haus verfügt zusätzlich über eine Einliegerwohnung mit separatem Eingang.
Bei dem Haus handelt es sich um einen Massivbau. Das Haus verfügt über eine moderne und hochwertige Ausstattung und ist in einem sehr guten, gepflegten Zustand. Es gibt keinerlei Instandhaltungsstau.
Der großzügige und moderne Schnitt des Hauses, der Garten und die große Terrasse mit Blick in die Natur, werden Ihnen gefallen.
Ihnen und Ihrer Familie steht ein lichtdurchfluteter, 35 m² großer, Wohn-Essbereich und separate Küche mit angegliedertem Abstell-/Vorratsraum zur Verfügung.
Im Erdgeschoß befindet sich auch die 37 m² große Einliegerwohnung, die zu den restlichen Räumen im EG geöffnet werden kann.
Im Obergeschoß stehen Ihnen 4 Schlafzimmer, ein geräumiges Tageslicht-Bad mit Badewanne sowie eine Loggia zur Verfügung.
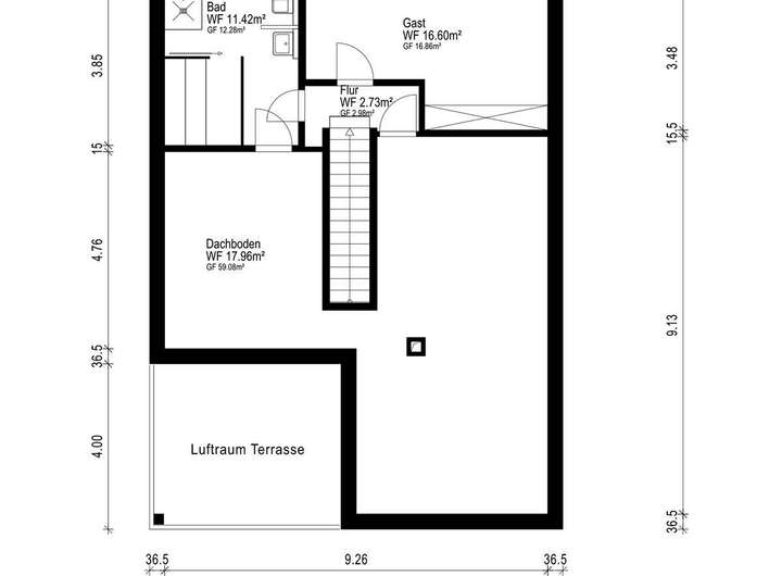
Das Dachgeschoss verfügt über ein weiteres, großzügiges Zimmer und ein Tageslicht-Bad mit integrierter Sauna.
Im Dachgeschoss finden Sie zusätzlich noch weitere Abstellflächen als Kellerersatz.
Das Außenmodul der Wärmepumpe wurde 2024 erneuert.
Das Haus verfügt nicht über einen Keller.
Freistehendes Haus mit viel Platz und Einliegerwohnung
64409 Messel
Die vollständige Adresse der Immobilie erhalten Sie vom Anbieter.
Auf Karte anzeigen
Die vollständige Adresse der Immobilie erhalten Sie vom Anbieter.
Finanzierungszertifikat
In nur zwei Minuten zu Ihrem persönlichen Finanzierungszertifkat.
Infos
| Haustyp | Einfamilienhaus |
|---|---|
| Etagenzahl | 2 |
| Wohnfläche ca. | 229 m2 |
| Grundstücksfläche | 400 m2 |
| Zimmer | 8 |
| Schlafzimmer | 6 |
| Badezimmer | 3 |
| Garage/Stellplatz | Carport |
| Anzahl Garage/Stellplatz | 3 |
Kosten
| Kaufpreis |
795.000 € |
|---|---|
| Provision |
2,975 % inkl. MwSt. |
Finanzierungsrechner:
Kaufpreis:
600.000 €
Eigenkapital:
600.000 €
Monatliche Rate
0 €
Effektiver Jahreszins
0 %
Sollzinsbindung
10 Jahre
Bausubstanz & Energieausweis
| Baujahr | 2014 |
|---|---|
| Objektzustand | Neuwertig |
| Qualität der Austattung | Gehoben |
| Heizungsart | Fußbodenheizung |
| Wesentliche Energieträger | Umweltwärme |
| Energieausweis | liegt vor |
| Energieausweistyp | Verbrauchsausweis |
| Energieverbrauchskennwert | 27,0 kWh/(m²*a) |
| Energieeffizienzklasse | A+ |
27,0
kWh/(m²*a)
Energieeffizienzklasse A+
- A+
- A
- B
- C
- D
- E
- F
- G
- H
- 0
- 25
- 50
- 75
- 100
- 125
- 150
- 175
- 200
- 225
- >250
Beschreibung des Objekts
Ausstattung
- Wärmepumpe und Photovoltaikanlage (10 kWp)
- Fußbodenheizung
- Einbauküche
- Tageslicht-Bad mit Badewanne
- Tageslicht-Bad mit Dusche
- Tageslicht-Bad mit Dusche und integrierter Sauna
- 4 Toiletten
- Sauna
- Innenkamin vorbereitet
- Einliegerwohnung mit separatem Eingang
- große Terrasse im EG
- Loggia im OG
- Carport
- Wallbox
- 2 PKW Außenstellplätze
Lage
Messel ist eine Gemeinde nordöstlich von Darmstadt und grenzt im Norden an die Städte Dreieich, Rödermark und Eppertshausen, im Osten an die Gemeinde Münster und Stadt Dieburg, im Süden an die Gemeinde Groß-Zimmern.
In Messel befindet sich die Fossilienfundstätte Grube Messel, die von der UNESCO 1995 zum UNESCO-Welterbe erklärt wurde sowie angrenzende Naturschutzgebiete, die zur Erholung dienen.
Messel bietet ein vielfältiges Freizeitangebot in über 20 Vereinen (z.B. Turnverein, Tennis, Reiterhof). Für Kinder stehen Kinder-Krippen und Kindertagesstätten sowie eine Grundschule zur Verfügung. Busse bringen die Kinder zu weiterführenden Schulen in Darmstadt.
Durch den ÖPNV erreicht man mit dem Bus Darmstadt und durch den nahe gelegenen Bahnhof das gesamte Rhein-Main-Gebiet.
Der Bahnhof Messel liegt im Ortsteil Grube Messel direkt an der Main-Rhein-Bahn (Aschaffenburg - Darmstadt - Mainz -Wiesbaden). Der Bahnhof ist über einen kombinierten Fuß- und Radfahrweg von der Gemeinde zu erreichen. Es bestehen Park-Ride-Parkplätze.
Die Autobahn A661 ist in ca. 10 Autominuten zu erreichen, die A5 ist ca. 15 Autominuten entfernt.
Mit dem Auto erreichen Sie in ca. 20 Minuten die Innenstadt von Darmstadt und in ca. 30 Minuten den Flughafen Frankfurt.
Sonstige Angaben
Bildhinweis:
Für einen erweiterten Blickwinkel der Raumansicht werden Innenräume mit einem Weitwinkelobjektiv fotografiert. Somit können die Räume größer wirken, als sie real sind.
Haftung:
Bitte beachten Sie, dass alle Angaben und von uns weitergegebenen Objektinformationen, Unterlagen, Pläne etc. vom Verkäufer bzw. Vermieter stammen. Eine Haftung für die Richtigkeit oder Vollständigkeit der Angaben und Objektinformationen übernehmen wir daher nicht. Es obliegt daher unseren Interessenten/Kunden, die darin enthaltenen Objektinformationen und Angaben auf ihre Richtigkeit hin zu überprüfen. Alle Immobilienangebote sind freibleibend und vorbehaltlich Irrtümer, Zwischenverkauf- und Vermietung oder sonstiger Zwischenverwertung.
Provisionshinweis:
Die Käufer-Provision beträgt 2,975 % vom Kaufpreis inkl. MwSt. Die Käufer-Provision ist verdient und fällig mit notarieller Beurkundung. Der Immobilienmakler hat einen provisionspflichtigen Maklervertrag in gleicher Höhe mit dem Verkäufer abgeschlossen.
sonstige Kaufnebenkosten:
Die Grunderwerbsteuer, Notar- und Grundbuchkosten sind vom Käufer zu tragen.
Grundriss
Grundriss EG
>
>
Grundriss OG
>
>
Grundriss DG
>
>
Adresse
64409 Messel
Interessante Orte
Preis- und Lageinformationen
Preistrend für Bestandsimmobilien in Messel