Entdecken Sie dieses charmante Einfamilienhaus zum Kauf, das sich auf einem großzügigen Grundstück von 329 m² befindet und eine Wohnfläche von ca. 166 m² bietet. Das Haus verfügt über 5 Zimmer, 4 Schlafzimmer und 2 Bäder, verteilt auf 3 Etagen.
Dieses historische Wohnhaus wurde um 1933 errichtet und im Laufe der Jahre durch Um- und Anbauten erweitert und regelmäßig modernisiert. Die aktuelle Eigentümerin hat das Haus ab 2022 mit viel Liebe zum Detail und hochwertigen Materialien umfassend modernisiert, um es für einen 2-Generationen-Haushalt perfekt zu machen.
Folgende Arbeiten wurden u.a. durchgeführt:
2022:
- Neue Tapeten (außer Küche EG) + neuer Anstrich im gesamten Haus
- Teilweise neue Laminat-Fußböden verlegt im OG und DG
- Neuer Backofen und Ceran Kochfeld in Küche EG
- Umbau des ehemaligen Ankleidezimmers im OG in eine Wohnküche mit neuer Küche, inkl. separater Sicherung im Keller
- Verlegung 8m Erdung im Keller
- Im gesamten Haus größtenteils neue Steckdosen installiert
- Alle Heizkörper getauscht (außer Zimmer 2 im DG)
- Einbauschrank in Zimmer 1 im OG aufbereitet
- Neue Rohrleitung gezogen für einen potenziellen Ausbau eines weiteren Badezimmer En Suite zu Zimmer 2 im DG (anstelle Balkon)
- Errichtung eines neuen Gartentores inkl. Fundament
- 2 Videokameras im Außenbereich installiert
2023:
- Terrassenüberdachung EG + OG
- Einbau einer Outdoor-Küchenzeile in der Party-Garage
2024:
- Komplett neues Badezimmer im OG mit exklusiver Ausstattung (Wert ca. 30.000 €)
- Rasen aufgebessert (neue Samen, etc.)
- Hof-Fugen gesäubert und mit speziellem Anti-Unkraut-Kies aufgefüllt
2025:
- Einbau einer neuen Rückstauklappe im Hauswirtschaftsraum
- Neue Hebeanlage im Kellerraum 4 (WC)
- Abriss einer alten Holzterrasse für mehr Gartenfläche
- Einbau neuer Klimaanlagen in den Schlafzimmern im OG + DG
Die Ausstattung des Hauses ist gehoben und bietet Ihnen allen Komfort, den Sie sich wünschen. Im Erdgeschoss und Obergeschoss finden Sie moderne Einbauküchen vor. Die Schlafzimmer sind mit einer Klimaanlage ausgestattet, um Ihnen auch in den warmen Sommermonaten ein angenehmes Raumklima zu garantieren.
Das Haus verfügt über eine in 2018 neu installierte Gas-Brennwertheizung, die für eine effiziente und gleichmäßige Wärmeverteilung sorgt. Das Wohnhaus ist zudem gedämmt und mit wärmeisolierten Fenster ausgestattet. Ein gepflegter Garten mit einer Bewässerungsanlage lädt zum Entspannen und Genießen der Natur ein.
Zur Immobilie gehören eine Garage mit zusätzlichem Stauraum darüber sowie eine ausgestattete Party-Garage für Feierlichkeiten mit Freunden und Familie. Ein großer Keller mit viel Stauraum bietet zusätzlichen Platz für Ihre Bedürfnisse.
Dieses Einfamilienhaus in Mörfelden-Walldorf ist eine hervorragende Gelegenheit für Familien, die auf der Suche nach einem gepflegten und modernisierten Zuhause sind. Vereinbaren Sie noch heute einen Besichtigungstermin und überzeugen Sie sich selbst von den Vorzügen dieses besonderen Hauses.
Viel Raum für Ihre Zukunft - Modernisiertes Familienhaus im Herzen von Mörfelden
64546 Mörfelden-Walldorf
Die vollständige Adresse der Immobilie erhalten Sie vom Anbieter.
Auf Karte anzeigen
Die vollständige Adresse der Immobilie erhalten Sie vom Anbieter.
Finanzierungszertifikat
In nur zwei Minuten zu Ihrem persönlichen Finanzierungszertifkat.
Infos
| Haustyp | Einfamilienhaus |
|---|---|
| Etagenzahl | 3 |
| Wohnfläche ca. | 165 m2 |
| Nutzfläche | 116,38 m2 |
| Grundstücksfläche | 329 m2 |
| Bezugsfrei ab | nach Absprache |
| Zimmer | 5 |
| Schlafzimmer | 4 |
| Badezimmer | 2 |
| Garage/Stellplatz | Garage |
Kosten
| Kaufpreis |
740.000 € |
|---|---|
| Preis für Garage/Stellplatz | 0 € |
| Provision |
Käuferprovision: 3,57 % inkl. MwSt. vom Kaufpreis |
Finanzierungsrechner:
Kaufpreis:
600.000 €
Eigenkapital:
600.000 €
Monatliche Rate
0 €
Effektiver Jahreszins
0 %
Sollzinsbindung
10 Jahre
Bausubstanz & Energieausweis
| Baujahr | 1933 |
|---|---|
| Letzte Sanierung | 2025 |
| Objektzustand | Modernisiert |
| Qualität der Austattung | Gehoben |
| Heizungsart | Zentralheizung |
| Wesentliche Energieträger | Gas |
| Energieausweis | liegt vor |
| Energieausweistyp | Bedarfsausweis |
| Energieverbrauchskennwert | 110,9 kWh/(m²*a) |
| Energieeffizienzklasse | D |
110,9
kWh/(m²*a)
Energieeffizienzklasse D
- A+
- A
- B
- C
- D
- E
- F
- G
- H
- 0
- 25
- 50
- 75
- 100
- 125
- 150
- 175
- 200
- 225
- >250
Beschreibung des Objekts
Ausstattung
ERDGESCHOSS:
- Großer Wohn- / Essbereich mit Kaminofen - ca. 38 m²
- Wohnküche mit moderner Einbauküche und Kochinsel - ca. 18 m²
- Modernes Tageslicht-Badezimmer mit Dusche
- Ausgang in den Garten vom Wohn- / Essbereich und von der Küche
OBERGESCHOSS:
- 2 Zimmer, 1 davon mit Ausgang auf die Dachterrasse und mit Einbauschrank
- Wohnküche mit moderner Küchenzeile
- Modernes Tageslicht-Badezimmer En-Suite mit bodengleicher Dusche und Badewanne
DACHGESCHOSS:
- 2 Zimmer, 1 mit großem Einbauschrank und 1 mit Ausgang auf den vorbereiteten Balkon
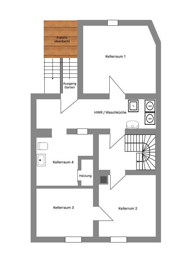
KELLER:
- Hauswirtschaftsraum mit Waschmaschinenanschlüssen und Ausgang in den Garten
- 3 große Kellerräume, eins davon mit Toilette und Waschbecken
WEITERE AUSSTATTUNGSMERKMALE:
- Bodenbeläge: Laminatboden, Fliesen
- Separater Wasseranschluss für einen Side-by-Side Kühlschrank in der Küche im EG
- Klimaanlage in den Schlafzimmern im Obergeschoss und Dachgeschoss
- 1 Garage mit Werkstatt + weitere Parkmöglichkeiten im Hof
- 1 "Party-Garage" mit Outdoor-Küchenzeile
- Über der regulären Garage weiterer Stauraum
- Rollläden an allen Fenster, teilweise mit elektrischen Gurtführern
- Hauseigene Entkalkungsanlage
Lage
Mörfelden-Walldorf, eine Doppelstadt mit ca. 35.000 Einwohnern, mit verkehrsgünstiger Anbindung an das gesamte Rhein-Main-Gebiet. Mit dem Pkw sowie mit Bus, S-Bahn, Regional- und Fernzüge erreichen Sie schnell die umliegenden Städte Frankfurt am Main, Darmstadt, Wiesbaden. Die Bundesautobahnen A 3, A 5, A 66 und A 67 sind in wenigen Fahrminuten erreichbar. Zum Frankfurter Flughafen gelangen Sie bequem und schnell mit dem Pkw oder öffentlichen Verkehrsmitteln.
Vor Ort finden Sie alle Annehmlichkeiten einer behutsam gewachsenen Stadt. Kindergärten, Schulen, Bahnhof, Gastronomie und Geschäfte des täglichen Lebens sind in unmittelbarer Nähe. Mörfelden-Walldorf ist umgeben von viel Grün (u.a. das Naturschutzgebiet Mönchbruch) und ist ein idealer Startpunkt für viele Freizeitaktivitäten.
Weitere Informationen erhalten Sie auch unter: www.mörfelden-walldorf.de
(Bild: Quelle Google-Maps)
Sonstige Angaben
Dies ist nur eines unserer Objekte. Auf unserer eigenen Homepage unter www.neumann-immobilien.de haben Sie die Möglichkeit, Einsicht in alle unsere Angebote zu nehmen. Wir freuen uns, von Ihnen zu hören.
Info zum Geldwäschegesetz (GWG) gemäß § 2 Absatz 1 Nr. 10 GWG. Nach diesem Gesetz ist jeder Immobilienmakler verpflichtet, bei Kontaktaufnahme die Identität des Kunden festzustellen, d. h., Ausweispapiere zu kopieren bzw. zu fotografieren und 5 Jahre aufzubewahren. Bitte bringen Sie zur Besichtigung ein gültiges Ausweisdokument oder die Kopie Ihres Personalausweises mit. Bei juristischen Personen oder Personengesellschaften ist ein Handelsregisterauszug notwendig.
Grundriss
Grundriss EG
>
>
Grundriss OG
>
>
Grundriss KG
>
>
Grundriss DG
>
>
Adresse
64546 Mörfelden-Walldorf
Interessante Orte
Preis- und Lageinformationen
Preistrend für Bestandsimmobilien in Mörfelden-Walldorf