Herzlich Willkommen:
Das im Jahr 1970 in massiver Bauweise errichtete Wohnhaus, welches im Jahr 1974 mit einem Anbau auf allen Stockwerken erweitert wurde, befindet sich auf einem ca. 699 qm großen Grundstück in Eltville-Rauenthal. Darüber hinaus gehört eine im hinteren Teil des Grundstücks angrenzende Gartenfläche mit insgesamt ca. 1.781 qm ebenfalls dazu. Hierbei handelt es sich gemäß des aktuellen Flächennutzungsplans um sog. „Bauerwartungsland“. Eine weitere darunter liegende Teilfläche von 566 qm kann bei Interesse ebenfalls mit erworben werden.
Das Wohnhaus besteht aus einem Keller-, Erd- und einem ausgebauten Dachgeschoss und bietet eine Wohnfläche von insgesamt ca. 167,32 qm. Darüber hinaus bietet das Haus im Kellergeschoss weitere Ausbaumöglichkeiten für eine zusätzliche Wohnfläche von ca. 25,50 qm, sodass das gesamte Wohnhaus eine Wohnfläche von 192,81 qm erhalten kann. Darüber hinaus bietet das Baufeld weitere Optionen für einen weiteren Anbau an das bestehende Wohnhaus im Bereich des hinteren Grundstücks.
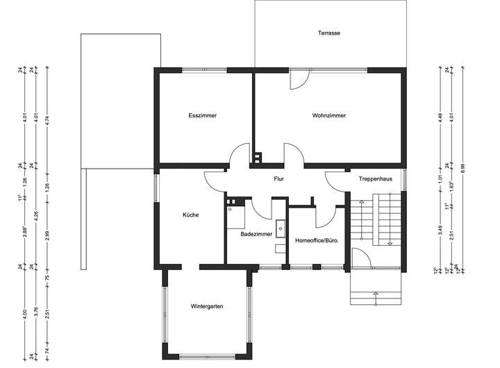
Das Wohnhaus ist quasi in 2 Wohnungen aufgeteilt, davor gelagert ist das großzügige Treppenhaus, sodass jede der Wohnungen auch separat nutzbar sind. Die Wohnung im Erdgeschoss ist aufgeteilt in eine 4-Zimmerwohnung mit einem erst vor wenigen Jahren modernisierten Tageslicht-Duschbad und mit Zugang vom Wohnzimmer auf die große uneinsehbare Süd-Terrasse und in den parkähnlichen Garten.
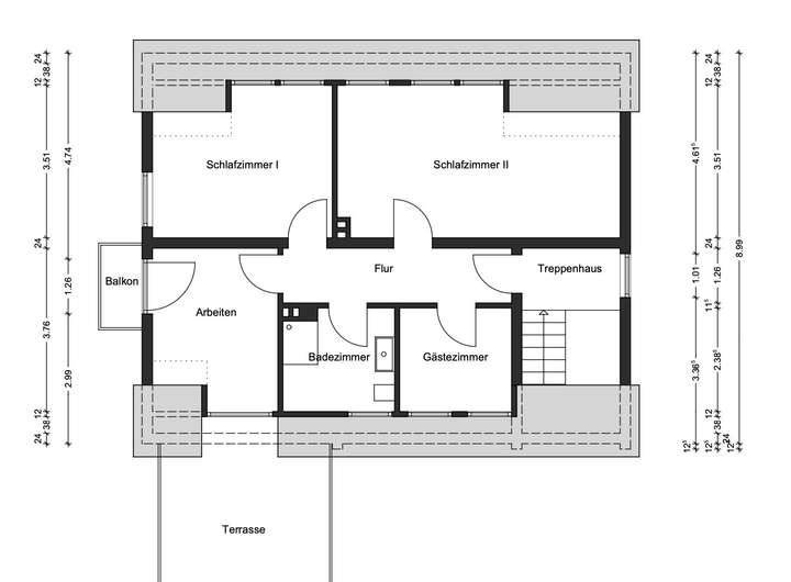
Die Wohnung im Dachgeschoss besteht aus 2-Zimmern, einem modernen Duschbad und einer schönen großen Dachterrasse mit Fernblick über die Dächer Rauenthals, und bietet eine Wohnfläche von ca. 67,00 qm.
Das sind die Highlights dieses Immobilienangebotes:
- Baugrundstück mit ca. 699 qm
- weiteres Gartengrundstück, mit einem prächtigen Baumbestand eingewachsen und mit ca. 1.781 qm Fläche (Bauerwartungsland)
- Ausrichtung der Terrasse als auch des Gartens zum Süden hin
- Garage mit direktem Zugang ins Haus und 2 Außen-Stellplätze
- Nutzung/Aufteilung in 2 Wohneinheiten möglich
- Weiteres Anbaupotential zur Vergrößerung des bestehenden Wohnhauses vorhanden
Die Immobilie befindet sich in einer ruhigen und begehrten Wohngegend von Eltville-Rauenthal, die den idealen Rückzugsort für Ihre Familie darstellen kann.
Das Anwesen präsentiert sich stolz auf einem großzügigen Grundstück. Hier können Sie die Natur in vollen Zügen genießen und entspannte Stunden im Freien verbringen. Das Anwesen ist von einer grünen Umgebung umgeben, die Ruhe und Privatsphäre gewährleistet.
Mit einer Gesamtfläche von derzeit über 167 qm Quadratmetern bietet es ausreichend Platz für eine große Familie. Die großen Fenster lassen viel Tageslicht herein und bieten einen schönen Blick auf den parkähnlichen Garten.
Das Haus verfügt über insgesamt 6 Zimmer, die alle komfortabel und einladend sind (4 im Erdgeschoss, 2 im Dachgeschoss). Hier finden Sie Ihren persönlichen Rückzugsort, um sich auszuruhen und zu regenerieren.
Weitere Highlights dieser Immobilie sind der parkähnlich angelegte Garten mit einem prachtvollen Baumbestand und eine große Terrasse, die sich perfekt für Unterhaltungen und gesellige Zusammenkünfte eignen. Hier können Sie Grillabende veranstalten, im Freien speisen oder einfach nur die Sonne genießen. Die riesigen Gartenflächen bieten auch unendlich Platz für Spiel und Spaß für Ihre Kinder.
Die Immobilie befindet sich in einem bautechnischen Zustand seiner Baualtersklasse. Insofern sind energetische Modernisierungsmaßnahmen durchzuführen. Zu den Maßnahmen zählen unter anderem:
- Erneuerung der Heiztechnik
- Austausch der Fenster sowie Haustür
- Überprüfung / Erneuerung der Elektrik
- Überprüfung / Erneuerung der Bedachung (Kunstschiefer) inkl. Dämmung
Ein Anwesen im Dornröschenschlaf mit 2.480 qm Grundstück in Wiesenrandlage nahe der Bubenhäuser Höhe
65345 Eltville am Rhein
Die vollständige Adresse der Immobilie erhalten Sie vom Anbieter.
Auf Karte anzeigen
Die vollständige Adresse der Immobilie erhalten Sie vom Anbieter.
Finanzierungszertifikat
In nur zwei Minuten zu Ihrem persönlichen Finanzierungszertifkat.
Infos
| Haustyp | Einfamilienhaus |
|---|---|
| Etagenzahl | 2 |
| Wohnfläche ca. | 167 m2 |
| Grundstücksfläche | 2.480 m2 |
| Zimmer | 6 |
| Schlafzimmer | 4 |
| Badezimmer | 2 |
| Garage/Stellplatz | Garage |
| Anzahl Garage/Stellplatz | 1 |
Kosten
| Kaufpreis |
795.000 € |
|---|---|
| Provision |
3,57 % (inkl. 19 % MwSt.) |
Finanzierungsrechner:
Kaufpreis:
600.000 €
Eigenkapital:
600.000 €
Monatliche Rate
0 €
Effektiver Jahreszins
0 %
Sollzinsbindung
10 Jahre
Bausubstanz & Energieausweis
| Baujahr | 1970 |
|---|---|
| Objektzustand | Gepflegt |
| Heizungsart | Zentralheizung |
| Wesentliche Energieträger | Öl |
| Energieausweis | liegt vor |
| Energieausweistyp | Bedarfsausweis |
| Energieverbrauchskennwert | 357,1 kWh/(m²*a) |
| Energieeffizienzklasse | H |
357,1
kWh/(m²*a)
Energieeffizienzklasse H
- A+
- A
- B
- C
- D
- E
- F
- G
- H
- 0
- 25
- 50
- 75
- 100
- 125
- 150
- 175
- 200
- 225
- >250
Beschreibung des Objekts
Ausstattung
Hereinspaziert:
Hier die Ausstattung kurz und knapp zusammengefasst:
Das Erdgeschoss:
- Hauseingang mit Treppenhaus und Zugang in alle Stockwerke
- Geräumiger Flur mit genügend Platz für Garderobe
- Schönes Wohnzimmer mit Zugang auf die Terrasse und in den Garten
- Schlafzimmer
- Hauswirtschaftsraum, auch als Home-Office oder Gäste-Zimmer nutzbar
- Geräumige Küche mit Sitzgelegenheit
- Zugang von der Küche zum „Wintergarten“
- Modernisiertes Tageslichtbad mit bodengleicher Dusche
Das Dachgeschoss:
- Flur/Diele
- Modernes Tageslicht-Duschbad
- 2 Zimmer
- Küche mit Zugang zu einem französischen Balkon (Richtung Osten) und Zugang zur großen Dachterrasse (Richtung Norden) mit einem phantastischen Ausblick über die Dächer Rauenthals auf die Taunuswälder
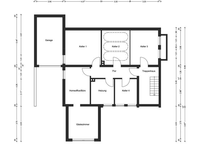
Das Kellergeschoss:
- 2 zukünftig als Wohnraum nutzbare Zimmer mit einer möglichen weiteren Wohnfläche von zusätzlich ca. 25,49 qm (derzeit Nutzfläche), gut nutzbar als Homeoffice oder Gäste-Zimmer
- Direkter Zugang vom Haus in die Garage möglich
- 2 Kellerräume
- Heizungs- und Öltankraum
Die Außenanlagen:
- Garage mit Platz für 1 PKW sowie 2 Außen-Stellplätze hintereinander
- Geräumiger Vorgarten
- SÜD-Terrasse auf der Gebäude-Rückseite
- Parkähnlich angelegte, hintere Rasenflächen mit einer Fläche von insgesamt ca. 2.700 qm (gemäß aktuellem Flächennutzungsplan ausgewiesenes „Bauerwartungsland“).
Was Sie sonst noch wissen sollten:
- Die Immobilie wird von dem Eigentümer bewohnt. Eine Freistellung erfolgt nach Absprache
- Ein Energieauswies liegt vor und kann zur Besichtigung eingesehen werden
Lage
Willkommen:
Die Immobilie befindet sich im Eltviller Ortsteil „Rauenthal“ in der Nähe der Bubenhäuser Höhe in direkter Wiesenrand- und Weinbergslage.
Rauenthal ist ein romantischer Ort im vorderen Rheingau und ist mit 255 Meter der höchst gelegene Ortsteil der Stadt Eltville. Beliebt bei Weinkennern, Wanderern und Sportlern sind die vielfältigen Angebote für eine angenehme Freizeit- und Lebensgestaltung. Der Ort liegt in Halbhöhenlage, dies garantiert ein gutes Klima und herrliche Ausblicke ins Rheintal, den Taunus und nach Wiesbaden und Mainz.
Entspannung und Erholung in frischer Luft, sowie weitreichende, kulturelle Angebote prägen die Lebens- und Wohnqualität Ihres neuen Wohnortes.
Das bietet Ihnen Rauenthal:
- Eine moderne Grundschule (Otfried Preußler Schule – www.grundschule-rauenthal.de)
- Viele Gutsschänken und Gaststätten
- Eine Bankfiliale
- Einen Kindergarten
- Einen Bäcker und „Dorf-Laden“
- Unzählige Wanderwege
Die Verkehrsanbindung an das Rhein-Main-Gebiet ist über Autobahnen und öffentliche Verkehrsmittel gut gelöst; zum Flughafen Frankfurt benötigen Sie nicht mehr als 30 Minuten.
Sonstige Angaben
Haben wir Ihr Interesse geweckt? Dann zögern Sie nicht, uns zu kontaktieren, um eine Besichtigung zu vereinbaren.
Für Rückfragen und Besichtigungstermine stehen wir Ihnen gerne zur Verfügung. Wir freuen uns über Ihre Kontaktaufnahme. Bitte senden Sie uns hierzu eine Anfrage über das Internetportal Immobilienscout24.de inklusive Ihrer Telefonnummer. Wir melden uns schnellstmöglich bei Ihnen.
Bitte beachten Sie, dass bei Abschluss eines notariellen Kaufvertrages über dieses Objekt, das von uns angeboten wird, eine Käuferprovision in Höhe von 3,57 % inklusive 19 % Mehrwertsteuer aus dem Kaufpreis fällig wird. Diese Provision ist bei der Beurkundung des Kaufvertrages zu entrichten.
Wir weisen darauf hin, dass POLZ & FUHR - Zukunftsfähige Immobilien GbR auch einen Maklervertrag mit dem Eigentümer im Rahmen einer Doppeltätigkeit abgeschlossen hat. Der Eigentümer verpflichtet sich ebenfalls zu einer Provisionszahlung in gleicher Höhe.
Alle Informationen wurden von uns mit größter Sorgfalt veröffentlicht. Da wir jedoch oft auf Informationen der Auftraggeber angewiesen sind, können wir keine Gewähr oder Garantie für die Richtigkeit übernehmen.
Grundriss
Erdgeschoss
>
>
Dachgeschoss
>
>
Kellergeschoss
>
>
Exposé EG
>
>
Dachgeschoss
>
>
Kellergeschoss
>
>
Adresse
65345 Eltville am Rhein
Interessante Orte
Preis- und Lageinformationen
Preistrend für Bestandsimmobilien in Eltville am Rhein