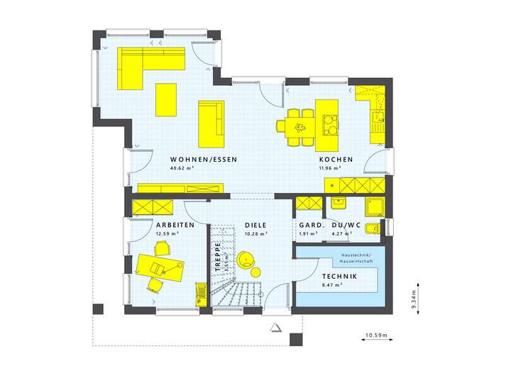
Willkommen in deinem zukünftigen Zuhause in Bad Camberg! Dieses einzigartige Fertighaus bietet dir auf einer großzügigen Wohnfläche von 165 m² und zwei Etagen alles, was das Herz begehrt. Der stilvolle Satteldach mit einer Neigung von 25 Grad verleiht dem Haus seinen charmanten Charakter und sorgt für eine optimale Raumausnutzung. Besonders hervorzuheben sind die Übereck-Erker, die einen hellen, offenen Wohn- und Essbereich schaffen. Hier kannst du mit Familie und Freunden unvergessliche Momente erleben und das Licht in vollen Zügen genießen.
Das Konzept von LivingHaus ist auf deine individuellen Wünsche und Vorstellungen abgestimmt. Vom ersten Planungsschritt bis zum letzten Handgriff während des Innenausbaus wirst du von einem engagierten Team begleitet. Mit der hochwertigen Traumküche von Living Haus, die perfekt auf deinen Grundriss zugeschnitten ist, kannst du sofort nach dem Einzug kulinarische Köstlichkeiten zaubern.
Das Living Haus Bau-Cockpit sorgt dafür, dass du während des gesamten Bauprojekts den Überblick behältst. Mit der innovativen App hast du Zugriff auf alle wichtigen Informationen, von Zeitplänen bis hin zu Dokumenten, und das alles bequem auf deinem Smartphone.
Mit I-KON, dem intelligenten Bauen von LivingHaus, wird dein Zuhause nicht nur ästhetisch, sondern auch energieeffizient. Dank der fortschrittlichen Dämmung und Heiztechnik erreichst du die Standards eines Effizienzhauses 55 und schont somit sowohl deinen Geldbeutel als auch die Umwelt.
Finanziell wirst du ebenfalls bestens unterstützt: Das Zuhause-Darlehen bietet dir attraktive Konditionen und staatliche Fördermöglichkeiten, um deinen Traum vom Eigenheim zu realisieren.
Das Zuhause-Paket sorgt dafür, dass du von Anfang an in einem perfekt ausgestatteten Haus lebst. Vom modernen Bodenbelag über elegante Türen bis hin zu stilvollen Sanitäranlagen - alles ist aufeinander abgestimmt und wird fix und fertig geliefert.
Wenn du dein Zuhause nach deinen eigenen Vorstellungen gestalten möchtest, bietet dir das DIY-Ausbau-Coaching die Möglichkeit, dein handwerkliches Geschick zu entwickeln und die Innenräume selbst auszubauen - mit professioneller Unterstützung an deiner Seite.
Dein individuelles LivingHaus: Traumhaus nach Wunsch in Bad Camberg
65520 Bad Camberg
Die vollständige Adresse der Immobilie erhalten Sie vom Anbieter.
Auf Karte anzeigen
Die vollständige Adresse der Immobilie erhalten Sie vom Anbieter.
Finanzierungszertifikat
In nur zwei Minuten zu Ihrem persönlichen Finanzierungszertifkat.
Infos
| Etagenzahl | 2 |
|---|---|
| Wohnfläche ca. | 165 m2 |
| Grundstücksfläche | 365 m2 |
| Zimmer | 5 |
Kosten
| Kaufpreis |
469.188 € |
|---|
Finanzierungsrechner:
Kaufpreis:
600.000 €
Eigenkapital:
600.000 €
Monatliche Rate
0 €
Effektiver Jahreszins
0 %
Sollzinsbindung
10 Jahre
Bausubstanz & Energieausweis
| Baujahr | unbekannt |
|---|
Beschreibung des Objekts
Ausstattung
Dein zukünftiges Zuhause überzeugt mit einer umfassenden Ausstattung, die keine Wünsche offenlässt. Du erhältst eine hochwertige Traumküche, die individuell auf deinen Grundriss und deine Bedürfnisse abgestimmt ist. Das Zuhause-Paket umfasst moderne Böden, edle Türen und stilvolle Sanitäranlagen, die deinem Haus den perfekten Abschluss geben. Zusätzlich profitierst du von den innovativen I-KON-Lösungen, die dein Zuhause energieeffizient gestalten. Die Living Haus Bau-App hilft dir, den Überblick über dein Bauprojekt zu behalten. Mit dem DIY-Ausbau-Coaching wirst du zum Profi im Innenausbau und kannst dein Zuhause ganz nach deinen Vorstellungen gestalten. All dies macht dein zukünftiges Haus zu einem "Wie ich es will Fertighaus".
Lage
Bad Camberg bietet eine hervorragende Lebensqualität für Familien, Naturliebhaber und Pendler. In der Nähe findest du mehrere Kindergärten und Schulen, darunter die Grundschule Bad Camberg und die Gesamtschule, die beide für ihre engagierten Lehrkräfte und hervorragenden Bildungsangebote bekannt sind. Für den täglichen Bedarf stehen dir zahlreiche Supermärkte wie REWE und EDEKA zur Verfügung, die bequem erreichbar sind. Die medizinische Versorgung ist durch Ärzte und Apotheken vor Ort bestens gesichert.
Freizeitangebote kommen ebenfalls nicht zu kurz: Der nahegelegene Bad Camberger Wald lädt zu ausgedehnten Spaziergängen und Radtouren ein, während der Camberger Stadtpark ein idealer Ort für Familien ist, um die Natur zu genießen und die Kinder spielen zu lassen.
Die Anbindung an den öffentlichen Nahverkehr ist gut: Der Bahnhof Bad Camberg bietet regelmäßige Verbindungen nach Frankfurt und in umliegende Städte. Über die Autobahn A3 bist du ebenfalls schnell in größeren Städten wie Wiesbaden oder Mainz. Diese Lage kombiniert die Vorzüge des ländlichen Lebens mit der Nähe zur Großstadt und ist somit ideal für Pendler.
Adresse
65520 Bad Camberg
Interessante Orte
Preis- und Lageinformationen
Preistrend für Bestandsimmobilien in Bad Camberg