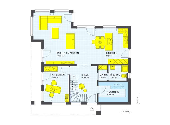
Willkommen in deinem zukünftigen Zuhause in Aarbergen! Dieses stilvolle Fertighaus mit einem eleganten Satteldach und einer Neigung von 25 Grad ist nicht nur ein architektonisches Highlight, sondern auch ein Ort, an dem du das Gefühl von Geborgenheit und Wohlbefinden erleben wirst. Mit fünf großzügigen Zimmern und einer Wohnfläche von 165 m² auf einem 595 m² großen Grundstück bietet dieses zweigeschossige Eigenheim viel Platz für deine individuellen Wohnträume.
Die Übereck-Erker sorgen für einen lichtdurchfluteten Wohn- und Essbereich, in dem du unvergessliche Momente mit Freunden und Familie verbringen kannst. Das Konzept von LivingHaus ist darauf ausgelegt, dir eine maßgeschneiderte Lösung zu bieten, die perfekt auf deine Wünsche und Vorstellungen abgestimmt ist. Von der Architektur bis zur Ausstattung wird alles auf deine Bedürfnisse zugeschnitten, damit du dein ideales Zuhause gestalten kannst.
Zusätzlich bietet LivingHaus eine Vielzahl von Leistungen, die deinen Bauprozess noch angenehmer gestalten. Die Traumküche von LivingHaus wird passgenau für deinen Grundriss entworfen und überzeugt mit modernster Technik sowie durchdachten Stauraumlösungen. Du erhältst eine hochwertige Küche, die rechtzeitig zu deinem Einzug geliefert wird - bereit für die ersten Kochabenteuer!
Das LivingHaus Bau-Cockpit, eine innovative App, ermöglicht es dir, den Überblick über dein Bauprojekt zu behalten. Alle wichtigen Informationen, von Zeitplänen bis zur Dokumentenverwaltung, sind digital und jederzeit zugänglich, was dir ein stressfreies Bauen ermöglicht.
Mit I-KON, dem intelligenten Bauen von LivingHaus, profitierst du von einer nachhaltigen und energieeffizienten Bauweise. Dein Zuhause erfüllt die Standards eines Effizienzhauses 55 und sorgt somit für niedrige Energiekosten und ein umweltfreundliches Wohnen.
Ein Zuhause-Darlehen von bis zu 250.000 EUR zu attraktiven Konditionen erleichtert dir die Finanzierung deines Traumhauses. Zudem erhältst du das Zuhause-Paket, das eine hochwertige Grundausstattung mit modernen Böden, stilvollen Sanitäranlagen und edlen Türen umfasst.
Für kreative Köpfe bietet das DIY-Ausbau-Coaching die Möglichkeit, den Innenausbau selbst in die Hand zu nehmen. In nur drei Tagen wirst du von Experten geschult, wie du dein Zuhause nach deinen Vorstellungen gestalten kannst.
Mit LivingHaus erhältst du nicht nur ein schlüsselfertiges Zuhause, sondern auch ein durchdachtes Gesamtkonzept, das dir Sicherheit und Flexibilität bietet - damit dein Traumhaus so einzigartig wird wie du selbst!
LivingHaus: Dein individuelles Traumhaus in Aarbergen
65326 Aarbergen
Die vollständige Adresse der Immobilie erhalten Sie vom Anbieter.
Auf Karte anzeigen
Die vollständige Adresse der Immobilie erhalten Sie vom Anbieter.
Finanzierungszertifikat
In nur zwei Minuten zu Ihrem persönlichen Finanzierungszertifkat.
Infos
| Etagenzahl | 2 |
|---|---|
| Wohnfläche ca. | 165 m2 |
| Grundstücksfläche | 595 m2 |
| Zimmer | 5 |
Kosten
| Kaufpreis |
508.938 € |
|---|
Finanzierungsrechner:
Kaufpreis:
600.000 €
Eigenkapital:
600.000 €
Monatliche Rate
0 €
Effektiver Jahreszins
0 %
Sollzinsbindung
10 Jahre
Bausubstanz & Energieausweis
| Baujahr | unbekannt |
|---|
Beschreibung des Objekts
Ausstattung
Die Ausstattung deines LivingHaus lässt keine Wünsche offen: Du kannst dich auf eine hochwertige Grundausstattung freuen, die moderne Böden, edle Türen und stilvolle Sanitäranlagen umfasst. Die Küchenplanung erfolgt individuell und ohne unverbindliche Gutscheine. Mit dem DIY-Ausbau-Coaching wirst du zum Experten deines eigenen Innenausbaus. Zudem erhältst du eine umfassende 18-monatige Festpreisgarantie, die dir Sicherheit gibt. Das Zuhause-Paket bietet dir alles fix und fertig, damit du sofort loslegen kannst. Die innovative I-KON-Lösung sorgt für eine umweltfreundliche und energieeffiziente Bauweise mit einer integrierten PV-Anlage. Das alles macht dein Zuhause zu deinem "Wie ich es will Fertighaus".
Lage
Aarbergen ist nicht nur ein idyllischer Ort, sondern bietet auch eine hervorragende Lebensqualität für Familien, Naturliebhaber und Pendler. In unmittelbarer Nähe findest du zahlreiche Bildungseinrichtungen, darunter die Grundschule Aarbergen sowie Kindergärten, die für eine gute Betreuung und frühkindliche Förderung sorgen. Supermärkte und Fachgeschäfte sind ebenfalls gut erreichbar, sodass du deinen täglichen Einkauf bequem erledigen kannst.
Für die ärztliche Versorgung stehen dir mehrere Arztpraxen in der Umgebung zur Verfügung, die dir eine umfassende medizinische Betreuung bieten. Freizeitangebote wie Wander- und Radwege in der idyllischen Natur laden zu Aktivitäten im Freien ein. Die Anbindung an den öffentlichen Personennahverkehr ist optimal, sodass du die Städte in der Umgebung schnell erreichen kannst. Zudem sorgt die nahegelegene Autobahn für eine unkomplizierte Anbindung an das Verkehrsnetz, was besonders für Pendler von großem Vorteil ist. In Aarbergen vereinen sich also die Vorzüge des Landlebens mit einer guten Erreichbarkeit urbaner Zentren - ideal für dein zukünftiges Zuhause!
Adresse
65326 Aarbergen
Interessante Orte
Preis- und Lageinformationen
Preistrend für Bestandsimmobilien in Aarbergen