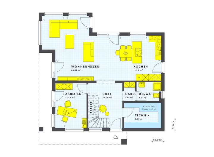
Willkommen in deinem zukünftigen Zuhause in Weilmünster! Dieses großzügige Fertighaus mit einem stilvollen Satteldach und einer Neigung von 25 Grad bietet dir auf 165 m² Wohnfläche und in insgesamt 5 Zimmern ausreichend Platz für deine Familie. Besonders beeindruckend sind die Übereck-Erker, die nicht nur für einen großen Wohn- und Essbereich im Erdgeschoss sorgen, sondern auch viel Licht hereinlassen und ein behagliches Zuhause-Gefühl erzeugen. Das zweigeschossige Konzept ermöglicht dir zudem eine klare Trennung von Wohn- und Schlafbereichen, während die durchdachte Raumaufteilung für optimale Funktionalität sorgt.
LivingHaus bietet dir darüber hinaus eine Reihe einzigartiger Zusatzleistungen, die dein Bauprojekt noch einfacher und individueller gestalten. Mit der hochwertigen Traumküche, die perfekt auf deinen Grundriss abgestimmt wird, kannst du direkt nach dem Einzug in dein neues Zuhause loskochen. Die Küche ist nicht nur funktional, sondern besticht auch durch modernes Design und clevere Stauraumlösungen.
Das Living Haus Bau-Cockpit sorgt dafür, dass du zu jedem Zeitpunkt den Überblick über dein Bauprojekt behältst. Egal ob Zeitplan oder Dokumentenverwaltung - alles ist digital und einfach zugänglich, um dir einen stressfreien Bauprozess zu ermöglichen.
Mit I-KON - Intelligentes Bauen bieten wir dir eine nachhaltige Lösung, die dein Zuhause energieeffizient und umweltfreundlich macht. Als Effizienzhaus 55 benötigt es nur 55 % der Energie eines Standardhauses, was nicht nur der Umwelt zugutekommt, sondern auch deine Energiekosten reduziert.
Das Zuhause-Darlehen von LivingHaus ermöglicht dir eine attraktive Finanzierung deines Traumhauses mit besonderen Vorteilen, während das Zuhause-Paket eine hochwertige Grundausstattung bietet, die alles Notwendige umfasst, um dein Haus sofort bezugsfertig zu machen.
Und wenn du gerne selbst Hand anlegen möchtest, steht dir unser DIY-Ausbau-Coaching zur Verfügung. In nur drei Tagen zeigen dir erfahrene Experten, wie du den Innenausbau meisterst. So wird dein neues Zuhause wirklich zu deinem eigenen Meisterwerk!
Dein individuelles Traumhaus in Weilmünster - Raum für Familie und Zukunft
35789 Weilmünster
Die vollständige Adresse der Immobilie erhalten Sie vom Anbieter.
Auf Karte anzeigen
Die vollständige Adresse der Immobilie erhalten Sie vom Anbieter.
Finanzierungszertifikat
In nur zwei Minuten zu Ihrem persönlichen Finanzierungszertifkat.
Infos
| Etagenzahl | 2 |
|---|---|
| Wohnfläche ca. | 165 m2 |
| Grundstücksfläche | 359 m2 |
| Zimmer | 5 |
Kosten
| Kaufpreis |
447.588 € |
|---|
Finanzierungsrechner:
Kaufpreis:
600.000 €
Eigenkapital:
600.000 €
Monatliche Rate
0 €
Effektiver Jahreszins
0 %
Sollzinsbindung
10 Jahre
Bausubstanz & Energieausweis
| Baujahr | unbekannt |
|---|
Beschreibung des Objekts
Ausstattung
Dein neues Zuhause ist mit einer Vielzahl an hochwertigen Ausstattungsmerkmalen versehen. Dazu gehören moderne Böden, edle Türen und stilvolle Sanitäranlagen, die alle optimal aufeinander abgestimmt sind. Das Badezimmer verfügt über bodengleiche Duschen mit Echtglasabtrennung, während im gesamten Erdgeschoss Fliesen verlegt werden. Für deine individuelle Küche musst du dich nicht mit unverbindlichen Gutscheinen herumschlagen, denn diese wird speziell für dich geplant und direkt im Haus integriert. Zudem erhältst du eine komplette Ausstattung für den Innenausbau, inklusive hochwertiger Materialien und einer effizienten Wärmepumpentechnik mit Komfortlüftung. Das Paket wird durch aluminiumgeschäumte Rollläden ergänzt, die sowohl im Sommer für Hitzeschutz als auch im Winter für Wärmedämmung sorgen. So entsteht ein harmonisches Wohnklima in deinem "Wie ich es will Fertighaus".
Lage
Weilmünster bietet dir eine hervorragende Lebensqualität in einer naturnahen Umgebung. Hier findest du zahlreiche Schulen und Kindergärten, die sich ideal für Familien eignen. Die Grundschule und die Gesamtschule Weilmünster genießen einen guten Ruf und sind fußläufig erreichbar. Für die Kleinen gibt es mehrere Spielplätze und Freizeitmöglichkeiten in der Umgebung, die das Familienleben bereichern. Einkaufsmöglichkeiten sind ebenfalls gut vorhanden. Supermärkte und Fachgeschäfte sind schnell erreichbar, sodass du alle Dinge des täglichen Bedarfs bequem einkaufen kannst. Auch medizinische Versorgung ist in Weilmünster gewährleistet - mehrere Ärzte und Apotheken befinden sich in der Nähe.
Freizeitangebote sind vielfältig: Ob Wandern, Radfahren oder einfach die Natur genießen - die idyllische Umgebung lädt dazu ein, die Freizeit aktiv zu gestalten. Für Pendler ist Weilmünster ideal gelegen, mit guter Anbindung an die Autobahn A45 sowie an den ÖPNV, sodass du schnell in die umliegenden Städte gelangst. Dieser Ort ist somit perfekt für Familien, Naturliebhaber und alle, die die Vorzüge der Natur und gleichzeitig die Annehmlichkeiten der Stadt genießen möchten.
Adresse
35789 Weilmünster
Interessante Orte
Preis- und Lageinformationen
Preistrend für Bestandsimmobilien in Weilmünster