In begehrter Wohnlage von Wiesbaden-Breckenheim präsentiert sich dieses großzügige 2-Familien-Haus als seltene Gelegenheit für Familien. Hier ist Mehrgenerationenwohnen möglich. Es eignet sich aber auch hervorragend als Kapitalanlage.
Das Haus bietet eine solide Bausubstanz, viel Platz und eine hervorragende Grundstückssituation - ist jedoch sanierungs- und modernisierungsbedürftig und eignet sich daher ideal für Käufer mit Gestaltungswillen und Blick für Potenziale.
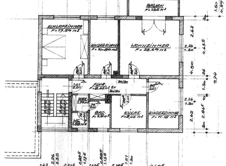
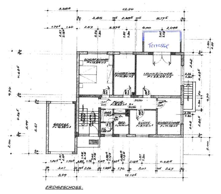
Die Wohnfläche verteilt sich auf zwei Wohnungen mit je ca. 90 m² (2 x 4 Zimmer).
Im Dachgeschoß befinden sich 2 Räume, Küche und Bad. Diese Fläche ist der ehemalige Speicher. Dieser ist jetzt wohnähnlich ausgebaut. Hier erwarten Sie ca. 41 m².
Außerdem stehen ca. 88 m² Nutzfläche zur Verfügung.
Insgesamt:
ca. 180 m² Wohnfläche
+ ca. 41 m² wohnlich ausgeb. Fläche
+ ca. 88 m² Nutzfläche
Das große Grundstück mit ca. 632 m² bietet zusätzliche Nutzungsmöglichkeiten von Garten und Terrassenbereich bishin zu Erweiterungen je nach Bauvorschriften.
Dieses Objekt bietet die Chance, ein Haus nach eigenen Vorstellungen zu gestalten und gleichzeitig von einer der beliebtesten Lagen im Wiesbadener Osten zu profitieren.
"Großzügiges 2-Familien-Haus in attraktiver Lage von Wi.-Breckenheim - großes Potenzial vorhanden!"
65207 Wiesbaden
Die vollständige Adresse der Immobilie erhalten Sie vom Anbieter.
Auf Karte anzeigen
Die vollständige Adresse der Immobilie erhalten Sie vom Anbieter.
Finanzierungszertifikat
In nur zwei Minuten zu Ihrem persönlichen Finanzierungszertifkat.
Infos
| Haustyp | Sonstige |
|---|---|
| Wohnfläche ca. | 180 m2 |
| Nutzfläche | 88 m2 |
| Grundstücksfläche | 632 m2 |
| Zimmer | 8 |
Kosten
| Kaufpreis |
690.000 € |
|---|---|
| Provision | Nein |
Finanzierungsrechner:
Kaufpreis:
600.000 €
Eigenkapital:
600.000 €
Monatliche Rate
0 €
Effektiver Jahreszins
0 %
Sollzinsbindung
10 Jahre
Bausubstanz & Energieausweis
| Heizungsart | Nachtspeicherofen |
|---|---|
| Wesentliche Energieträger | Strom |
| Energieausweis | liegt vor |
| Energieausweistyp | Bedarfsausweis |
| Energieverbrauchskennwert | 209,2 kWh/(m²*a) |
Beschreibung des Objekts
Lage
Wiesbaden-Breckenheim ist ein charmanter Vorort von Wiesbaden. Er verspricht eine freundliche Nachbarschaft und eine moderate Bevölkerungsdichte.
Die öffentliche Verkehrsanbindung ist ausgezeichnet.
Einkaufsmöglichkeiten können Sie bequem zu Fuß erreichen.
Die Gegend ist als sicher bekannt und besonders attraktiv für Familien und Berufstätige, die eine ruhige und freundliche Umgebung schätzen.
Sonstige Angaben
Baujahr Haus 1970
Baujahr Wärmeerzeuger 1990-1994
Grundriss
EG
>
>
OG
>
>
KG
>
>
Adresse
65207 Wiesbaden
Interessante Orte
Preis- und Lageinformationen
Preistrend für Bestandsimmobilien in Breckenheim