Zum Verkauf steht eine großzügige Villa im Split Level Stil in begehrter Top-Lage von Kronberg-Schönberg auf einem nach Südwesten ausgerichteten ca. 1.169 m² großen Grundstück mit Blick auf die Burgen Kronberg und Falkenstein.
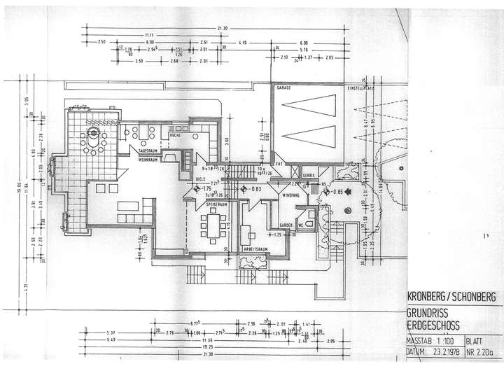
Das Haus mit gut 300 m² Wohnfläche sowie ca. 90 m² Nutzfläche aus dem Ursprungsbaujahr 1978 ist durchdacht geplant und ausgestattet, bei einem Eigentümerwechsel um 1993 nochmals renoviert worden und bietet viele interessante Details wie:
-Parkähnlich angelegtes Grundstück mit schönen Verweilplätzen und großzügiger Gartenterrasse
-Gartendesign und Bepflanzung im Rahmen eines Uni-Wettbewerbs als Diplomarbeit geplant und umgesetzt.
-Breite, beheizte Doppelgarage mit elektrischem Torantrieb, davor 2 weitere PKW-Stellplätze
-Massive moderne Zaunanlage zur Straßenfront mit elektrischem Torantrieb.
-Split-Level Bauweise im EG und Gartengeschoß
-Großzügiger Wohn-/Essbereich im EG mit über 60 m² und Kaminecke sowie direktem Zugang zum teilüberdachten Balkon über die gesamte Hausbreite mit Blick und Südwest Ausrichtung.
-Küche mit großer Stellfläche und kleinem Essbereich und Zugang zur Außensitzgruppe auf dem Balkon.
-Aktuell 4 Schlafbereiche, im Dachgeschoß Master-Bedroom mit vorgelagerter Ankleide und Bad en Suite
-Überwiegend bodentiefe Verglasung mit breiten Schiebetürelementen zu den Balkonen und Terrassen
-Großzügiger, aktuell wohnlich genutzter Büro-/Praxisbereich im Gartengeschoß.
(Dieser ist in der kalkulierten Wohnfläche enthalten, aktuell jedoch als Praxisfläche umgewidmet (ca.60 m²).
-Schwimmhalle mit Saunabereich im Gartengeschoß mit Zugang zur Terrasse.
-Hauswirtschaftsraum und großer Vorratskeller im Zwischengeschoß
-Abstellraum mit Außenzugang für Gartengeräte, Fahrräder etc. mit angrenzendem großem weiteren Wirtschaftskeller
-Massiv gebautes Architektenhaus mit gedämmter Putzfassade. Dacheindeckung und Außenwandverkleidungen aus schwarzem Kunstschiefer (Faserzement).
-Heizung (Erdgas) aus dem Jahr 2007
-Umbau Tankraum zu Keller/Archiv
-Kleines Gewächshaus
Das Haus wurde permanent instandgehalten und präsentiert sich baulich in einem guten Zustand.
Nichtsdestotrotz besteht Renovierungsbedarf, um diesem Haus mit Stil und Wohlfühlcharakter neuen Glanz zu verleihen.
Jetzt gilt es für Sie, dieses überaus interessante Objekt schnellstens kennen zu lernen. Ich freue mich auf Ihre Kontaktaufnahme.
Verschaffen Sie sich vorab ergänzend zu diesem Exposé ein noch besseres Raumgefühl und lassen Sie sich von mir online durch das Objekt führen. Zur Terminvereinbarung schreiben Sie mir über das Kontaktformular oder rufen mich an.
Dies ist eine ideale und intensive Vorab-Einstimmung auf das Objekt und hilft Ihnen bei der Entscheidung auf dem Weg zu einer realen Besichtigung vor Ort.
Unternehmer-Villa in Bestlage von Kronberg-Schönberg
61476 Kronberg im Taunus
Die vollständige Adresse der Immobilie erhalten Sie vom Anbieter.
Auf Karte anzeigen
Die vollständige Adresse der Immobilie erhalten Sie vom Anbieter.
Finanzierungszertifikat
In nur zwei Minuten zu Ihrem persönlichen Finanzierungszertifkat.
Infos
| Haustyp | Villa |
|---|---|
| Wohnfläche ca. | 309 m2 |
| Nutzfläche | 95 m2 |
| Grundstücksfläche | 1.169 m2 |
| Zimmer | 7 |
| Badezimmer | 1 |
| Garage/Stellplatz | Garage |
| Anzahl Garage/Stellplatz | 2 |
Kosten
| Kaufpreis |
1.750.000 € |
|---|---|
| Provision |
3,57% inkl. MwSt. |
Finanzierungsrechner:
Kaufpreis:
600.000 €
Eigenkapital:
600.000 €
Monatliche Rate
0 €
Effektiver Jahreszins
0 %
Sollzinsbindung
10 Jahre
Bausubstanz & Energieausweis
| Baujahr | 1978 |
|---|---|
| Heizungsart | Zentralheizung |
| Wesentliche Energieträger | Gas |
Beschreibung des Objekts
Lage
Das Objekt befindet sich in Spitzenlage im Villenviertel von Kronberg-Schönberg mit viel Grün in direkter Umgebung. Kurze Wege in den Wald, in die Parkanlagen oder auch zum Golf-Club Kronberg.
Gute Anbindung an die Infrastruktur mit Schulen, Kindergärten, Sportmöglichkeiten, Restaurants und vielen Einkaufsmöglichkeiten.
Die S-Bahn nach Frankfurt erreichen Sie in gut 10 Minuten bequem mit dem Stadtbus.
Sonstige Angaben
Gerne führen wir gemeinsam mit Ihnen eine Besichtigung durch und stehen Ihnen mit weiteren Informationen jederzeit zur Verfügung.
Für die in diesem Exposé gemachten Angaben können wir leider keine Haftung übernehmen, da diese auf den Angaben der Eigentümer/von Dritten beruhen.
Die von Ihnen im Falle des Abschlusses eines Kaufvertrages zu zahlende Maklerprovision beträgt 3,57% des Kaufpreises inkl. MwSt. verdient und fällig bei notarieller Beurkundung. Wir haben einen provisionspflichtigen Maklervertrag in gleicher Höhe mit dem Verkäufer abgeschlossen, § 656 c BGB.
Dieses Angebot ist ausschließlich für Sie bestimmt, eine Weitergabe bedarf der vorhergehenden Zustimmung durch uns und löst anderenfalls eine Provisionsverpflichtung aus.
Änderungen der Bedingungen und anderweitige Verwertung behält sich der Eigentümer jederzeit vor.
Adresse
61476 Kronberg im Taunus
Interessante Orte
Preis- und Lageinformationen
Preistrend für Bestandsimmobilien in Kronberg im Taunus