Entdecken Sie Ihr neues Zuhause in Mörfelden-Walldorf! Dieses charmante Haus bietet mit seinen 140 m² Wohnfläche und einem großzügigen Grundstück von 578 m² ausreichend Platz für die ganze Familie.
Das Haus erstreckt sich über 3 Etagen und präsentiert sich in einem gepflegten Zustand.
Der Keller sowie der Dachboden des Hauses bieten zusätzlichen Stauraum.
Der Außenbereich überzeugt mit einem schönen Garten, der zum Entspannen und Genießen einlädt. Ein Wintergarten schafft zusätzlich eine wunderbare Verbindung zwischen Innen- und Außenbereich.
Dieses Haus in Mörfelden-Walldorf ist die perfekte Gelegenheit für alle, die eine gepflegte Immobilie mit viel Platz und Charme suchen. Vereinbaren Sie noch heute einen Besichtigungstermin und lassen Sie sich von diesem Zuhause begeistern!
Gepflegtes Einfamilienhaus mit Garten und Wintergarten in Mörfelden-Walldorf
64546 Mörfelden-Walldorf
Die vollständige Adresse der Immobilie erhalten Sie vom Anbieter.
Auf Karte anzeigen
Die vollständige Adresse der Immobilie erhalten Sie vom Anbieter.
Finanzierungszertifikat
In nur zwei Minuten zu Ihrem persönlichen Finanzierungszertifkat.
Infos
| Haustyp | Sonstige |
|---|---|
| Etagenzahl | 2 |
| Wohnfläche ca. | 146 m2 |
| Nutzfläche | 71 m2 |
| Grundstücksfläche | 578 m2 |
| Bezugsfrei ab | nach Absprache |
| Zimmer | 5 |
| Schlafzimmer | 3 |
| Badezimmer | 3 |
| Garage/Stellplatz | Garage |
| Anzahl Garage/Stellplatz | 2 |
Kosten
| Kaufpreis |
620.000 € |
|---|---|
| Provision | Nein |
Finanzierungsrechner:
Kaufpreis:
600.000 €
Eigenkapital:
600.000 €
Monatliche Rate
0 €
Effektiver Jahreszins
0 %
Sollzinsbindung
10 Jahre
Bausubstanz & Energieausweis
| Baujahr | 1960 |
|---|---|
| Letzte Sanierung | 2017 |
| Bauphase | Haus fertig gestellt |
| Objektzustand | Gepflegt |
| Qualität der Austattung | Normal |
| Heizungsart | Öl-Heizung |
| Wesentliche Energieträger | Öl |
| Energieausweis | liegt vor |
| Energieausweistyp | Bedarfsausweis |
| Energieverbrauchskennwert | 367,0 kWh/(m²*a) |
| Energieeffizienzklasse | H |
367,0
kWh/(m²*a)
Energieeffizienzklasse H
- A+
- A
- B
- C
- D
- E
- F
- G
- H
- 0
- 25
- 50
- 75
- 100
- 125
- 150
- 175
- 200
- 225
- >250
Beschreibung des Objekts
Ausstattung
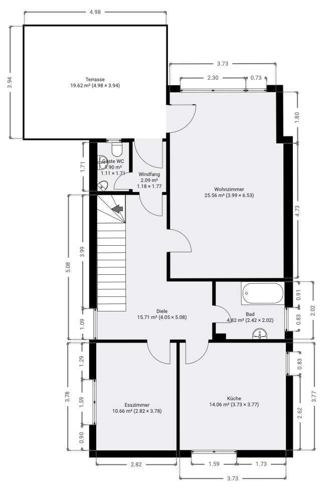
Erdgeschoss, bestehend aus:
Wohnzimmer, Küche, 1 Zimmer, Badezimmer, Gäste-WC
- Einbauküche ohne Geräte
- Badezimmer mit Tageslicht, 2 Waschbecken, Dusche und Badewanne
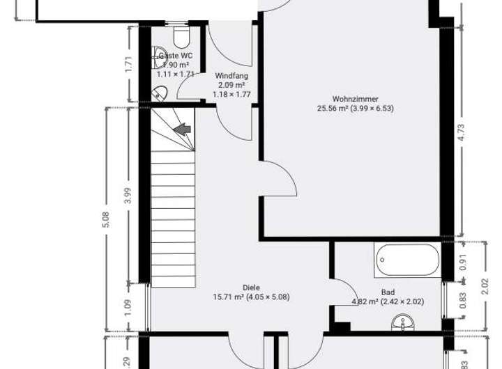
Obergeschoss, bestehend aus:
3 Zimmer, Badezimmer, Flur
- Wintergarten (Südausrichtung)
- Einbauschrank
- Zugang zum Dachboden im Flur
Kellergeschoss, bestehend aus:
zusätzlichem Badezimmer, 1 Raum, Flur mit Abstellnische, Waschküche, Heizungsraum
- Zusätzlich von außen zu erreichen
Bodenbeläge: Fliesen, Laminat, Parkett
Sonstige Ausstattungsmerkmale:
- Holztreppen, Massivholzdecken
- Garage mit elektrischem Tor, im Kaufpreis enthalten
- Außenstellplatz im Hof, im Kaufpreis enthalten
- Gepflegter Garten
Lage
Mörfelden-Walldorf, eine Doppelstadt mit ca. 35.000 Einwohnern, mit verkehrsgünstiger Anbindung an das gesamte Rhein-Main-Gebiet. Mit dem Pkw sowie mit Bus, S-Bahn, Regional- und Fernzüge erreichen Sie schnell die umliegenden Städte Frankfurt am Main, Darmstadt, Wiesbaden. Die Bundesautobahnen A 3, A 5, A 66 und A 67 sind in wenigen Fahrminuten erreichbar. Zum Frankfurter Flughafen gelangen Sie bequem und schnell mit dem Pkw oder öffentlichen Verkehrsmitteln.
Vor Ort finden Sie alle Annehmlichkeiten einer behutsam gewachsenen Stadt. Kindergärten, Schulen, Bahnhof, Gastronomie und Geschäfte des täglichen Lebens sind in unmittelbarer Nähe. Mörfelden- Walldorf ist umgeben von viel Grün (u.a. das Naturschutzgebiet Mönchbruch) und ist ein idealer Startpunkt für viele Freizeitaktivitäten.
Weitere Informationen erhalten Sie auch unter: www.mörfelden-walldorf.de
Bildquelle: Google Maps
Sonstige Angaben
Dies ist nur eines unserer Objekte. Auf unserer eigenen Homepage unter www.neumann-immobilien.de haben Sie die Möglichkeit, Einsicht in alle unsere Angebote zu nehmen. Wir freuen uns, von Ihnen zu hören.
Info zum Geldwäschegesetz (GWG) gemäß § 2 Absatz 1 Nr. 10 GWG. Nach diesem Gesetz ist jeder Immobilienmakler verpflichtet, bei Kontaktaufnahme die Identität des Kunden festzustellen, d. h., Ausweispapiere zu kopieren bzw. zu fotografieren und 5 Jahre aufzubewahren. Bitte bringen Sie zur Besichtigung ein gültiges Ausweisdokument oder die Kopie Ihres Personalausweises mit. Bei juristischen Personen oder Personengesellschaften ist ein Handelsregisterauszug notwendig.
Grundriss
Grundriss EG
>
>
Grundriss OG
>
>
Grundriss KG
>
>
Adresse
64546 Mörfelden-Walldorf
Interessante Orte
Preis- und Lageinformationen
Preistrend für Bestandsimmobilien in Mörfelden-Walldorf