Eingeschossiges Einfamilienhaus, Dachgeschoss und Spitzboden ausgebaut, vollunterkellert
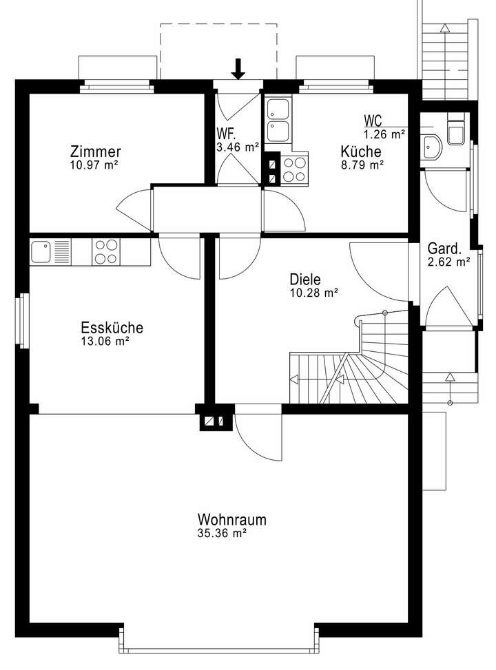
EG: Windfang, Diele, 3 Zimmer, Küche, Badezimmer, Gäste-WC
DG: 4 ½ Zimmer, Badezimmer
Spitzboden: ausgebaut
Keller: 3 Räume, Garage
Großer Garten mit Terrasse
Ölzentralheizung, abgängig und defekt.
Ein Energieausweis wird z.Z. erstellt.
Zustand: komplett sanierungs-bedürftig bzw. abgängig
Baurecht:
Bebauungsplan Marienthal 29
WR II o 3 Wo E (B)
max. zulässige Grundfläche: 200m²
vordere Baugrenze: 10 m
hintere Baugrenze: 28 m
Marienthal: Einfamilienhaus/Baugrundstück
22041 Hamburg
Die vollständige Adresse der Immobilie erhalten Sie vom Anbieter.
Auf Karte anzeigen
Die vollständige Adresse der Immobilie erhalten Sie vom Anbieter.
Finanzierungszertifikat
In nur zwei Minuten zu Ihrem persönlichen Finanzierungszertifkat.
Infos
| Haustyp | Sonstige |
|---|---|
| Wohnfläche ca. | 147 m2 |
| Nutzfläche | 130 m2 |
| Grundstücksfläche | 855 m2 |
| Bezugsfrei ab | sofort |
| Zimmer | 6 |
| Schlafzimmer | 4 |
| Badezimmer | 1 |
| Garage/Stellplatz | Garage |
Kosten
| Kaufpreis |
839.000 € |
|---|---|
| Provision |
3,27% inkl. MwSt. 3,27 % des Kaufpreises inkl. 19% gesetzlicher Mehrwertsteuer vom Käufer (Verbraucher) im Erfolgsfall an die Firma AREALES GmbH Chartered Surveyors zu zahlen. Mit dem Verkäufer besteht ein Maklervertrag zur Zahlung der Courtage in gleicher Höhe. Die Provision errechnet sich aus dem beurkundeten Kaufpreis. |
Finanzierungsrechner:
Kaufpreis:
600.000 €
Eigenkapital:
600.000 €
Monatliche Rate
0 €
Effektiver Jahreszins
0 %
Sollzinsbindung
10 Jahre
Bausubstanz & Energieausweis
| Baujahr | 1954 |
|---|---|
| Objektzustand | Renovierungsbedürftig |
| Qualität der Austattung | Einfach |
| Heizungsart | Öl-Heizung |
| Wesentliche Energieträger | Öl |
| Energieausweis | liegt zur Besichtigung vor |
Beschreibung des Objekts
Sonstige Angaben
Nachdem Sie Ihre Anfrage über das Immobilienportal gestellt haben, rufen Sie uns bezüglich einer Besichtigung oder für weitere Informationen gerne zu den üblichen Bürozeiten an.
Besichtigungstermine vereinbaren wir ausschließlich telefonisch.
Alle Angaben nach bestem Wissen. Irrtum und Zwischenverkauf vorbehalten. Dieses Exposé ist eine Vorinformation, als Rechtsgrundlage gilt allein der notariell abgeschlossene Kaufvertrag
Grundriss
Grundriss EG
>
>
Grundriss 1.OG
>
>
Grundriss Keller
>
>
Adresse
22041 Hamburg
Interessante Orte
Preis- und Lageinformationen
Preistrend für Bestandsimmobilien in Marienthal