I-KON vereint intelligente Haustechnik in Form von Photovoltaik-Anlage, Batteriespeicher und Wechselrichter. Mit der zukunftsweisenden Luft-Luft-Wärmepumpe von Proxon und Sonnenenergie vom eigenen Dach reduzieren Sie Ihre Stromkosten erheblich. Investieren Sie Ihr Erspartes in Ihre Wohnträume, anstatt hohe Stromrechnungen zu bezahlen. In unserer HausStatterei wählen Sie individuell Ihre Innenausbaumaterialien aus, die termingerecht auf die Baustelle geliefert werden. Im Hauspreis sind alle notwendigen Verarbeitungsmaterialien wie Silikon, Schrauben, Fliesenkleber, Fugenmaterial, Sockelleisten etc. enthalten. Dies garantiert Ihrer Bank die erfolgreiche Fertigstellung des Projekts. Zudem bieten wir eine 18-monatige Festpreisgarantie. Kontaktieren Sie mich - ich halte weitere besondere Angebote für Sie bereit! Weitere Ausstattungsdetails präsentiere ich Ihnen gerne persönlich.
LivingHaus: Innovation trifft Wohntraum
64354 Reinheim
Die vollständige Adresse der Immobilie erhalten Sie vom Anbieter.
Auf Karte anzeigen
Die vollständige Adresse der Immobilie erhalten Sie vom Anbieter.
Finanzierungszertifikat
In nur zwei Minuten zu Ihrem persönlichen Finanzierungszertifkat.
Infos
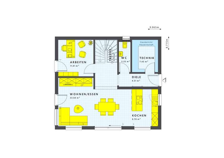
| Haustyp | Einfamilienhaus |
|---|---|
| Etagenzahl | 2 |
| Wohnfläche ca. | 145 m2 |
| Grundstücksfläche | 503 m2 |
| Zimmer | 5 |
| Schlafzimmer | 3 |
| Badezimmer | 1 |
Kosten
| Kaufpreis |
619.137 € |
|---|
Finanzierungsrechner:
Kaufpreis:
600.000 €
Eigenkapital:
600.000 €
Monatliche Rate
0 €
Effektiver Jahreszins
0 %
Sollzinsbindung
10 Jahre
Bausubstanz & Energieausweis
| Baujahr | 2026 |
|---|---|
| Bauphase | Haus in Planung (projektiert) |
| Qualität der Austattung | Gehoben |
| Heizungsart | Wärmepumpe |
| Energieausweis | liegt vor |
| Energieausweistyp | Bedarfsausweis |
| Energieverbrauchskennwert | 18,0 kWh/(m²*a) |
| Energieeffizienzklasse | A+ |
18,0
kWh/(m²*a)
Energieeffizienzklasse A+
- A+
- A
- B
- C
- D
- E
- F
- G
- H
- 0
- 25
- 50
- 75
- 100
- 125
- 150
- 175
- 200
- 225
- >250
Beschreibung des Objekts
Ausstattung
Im Kaufpreis enthalten sind:
+ Baugrundstück
+ Ausbaustufe Plus
+ 18-monatige Preisgarantie
+ Baupreisindexgarantie
+ Nolte Küche mit Einbaugeräten von Bosch
+ Zuhause-Paket - Materialien für den Innenausbau
+ Komplett gedämmte und beplankte Wände
+ Bodenplatte inkl. Baugrunduntersuchung
+ Architekt inkl. Bauantragsplanung
+ Estrich
+ Holztreppe
+ Sanitärgrundinstallation mit Material und Montage
+ Elektroinstallation mit Material und Montage
+ Wohlfühl-Klima-Heizung Material und Montage
+ I-KON (intelligent konfiguriert): PV-Anlage, Wechselrichter und Speicher mit Material und Montage inklusive
+ Modernes Haustürelement mit 5-fach Sicherheitsverriegelung
+ Dreifach Wärmeschutzverglasung
+ Eingebaute Rollläden
+ Aluminium Außenfensterbänke in verschiedenen Farben
+ Dachrinnen und Fallrohre bis Oberkante Bodenplatte in verschiedenen Farben
+ Dacheindeckung in verschiedenen Farben
+ DGNB-Zertifizierung Gold auf das Ausbauhaus Plus
+ Produktion Made in Germany
+ Hervorragender Kundendienst Service
+ Montage Ihres Living Hauses durch erfahrenes Montage-Team
+ Baustellen-WC
+ Sammlung und Entsorgung der Baustellenabfälle
+ Bauherren-Versicherungspaket
Lage
Das Grundstück befindet sich in einem Stadtteil von Reinheim innerhalb eines kleinen Neubaugebiets mit Anliegerstraße. Es misst etwa 20 m in der Breite, ist linksseitig rund 26,5 m tief und rechtsseitig circa 23 m tief. Der Bau von zwei Vollgeschossen ist gestattet. Sowohl Kindergarten als auch Grundschule sind vor Ort und bequem zu Fuß erreichbar. Reinheim bietet sämtliche notwendige Infrastruktur. Die Ortschaft Roßdorf liegt nur 5 km entfernt, während die Stadt Darmstadt lediglich 14 km entfernt ist.
Sonstige Angaben
Zusätzliche Leistungen für Ihr LIVING HAUS:
+ 18-monatige Preisgarantie ab Auftragsbestätigung
+ Baupreisindexgarantie
+ 30 Jahre Garantie auf die Grundkonstruktion des Gebäudes hinsichtlich der Qualität des tragenden Holzrahmenwerks (Schwellen, Pfosten und Pfetten) sowie der tragenden Decken- und Dachbalken.
+ 5 Jahre Gewährleistung nach BGB auf übrige Bauleistungen
+ 3 Tage Ausbau-Coaching vor Ort mit der DIY Academy
+ Architekt im Hauspreis inklusive
+ Bodengutachten im Hauspreis inklusive
+ Energieberaterkosten im Hauspreis inklusive
+ AAA-Unternehmensrating - Creditreformzertifikat
+ Eigenes Bemusterungszentrum
einfach vieles mehr...
Weitere Dokumente
ChecklisteAdresse
64354 Reinheim
Interessante Orte
Preis- und Lageinformationen
Preistrend für Bestandsimmobilien in Reinheim
>
>