Verwirkliche deine Träume, gründe eine Familie und finde endlich deinen Ort der Ankunft. Ein eigenes Haus markiert nicht nur das Ende einer langen Reise, sondern auch den Beginn eines neuen Lebensabschnitts voller Möglichkeiten. Das SUNSHINE 164 bietet großzügigen Raum für all deine Ideen und Wünsche. Du liebst es, Zeit mit deiner Familie und Freunden zu verbringen? Dann wirst du den offenen Wohn-, Ess- und Kochbereich schätzen. Dieser kann auf Wunsch durch einen stilvollen Erker oder ein Querhaus erweitert werden. Wenn dir nach Ruhe ist, findest du deinen Rückzugsort unter dem Dach. Ob dein SUNSHINE 164 sich als klassisches Satteldachhaus oder als moderne Bauhausvilla mit Flachdach zeigt, bleibt vollkommen dir überlassen. Gestalte es ganz nach deinem Geschmack!
LivingHaus: Dein Traumhaus für ein neues Lebenskapitel
56368 Klingelbach
Die vollständige Adresse der Immobilie erhalten Sie vom Anbieter.
Auf Karte anzeigen
Die vollständige Adresse der Immobilie erhalten Sie vom Anbieter.
Finanzierungszertifikat
In nur zwei Minuten zu Ihrem persönlichen Finanzierungszertifkat.
Infos
| Haustyp | Einfamilienhaus |
|---|---|
| Etagenzahl | 2 |
| Wohnfläche ca. | 164 m2 |
| Grundstücksfläche | 840 m2 |
| Zimmer | 5 |
| Schlafzimmer | 3 |
| Badezimmer | 2 |
Kosten
| Kaufpreis |
506.924 € |
|---|
Finanzierungsrechner:
Kaufpreis:
600.000 €
Eigenkapital:
600.000 €
Monatliche Rate
0 €
Effektiver Jahreszins
0 %
Sollzinsbindung
10 Jahre
Bausubstanz & Energieausweis
| Baujahr | 2026 |
|---|---|
| Bauphase | Haus in Planung (projektiert) |
| Qualität der Austattung | Gehoben |
| Heizungsart | Wärmepumpe |
| Energieausweis | liegt vor |
| Energieausweistyp | Bedarfsausweis |
| Energieverbrauchskennwert | 18,0 kWh/(m²*a) |
| Energieeffizienzklasse | A+ |
18,0
kWh/(m²*a)
Energieeffizienzklasse A+
- A+
- A
- B
- C
- D
- E
- F
- G
- H
- 0
- 25
- 50
- 75
- 100
- 125
- 150
- 175
- 200
- 225
- >250
Beschreibung des Objekts
Ausstattung
Dieses Living Haus Effizienzhaus 55 I-KON ist ein Ausbauhaus Plus. Lediglich der Innenausbau (Maler- und Tapezierarbeiten, Bodenbeläge, Innentüren, Fliesenarbeiten und die Montage der Sanitärobjekte) muss in Eigenregie erfolgen. Die benötigten Materialien sind im Preis enthalten und können mit professioneller Beratung ausgewählt werden.
Technik und Ausstattung:
- Bodenplatte
- Wohlfühl-Klima-Heizung
- 8,91 KWp Photovoltaik-Anlage
- Wechselrichter
- Batteriespeicher
- Küche
- Zusätzlich gedämmte Aluminium-Rollläden
- Effizienz 55 Thermowand mit Energiepass
- 3-fach Verglasung
- Blower Door Test
- Bodengutachten
- Hochwertige Markenprodukte bei der Ausstattung
- Fachberatung
- Festpreisgarantie für 18 Monate
- Baupreisindexgarantie
- Alles aus einer Hand
- 30 Jahre Garantie auf die Grundkonstruktion des Gebäudes hinsichtlich der Güte des tragenden Holzrahmenwerks (Schwellen, Pfosten und Pfetten), der Gebäudeaußenwände sowie der tragenden Decken- und Dachbalken.
- 5 Jahre auf alle übrigen Leistungen am Haus.
- Ausschließlich Made in Germany.
Die Abbildungen können Sonderbauteile enthalten.
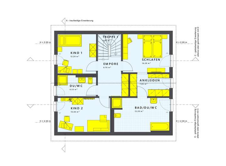
Änderungswünsche an Grundrissen sind ohne weitere Kosten möglich.
Lage
Klingelbach ist eine charmante Gemeinde im Bundesland Rheinland-Pfalz, eingebettet in eine wunderschöne Landschaft, die ideal für Outdoor-Aktivitäten wie Wandern und Radfahren ist. Als Teil des Landkreises Limburg-Weilburg gehört sie zur Verbandsgemeinde Diez.
Hier genießt man eine ruhige ländliche Atmosphäre sowie eine hohe Lebensqualität dank zahlreicher lokaler Einrichtungen wie Schulen, Geschäften und Freizeitmöglichkeiten.
Das Grundstück befindet sich in einem Neubaugebiet mit einer Straßenbreite von ca. 26 m und einer Tiefe von ca. 31 m. Die Erschließungsarbeiten sind abgeschlossen - dem unmittelbaren Baubeginn steht also nichts mehr im Weg.
GRUNDSTÜCKS-SERVICE
(Falls das hier angebotene Grundstück nicht zusagen sollte)
Wir helfen dir dabei, schnell dein ideales Baugrundstück zu finden. Unsere erfahrenen Hausberater verfügen über ein breites Netzwerk von Immobilienfachleuten in deiner Region. Solltest du bereits einen Bauplatz haben: umso besser! Wir unterstützen dich dennoch gerne weiter mit unserem Grundstücks-Service.
Sonstige Angaben
Für dein LIVING HAUS erhältst du zudem:
+ Eine 18-monatige Preisgarantie ab Auftragsbestätigung.
+ Baupreisindexgarantie.
+ Eine 30-jährige Garantie auf die Grundkonstruktion des Gebäudes hinsichtlich der Güte des tragenden Holzrahmenwerks (Schwellen, Pfosten und Pfetten) sowie der tragenden Decken- und Dachbalken.
+ Eine 5-jährige Gewährleistung gemäß BGB auf alle übrigen Bauleistungen.
+ Drei Tage Ausbau-Coaching vor Ort mit der DIY Academy.
+ Architektenleistungen sind bereits im Hauspreis inkludiert.
+ Bodengutachten sind ebenfalls im Preis enthalten.
+ Energiebereiterkosten inklusive im Hauspreis.
+ AAA-Unternehmensrating - Crefozertifikat.
+ Ein eigenes Bemusterungszentrum.
u.v.m.
Weitere Dokumente
ChecklisteAdresse
56368 Klingelbach
Interessante Orte
Preis- und Lageinformationen
Preistrend für Bestandsimmobilien in Klingelbach
>
>