Dieses sanierte, charmante Einfamilienhaus im begehrten Alt-Bessungen bietet mit einer Wohnfläche von ca. 159 m², verteilt auf drei Etagen, vielfältige Nutzungsmöglichkeiten und überzeugt durch seine einzigartige und durchdachte Raumaufteilung mit viel Platz und Privatsphäre für Sie und Ihre Familie.
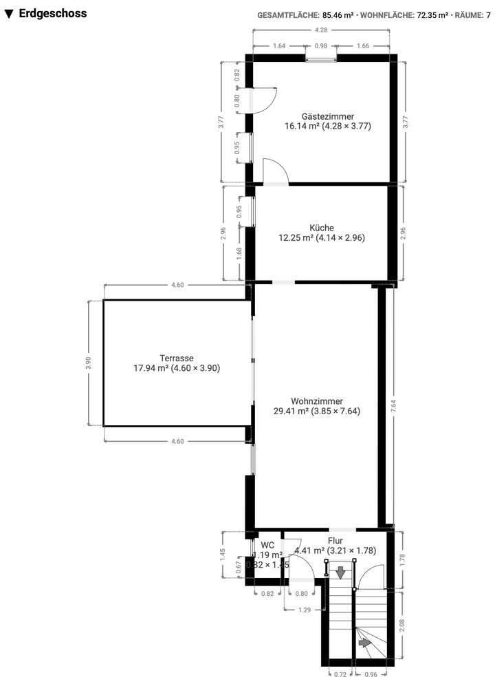
Im Erdgeschoss empfängt Sie ein einladender Wohn- und Essbereich mit direktem Blick in den eingewachsenen Garten. Ein Speicher-Kaminofen sorgt für gemütliche Stunden mit Ihren Lieben.
In der anschließenden Küche mit Durchreiche zum Essbereich finden Sie ausreichend Platz, um fantastische Abendessen zuzubereiten. Ein weiteres Zimmer lässt sich als Gästezimmer bzw. Büro nutzen und ermöglicht Ihnen die Trennung von Arbeit und Privatsphäre.
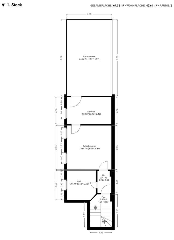
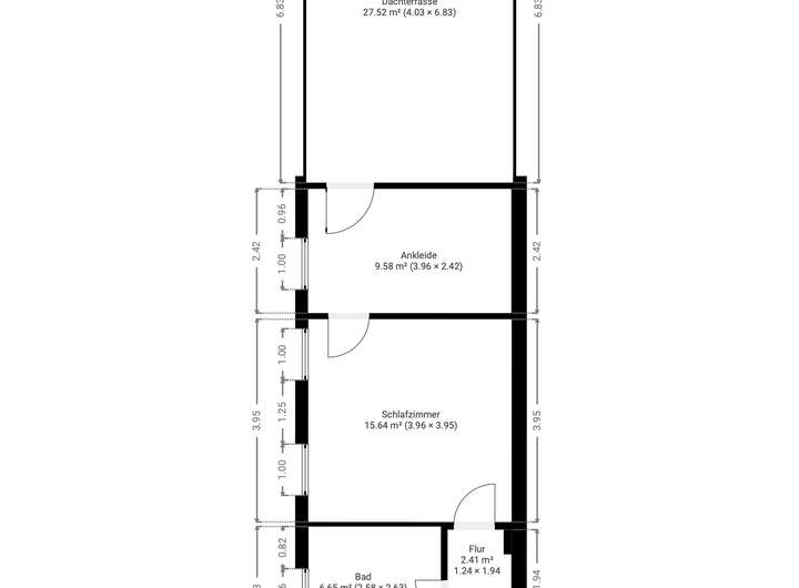
Das erste Obergeschoss beherbergt ein helles Schlafzimmer sowie ein Ankleidezimmer, das flexibel auch als Kinderzimmer oder Büro genutzt werden kann. Das Bad überzeugt durch hohen Komfort: Eine in ein Holzpodest eingelassene Badewanne, eine einklappbare, verspiegelte Duschkabine, Bidet und Fußbodenheizung, die über den Rücklauf der Heizung in den Heizkreis eingebunden ist – Blick ins Grüne inklusive. Vervollständigt wird Ihr privater Wellnessbereich durch eine großzügige Bangkirai-Dachterrasse, die zum Verweilen einlädt.
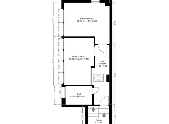
Im ausgebauten Dachgeschoss befinden sich zwei sonnige Zimmer mit Blick über Darmstadt sowie ein Duschbad mit ebenfalls integrierter Fußbodenheizung. Hier können sich Ihre Kinder ihr ganz individuelles Reich erschaffen!
Der pflegeleichte Garten ist ein echtes Highlight dieser Immobilie. Durch seine geschützte Lage bietet er viel Privatsphäre – ideal für Familien mit Kindern, Gartenfreunde oder Ruhesuchende. Veranstalten Sie unvergessliche Grillabende auf dem großen Bangkirai-Holzdeck und lassen Sie den Tag entspannt mit Familie und Freunden ausklingen.
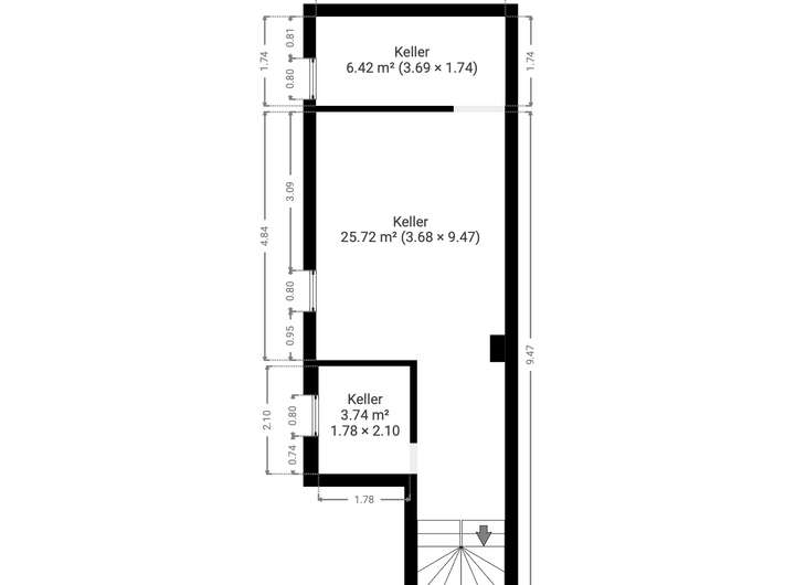
Der Keller bietet Ihnen mit ca. 35 m² viel zusätzlichen Stauraum.
Lassen Sie sich von dieser Immobilie verzaubern und vereinbaren Sie noch heute Ihren Besichtigungstermin!
Charmantes Einfamilienhaus mit ruhigem, uneinsehbarem Garten - mitten in Alt-Bessungen!
64285 Darmstadt
Die vollständige Adresse der Immobilie erhalten Sie vom Anbieter.
Auf Karte anzeigen
Die vollständige Adresse der Immobilie erhalten Sie vom Anbieter.
Finanzierungszertifikat
In nur zwei Minuten zu Ihrem persönlichen Finanzierungszertifkat.
Infos
| Haustyp | Einfamilienhaus |
|---|---|
| Etagenzahl | 3 |
| Wohnfläche ca. | 159 m2 |
| Grundstücksfläche | 175 m2 |
| Zimmer | 6 |
| Schlafzimmer | 4 |
| Badezimmer | 2 |
Kosten
| Kaufpreis |
749.000 € |
|---|---|
| Provision |
3.57 % inkl. gesetzl. MwSt. |
Finanzierungsrechner:
Kaufpreis:
600.000 €
Eigenkapital:
600.000 €
Monatliche Rate
0 €
Effektiver Jahreszins
0 %
Sollzinsbindung
10 Jahre
Bausubstanz & Energieausweis
| Baujahr | 1960 |
|---|---|
| Objektzustand | Gepflegt |
| Wesentliche Energieträger | Gas |
| Energieausweis | liegt vor |
| Energieausweistyp | Bedarfsausweis |
| Energieverbrauchskennwert | 221,8 kWh/(m²*a) |
| Energieeffizienzklasse | G |
221,8
kWh/(m²*a)
Energieeffizienzklasse G
- A+
- A
- B
- C
- D
- E
- F
- G
- H
- 0
- 25
- 50
- 75
- 100
- 125
- 150
- 175
- 200
- 225
- >250
Beschreibung des Objekts
Ausstattung
Kamin
Lage
Bessungen ist eines der ältesten Stadtteile von Darmstadt und begeistert durch seine harmonische Kombination aus urbanem Flair und idyllischer Wohnatmosphäre. Alt-Bessungen bietet eine hervorragende Anbindung an das Stadtzentrum von Darmstadt, sowie an die umliegenden Verkehrsnetze.
Die Nachbarschaft ist geprägt von historischen Bauten, jungen Familien und einem dichten Grünangebot, das die Straßen und Plätze lebendig und einladend macht. Bessungen ist bekannt für seinen hohen Freizeitwert, was es zu einem bevorzugten Wohnort für Familien, Pendler und Senioren macht.
Die Verkehrsanbindung ist optimal: Die Bushaltestellen sind schnell zu erreichen, und der Darmstädter Hauptbahnhof liegt nur wenige Minuten entfernt. Von dort aus gelangen Sie unkompliziert in die Metropolregion Rhein-Main und darüber hinaus. Auch die Auffahrten zur A5 und A67 sind in kurzer Zeit erreichbar, was die Anbindung für Autofahrer ideal macht.
Die lokale Infrastruktur in Bessungen lässt keine Wünsche offen: Zahlreiche Einkaufsmöglichkeiten, darunter Supermärkte, Fachgeschäfte und gemütliche Cafés, sind bequem zu Fuß oder mit dem Fahrrad erreichbar. Nicht nur die Fußgängerzone in der angrenzenden Innenstadt bietet eine Vielzahl von kulinarischen und kulturellen Angeboten, von Restaurants über Bars bis hin zu einem abwechslungsreichen Veranstaltungsprogramm, auch Alt-Bessungen ist für seine zauberhaften, regionalen Lädchen und Theater bekannt.
Für Familien und Naturfreunde stellen der nahegelegene Orangeriegarten und der Prinz-Emil-Garten, die zur Erholung, Freizeitaktivitäten und Spaziergängen einladen, einen besonderen Pluspunkt dar. Die Umgebung bietet zudem eine Vielzahl von Schulen und Kindergärten, die eine hochwertige Bildung für die Jüngsten garantieren.
Kulturell kann Bessungen ebenfalls punkten: Die Nähe zur Technischen Universität Darmstadt, verschiedenen Museen und der Kunstszene trägt zur schöpferischen Atmosphäre bei. Die zahlreichen Veranstaltungen und Feste in der Umgebung fördern ein lebendiges nachbarschaftliches Miteinander.
Zusammengefasst ist Darmstadt Bessungen ein Stadtteil, der durch seine einzigartige Kombination aus Natur, hervorragenden Lebensbedingungen und urbanem Lebensstil besticht. Hier lässt es sich nicht nur gut wohnen, sondern auch leben und genießen!
Sonstige Angaben
Der Makler-Vertrag mit uns und/oder unserem Beauftragten kommt durch die Beauftragung der Maklertätigkeit in Textform (z.B. E-Mail mit Bestätigung der gewollten Inanspruchnahme) zustande. Die Höhe der Courtage richtet sich nach den ab dem 23.12.2020 in Kraft getretenen gesetzlichen Regelungen zur Teilung der Maklercourtage. Hiernach wird die Courtage regelmäßig für beide Parteien (Eigentümer und Käufer) jeweils in Höhe von 3 % zuzüglich Umsatzsteuer in jeweils geltender Höhe, derzeit also insgesamt 3,57 % des Kaufpreises einschließlich Umsatzsteuer bei notariellem Vertragsabschluss verdient und fällig. Die Höhe der Bruttocourtage unterliegt einer Anpassung bei Steuersatzänderung, Grunderwerbssteuer, Notar- und Gerichtskosten trägt der Käufer.
Grundriss
Erdgeschoss
>
>
1. Obergeschoss
>
>
Dachgeschoss
>
>
Keller
>
>
Adresse
64285 Darmstadt
Interessante Orte
Preis- und Lageinformationen
Preistrend für Bestandsimmobilien in Bessungen