Eine echte Rarität, mit einem wahren Potpourri an interessanten Möglichkeiten, verkörpert diese authentisch arrangierte Hofreite in zentraler Wohnlage des Groß-Gerauer Stadtteils Wallerstädten. Das charmante Anwesen, dessen äußeres und inneres Erscheinungsbild im Laufe der Jahre durch die verschiedensten Anforderungen und Vorlieben seiner Bewohner geprägt wurde, überzeugt Liebhaber vom signifikanten Wohnambiente, die Wert auf ein Zuhause mit echter Persönlichkeit legen, im gleichen Maße wie auch kreative Individualisten, mit Blick für das Potential, der daraus resultierenden Nutzungsmöglichkeiten dieser besonderen Liegenschaft.
Die Umgestaltung der Scheune und Nebengebäude von Nutzfläche in beeindruckende Wohnfläche, die Erweiterung oder Neugestaltung des bestehenden Wohnhauses, und/oder der Neubau eines schicken Wohnhauses inmitten des großzügigen Gartens, der Kauf zusammen mit Freunden, Bekannten oder Geschäftspartnern……der Phantasie sind hier kaum Grenzen gesetzt….. Selbstverständlich bedürfen sämtliche baulichen Veränderungen bzw. Erweiterungen an der Bestandsimmobilie, wie auch der Neubau von Gebäuden, der Genehmigung des zuständigen Bauamtes und sind im Vorfeld mit diesem abzustimmen.
Der Grundstock für die idyllische Hofreite wurde ca. 1860, durch den Bau des auf der Vorderseite des Grundstücks errichteten 1-2 Familienhauses gelegt, das sich bis heute sein besonderes Flair erhalten hat. Die ca. 238 qm Wohnfläche, die sich alternativ zu zwei separaten Wohnungen arrangieren lassen könnte, erstreckt sich über 3 Wohnebenen und bietet reichlich Raum für individuelle Nutzungsvarianten - idealerweise als EFH für die große Familie oder als Mehrgenerationenhaus - bis hin zur Einrichtung der eigenen Büro-, Kanzlei- oder Praxisräume.
Den Mittelpunkt des Wohnbereiches im Erdgeschoss bildet das geräumige, ineinander übergehende Wohn- und Esszimmer. Das freundliche Schlafzimmer bietet direkten Zugang zum hell gefliesten Tageslichtbad, das einlädt den Tag in einem entspannenden Schaumbad ausklingen zu lassen. Die separate Küche, mit integrierter Speisekammer, rundet das durchdachte Raumangebot im Parterre des Hauses harmonisch ab.
Eine authentische Holztreppe führt von der Diele in das 1.OG.
Die Wohnküche macht Lust auf gemeinsame Kocherlebnisse und anregende Gespräche bei einer dampfenden Tasse Kaffee oder Tee. Ein geräumiger Wohn- und Essbereich, ein weiteres Schlafzimmer mit Zugangsmöglichkeit zu dem pfiffigen Ankleidezimmer, das aktuell als praktisches Home-Office genutzt wird und das innenliegende Duschbad komplettieren den Grundriss im Obergeschoss des Hauses.
Im charmanten Studiodesign in angenehmer Privatsphäre überzeugen die beiden Zimmer mit eigenem Duschbad im Dachgeschoss des Mehrfamilienhaueses.
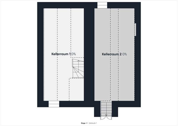
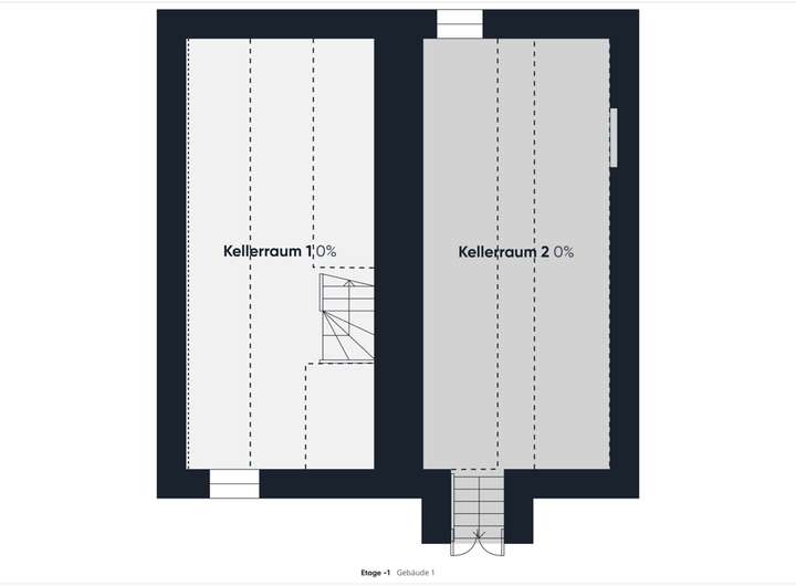
Ein authentischer Gewölbekeller bietet beste Voraussetzungen für den privaten Weinkeller oder sonstige, spezielle Lagehaltung.
Ergänzt wurde die Liegenschaft in den zurückliegenden Jahrzehnten durch die Errichtung verschiedener Anbauten und Nebengebäude, die sich zusammen mit der historischen Scheune zu einem die Hofreite von drei Seiten umschließenden Gebäudekomplex formen.
Der blickgeschützte Innenhof eröffnet reichlich Möglichkeiten für die Gestaltung eines beschaulichen Freisitzes.
Die zu großzügigen Garagen umgebaute Gebäudeteile mit hohen Decken und der große Carportbereich bieten Stellmöglichkeiten für den unterschiedlichsten Fuhrpark.
Der durch die Scheune zugängige idyllische Garten, mit außergewöhnlichem Gartenhaus in Form eines märchenhaft bewachsenen umfunktionierten Silos, bildet das ideale Betätigungsfeld für den passionierten Hobbygärtner und gleichzeitig begehrten Freiraum zum Relaxen, Spielen oder Toben für die ganze Familie in behüteter Umgebung.
Den besten Eindruck erhalten Sie bei Ihrem persönlichen Besichtigungstermin.
Schreiben Sie uns dazu am besten gleich über das Kontaktformular an.
Raum für Generationen! Idyllische Hofreite mit vielfältigen Gestaltungsoptionen in GG/Wallerstädten
64521 Groß-Gerau
Die vollständige Adresse der Immobilie erhalten Sie vom Anbieter.
Auf Karte anzeigen
Die vollständige Adresse der Immobilie erhalten Sie vom Anbieter.
Finanzierungszertifikat
In nur zwei Minuten zu Ihrem persönlichen Finanzierungszertifkat.
Infos
| Wohnfläche ca. | 238 m2 |
|---|---|
| Nutzfläche | 500 m2 |
| Grundstücksfläche | 1.263 m2 |
| Bezugsfrei ab | nach Absprache |
| Zimmer | 8 |
| Schlafzimmer | 5 |
| Badezimmer | 3 |
| Garage/Stellplatz | Garage |
| Anzahl Garage/Stellplatz | 20 |
Kosten
| Kaufpreis |
699.900 € |
|---|---|
| Provision |
3,57 % inkl. MwSt. 3,57 % Käuferprovision inkl. MwSt. verdient und fällig mit Beurkundung des notariellen Kaufvertrages. Der Immobilienmakler hat einen provisionspflichtigen Maklervertrag mit dem Verkäufer in gleicher Höhe geschlossen. |
Finanzierungsrechner:
Kaufpreis:
600.000 €
Eigenkapital:
600.000 €
Monatliche Rate
0 €
Effektiver Jahreszins
0 %
Sollzinsbindung
10 Jahre
Bausubstanz & Energieausweis
| Baujahr | 1860 |
|---|---|
| Objektzustand | Gepflegt |
| Heizungsart | Holz-Pelletheizung |
| Wesentliche Energieträger | Pelletheizung |
| Energieausweis | liegt vor |
| Energieausweistyp | Bedarfsausweis |
| Energieverbrauchskennwert | 222,5 kWh/(m²*a) |
| Energieeffizienzklasse | G |
222,5
kWh/(m²*a)
Energieeffizienzklasse G
- A+
- A
- B
- C
- D
- E
- F
- G
- H
- 0
- 25
- 50
- 75
- 100
- 125
- 150
- 175
- 200
- 225
- >250
Beschreibung des Objekts
Ausstattung
Wohnhaus:
EG - 3-Zimmer, Küche, Tageslichtbad
OG - 3 Zimmer, Küche, duschbad
DG- 2-Zimmer, Duschbad
Gewölbekeller
teilweise Laminatböden, Korkböden oder Vinylböden
dreifach verglaste Kunststofffenster
neue Pelletheizung
vielseitige Nebengebäude mit ca. 500 qm Nutzfläche
Garagen und Carport mit hohen Decken mit Stellmöglichkeiten auch für Wohnmobilie
große Scheune mit PV-Anlage
Mieteinnahme für Mobilfunkmast bis 2030
großzügiger Garten
u.v.m.
Lage
Die Hofreite befindet sich in zentraler Lage des beschaulichen Örtchens Wallerstädten.
Ruhiges Wohnen auf dem Land, mitten im Rhein Main Gebiet, diese angenehme Kombination bietet dieser Stadtteil der Kreisstadt Groß-Gerau. Umgeben von Wiesen und Feldern prägen romantische Fachwerkhäuser das Bild des alten Ortskerns.
Alle wichtigen Einkaufsmöglichkeiten und Dinge des täglichen Bedarfs sind bequem zu erreichen. Obst, Gemüse und alle anderen landwirtschaftlichen Erzeugnisse können hier noch in verschiedenen Hofläden direkt beim Erzeuger gekauft werden.
Das Angebot an Kindertagesstätten und Schulen ist sehr umfangreich. Insgesamt gibt es 6 Grundschulen (davon 4 in Groß-Gerau und je eine in Dornheim und Wallerstädten) 3 Mittelstufenschulen (eine davon ist integrierte Gesamtschule) eine Oberstufenschule, berufsbildende (berufliche) Schulen, Sonderschulen und eine Elternschule im Kreiskrankenhaus.
Mit Bus oder Auto erreichen Sie in wenigen Fahrminuten die Stadtmitte von Groß-Gerau. Die Kreisstadt verfügt über eine sehr gute Bus- und Bahnanbindung in alle Richtungen. Die Nähe zur Autobahn garantiert eine schnelle Verbindung zu den umliegenden Metropolen und des Rhein-Main-Flughafens.
Groß-Gerau bietet breites, zentrales Angebot an Einkaufsmöglichkeiten, Restaurants, Gaststätten, Dienstleistungsbetrieben, Arztpraxen und ein eigenes Krankenhaus.
Rad-/ Wanderwege rund um Wallerstädten, das eigene Hallen- und Freibad der Kreisstadt, nahe Badeseen, das nur wenige Kilometer entfernte Europareservat Kühkopf und natürlich die bei Familien mit Kindern besonders beliebte Groß-Gerauer Fasanerie bilden ein vielfältiges Erholungs- und Freizeitangebot. Zahlreichen Sportstätten, kulturellen Angebote und rund 150 ortsansässige Vereine gestatten die verschiedensten Möglichkeiten sich gesellschaftlich, kirchlich, kulturell, sozial oder sportlich zu betätigen.
Sonstige Angaben
Wir weisen darauf hin, dass die von uns weitergegebenen und/oder veröffentlichten Objektinformationen von dem/den Auftraggeber/n (Eigentümer, Verkäufer, etc.) stammen.
Da wir Objektangaben nicht selbst ermitteln, übernehmen wir hierfür keine Gewähr.
Alle vorstehenden Objektangaben basieren auf uns erteilten Informationen, insoweit ist eigene Haftung für deren Richtigkeit ausgeschlossen und Irrtum vorbehalten.
Es obliegt daher unseren Mandanten (Kaufinteressenten), die darin enthaltenen Objektinformationen und Angaben auf ihre Richtigkeit hin zu überprüfen.
Bei den hier veröffentlichten Grundrisszeichnungen handelt es sich um Exposégrundrisse, die ausschließlich zur Orientierung dienen, wie die Flächen aktuell genutzt werden bzw. bisher genutzt wurden. Eine Ableitung bezüglich genehmigter Wohnflächen bzw. Nutzflächen, wie auch die Richtigkeit der angegebenen Quadratmeterzahlen, ergibt sich hieraus nicht.
Grundriss
Exposégrundriss EG
>
>
Exposégrundriss OG
>
>
Exposégrundriss DG
>
>
Exposégrundriss UG
>
>
Adresse
64521 Groß-Gerau
Interessante Orte
Preis- und Lageinformationen
Preistrend für Bestandsimmobilien in Groß-Gerau