Willkommen in diesem charmanten Reihenmittelhaus, das mit seinen rund 131 m² Wohnfläche, verteilt auf sechs Zimmer, viel Raum für individuelle Lebensentwürfe bietet. Erbaut im Jahr 1977, vereint die Immobilie solide Substanz mit vielfältigen Gestaltungsmöglichkeiten – ideal für Familien oder Menschen mit erhöhtem Platzbedarf.
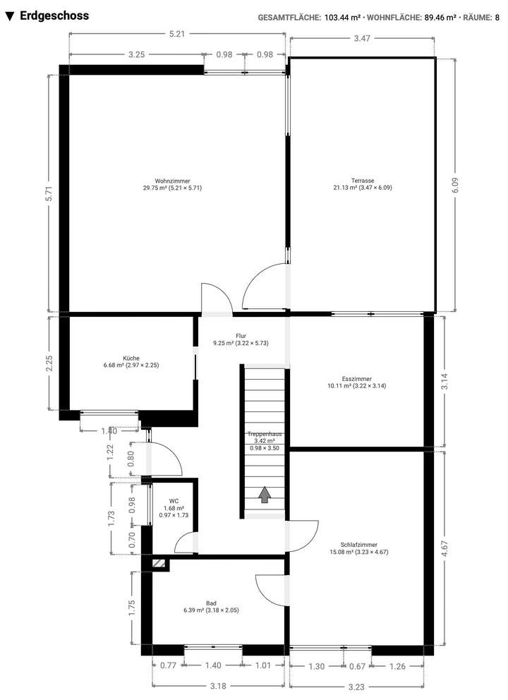
Schon beim Betreten empfängt Sie das helle Erdgeschoss mit einem großzügigen Wohnzimmer, das viel Platz für gesellige Stunden bietet. Angrenzend daran befindet sich das Esszimmer, in dem gemeinsame Mahlzeiten mit der Familie zum festen Ritual werden können. Die separate Küche ist funktional eingebunden und für Kochliebhaber bestens geeignet. Ein weiteres Highlight im Erdgeschoss bildet das geräumige Schlafzimmer mit eigenem Bad – perfekt für komfortables Wohnen auf einer Ebene.
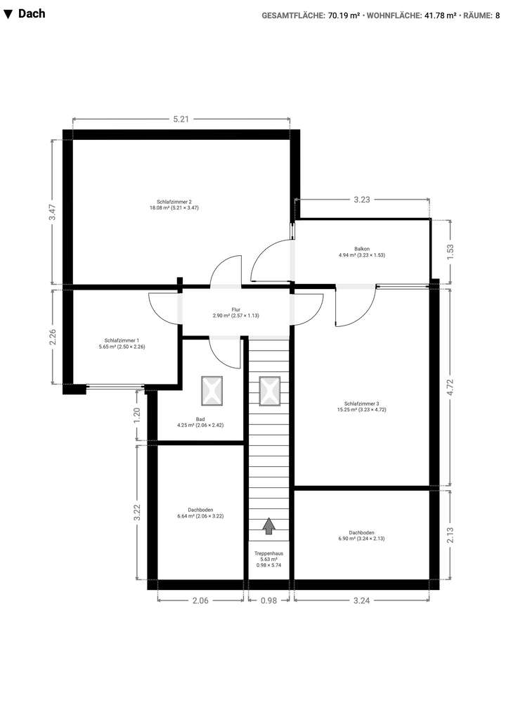
Das erste Obergeschoss überzeugt mit drei Zimmern, die sich vielseitig nutzen lassen – ob als Kinderzimmer, Gästezimmer oder Homeoffice. Zwei der Zimmer haben Zugang auf einen sonnigen Balkon mit Ausblick in den Garten. Ergänzt wird die Etage durch ein weiteres Badezimmer.
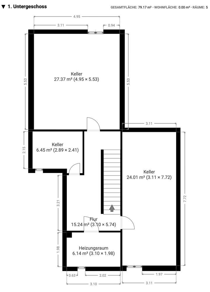
Der Keller eröffnet zusätzliche Perspektiven. Neben klassischen Abstell- und Wirtschaftsräumen wartet eine Sauna auf Sie, die pure Entspannung verspricht. Ein großer Kellerraum bietet zudem die Option, diesen zum Garten hin zu öffnen und eine attraktive souterrainähnliche Lösung zu schaffen – ideal für Hobbys, Gäste oder als Rückzugsort.
Das Grundstück umfasst ca. 459 m². Der Garten bietet Platz für Spiel, Entspannung und gesellige Sommerabende. Zwei Stellplätze auf dem Grundstück (davon 1 Stellplatz im Carport) sorgen für bequemes Parken direkt am Haus. Ergänzend steht eine separate Garage in unmittelbarer Nähe zur Verfügung.
Dieses Haus verbindet eine ruhige, familienfreundliche Lage mit viel Raum zur Entfaltung und Entwicklung. Hier können Sie ihr traumhaftes Zuhause schaffen – für heute und für die Zukunft. Vereinbaren Sie jetzt Ihren Besichtigungstermin!
Familienidyll – Charmantes Reihenmittelhaus in Eberstadt
64297 Darmstadt
Die vollständige Adresse der Immobilie erhalten Sie vom Anbieter.
Auf Karte anzeigen
Die vollständige Adresse der Immobilie erhalten Sie vom Anbieter.
Finanzierungszertifikat
In nur zwei Minuten zu Ihrem persönlichen Finanzierungszertifkat.
Infos
| Haustyp | Reihenmittelhaus |
|---|---|
| Wohnfläche ca. | 131 m2 |
| Grundstücksfläche | 459 m2 |
| Zimmer | 6 |
| Schlafzimmer | 4 |
| Badezimmer | 2 |
| Anzahl Garage/Stellplatz | 3 |
Kosten
| Kaufpreis |
665.000 € |
|---|---|
| Provision |
3.57 % inkl. gesetzl. MwSt. |
Finanzierungsrechner:
Kaufpreis:
600.000 €
Eigenkapital:
600.000 €
Monatliche Rate
0 €
Effektiver Jahreszins
0 %
Sollzinsbindung
10 Jahre
Bausubstanz & Energieausweis
| Baujahr | 1977 |
|---|---|
| Objektzustand | Gepflegt |
| Energieausweis | liegt vor |
| Energieausweistyp | Bedarfsausweis |
| Energieverbrauchskennwert | 272,0 kWh/(m²*a) |
| Energieeffizienzklasse | H |
272,0
kWh/(m²*a)
Energieeffizienzklasse H
- A+
- A
- B
- C
- D
- E
- F
- G
- H
- 0
- 25
- 50
- 75
- 100
- 125
- 150
- 175
- 200
- 225
- >250
Beschreibung des Objekts
Lage
Das Haus befindet sich in einer der begehrtesten Wohnlagen von Darmstadt-Eberstadt – einem Stadtteil, der für seine naturnahe Umgebung, familienfreundliche Infrastruktur und gleichzeitig hervorragende Verkehrsanbindung bekannt ist. Gelegen in einem ruhigen Wohngebiet, bietet die Liegenschaft eine besonders angenehme Wohnatmosphäre. Die Lage ist ruhig und dennoch zentral genug, um alle wichtigen Einrichtungen des täglichen Lebens schnell zu erreichen.
Die Nähe zur Natur ist einer der großen Pluspunkte dieses Standorts. Nur wenige Gehminuten entfernt laden weitläufige Waldgebiete, Streuobstwiesen und Wanderwege am Rand des Odenwalds zu Spaziergängen, Radtouren oder sportlichen Aktivitäten im Grünen ein. Auch das beliebte Eberstädter Freibad liegt ganz in der Nähe – ideal für Familien und alle, die im Sommer gerne in der Umgebung entspannen möchten.
Supermärkte, Bäckereien, Apotheken, Ärzte sowie Cafés und Restaurants befinden sich in der Umgebung und sind bequem erreichbar. Für Familien besonders attraktiv ist das vielfältige Bildungsangebot mit mehreren Kindergärten, Grundschulen und weiterführenden Schulen.
Die Anbindung an den öffentlichen Nahverkehr ist hervorragend. Die Straßenbahnlinien 1, 6, 7 und 8 verbinden Eberstadt direkt mit der Darmstädter Innenstadt, dem Hauptbahnhof und darüber hinaus mit dem gesamten Rhein-Main-Gebiet. Der Bahnhof Darmstadt-Eberstadt bietet zudem Regionalverbindungen in Richtung Frankfurt, Heidelberg und Mannheim. Auch mit dem Auto ist man schnell auf den überregionalen Verkehrsachsen – die Bundesstraßen und die nahegelegene A5 ermöglichen eine zügige Anbindung an das gesamte Rhein-Main-Neckar-Gebiet.
Insgesamt bietet die Lage eine gute Kombination aus ruhigem, grünem Wohnen mit hoher Lebensqualität und einer sehr guten Infrastruktur. Die Umgebung ist geprägt von gepflegten Wohnhäusern, viel Grün und einem angenehmen nachbarschaftlichen Miteinander – ideal für Familien, Berufspendler oder alle, die ein Zuhause mit hoher Wohnqualität in attraktiver Lage suchen.
Sonstige Angaben
Der Makler-Vertrag mit uns und/oder unserem Beauftragten kommt durch die Beauftragung der Maklertätigkeit in Textform (z.B. E-Mail mit Bestätigung der gewollten Inanspruchnahme) zustande. Die Höhe der Courtage richtet sich nach den ab dem 23.12.2020 in Kraft getretenen gesetzlichen Regelungen zur Teilung der Maklercourtage. Hiernach wird die Courtage regelmäßig für beide Parteien (Eigentümer und Käufer) jeweils in Höhe von 3 % zuzüglich Umsatzsteuer in jeweils geltender Höhe, derzeit also insgesamt 3,57 % des Kaufpreises einschließlich Umsatzsteuer bei notariellem Vertragsabschluss verdient und fällig. Die Höhe der Bruttocourtage unterliegt einer Anpassung bei Steuersatzänderung, Grunderwerbssteuer, Notar- und Gerichtskosten trägt der Käufer.
Grundriss
Erdgeschoss
>
>
Dachgeschoss
>
>
Kellergeschoss
>
>
Adresse
64297 Darmstadt
Interessante Orte
Preis- und Lageinformationen
Preistrend für Bestandsimmobilien in Eberstadt