Dieses Einfamilienhaus verbindet zeitlose Architektur mit einem Grundriss, der großzügigen Platz für Familie, Freunde und individuelle Entfaltung bietet. Große Fensterflächen sorgen für lichtdurchflutete Räume und ein freundliches Wohnambiente. Der offene Wohn und Essbereich lädt zu gemeinsamen Momenten ein, während die Rückzugsräume im Obergeschoss entspannte Privatsphäre bieten.
Mit zahlreichen Inklusivleistungen und den Vorteilen unserer aktuellen Sonderaktion rückt der Traum vom eigenen Zuhause jetzt besonders nah.
Modernes Familienhaus mit großzügigem Wohnkonzept
61138 Niederdorfelden
Die vollständige Adresse der Immobilie erhalten Sie vom Anbieter.
Auf Karte anzeigen
Die vollständige Adresse der Immobilie erhalten Sie vom Anbieter.
Finanzierungszertifikat
In nur zwei Minuten zu Ihrem persönlichen Finanzierungszertifkat.
Infos
| Haustyp | Einfamilienhaus |
|---|---|
| Etagenzahl | 2 |
| Wohnfläche ca. | 123 m2 |
| Grundstücksfläche | 536 m2 |
| Zimmer | 4 |
| Schlafzimmer | 3 |
| Badezimmer | 1 |
Kosten
| Kaufpreis |
959.379 € |
|---|---|
| Provision | Nein |
Finanzierungsrechner:
Kaufpreis:
600.000 €
Eigenkapital:
600.000 €
Monatliche Rate
0 €
Effektiver Jahreszins
0 %
Sollzinsbindung
10 Jahre
Bausubstanz & Energieausweis
| Baujahr | 2026 |
|---|---|
| Bauphase | Haus in Planung (projektiert) |
| Qualität der Austattung | Gehoben |
| Heizungsart | Wärmepumpe |
| Energieausweis | liegt zur Besichtigung vor |
Beschreibung des Objekts
Ausstattung
Modernes Wohnniveau, das Ihre Erwartungen übertrifft. Bereits im Grundpreis profitieren Ihre Interessenten von einer Ausstattung, die klare Qualitätsstandards setzt:
- Bodenplatte, Wärmepumpe und Fußbodenheizung bereits inklusive
- Kontrollierte Wohnraumlüftung mit Wärmerückgewinnung
- Dreifach verglaste Fenster mit Aluminium Rollläden
- Erhöhter Raumkomfort durch 2,75 m Deckenhöhe und großzügige Fensterformate
- Energieeffizienz nach KfW 55, auf Wunsch auch KfW 40 Plus
- Vorbereitet für eine Photovoltaikanlage
- Echtholztreppe aus deutscher Markenproduktion
- TÜV geprüftes, wohngesundes Raumklima
- 15 Monate Festpreisgarantie
Geliefert wird das Haus als Ausbauhaus inklusive zwei attraktiver Materialpakete. Auf Wunsch organisieren wir auch eine schlüsselfertige Übergabe und stellen Ihnen dafür ein maßgeschneidertes Angebot bereit.
Die enthaltenen Materialpakete:
- Paket 1: Haustechnik, Rohrleitungen, Heizsystem, Elektroinstallation und Trockenbaumaterial
- Paket 2: Sanitär, Fliesen, Fensterbänke, Innentüren, Bodenbeläge und Tapeten
Lage
- Individuelle Abstimmung auf Ihr vorhandenes oder geplantes Grundstück
- Grundstücksdaten im persönlichen Gespräch
- Unterstützung bei der Grundstückssuche oder Umsetzung auf Ihrem eigenen Grundstück
Sonstige Angaben
Ihre Mehrwerte:
- Jahrzehntelange Erfahrung im Fertighausbau
- Deutsche Markenqualität
- Energieoptimierte Bauweise
- Hochwertige Materialien
- Individuelle Planung des Hauses
- Kurze Bauzeiten und klare Abläufe
- Persönliche, verlässliche Beratung
- Transparente Festpreisgarantie
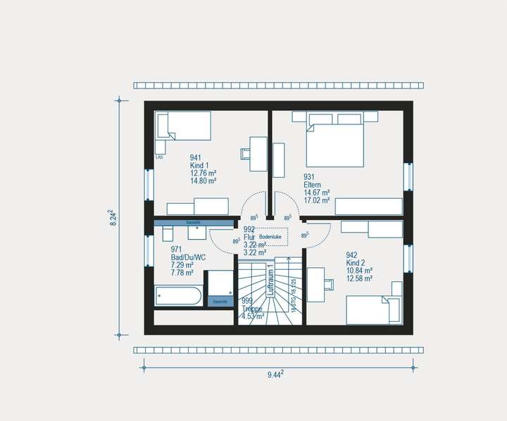
Grundriss
Grundriss veränderbar
>
>
Grundriss veränderbar
>
>
Adresse
61138 Niederdorfelden
Interessante Orte
Preis- und Lageinformationen
Preistrend für Bestandsimmobilien in Niederdorfelden