Willkommen in Ihrem neuen Zuhause - einer individuell geplanten Doppelhaushälfte in Trechtingshausen! Diese moderne und durchdachte Immobilie bietet Ihnen nicht nur ein behagliches Nest, sondern auch die Möglichkeit, Ihre persönlichen Wünsche und Vorstellungen in den Bauprozess einzubringen. Mit 4 Zimmern und einer großzügigen Wohnfläche von 124,95 m² auf einem 300 m² großen Grundstück erstreckt sich das Konzept über zwei Etagen und bietet Ihnen ausreichend Platz für Ihre Familie.
Die geschmackvolle Gestaltung der Räume und die optimale Nutzung der Fläche sorgen für ein harmonisches Wohngefühl. Die drei Schlafzimmer bieten Rückzugsmöglichkeiten für jedes Familienmitglied, während das Badezimmer modernen Komfort vereint. Die durchdachte Raumaufteilung und die lichtdurchfluteten Räume schaffen eine einladende Atmosphäre.
Diese Doppelhaushälfte ist nicht nur ein Zuhause, sondern auch ein Lebensstil, der auf Energieeffizienz setzt. Mit den Energietypen KFW40 und KFW55 profitieren Sie von einer nachhaltigen Bauweise, die nicht nur umweltfreundlich ist, sondern auch Ihre Energiekosten senkt.
Gestalten Sie Ihre Wohnräume nach Ihren Vorstellungen und genießen Sie die Flexibilität, die Ihnen die Auswahl der Bodenbeläge - Fliesen, Laminat, PVC oder Teppichboden - bietet. Jeder Bodenbelag hat seine eigenen Vorteile: Fliesen sind pflegeleicht und hygienisch, Laminat sorgt für eine warme Atmosphäre, PVC ist strapazierfähig und Teppichboden bietet ein gemütliches Wohngefühl.
Die Wärmepumpe als moderne Befeuerungsart sorgt nicht nur für eine angenehme Wärme, sondern auch für umweltfreundliches Wohnen. Sie nutzt die Energie aus der Umwelt und trägt damit zur Reduzierung Ihrer CO2-Emissionen bei.
Die Doppelhaushälfte bietet Ihnen nicht nur ein hervorragendes Zuhause, sondern auch die Möglichkeit, mit unseren Dienstleistungspaketen Active Time für Ambitionierte in die Planung und Realisierung einzutauchen. Diese umfassen Estrich, Sanitär, Heizung und Elektroinstallation, sodass Sie nur den Trockenbau selbst übernehmen. So können Sie Ihre Handwerkskünste einbringen und gleichzeitig von professioneller Unterstützung profitieren!
Ihr Traumhaus in Trechtingshausen: Doppelhaushälfte nach Ihren Wünschen
55413 Trechtingshausen
Die vollständige Adresse der Immobilie erhalten Sie vom Anbieter.
Auf Karte anzeigen
Die vollständige Adresse der Immobilie erhalten Sie vom Anbieter.
Finanzierungszertifikat
In nur zwei Minuten zu Ihrem persönlichen Finanzierungszertifkat.
Infos
| Haustyp | Doppelhaushaelfte |
|---|---|
| Etagenzahl | 2 |
| Wohnfläche ca. | 124 m2 |
| Grundstücksfläche | 300 m2 |
| Zimmer | 4 |
| Schlafzimmer | 3 |
| Badezimmer | 1 |
| Garage/Stellplatz | Garage |
| Anzahl Garage/Stellplatz | 1 |
Kosten
| Kaufpreis |
398.990 € |
|---|---|
| Preis für Garage/Stellplatz | 8.000 € |
Finanzierungsrechner:
Kaufpreis:
600.000 €
Eigenkapital:
600.000 €
Monatliche Rate
0 €
Effektiver Jahreszins
0 %
Sollzinsbindung
10 Jahre
Bausubstanz & Energieausweis
| Baujahr | 2026 |
|---|---|
| Bauphase | Haus in Planung (projektiert) |
| Qualität der Austattung | Gehoben |
| Heizungsart | Wärmepumpe |
Beschreibung des Objekts
Ausstattung
Bereits im Grundpreis ist eine hochwertige und zukunftsorientierte Ausstattung enthalten, die Wohngesundheit, Komfort und Energieeffizienz miteinander verbindet:
Energieeffizienz nach KfW-55-Standard - auf Wunsch auch als KfW-40+ realisierbar
Nachhaltige Luft-Wasser-Wärmepumpe mit komfortabler Fußbodenheizung
Kontrollierte Wohnraumlüftung mit Wärmerückgewinnung - für frische Luft und geringere Energiekosten
Photovoltaik-Vorbereitung nach aktueller Bauleistungsbeschreibung - bereit für die eigene Stromproduktion
3-fach verglaste Markenfenster mit langlebigen Aluminium-Rollläden
Großzügige Raumhöhe von 2,75 m mit extrahohen Fenstern und Türen für ein lichtdurchflutetes Wohnambiente
Hochwertige Echtholztreppe - stilvoll und langlebig
Bodenplatte inklusive - sicheres Fundament für Ihr Zuhause
15 Monate Festpreisgarantie - für maximale Planungssicherheit
Made in Germany - geprüfte Markenqualität
TOXPROOF-Zertifizierung des TÜV Rheinland - für wohngesundes Bauen ohne Schadstoffe
Darüber hinaus profitieren Sie von der allkauf-Bauabsicherung: umfassende Versicherungsleistungen, eine verlässliche
Festpreisgarantie und das Just-in-Time-Lieferkonzept, das Ihre Bauzeit planbar macht.
Ausbaustufe Active Time
In der Ausbaustufe Active Time genießen Sie das perfekte Zusammenspiel aus Eigenleistung und fachgerechter Ausführung.
Zwei umfangreiche Materialpakete (Technik, Trockenbau, Böden, Türen, Fliesen u. v. m.) sind bereits enthalten - kombiniert mit der
professionellen Ausführung von Elektro, Heizung/Sanitär und Estrich durch allkauf.
So entsteht ein Zuhause, das nicht nur technisch überzeugt, sondern auch in Qualität, Sicherheit und Wohnkomfort Maßstäbe setzt.
Auf Wunsch ist selbstverständlich auch eine schlüsselfertige Übergabe möglich - individuell auf Ihre Bedürfnisse zugeschnitten.
Lage
Dieses Haus wird für ein vorhandenes oder geplantes Grundstück vorgesehen.
-Der Grundstückskauf erfolgt direkt über den Eigentümer
-Exakte Grundstücksdaten erhalten Sie im persönlichen Beratungsgespräch
-Gerne bauen wir auch auf einem Grundstück Ihrer Wahl
Auf Wunsch unterstützen wir Sie aktiv bei der Grundstückssuche.
So bleiben Sie flexibel: Ob Sie bereits ein Baugrundstück besitzen, sich für eines unserer vermittelten Angebote interessieren oder noch auf der Suche sind - wir begleiten Sie Schritt für Schritt zu Ihrem Traumhaus.
Gerne berate ich Sie unverbindlich in einem unserer Musterhäuser zu Ihrem geplanten Bauvorhaben, um den Traum vom Eigenheim zu verwirklichen.
Nico Reichart
Mobil: 015735614955
nico.reichart@allkauf.de
Sonstige Angaben
Mit allkauf profitieren Sie von individueller Planung mit maximaler Gestaltungsfreiheit, energieeffizientem Bauen nach neuesten Standards sowie innovativer Haustechnik und hochwertiger Ausstattung bereits im Grundpreis. Kurze Bau- und Montagezeiten, über 40 Jahre Erfahrung im Hausbau und geprüfte Markenqualität "Made in Germany" geben Ihnen die nötige Sicherheit. Dazu kommen eine verlässliche Festpreisgarantie, persönliche Beratung auch in Finanzierungsfragen sowie aktive Unterstützung bei der Beantragung von Fördermitteln - für ein rundum sorgenfreies Bauerlebnis
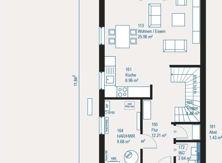
Grundriss
Grundriss
>
>
Grundriss
>
>
Grundriss
>
>
Adresse
55413 Trechtingshausen
Interessante Orte
Preis- und Lageinformationen
Preistrend für Bestandsimmobilien in Trechtingshausen