Willkommen in diesem außergewöhnlichen Zweifamilienhaus aus dem Jahr 1993, das mit seiner einzigartigen Kombination aus Großzügigkeit, Privatsphäre und kreativer Freiheit begeistert. In einer ruhigen Anliegerstraße gelegen und mit direktem Zugang zum idyllischen Wanderweg ins Niendorfer Gehege, bietet dieses Anwesen ein Wohn- und Lebensumfeld, das in Hamburg seinesgleichen sucht.
Viel Platz für Ihre Visionen
Mit rund 285 m² Wohnfläche, ergänzt durch 55 m² im ausgebauten Dachgeschoss, und beeindruckenden ca. 250 m² Kellerfläche eröffnet sich hier ein Lebensraum, der sich perfekt für große Familien, Mehrgenerationenkonzepte oder individuelle Wohn- und Arbeitsmodelle eignet.
Vielfältige Wohnwelten unter einem Dach
Erdgeschoss: Eine großzügige Wohnung mit weitläufiger Terrasse – ideal für entspannte Sommerabende im Grünen.
Obergeschoss: Drei helle Zimmer und ein Balkon mit herrlichem Blick ins Grüne.
Zusätzliche Wohneinheit: Ein einladender Wohn-/Essbereich mit sonniger Dachterrasse über der Garage.
Dachgeschoss: Zwei separate 1-Zimmer-Apartments – perfekt für Gäste, Teenager oder als attraktive Vermietungsmöglichkeit.
Freiraum für Ideen – innen wie außen
Der beeindruckende Kellerbereich mit ca. 250 m² Fläche und einer Deckenhöhe von teilweise 2,75 m bietet nahezu unbegrenzte Möglichkeiten: Ob Atelier, Homeoffice, Hobbyraum oder Lagerfläche – hier können Sie Ihre Ideen verwirklichen.
Ein besonderes Highlight ist ein ca. 40 m² großer, vorbereiteter Raum, der ursprünglich für einen Pool geplant war. Nutzen Sie dieses Potenzial für ein Wellnesszimmer, einen Yogaraum oder ein Musikstudio – Ihrer Kreativität sind keine Grenzen gesetzt.
Das großzügige Grundstück bietet nicht nur Platz für bis zu sechs Fahrzeuge, sondern auch Raum für Ihre Gartenträume, Spielbereiche oder stille Rückzugsorte unter freiem Himmel.
Lage, die begeistert
Mit dem Niendorfer Gehege direkt vor der Tür wohnen Sie mitten im Grünen und genießen gleichzeitig eine hervorragende Anbindung an die Hamburger Innenstadt. Schulen, Kitas und Einkaufsmöglichkeiten sind ebenfalls schnell erreichbar – eine perfekte Kombination aus Natur und urbanem Komfort.
Fazit: Ein Zuhause voller Möglichkeiten
Dieses Haus ist mehr als nur ein Ort zum Wohnen – es ist ein Ort, an dem Sie Ihre Visionen verwirklichen können. Für Familien, Kreative und Menschen mit Ideen bietet es die perfekte Bühne, um Wohnen, Arbeiten und Leben harmonisch zu vereinen.
Kein Kompromiss, sondern eine Einladung, neu zu denken.
Ihr neues Zuhause am Niendorfer Gehege: Großzügiges Wohn- & Gewerbehaus – Provisionsfrei
22459 Hamburg
Die vollständige Adresse der Immobilie erhalten Sie vom Anbieter.
Auf Karte anzeigen
Die vollständige Adresse der Immobilie erhalten Sie vom Anbieter.
Finanzierungszertifikat
In nur zwei Minuten zu Ihrem persönlichen Finanzierungszertifkat.
Infos
| Haustyp | Sonstige |
|---|---|
| Wohnfläche ca. | 320 m2 |
| Grundstücksfläche | 1.212 m2 |
| Bezugsfrei ab | Nach Absprache |
| Zimmer | 10 |
| Anzahl Garage/Stellplatz | 5 |
Kosten
| Kaufpreis |
1.695.000 € |
|---|---|
| Provision | Nein |
Finanzierungsrechner:
Kaufpreis:
600.000 €
Eigenkapital:
600.000 €
Monatliche Rate
0 €
Effektiver Jahreszins
0 %
Sollzinsbindung
10 Jahre
Bausubstanz & Energieausweis
| Baujahr | 1993 |
|---|---|
| Heizungsart | Gas-Heizung |
| Wesentliche Energieträger | Gas |
| Energieausweis | liegt vor |
| Energieausweistyp | Verbrauchsausweis |
| Energieverbrauchskennwert | 149,6 kWh/(m²*a) |
| Energieeffizienzklasse | E |
149,6
kWh/(m²*a)
Energieeffizienzklasse E
- A+
- A
- B
- C
- D
- E
- F
- G
- H
- 0
- 25
- 50
- 75
- 100
- 125
- 150
- 175
- 200
- 225
- >250
Beschreibung des Objekts
Ausstattung
Das im Jahr 1993 in solider Massivbauweise errichtete Wohnhaus überzeugt durch eine durchdachte Ausstattung und hochwertige Materialien. Beheizt wird das Gebäude über eine Gasheizung, die sowohl eine Fußbodenheizung als auch teilweise Heizkörper versorgt.
Besondere Merkmale des Hauses:
Getrennte Eingangsbereiche: Das Erdgeschoss sowie das Ober- und Dachgeschoss verfügen über separate Zugänge, was vielseitige Nutzungsmöglichkeiten bietet.
Hochwertige Bodenbeläge: Im Erdgeschoss wurden edle Granitfliesen verlegt, während die Böden im Ober- und Dachgeschoss mit einer Mischung aus Fliesen, Laminat und Teppich ausgestattet sind.
Effiziente Warmwasserbereitung: Die Warmwasseraufbereitung erfolgt zentral über die Heizungsanlage.
Fenster: Die weiß gestrichenen Holzfenster stammen aus dem Baujahr, sind doppelt isolierverglast und sorgen für eine angenehme Wohnatmosphäre.
Fassade: Die verklinkerte Außenfassade ist mit einer effektiven Wärmedämmung (6 cm Dämmung, 4 cm Luftschicht, 11,5 cm VMZ) versehen.
Dach: Das Mansardendach ist mit robusten Betondachsteinen gedeckt, während die Gauben mit edlem Kupfer verkleidet sind.
Keller und weitere Highlights:
Das vollunterkellerte Gebäude bietet eine großzügige Deckenhöhe von ca. 2,75 m und ist mit strapazierfähigem Epoxidharzboden ausgestattet.
Ein erweiterter, ca. 40 m² großer Kellerbereich eröffnet vielfältige Nutzungsmöglichkeiten – ob als Hobbyraum, Fitnessbereich, Heimkino oder Werkstatt, hier sind Ihrer Kreativität keine Grenzen gesetzt.
Mehrere T90-Durchgangstüren mit einer Breite von 1,00 m sorgen für Sicherheit und Komfort.
Ein Starkstromanschluss im Keller bietet zusätzliche Flexibilität.
Die Terrasse ist ebenfalls unterkellert und bietet somit zusätzlichen Stauraum.
Eine große Doppelgarage mit direktem Zugang zum Keller, inklusive Hebebühne, rundet das Angebot ab.
Technische Details:
Sämtliche Decken bestehen aus Stahlbeton (Bn 25) mit Stahleinlagen, was für Stabilität und Langlebigkeit sorgt.
Die Wasser-, Heizungs- und Elektroleitungen stammen laut vorliegenden Unterlagen aus dem Baujahr.
Die Verkabelung für eine Alarmanlage mit Kameras ist bereits vorbereitet und ermöglicht eine einfache Nachrüstung.
Dieses Wohnhaus vereint hochwertige Bauweise, durchdachte Details und vielseitige Nutzungsmöglichkeiten – ideal für anspruchsvolle Bewohner, die Wert auf Qualität und Komfort legen.
Lage
Das Grundstück befindet sich in Hamburg-Schnelsen, direkt an der Grenze zu Niendorf – in einer ruhigen, grünen Wohnlage, die besonders durch ihre Nähe zum beliebten Niendorfer Gehege besticht. Dieses weitläufige Waldgebiet beginnt quasi vor der Haustür und bietet eine idyllische Kulisse für Spaziergänge, Joggingrunden oder entspannte Stunden in der Natur.
Die Nachbarschaft ist geprägt von Ein- und Zweifamilienhäusern, was für ein ruhiges und familienfreundliches Wohnumfeld sorgt. Gleichzeitig profitieren Sie von einer hervorragenden städtischen Infrastruktur:
Einkaufsmöglichkeiten für den täglichen Bedarf finden Sie in der Frohmestraße und der Wählingsallee, weitere Angebote bieten das Tibarg-Center in Niendorf und der Eidelstedter Platz.
Ärztliche Versorgung ist durch zahlreiche Praxen sowie das nahe gelegene Albertinen-Krankenhaus bestens gewährleistet.
Kulinarische Vielfalt bieten Restaurants in unmittelbarer Umgebung.
Für Freizeit und Erholung sorgen neben dem Gehege auch das beliebte Freizeitbad Bondenwald und der nahegelegene Golf-Club Hamburg Wendlohe e.V.
Auch die Verkehrsanbindung ist ideal:
Die Autobahnanschlüsse A7 (Schnelsen/Niendorf) und A23 (Eidelstedt) sind in wenigen Minuten erreichbar. Der öffentliche Nahverkehr ist fußläufig angebunden – von hier aus gelangen Sie bequem in alle Richtungen Hamburgs.
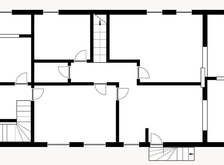
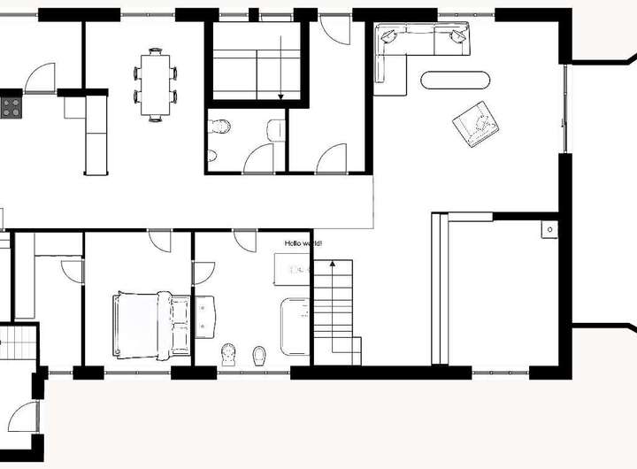
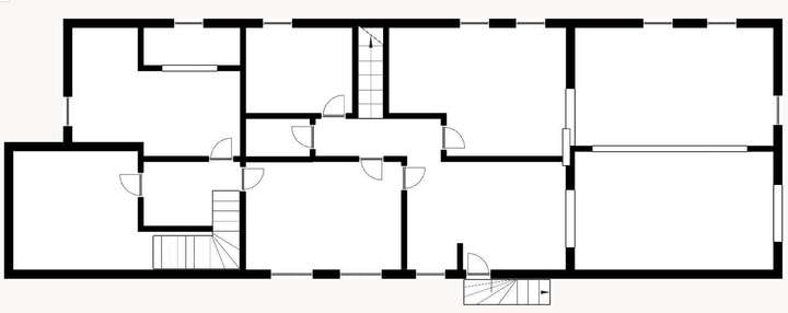
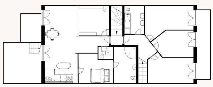
Grundriss
Erdgeschoss
>
>
Dachgeschoss
>
>
Obergeschoss
>
>
Keller
>
>
Weiterer Kellerraum
>
>
Adresse
22459 Hamburg
Interessante Orte
Preis- und Lageinformationen
Preistrend für Bestandsimmobilien in Schnelsen