Objektnr: 1067970
Dieses ruhig gelegene Zweifamilienhaus bietet Ihnen auf insgesamt ca. 134 m² Wohnfläche jede Menge Platz für Ihre Wohnideen. Dank der durchdachten Aufteilung eignet sich das Haus hervorragend als Zweifamilienhaus, als Mehrgenerationenhaus oder auch als großzügiges Einfamilienhaus — ganz so, wie es zu Ihrem Leben passt.
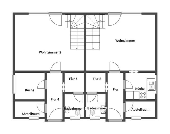
Das Haus verfügt über zwei separate Hauseingänge, wodurch beide Einheiten völlig unabhängig voneinander genutzt werden können. Jede Haushälfte bietet rund 67 m² Wohnfläche, verteilt auf drei gut geschnittene Zimmer, ein helles Tageslichtbad mit Dusche und Badewanne sowie ein separates Gäste-WC. Im Erdgeschoss steht zudem ein praktischer Abstellraum zur Verfügung, der zusätzlichen Stauraum bietet. Der ausgebaute Dachboden ergänzt das Platzangebot um weitere Nutzfläche.
Die solide Bausubstanz aus dem Baujahr 1996 bietet eine verlässliche Grundlage für Ihr neues Zuhause. Ein gewisser Sanierungs- und Instandhaltungsbedarf ist vorhanden – zugleich eröffnet sich dadurch die Chance, eigene Wohnideen umzusetzen und das Haus ganz nach den persönlichen Vorstellungen zu gestalten.
Das 553 m² große Grundstück bietet reichlich Platz zum Spielen, Gärtnern oder einfach zum Entspannen im Freien – ideal für Familien, Naturfreunde und alle, die das Draußensein genießen. Eine gemeinschaftlich nutzbare Terrasse verbindet die beiden Haushälften und schafft einen angenehmen Ort für gemeinsame Stunden im Freien. Für Ihre Fahrzeuge stehen zwei Außenstellplätze sowie ein überdachtes Carport zur Verfügung.
Geheizt wird das Haus über eine gemeinsame Gaszentralheizung, deren Anlage sich im Dachboden der einen Haushälfte befindet.
Die Lage des Hauses überzeugt ebenfalls: In einer ruhigen und angenehmen Nebenstraße von Flechtingen gelegen, profitieren Sie gleichzeitig von der guten Anbindung an die umliegenden Orte und die vorhandene Infrastruktur. Einkaufsmöglichkeiten, Schulen, Kindergärten und Naherholungsgebiete sind schnell erreichbar.
Dieses Haus vereint viele Vorzüge: eine flexible Raumaufteilung, viel Platz für individuelle Ideen, ein großzügiges Grundstück und eine ruhige Lage. Ob Sie als Familie einziehen, mit mehreren Generationen unter einem Dach wohnen möchten oder eine Investitionsmöglichkeit suchen – dieses Objekt bietet Ihnen alle Möglichkeiten.
Ein Ort zum Ankommen: Vielseitig nutzbares Zuhause im idyllischen Flechtingen
39345 Flechtingen
Die vollständige Adresse der Immobilie erhalten Sie vom Anbieter.
Auf Karte anzeigen
Die vollständige Adresse der Immobilie erhalten Sie vom Anbieter.
Finanzierungszertifikat
In nur zwei Minuten zu Ihrem persönlichen Finanzierungszertifkat.
Infos
| Haustyp | Einfamilienhaus |
|---|---|
| Etagenzahl | 2 |
| Wohnfläche ca. | 134 m2 |
| Grundstücksfläche | 553 m2 |
| Bezugsfrei ab | nach Absprache |
| Zimmer | 6 |
| Schlafzimmer | 4 |
| Badezimmer | 2 |
| Garage/Stellplatz | Außenstellplatz |
| Anzahl Garage/Stellplatz | 2 |
Kosten
| Kaufpreis |
195.000 € |
|---|---|
| Provision |
3,57 % Die Provision i.H.v. 3,57 % inkl. MwSt. ist mit Kaufvertragsbeurkundung fällig, sofern der Verkaufspreis über 83.000,00 € liegt. Liegt der Verkaufspreis dagegen bei/unter 83.000,00 €, ist die fest vereinbarte Mindestprovision i.H.v. mind. 5.950,00 € inkl. MwSt. mit Kaufvertragsbeurkundung fällig. Die Mindestprovision fällt insg. nur einmal an, wodurch Verkäufer und Käufer die Mindestprovision dann jeweils mit 2.975,00 € inkl. MwSt. tragen. |
Finanzierungsrechner:
Kaufpreis:
600.000 €
Eigenkapital:
600.000 €
Monatliche Rate
0 €
Effektiver Jahreszins
0 %
Sollzinsbindung
10 Jahre
Bausubstanz & Energieausweis
| Baujahr | 1996 |
|---|---|
| Bauphase | Haus fertig gestellt |
| Objektzustand | Renovierungsbedürftig |
| Heizungsart | Zentralheizung |
| Wesentliche Energieträger | Gas |
| Energieausweis | liegt vor |
| Energieausweistyp | Verbrauchsausweis |
| Energieverbrauchskennwert | 110,0 kWh/(m²*a) |
| Energieeffizienzklasse | D |
110,0
kWh/(m²*a)
Energieeffizienzklasse D
- A+
- A
- B
- C
- D
- E
- F
- G
- H
- 0
- 25
- 50
- 75
- 100
- 125
- 150
- 175
- 200
- 225
- >250
Beschreibung des Objekts
Ausstattung
+ Zwei separate, identisch aufgebaute Wohneinheiten mit jeweils eigenem Eingang
+ Ca. 67 m² Wohnfläche pro Einheit, je 3 Zimmer, Tageslichtbad mit Dusche und Wanne, zusätzliches Gäste-WC und Abstellraum
+ Gemeinschaftliche Gasheizung
+ Carport und zwei Außenstellplätze
+ Zusätzliche Nutzfläche auf dem Dachboden
Lage
Lage: Idyllische, ruhige Umgebung in einer Nebenstraße
Bildung und Betreuung: Familien profitieren von Kindergarten und Grundschule in ca. 500 m Entfernung
Nahversorgung: Supermarkt, Apotheke und Bankfiliale im Umkreis von max. 800 m Fußweg zu finden
Anbindung: Gut erreichbar - nächste Bushaltestelle ca. 1 km, nächste Autobahn ca. 20 km
Sonstige Angaben
Vereinbaren Sie noch heute einen Besichtigungstermin!
_____________________________________________________
Alle Angaben sind ohne Gewähr und basieren ausschließlich auf Informationen, die uns von unserem Auftraggeber zur Verfügung gestellt wurden. Wir übernehmen keine Gewähr für die Vollständigkeit, Richtigkeit und Aktualität der Angaben.
Grundriss
Grundriss Skizze EG
>
>
Grundriss Skizze OG
>
>
Grundriss Skizze DG
>
>
Adresse
39345 Flechtingen
Interessante Orte
Preis- und Lageinformationen
Preistrend für Bestandsimmobilien in Flechtingen