Dieses kleine Haus bildet eine hervorragende Basis für alle, die ihre eigenen Wohnideen realisieren möchten. Es bietet umfangreiches Potenzial für Umbau sowie eine Erweiterungsmöglichkeit von rund 100 m² – ganz nach Ihren persönlichen Vorstellungen planbar.
Eine Sanierung ist notwendig, zudem ist derzeit keine Heizung installiert. Damit eignet sich das Objekt ideal für Käufer, die Freude daran haben, ein Zuhause nach ihren individuellen Wünschen zu modernisieren und weiter auszubauen. Ein schöner Garten gehört ebenfalls dazu.
Sanierungsbedürftiges Haus mit großem Potenzial & schönem Garten
55218 Ingelheim am Rhein
Die vollständige Adresse der Immobilie erhalten Sie vom Anbieter.
Auf Karte anzeigen
Die vollständige Adresse der Immobilie erhalten Sie vom Anbieter.
Finanzierungszertifikat
In nur zwei Minuten zu Ihrem persönlichen Finanzierungszertifkat.
Infos
| Haustyp | Sonstige |
|---|---|
| Etagenzahl | 2 |
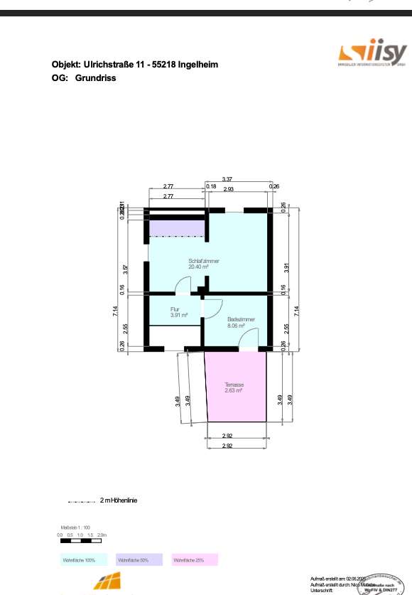
| Wohnfläche ca. | 76 m2 |
| Grundstücksfläche | 238 m2 |
| Bezugsfrei ab | Sofort |
| Zimmer | 4 |
| Schlafzimmer | 2 |
| Badezimmer | 1 |
| Garage/Stellplatz | Carport |
| Anzahl Garage/Stellplatz | 2 |
Kosten
| Kaufpreis |
299.000 € |
|---|---|
| Provision |
3,57 % des Kaufpreises inklusive der gesetzlichen Mehrwertsteuer Die Käuferprovision beträgt 3,57 % des Kaufpreises inklusive der gesetzlichen Mehrwertsteuer und ist fällig mit Abschluss eines rechtskräftigen Kaufvertrages. |
Finanzierungsrechner:
Kaufpreis:
600.000 €
Eigenkapital:
600.000 €
Monatliche Rate
0 €
Effektiver Jahreszins
0 %
Sollzinsbindung
10 Jahre
Bausubstanz & Energieausweis
| Baujahr | 1922 |
|---|---|
| Bauphase | Haus im Bau |
| Qualität der Austattung | Einfach |
| Heizungsart | Gas-Heizung |
| Wesentliche Energieträger | Erdgas leicht |
| Energieausweis | liegt vor |
| Energieausweistyp | Bedarfsausweis |
| Energieverbrauchskennwert | 417,9 kWh/(m²*a) |
| Energieeffizienzklasse | H |
417,9
kWh/(m²*a)
Energieeffizienzklasse H
- A+
- A
- B
- C
- D
- E
- F
- G
- H
- 0
- 25
- 50
- 75
- 100
- 125
- 150
- 175
- 200
- 225
- >250
Beschreibung des Objekts
Ausstattung
Das Objekt überzeugt durch vielseitige Nutzungsmöglichkeiten. Es verfügt über einen Balkon, sowie über ein Tageslichtbad. Der Garten bietet zusätzlichen Raum zur Entspannung und Freizeitgestaltung. Das Haus verfügt über einen praktischen Keller, der reichlich Stauraum bietet, sowie über ein Carport für bequemes Parken direkt am Haus.
Darüber hinaus besteht eine attraktive An- und Ausbaumöglichkeit, die individuelles Wohnen oder zusätzliche Nutzflächen ermöglicht. Insgesamt bietet die Immobilie viel Potenzial, um mit überschaubarem Aufwand ein modernes und komfortables Zuhause zu schaffen.
Lage
Das Objekt befindet sich in zentraler und zugleich ruhiger Wohnlage von Ingelheim am Rhein. Die Ulrichstraße liegt in einem gepflegten, gewachsenen Wohngebiet mit überwiegend Ein- und Mehrfamilienhäusern. Einkaufsmöglichkeiten, Schulen, Kindergärten sowie Ärzte und Restaurants sind fußläufig erreichbar. Durch die gute Anbindung an den öffentlichen Nahverkehr und die Nähe zur Binger Straße sowie zum Bahnhof ist eine hervorragende Verbindung nach Mainz, Bingen und ins gesamte Rhein-Main-Gebiet gegeben. Die Nähe zum Rhein und zu den umliegenden Weinbergen bietet zudem einen hohen Freizeit- und Erholungswert.
Sonstige Angaben
Gerne vereinbaren wir einen Besichtigungstermin mit Ihnen.
Die Käuferprovision beträgt 3,57 % des Kaufpreises inklusive der gesetzlichen Mehrwertsteuer und ist fällig mit Abschluss eines rechtskräftigen Kaufvertrages.
Grundriss
EG
>
>
Keller
>
>
OG
>
>
Adresse
55218 Ingelheim am Rhein
Interessante Orte
Preis- und Lageinformationen
Preistrend für Bestandsimmobilien in Ingelheim am Rhein